Зателефонуйте мені
Авенер №1
Авенер №2
Авенер №3
Авенер №4
Авенер №5
Авенер №6
Авенер №7
Авенер №8
Авенер №9
Авенер №10
Авенер №11
Авенер №12
Авенер №1
Авенер №2
Авенер №3
Авенер №4
Авенер №5
Авенер №6
Авенер №7
Авенер №8
Авенер №9
Авенер №10
Авенер №11
Авенер №12
Авенер №1
Авенер №1 Авенер №2 Авенер №3 Авенер №4 Авенер №5 Авенер №6 Авенер №7 Авенер №8 Авенер №9 Авенер №10 Авенер №11 Авенер №12

Авенер

1 020 276,00 ₴
Лазня з сухого, профільованого бруса з парилкою 10,7 м2 - «Авенер»
Розмір брусу
  • Оциліндрований 160
  • Оциліндрований 180
  • Оциліндрований 200
  • Оциліндрований 220
  • Профільований 60
  • Профільований 150
  • Профільований 200
  • Подвійний 300
  • Клеєний 120
  • Клеєний 180
Кількість поверхів
1
Площа
77
Ширина
7.7
Довжина
10
Садові та господарські споруди
Бані
Бані з профільованого брусу
 

(Що входить в ціну)

Що входить в базову комплектацію

  • комплект стін;
  • комплект крокв;
  • комплект балок перекриття;
  • утеплювач міжвінцевий;
  • антисептик (антисептування всього матеріалу);
  • дубові нагеля;
  • кріпильні материали (саморізи, усадкові болти, анкера, кріпильні пластини);
  • гідроізоляція;
  • вогнебіозахист (обробка деревини засобом І групи вогнезахисної ефективності)

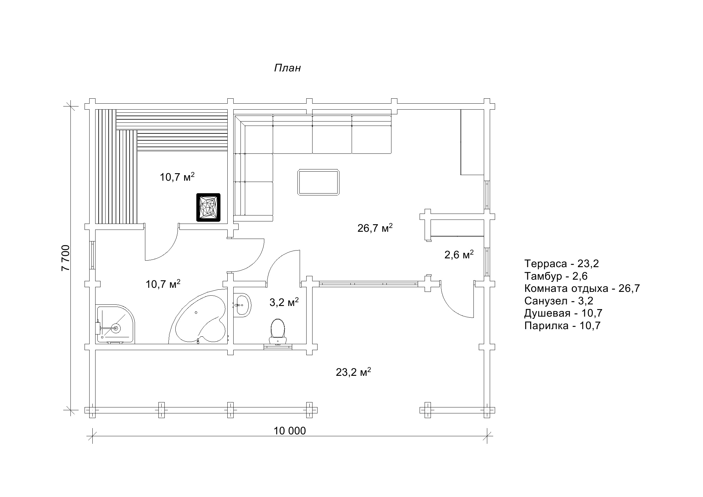
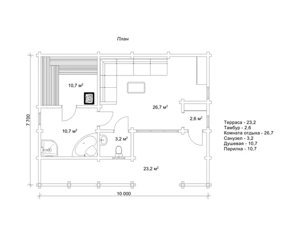
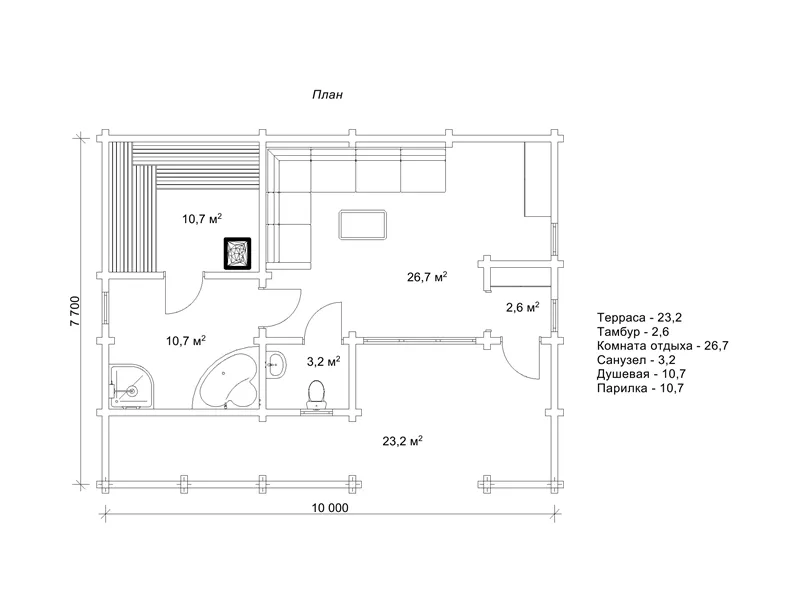
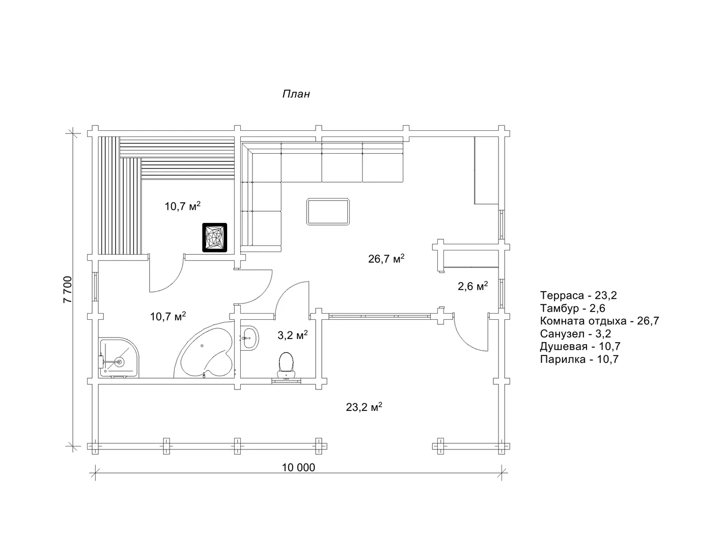
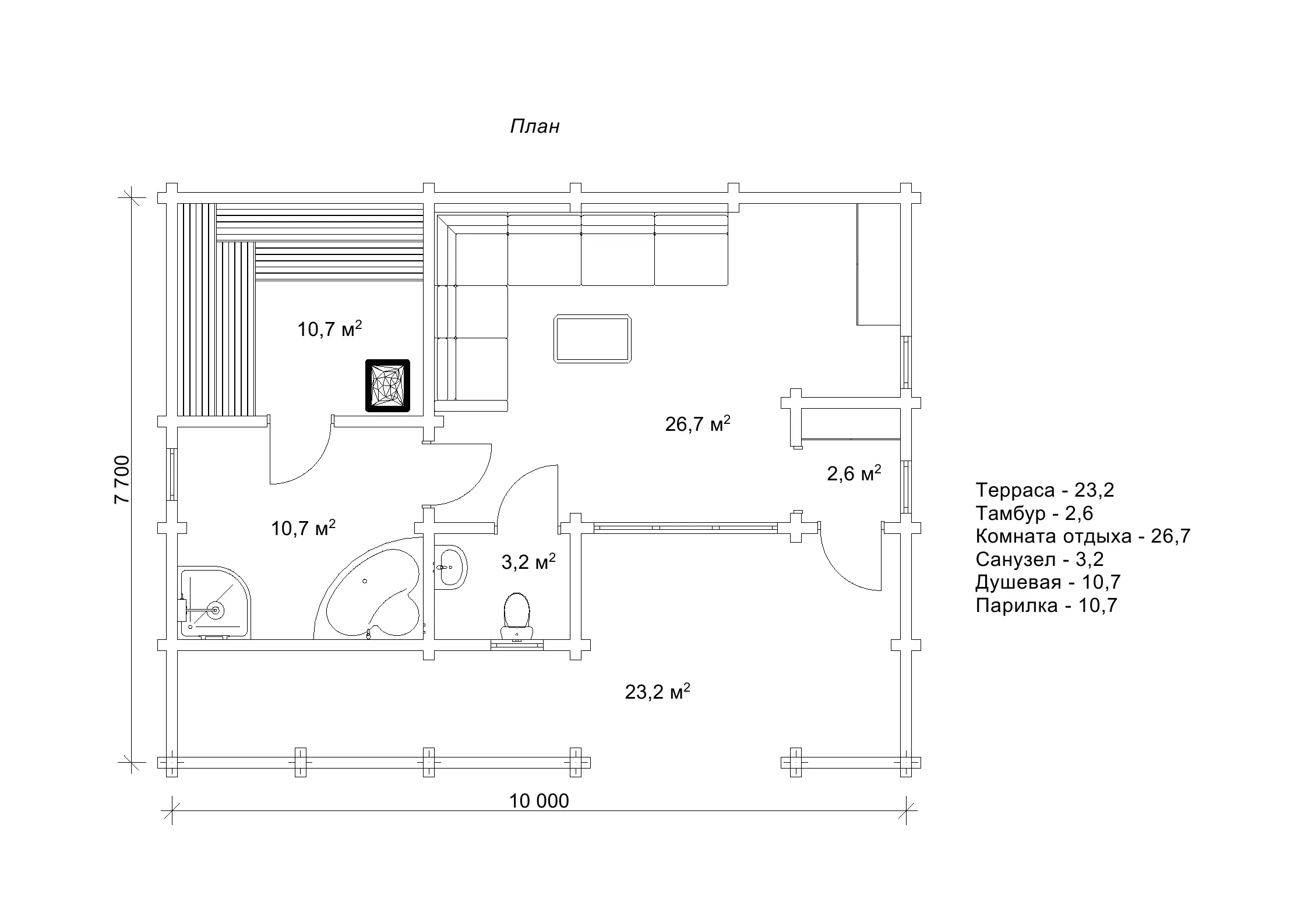
Будівництво лазні з сухого, профільованого бруса 7,7 на 10 м

Комфортабельна лазня «Авенер», що виготовлена з висушеного, профільованого бруса, містить усі необхідні приміщення для відмінних лазневих процедур та відпочинку після них. У лазні є парна, душова, кімната відпочинку з кухонним куточком та санвузол. До того ж у лазні «Авенер» спланована простора тераса на 23 м2, яка розширює можливості лазневого дозвілля та дає можливість посидіти, освіжитися на відкритому повітрі після парних процедур. Всі приміщення лазні з бруса досить просторі, а парильня має площу 10,7 м2. Тому позиціонуємо лазню «Авенер», в першу чергу, як комерційний об’єкт для будівництва в комплексі відпочинку або на базі відпочинку.

Лазня з сухого, профільованого бруса «Авенер» площа 77,0 м²

Тим, хто бажає інвестувати в бізнес або розширити вже існуючі послуги, проект «Авенер» надасть все необхідне. Презентабельна будова з гладко відшліфованого, просушеного бруса відмінно підійде для будівництва у великому готельному комплексі, який знаходиться у мальовничій природній зоні. Така лазня з натурального дерева гармонійно впишеться у природний ландшафт та стане доповненням до готельних номерів. Завдяки побудові проекту «Авенер» ви зможете розширити обсяг послуг свого закладу, збільшити клієнтську базу та значно підвищити свій дохід. Кожен прихильник лазневих процедур оцінить комфорт дерев’яної лазні «Авенер» та відчує максимально натуральний мікроклімат приміщень із соснового бруса. Лазня із сухого бруса «Авенер» просто створена для вигідного застосування в бізнес цілях, вона має все необхідне для того, щоб стати успішним комерційним об’єктом.

Кількість поверхів
1
Площа
77
Ширина
7.7
Довжина
10
Садові та господарські споруди
Бані
Бані з профільованого брусу

Базова комплектація:
(Що входить в ціну)

Що входить в базову комплектацію

  • комплект стін;
  • комплект крокв;
  • комплект балок перекриття;
  • утеплювач міжвінцевий;
  • антисептик (антисептування всього матеріалу);
  • дубові нагеля;
  • кріпильні материали (саморізи, усадкові болти, анкера, кріпильні пластини);
  • гідроізоляція;
  • вогнебіозахист (обробка деревини засобом І групи вогнезахисної ефективності)

252720 грн.

Дах (комплектність):

  • Рейка 100*25мм (cосна)
  • Контрейка 50*25мм (сосна)
  • Металочерепиця МОНТЕРРЕЙ (Польща) 0,45мм
  • Коник прямий
  • Планка примикання
  • Лобова (декоративна) планка
  • Вітровая планка
  • Яндола
  • Капельник (Карнизна планка)
  • Ущільнювач універсальный
  • Саморізи ОС 4.8х35
  • Фарба-спрей
  • Гідробар'єр
  • Монтаж

228020 грн.

Вікна (комплектність):

  • Вікно VEKA 58, колір білий 10
  • Імпости вертикальні: 1 x 102103
  • Скління: СПО, 24мм, (Rсп=0.36)*
  • Тип фурнітури: Activpilot поворотно-відкидна, колір білий
  • Підбір спеціальний: Activ микровентиляція; Activ 2-функц. механ.
  • Моск.сітка: МС 3
  • Підвіконня: ВМ 110мм, колір білий
  • Підвіконня: ПВ ПВХ 150, заглушки: 600мм, колір білий
  • Монтаж

41800 грн.

Двері (комплектність):

  • Полотно
  • Коробка
  • Лиштва
  • Карниз
  • Фарбування
  • Скло
  • Фурнітура
  • Врізка фурнітуры
  • Монтаж

115444 грн.

Фарбування (комплектність):

  • Шліфування торців
  • Тришарове покриття ефективним деревозахисним засобом на базі низькомолекулярної алкідної смоли методом розпилення.

Параметри забудови

  • Кількість поверхів: 1
  • Площа: 77

Розмір забудови

  • Ширина: 7.7
  • Довжина: 10

Перший поверх

тераса (м²)23,2
тамбур (м²)2,6
кімната відпочинку (м²)26,7
санвузол (м²)3,2
душова (м²)10,7
парилка (м²)10,7

Оциліндрований брус

Оциліндрований брус є найбільш оптимальним і поширеним матеріалом для будівництва дерев`яних будинків і бань, бесідок, альтанок, різноманітних садових меблів, дерев`яних конструкцій будь-яких видів. Дерев`яні будинки з оциліндрованого брусу відрізняються красою, всередині такого будинку завжди відчувається особлива затишна атмосфера.

Читати далі...

Профільований брус

Найсучаснішим і високотехнологічним будівельним матеріалом в дерев`яному будівництві на сьогоднішній день є профільований брус. Для виробництва профільованого брусу, звичайному дерев`яному брусу на спеціальному деревообробному обладнанні надається певний профіль.

Читати далі...

Подвійний брус з утепленням

Головна ідея застосування подвійного бруса полягала в досягненні енергоефективності житла. Над проектуванням енергозберігаючих будинків працюють провідні інженери та архітектори в різних країнах світу, запропонована фінами технологія подвійного бруса дає можливість звести до мінімуму тепловтрати будинку, а також об`єднує переваги будівництва дерев`яного будинку з економічністю споруди.

Читати далі...

Клеєний брус

Клеєний брус принципово відрізняється від інших типів колод багатошаровістю. Така структура робить цей дерев’яний матеріал надміцним і витривалим.

Читати далі...

Каркасні конструкції

Каркасні конструкції виготовляються на власних виробничих потужностях компанії «Домінант», з використанням сучасних деревообробних станків. Імпортне, високоточне обладнання дозволяє нам високоякісно виконувати свою роботу. Каркаси складаються зі струганих, ретельно висушених балок 150х50 мм (сосна першого сорту). Ці балки застосовуються для зовнішніх каркасів.

Читати далі...

Немає відгуків

Переглянуті товари

16 інших товарів в цій категорії:

Товар додано для порівняння.