Зателефонуйте мені
Ноуваль №1
Ноуваль №2
Ноуваль №3
Ноуваль №4
Ноуваль №5
Ноуваль №6
Ноуваль №7
Ноуваль №8
Ноуваль №1
Ноуваль №2
Ноуваль №3
Ноуваль №4
Ноуваль №5
Ноуваль №6
Ноуваль №7
Ноуваль №8
Ноуваль №1
Ноуваль №1 Ноуваль №2 Ноуваль №3 Ноуваль №4 Ноуваль №5 Ноуваль №6 Ноуваль №7 Ноуваль №8

Ноуваль

1 137 214,00 ₴

Дерев’яний павільон 10,9 на 17,8 м - «Ноуваль»

Розмір брусу
  • Оциліндрований 160
  • Оциліндрований 180
  • Оциліндрований 200
  • Оциліндрований 220
  • Профільований 60
  • Профільований 150
  • Профільований 200
  • Подвійний 300
  • Клеєний 120
  • Клеєний 180
Кількість поверхів
1
Площа
173
Ширина
10.9
Довжина
17.8
Комерційні будівлі
Офіси
Ресторани
Садові та господарські споруди
Павільйони
 

(Що входить в ціну)

Що входить в базову комплектацію

  • комплект стін;
  • комплект крокв;
  • комплект балок перекриття;
  • утеплювач міжвінцевий;
  • антисептик (антисептування всього матеріалу);
  • дубові нагеля;
  • кріпильні материали (саморізи, усадкові болти, анкера, кріпильні пластини);
  • гідроізоляція;
  • вогнебіозахист (обробка деревини засобом І групи вогнезахисної ефективності)

Павільйон з оциліндрованого бруса на 173 м2

Приваблива будівля з оциліндрованих колод з красивим навісом над просторим ґанком за проектом «Ноуваль» унікальна тим, що це наш перший проект в Об’єднаних Арабських Еміратах, розташований за адресою 37 Ali Bin Abi Talib Street, Ajman. Споруда виконується з бруса діаметром 200 мм нашого виробництва, такі споруди з колоди є ексклюзивною новинкою для Еміратів, де в основному зводяться хмарочоси і будівлі в стилі хай-тек. У проекті «Ноуваль» ми повністю врахували специфіку мусульманської культури і бажання замовників по плануванню.

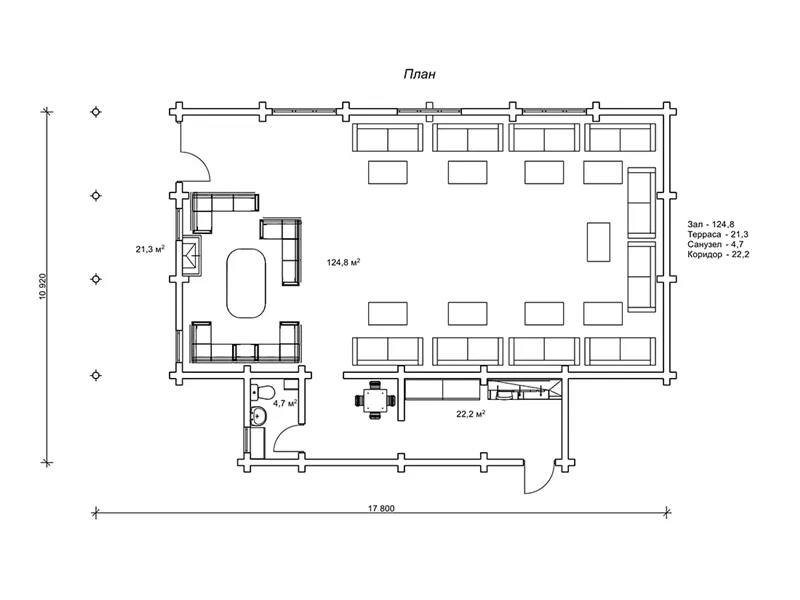
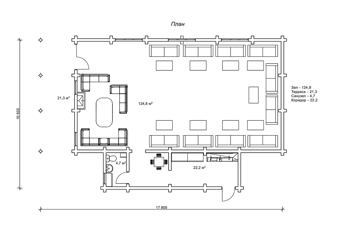
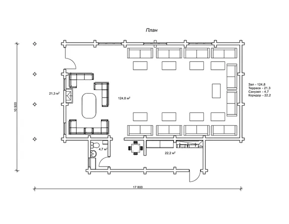
Дерев’яний павільйон 10,9 на 17,8 м - планування внутрішніх приміщень

Павільйон з дерева «Ноуваль» представляє собою простору одноповерхову будівлю 10,9 на 17,8 м з величезним залом площею 124,8 м2 для зборів. Павільйон розподіляється на дві функціональні зони. Перша передбачає зал для презентацій на 20 осіб, друга - це лаунж-зона з м’яким куточком біля каміна, де можна розслабитися після ділових переговорів або презентації. «Ноуваль» - це перший будинок, побудований нашою компанією в Еміратах, який буде служити зразком зрубу для потенційних замовників з Близького Сходу.

Зал для проведення презентацій

Дерево завжди було одним з найулюбленіших матеріалів у будівельників і архітекторів. В дереві можна гарно втілити не тільки житлові споруди, а й різні комерційні будівлі: офіси, павільйони, ресторани, готелі і зали презентацій. Цікаву інформацію з відео про те, як в дереві втілюються найрізноманітніші проекти можна побачити на нашому сайті в новини «5 цікавих відео про те, як можна побудувати будинок». Східний проект «Ноуваль» - втілення рідкісної для азіатських країн краси натурального дерев’яного зрубу, який привнесе свіжість справжнього лісу в спекотне південне місто Аджман і стане справжнім природним оазисом посеред гарячої пустелі.

Кількість поверхів
1
Площа
173
Ширина
10.9
Довжина
17.8
Комерційні будівлі
Офіси
Ресторани
Садові та господарські споруди
Павільйони

Базова комплектація:
(Що входить в ціну)

Що входить в базову комплектацію

  • комплект стін;
  • комплект крокв;
  • комплект балок перекриття;
  • утеплювач міжвінцевий;
  • антисептик (антисептування всього матеріалу);
  • дубові нагеля;
  • кріпильні материали (саморізи, усадкові болти, анкера, кріпильні пластини);
  • гідроізоляція;
  • вогнебіозахист (обробка деревини засобом І групи вогнезахисної ефективності)

787320 грн.

Дах (комплектність):

  • Рейка 100*25мм (cосна)
  • Контрейка 50*25мм (сосна)
  • Металочерепиця МОНТЕРРЕЙ (Польща) 0,45мм
  • Коник прямий
  • Планка примикання
  • Лобова (декоративна) планка
  • Вітровая планка
  • Яндола
  • Капельник (Карнизна планка)
  • Ущільнювач універсальный
  • Саморізи ОС 4.8х35
  • Фарба-спрей
  • Гідробар'єр
  • Монтаж

298180 грн.

Вікна (комплектність):

  • Вікно VEKA 58, колір білий 10
  • Імпости вертикальні: 1 x 102103
  • Скління: СПО, 24мм, (Rсп=0.36)*
  • Тип фурнітури: Activpilot поворотно-відкидна, колір білий
  • Підбір спеціальний: Activ микровентиляція; Activ 2-функц. механ.
  • Моск.сітка: МС 3
  • Підвіконня: ВМ 110мм, колір білий
  • Підвіконня: ПВ ПВХ 150, заглушки: 600мм, колір білий
  • Монтаж

0 грн.

Двері (комплектність):

  • Полотно
  • Коробка
  • Лиштва
  • Карниз
  • Фарбування
  • Скло
  • Фурнітура
  • Врізка фурнітуры
  • Монтаж

507780 грн.

Фарбування (комплектність):

  • Шліфування торців
  • Тришарове покриття ефективним деревозахисним засобом на базі низькомолекулярної алкідної смоли методом розпилення.

Параметри забудови

  • Кількість поверхів: 1
  • Площа: 173

Розмір забудови

  • Ширина: 10.9
  • Довжина: 17.8

Перший поверх

зал (м²)124,8
тераса (м²)21,3
санувузол (м²)4,7
коридор (м²)22,2

Оциліндрований брус

Оциліндрований брус є найбільш оптимальним і поширеним матеріалом для будівництва дерев`яних будинків і бань, бесідок, альтанок, різноманітних садових меблів, дерев`яних конструкцій будь-яких видів. Дерев`яні будинки з оциліндрованого брусу відрізняються красою, всередині такого будинку завжди відчувається особлива затишна атмосфера.

Читати далі...

Профільований брус

Найсучаснішим і високотехнологічним будівельним матеріалом в дерев`яному будівництві на сьогоднішній день є профільований брус. Для виробництва профільованого брусу, звичайному дерев`яному брусу на спеціальному деревообробному обладнанні надається певний профіль.

Читати далі...

Подвійний брус з утепленням

Головна ідея застосування подвійного бруса полягала в досягненні енергоефективності житла. Над проектуванням енергозберігаючих будинків працюють провідні інженери та архітектори в різних країнах світу, запропонована фінами технологія подвійного бруса дає можливість звести до мінімуму тепловтрати будинку, а також об`єднує переваги будівництва дерев`яного будинку з економічністю споруди.

Читати далі...

Клеєний брус

Клеєний брус принципово відрізняється від інших типів колод багатошаровістю. Така структура робить цей дерев’яний матеріал надміцним і витривалим.

Читати далі...

Каркасні конструкції

Каркасні конструкції виготовляються на власних виробничих потужностях компанії «Домінант», з використанням сучасних деревообробних станків. Імпортне, високоточне обладнання дозволяє нам високоякісно виконувати свою роботу. Каркаси складаються зі струганих, ретельно висушених балок 150х50 мм (сосна першого сорту). Ці балки застосовуються для зовнішніх каркасів.

Читати далі...

Немає відгуків

Переглянуті товари

16 інших товарів в цій категорії:

Товар додано для порівняння.