Зателефонуйте мені
Ерена №1
Ерена №2
Ерена №3
Ерена №4
Ерена №5
Ерена №6
Ерена №1
Ерена №2
Ерена №3
Ерена №4
Ерена №5
Ерена №6
Ерена №1
Ерена №1 Ерена №2 Ерена №3 Ерена №4 Ерена №5 Ерена №6

Ерена

759 055,00 ₴
Павільйон з лазнею і альтанкою 7,4 на 21,5 м - «Ерена»
Розмір брусу
  • Оциліндрований 160
  • Оциліндрований 180
  • Оциліндрований 200
  • Оциліндрований 220
  • Профільований 60
  • Профільований 150
  • Профільований 200
  • Подвійний 300
  • Клеєний 120
  • Клеєний 180
Кількість поверхів
1
Площа
128
Ширина
7.4
Довжина
21.5
Комерційні будівлі
Бази відпочинку
Садові та господарські споруди
Бані
Бані з оциліндрованого брусу
Павільйони
 

(Що входить в ціну)

Що входить в базову комплектацію

  • комплект стін;
  • комплект крокв;
  • комплект балок перекриття;
  • утеплювач міжвінцевий;
  • антисептик (антисептування всього матеріалу);
  • дубові нагеля;
  • кріпильні материали (саморізи, усадкові болти, анкера, кріпильні пластини);
  • гідроізоляція;
  • вогнебіозахист (обробка деревини засобом І групи вогнезахисної ефективності)

Проект павільйону з лазнею і альтанкою «Ерена»

Павільйон «Ерена» виглядає цікаво і масштабно. Це подовжена, дерев’яна будівля, виконана з оциліндрованих колод. При першому погляді на споруду можна відзначити, що проект «Ерена» складається з двох частин: відкритої, незаскленої веранди і закритого приміщення. В цілому, екстер’єр будівлі максимально простий, без надмірностей. Такий стандартний оциліндрований зруб буде мати гарний вигляд на будь-якій ділянці і гармонійно зливатися з навколишньою природою, по суті, будучи її частиною.

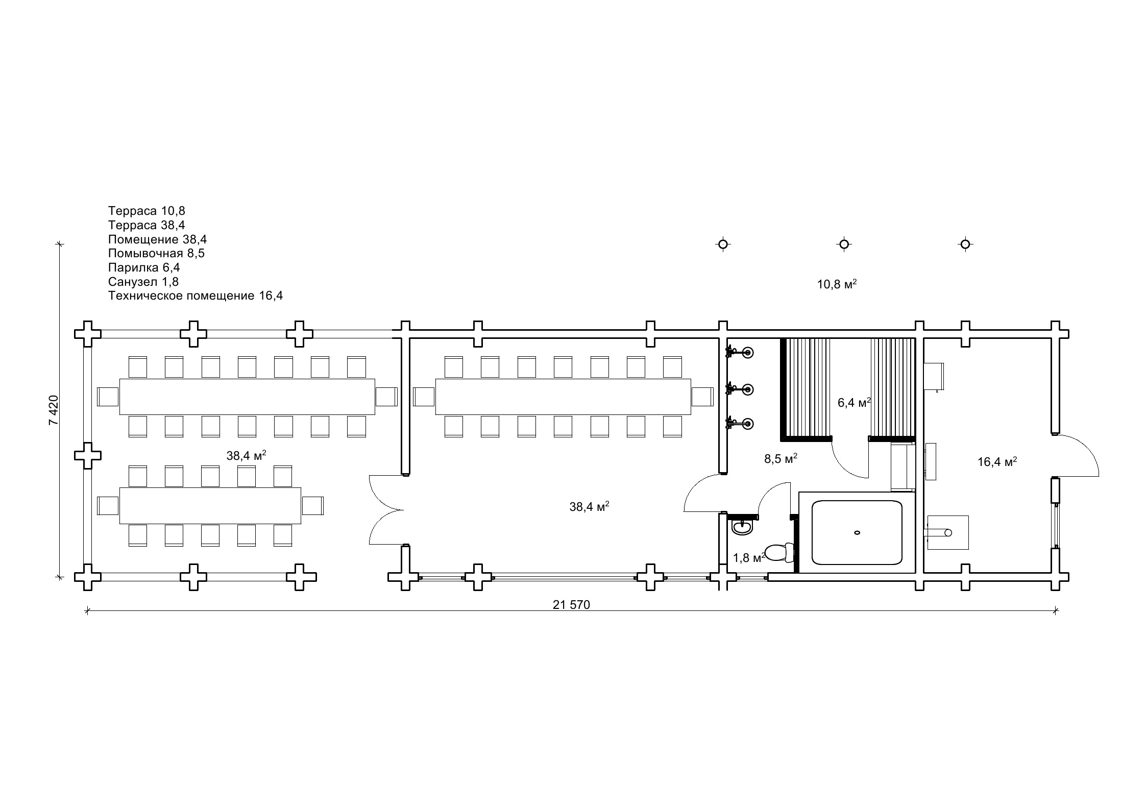
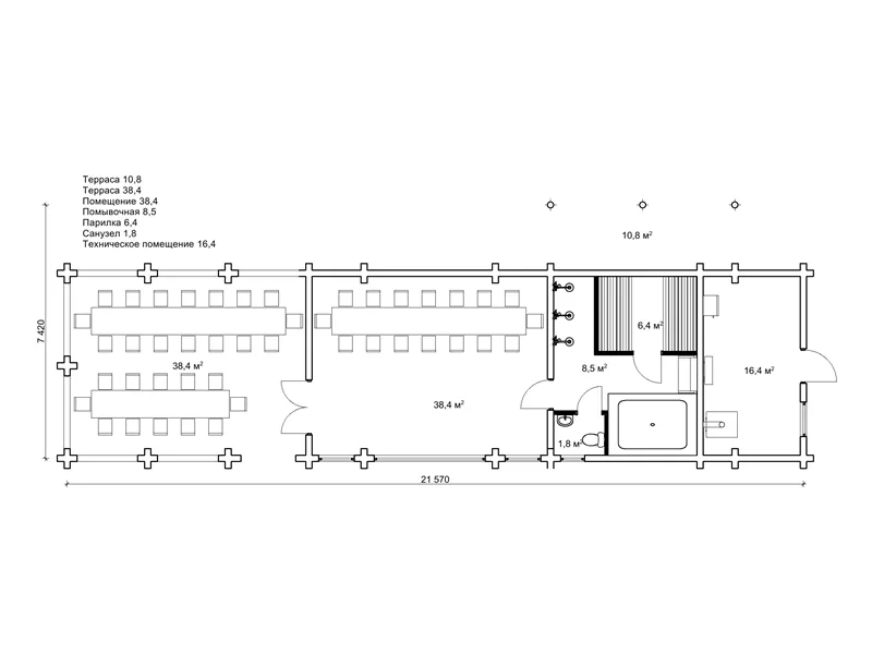
Планування павільйону з лазнею і альтанкою для комерції, площа 128 м2

Планування проекту «Ерена» створювалося повністю на основі побажань замовника, який розраховував побудувати дерев’яний павільйон на своїй базі відпочинку для комерційних цілей. Для клієнта при створенні проекту найголовнішим було зручність гостей закладу і економія бюджету. Основним завданням архітектора було домогтися оптимального співвідношення ціна/якість, щоб клієнт при мінімальних капіталовкладеннях отримав максимальну вигоду. Таким чином, параметри забудови склали 7,4 на 21,5 м, а загальна площа 128 м2. Усередині павільйону є велика відкрита альтанка площею 38,4 м2, такий же за розмірами закритий зал, звідки можна пройти в приміщення лазні площею 16,7 м2. Площа самої парилки досить простора, вона становить 6,4 м2. Тут буде зручно паритися одночасно компанії з кількох людей. За лазнею сплановано технічне приміщення розміром 16,4 м2 з окремим входом з боку вулиці. Також прямо за приміщенням лазні є навіс 10,8 м2 під зберігання дров для баньки. Запропонований нашим архітектором план був повністю схвалений і прийнятий замовником. Тепер переваги проекту «Ерена» зможуть оцінити численні гості цієї дерев’яної лазні з альтанкою.

Реалізація проекту павільйону «Ерена»

Фахівці нашого підприємства реалізують проект павільйону з лазнею і альтанкою «Ерена» на вашій ділянці для використання під бізнес, адже тут вже все підготовлено для відпочинку і банних процедур. Погодьтеся, що такий проект стане дуже вигідним в комерційному плані. «Ерена» - це проста будова, економічна по бюджету будівництва і невибаглива в експлуатації. Побудувати дерев’яний павільйон за готовим проектом «Ерена» буде найкращим рішенням для організації застіль з лазнею в заміському комплексі відпочинку з рестораном. Замовляйте в офісі «Домінант» реалізацію проекту павільйону з лазнею за вигідною ціною виробника!

Кількість поверхів
1
Площа
128
Ширина
7.4
Довжина
21.5
Комерційні будівлі
Бази відпочинку
Садові та господарські споруди
Бані
Бані з оциліндрованого брусу
Павільйони

Базова комплектація:
(Що входить в ціну)

Що входить в базову комплектацію

  • комплект стін;
  • комплект крокв;
  • комплект балок перекриття;
  • утеплювач міжвінцевий;
  • антисептик (антисептування всього матеріалу);
  • дубові нагеля;
  • кріпильні материали (саморізи, усадкові болти, анкера, кріпильні пластини);
  • гідроізоляція;
  • вогнебіозахист (обробка деревини засобом І групи вогнезахисної ефективності)

439830 грн.

Дах (комплектність):

  • Рейка 100*25мм (cосна)
  • Контрейка 50*25мм (сосна)
  • Металочерепиця МОНТЕРРЕЙ (Польща) 0,45мм
  • Коник прямий
  • Планка примикання
  • Лобова (декоративна) планка
  • Вітровая планка
  • Яндола
  • Капельник (Карнизна планка)
  • Ущільнювач універсальный
  • Саморізи ОС 4.8х35
  • Фарба-спрей
  • Гідробар'єр
  • Монтаж

157860 грн.

Вікна (комплектність):

  • Вікно VEKA 58, колір білий 10
  • Імпости вертикальні: 1 x 102103
  • Скління: СПО, 24мм, (Rсп=0.36)*
  • Тип фурнітури: Activpilot поворотно-відкидна, колір білий
  • Підбір спеціальний: Activ микровентиляція; Activ 2-функц. механ.
  • Моск.сітка: МС 3
  • Підвіконня: ВМ 110мм, колір білий
  • Підвіконня: ПВ ПВХ 150, заглушки: 600мм, колір білий
  • Монтаж

125400 грн.

Двері (комплектність):

  • Полотно
  • Коробка
  • Лиштва
  • Карниз
  • Фарбування
  • Скло
  • Фурнітура
  • Врізка фурнітуры
  • Монтаж

153636 грн.

Фарбування (комплектність):

  • Шліфування торців
  • Тришарове покриття ефективним деревозахисним засобом на базі низькомолекулярної алкідної смоли методом розпилення.

Параметри забудови

  • Кількість поверхів: 1
  • Площа: 128

Розмір забудови

  • Ширина: 7.4
  • Довжина: 21.5

Перший поверх

тераса (м²)10,8
тераса (м²)38,4
приміщення(м²)38,4
пмивочна (м²)8,5
парилка (м²)6,4
санвузол (м²)1,8
тех. приміщення (м²)16,4

Оциліндрований брус

Оциліндрований брус є найбільш оптимальним і поширеним матеріалом для будівництва дерев`яних будинків і бань, бесідок, альтанок, різноманітних садових меблів, дерев`яних конструкцій будь-яких видів. Дерев`яні будинки з оциліндрованого брусу відрізняються красою, всередині такого будинку завжди відчувається особлива затишна атмосфера.

Читати далі...

Профільований брус

Найсучаснішим і високотехнологічним будівельним матеріалом в дерев`яному будівництві на сьогоднішній день є профільований брус. Для виробництва профільованого брусу, звичайному дерев`яному брусу на спеціальному деревообробному обладнанні надається певний профіль.

Читати далі...

Подвійний брус з утепленням

Головна ідея застосування подвійного бруса полягала в досягненні енергоефективності житла. Над проектуванням енергозберігаючих будинків працюють провідні інженери та архітектори в різних країнах світу, запропонована фінами технологія подвійного бруса дає можливість звести до мінімуму тепловтрати будинку, а також об`єднує переваги будівництва дерев`яного будинку з економічністю споруди.

Читати далі...

Клеєний брус

Клеєний брус принципово відрізняється від інших типів колод багатошаровістю. Така структура робить цей дерев’яний матеріал надміцним і витривалим.

Читати далі...

Каркасні конструкції

Каркасні конструкції виготовляються на власних виробничих потужностях компанії «Домінант», з використанням сучасних деревообробних станків. Імпортне, високоточне обладнання дозволяє нам високоякісно виконувати свою роботу. Каркаси складаються зі струганих, ретельно висушених балок 150х50 мм (сосна першого сорту). Ці балки застосовуються для зовнішніх каркасів.

Читати далі...

Немає відгуків

16 інших товарів в цій категорії:

Товар додано для порівняння.