Зателефонуйте мені
Маель №1
Маель №2
Маель №3
Маель №4
Маель №5
Маель №6
Маель №7
Маель №8
Маель №9
Маель №10
Маель №11
Маель №12
Маель №1
Маель №2
Маель №3
Маель №4
Маель №5
Маель №6
Маель №7
Маель №8
Маель №9
Маель №10
Маель №11
Маель №12
Маель №1
Маель №1 Маель №2 Маель №3 Маель №4 Маель №5 Маель №6 Маель №7 Маель №8 Маель №9 Маель №10 Маель №11 Маель №12

Маель

745 050,00 ₴
Будинок -баня 7,9 на 8,4 м з мансардою - «Маель»
Розмір брусу
  • Оциліндрований 160
  • Оциліндрований 180
  • Оциліндрований 200
  • Оциліндрований 220
  • Профільований 60
  • Профільований 150
  • Профільований 200
  • Подвійний 300
  • Клеєний 120
  • Клеєний 180
Кількість поверхів
2
Площа
132.8
Ширина
7.9
Довжина
8.4
Будинки і житлові будови
Дачі
Котеджі
Кількість кімнат
Трикімнатні будинки
Особливості будинків
Будинки з мансардою
Будинки з терасою
Будинки зі сходами
Кількість поверхів споруди
Двоповерхові будинки
Будинки з брусу
Будинки з оциліндрованого брусу
Садові та господарські споруди
Бані
Бані з оциліндрованого брусу
 

(Що входить в ціну)

Що входить в базову комплектацію

  • комплект стін;
  • комплект крокв;
  • комплект балок перекриття;
  • утеплювач міжвінцевий;
  • антисептик (антисептування всього матеріалу);
  • дубові нагеля;
  • кріпильні материали (саморізи, усадкові болти, анкера, кріпильні пластини);
  • гідроізоляція;
  • вогнебіозахист (обробка деревини засобом І групи вогнезахисної ефективності)

Проект будинку-лазні «Маель» 7,9 на 8,4 м

Дерев’яний будиночок «Маель» підкорює серце з першого погляду акуратними фасадами з симетричними віконцями, затишним ґаночком під масивним мансардним дахом. Будиночок виглядає компактно, але ошатно завдяки великим розмірам вікон і симетричному їх розташуванню. Звернемо увагу на одноповерхову прибудову біля будинку під окремим скатом даху. Таке проектування котеджу зі зрубу пояснюється внутрішнім наповненням будинку, спланованим відповідно до індивідуальних побажань господарів.

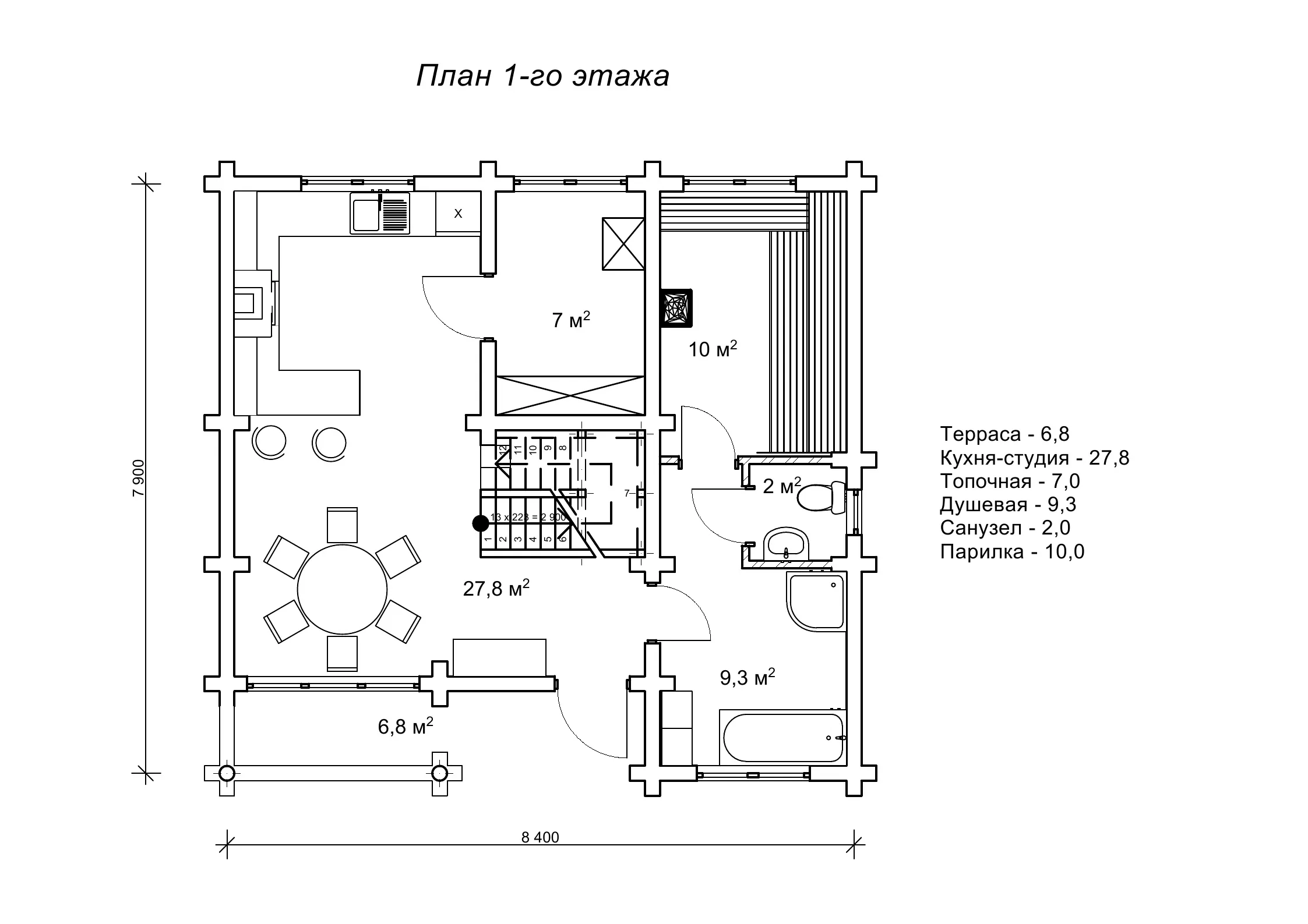
Планування будинку-лазні з мансардою, площа 132,8 м2

Габаритні розміри будинку з лазнею «Маель» складають 7,9 на 8,4 м з урахуванням одноповерхової прибудови до будинку. Під горищним простором спроектована мансарда розміром 7,9 на 5,7 м. Загальна площа двох поверхів становить 132,8 м2. Перший поверх будинку-лазні починається зі входу на вузеньку терасу - ґанок площею 6,8 м2. Далі розташована кухня-студія площею 27,8 м2 зі сходовою зоною і входом в приміщення для протоплювання на 7 м2. Також із загального приміщення кухні-студії можна пройти в прибудову, відведену під баню. Тут є дуже простора парилка площею 10 м2, санвузол розміром 2 м2 і душова на 9,3 м2. Дуже зручно, що приміщення лазні винесені окремим блоком, і для того, щоб попаритися або прийняти душ після лазні немає необхідності проходити через зал з кухнею. На другому поверсі розташовані дві досить просторі спальні і коридор площею 10,2 м2. Таке планування робить проект «Маель» розкішним вибором для зручного, заміського проживання з постійним доступом до банних процедур. Цей же проект рекомендуємо і для комерційного використання, так як він може принести гарний прибуток від здавання в оренду завдяки наявності двох спалень і величезної переваги у вигляді власної лазні в котеджі.

Виробництво комплекту будинку-лазні «Маель» з соснового брусу

Виробництво дерев’яного зрубу з оциліндрованих колод сосни за проектом «Маель» компанія «Домінант» виконує в базовій комплектації, детальний перелік якої ви знайдете на цій сторінці поруч з цінами споруди. За індивідуальним побажанням клієнта ми можемо доповнити дерев’яний зруб додатковими деталями - змонтувати покрівлю, поставити вікна, двері, настелити підлогу і т.д. Крім того, ми співпрацюємо з підприємством, яке займається оснащенням лазень. Тому звернувшись до нас, ви отримаєте готовий дерев’яний зруб з обробкою і лазнею. А при замовленні будівництва будинку з лазнею «Маель» обов’язково ознайомтеся з корисною інформацією про те, що потрібно знати при будівництві лазні на нашому сайті в розділі «Статті».

Кількість поверхів
2
Площа
132.8
Ширина
7.9
Довжина
8.4
Будинки і житлові будови
Дачі
Котеджі
Кількість кімнат
Трикімнатні будинки
Особливості будинків
Будинки з мансардою
Будинки з терасою
Будинки зі сходами
Кількість поверхів споруди
Двоповерхові будинки
Будинки з брусу
Будинки з оциліндрованого брусу
Садові та господарські споруди
Бані
Бані з оциліндрованого брусу

Базова комплектація:
(Що входить в ціну)

Що входить в базову комплектацію

  • комплект стін;
  • комплект крокв;
  • комплект балок перекриття;
  • утеплювач міжвінцевий;
  • антисептик (антисептування всього матеріалу);
  • дубові нагеля;
  • кріпильні материали (саморізи, усадкові болти, анкера, кріпильні пластини);
  • гідроізоляція;
  • вогнебіозахист (обробка деревини засобом І групи вогнезахисної ефективності)

279450 грн.

Дах (комплектність):

  • Рейка 100*25мм (cосна)
  • Контрейка 50*25мм (сосна)
  • Металочерепиця МОНТЕРРЕЙ (Польща) 0,45мм
  • Коник прямий
  • Планка примикання
  • Лобова (декоративна) планка
  • Вітровая планка
  • Яндола
  • Капельник (Карнизна планка)
  • Ущільнювач універсальный
  • Саморізи ОС 4.8х35
  • Фарба-спрей
  • Гідробар'єр
  • Монтаж

280640 грн.

Вікна (комплектність):

  • Вікно VEKA 58, колір білий 10
  • Імпости вертикальні: 1 x 102103
  • Скління: СПО, 24мм, (Rсп=0.36)*
  • Тип фурнітури: Activpilot поворотно-відкидна, колір білий
  • Підбір спеціальний: Activ микровентиляція; Activ 2-функц. механ.
  • Моск.сітка: МС 3
  • Підвіконня: ВМ 110мм, колір білий
  • Підвіконня: ПВ ПВХ 150, заглушки: 600мм, колір білий
  • Монтаж

41800 грн.

Двері (комплектність):

  • Полотно
  • Коробка
  • Лиштва
  • Карниз
  • Фарбування
  • Скло
  • Фурнітура
  • Врізка фурнітуры
  • Монтаж

175336 грн.

Фарбування (комплектність):

  • Шліфування торців
  • Тришарове покриття ефективним деревозахисним засобом на базі низькомолекулярної алкідної смоли методом розпилення.

Параметри забудови

  • Кількість поверхів: 2
  • Площа: 132.8

Розмір забудови

  • Ширина: 7.9
  • Довжина: 8.4

Перший поверх

тераса (м²)6,8
кухня-студія (м²)27,8
топочна (м²)7,0
душова (м²)9,3
санвузол (м²)2,0
парилка (м²)10,0

Другий поверх

коридор (м²)10,2
спальня (м²)11,2
спальня (м²)16,2

Оциліндрований брус

Оциліндрований брус є найбільш оптимальним і поширеним матеріалом для будівництва дерев`яних будинків і бань, бесідок, альтанок, різноманітних садових меблів, дерев`яних конструкцій будь-яких видів. Дерев`яні будинки з оциліндрованого брусу відрізняються красою, всередині такого будинку завжди відчувається особлива затишна атмосфера.

Читати далі...

Профільований брус

Найсучаснішим і високотехнологічним будівельним матеріалом в дерев`яному будівництві на сьогоднішній день є профільований брус. Для виробництва профільованого брусу, звичайному дерев`яному брусу на спеціальному деревообробному обладнанні надається певний профіль.

Читати далі...

Подвійний брус з утепленням

Головна ідея застосування подвійного бруса полягала в досягненні енергоефективності житла. Над проектуванням енергозберігаючих будинків працюють провідні інженери та архітектори в різних країнах світу, запропонована фінами технологія подвійного бруса дає можливість звести до мінімуму тепловтрати будинку, а також об`єднує переваги будівництва дерев`яного будинку з економічністю споруди.

Читати далі...

Клеєний брус

Клеєний брус принципово відрізняється від інших типів колод багатошаровістю. Така структура робить цей дерев’яний матеріал надміцним і витривалим.

Читати далі...

Каркасні конструкції

Каркасні конструкції виготовляються на власних виробничих потужностях компанії «Домінант», з використанням сучасних деревообробних станків. Імпортне, високоточне обладнання дозволяє нам високоякісно виконувати свою роботу. Каркаси складаються зі струганих, ретельно висушених балок 150х50 мм (сосна першого сорту). Ці балки застосовуються для зовнішніх каркасів.

Читати далі...

Немає відгуків

16 інших товарів в цій категорії:

Товар додано для порівняння.