Тангора
- Кількість поверхів
- 2
- Площа
- 222.5
- Ширина
- 9.7
- Довжина
- 15.7
- Будинки і житлові будови
- Маєтки
Садиби - Кількість кімнат
- Двокімнатні будинки
- Особливості будинків
- Будинки з балконом
Будинки з котельнею
Будинки з мансардою
Будинки з терасою
Будинки зі сходами - Кількість поверхів споруди
- Двоповерхові будинки
- Будинки з брусу
- Будинки з оциліндрованого брусу
(Що входить в ціну)
- комплект стін;
- комплект крокв;
- комплект балок перекриття;
- утеплювач міжвінцевий;
- антисептик (антисептування всього матеріалу);
- дубові нагеля;
- кріпильні материали (саморізи, усадкові болти, анкера, кріпильні пластини);
- гідроізоляція;
- вогнебіозахист (обробка деревини засобом І групи вогнезахисної ефективності)
Проект дерев’яного маєтку з басейном «Тангора»
Чудовий дерев’яний маєток «Тангора» з великими панорамними вікнами, мальовничими балконами і добротними стінами з масивного зрубу вражає презентабельністю. Увагу в першу чергу привертає бічна прибудова, тому що її велика площа скління наводить на думку про те, що там може бути спроектовано зимовий сад, веранда або приміщення з басейном. Споруда виконується з мансардою, яка ще більше збільшує внутрішній функціонал будинку. Зрозуміло, що такі архітектурні особливості маєтку з бруса викликані його внутрішнім наповненням. Давайте розглянемо докладніше планування проекту «Тангора».
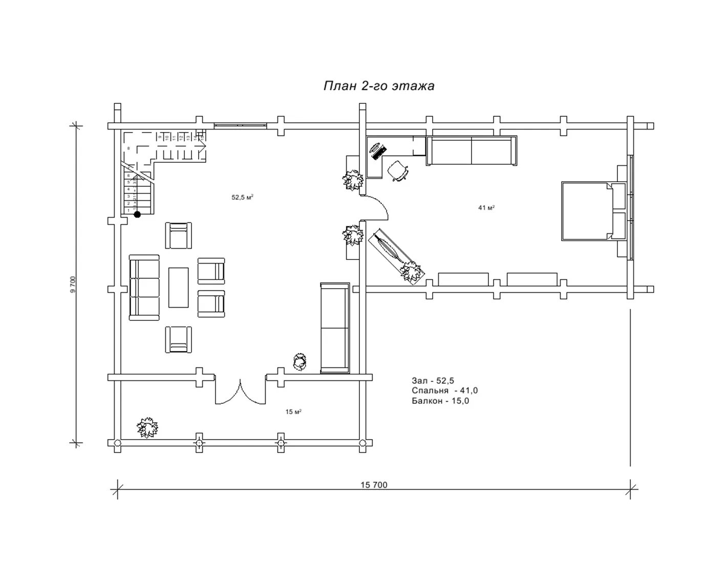
Планування проекту «Тангора» з басейном
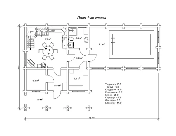
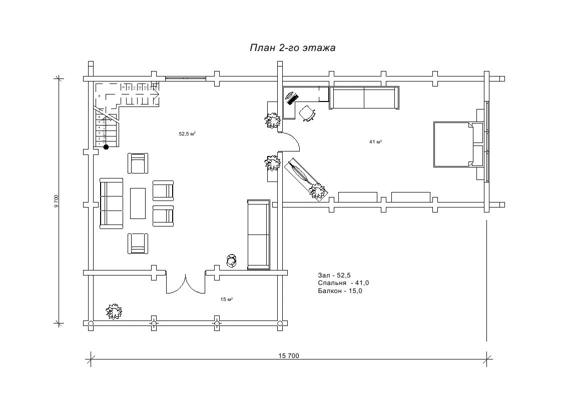
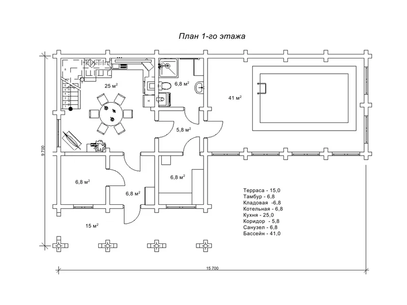
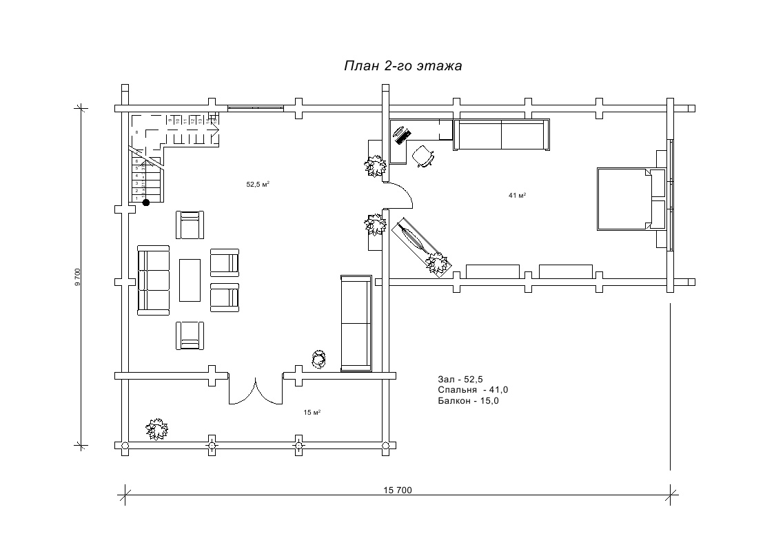
«Тангора» характеризується значними габаритами будівлі, які становлять 9,7 на 15,7 м. Відповідно площа маєтку включно з мансардою становить 222,5 м2. Така дерев’яна конструкція займає велику земельну ділянку і її, без сумнівів, варто будувати виключно в мальовничому куточку природи. Перший поверх починається із затишної тераси площею 15 м2, приміщень тамбура і комори. Далі слідує приміщення кухні зі сходової зоною, яка веде на мансарду, де відчувається широта простору і виникає маса ідей по створенню оригінального інтер’єру. Адже площа залу становить - 52,5 м2, а спальні - 41 м2. Тепер йдемо в найцікавішу частина споруди - приміщення басейну розміром 41 м2. Він відділений від житлової зони спеціальним коридорчиком, яка не впустить підвищену вологість від басейну в інші кімнати маєтку. На першому поверсі також розташований санвузол і котельня. Бачимо, що планування грамотно продумане і оснащене не тільки просторими приміщеннями для розкішного відпочинку, але й підсобними кімнатами для зручної організації побуту.
Споруда зрубу з басейном по проекту «Тангора»
Дерев’яний будинок з басейном «Тангора» створювався для насолоди природою і плаванням в домашній водоймі. Це справжнє джерело здоров’я, життєвих сил та антистрес для повного перезавантаження нервової системи. Яскравий проект маєтку з просторими кімнатами і басейном - це важливе придбання мудрого господаря, який бажає забезпечити найвищу якість життя для себе й своєї родини.
- Кількість поверхів
- 2
- Площа
- 222.5
- Ширина
- 9.7
- Довжина
- 15.7
- Будинки і житлові будови
- Маєтки
Садиби - Кількість кімнат
- Двокімнатні будинки
- Особливості будинків
- Будинки з балконом
Будинки з котельнею
Будинки з мансардою
Будинки з терасою
Будинки зі сходами - Кількість поверхів споруди
- Двоповерхові будинки
- Будинки з брусу
- Будинки з оциліндрованого брусу
Базова комплектація:
(Що входить в ціну)
- комплект стін;
- комплект крокв;
- комплект балок перекриття;
- утеплювач міжвінцевий;
- антисептик (антисептування всього матеріалу);
- дубові нагеля;
- кріпильні материали (саморізи, усадкові болти, анкера, кріпильні пластини);
- гідроізоляція;
- вогнебіозахист (обробка деревини засобом І групи вогнезахисної ефективності)
554040 грн.
Дах (комплектність):
- Рейка 100*25мм (cосна)
- Контрейка 50*25мм (сосна)
- Металочерепиця МОНТЕРРЕЙ (Польща) 0,45мм
- Коник прямий
- Планка примикання
- Лобова (декоративна) планка
- Вітровая планка
- Яндола
- Капельник (Карнизна планка)
- Ущільнювач універсальный
- Саморізи ОС 4.8х35
- Фарба-спрей
- Гідробар'єр
- Монтаж
508660 грн.
Вікна (комплектність):
- Вікно VEKA 58, колір білий 10
- Імпости вертикальні: 1 x 102103
- Скління: СПО, 24мм, (Rсп=0.36)*
- Тип фурнітури: Activpilot поворотно-відкидна, колір білий
- Підбір спеціальний: Activ микровентиляція; Activ 2-функц. механ.
- Моск.сітка: МС 3
- Підвіконня: ВМ 110мм, колір білий
- Підвіконня: ПВ ПВХ 150, заглушки: 600мм, колір білий
- Монтаж
83600 грн.
Двері (комплектність):
- Полотно
- Коробка
- Лиштва
- Карниз
- Фарбування
- Скло
- Фурнітура
- Врізка фурнітуры
- Монтаж
248248 грн.
Фарбування (комплектність):
- Шліфування торців
- Тришарове покриття ефективним деревозахисним засобом на базі низькомолекулярної алкідної смоли методом розпилення.
Оциліндрований брус
Оциліндрований брус є найбільш оптимальним і поширеним матеріалом для будівництва дерев`яних будинків і бань, бесідок, альтанок, різноманітних садових меблів, дерев`яних конструкцій будь-яких видів. Дерев`яні будинки з оциліндрованого брусу відрізняються красою, всередині такого будинку завжди відчувається особлива затишна атмосфера.
Профільований брус
Найсучаснішим і високотехнологічним будівельним матеріалом в дерев`яному будівництві на сьогоднішній день є профільований брус. Для виробництва профільованого брусу, звичайному дерев`яному брусу на спеціальному деревообробному обладнанні надається певний профіль.
Подвійний брус з утепленням
Головна ідея застосування подвійного бруса полягала в досягненні енергоефективності житла. Над проектуванням енергозберігаючих будинків працюють провідні інженери та архітектори в різних країнах світу, запропонована фінами технологія подвійного бруса дає можливість звести до мінімуму тепловтрати будинку, а також об`єднує переваги будівництва дерев`яного будинку з економічністю споруди.
Клеєний брус
Клеєний брус принципово відрізняється від інших типів колод багатошаровістю. Така структура робить цей дерев’яний матеріал надміцним і витривалим.
Каркасні конструкції
Каркасні конструкції виготовляються на власних виробничих потужностях компанії «Домінант», з використанням сучасних деревообробних станків. Імпортне, високоточне обладнання дозволяє нам високоякісно виконувати свою роботу. Каркаси складаються зі струганих, ретельно висушених балок 150х50 мм (сосна першого сорту). Ці балки застосовуються для зовнішніх каркасів.

















