Дегіс
- Кількість поверхів
- 1
- Площа
- 199.6
- Ширина
- 14.3
- Довжина
- 14.8
- Будинки і житлові будови
- Дачі
Котеджі - Кількість кімнат
- П’ятикімнатні будинки
- Особливості будинків
- Будинки з котельнею
Будинки з терасою - Кількість поверхів споруди
- Одноповерхові будинки
(Що входить в ціну)
- комплект стін;
- комплект крокв;
- комплект балок перекриття;
- утеплювач міжвінцевий;
- антисептик (антисептування всього матеріалу);
- дубові нагеля;
- кріпильні материали (саморізи, усадкові болти, анкера, кріпильні пластини);
- гідроізоляція;
- вогнебіозахист (обробка деревини засобом І групи вогнезахисної ефективності)
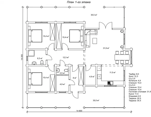
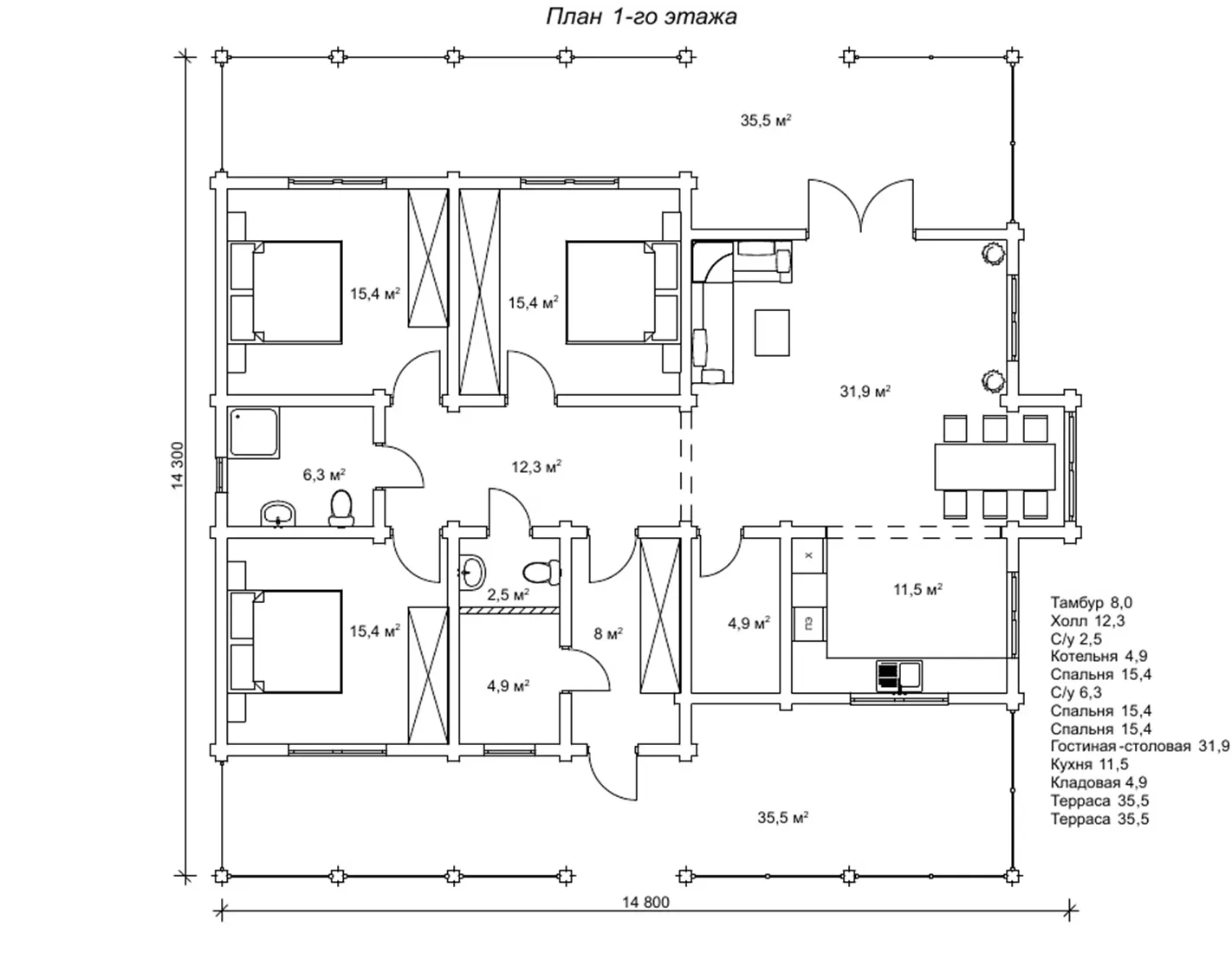
Одноповерховий котедж з розкішними терасами Дегіс є дуже привабливим варіантом облаштування заміського відпочинку і проживання. Будинок побудований з сухого профільованого бруса власного виробництва компанії «Домінант» dominant-wood.com.ua/. Великі тераси і величезні вікна оригінально прикрашають фасади котеджу, лаконічний дизайн і стильна стриманість викликають бажання зайти в будинок і придивитися уважніше до внутрішнього планування. Внутрішнє наповнення дозволяє розглядати проект Дегіс як комфортабельну заміську дачу, де можна по-справжньому відпочити, повністю розслабитися і відчути себе знову наповненим силами. Простора, світла вітальня і їдальня об’єднані в однин студійний простір. З вітальні є вихід на велику, відкриту терасу.
Конструкція терас в цьому проекті максимально відкрита, це дозволяє прикрасити їх в’юнкими рослинами, створюючи ефект зелених стін. Або посадити виноград. Уявіть, як приємно десь в кінці літа відпочивати на власній терасі і милуватися гронами винограду, що якраз починає дозрівати. Пропонований проект цілком підходить в якості житлового будинку. Адже плануванням котеджу пропонується три спальні, де зручно на одному поверсі може розміститися вся сім’я. Така кількість спалень підійде для сім’ї з дітками або сім’ї, яка мешкає з літніми батьками, яким важко ходити по сходах.
Ще однією особливістю планування одноповерхового котеджу Дегіс є те, що в будинку спроектовано два санвузли. Хоча зазвичай таким плануванням, продуманим до найдрібніших деталей, можуть похвалитися тільки двоповерхові проекти будинків. У дерев’яному будинку з бруса Дегіс dominant-wood.com.ua/uk/proekty/617-degis все придумано для максимального комфорту господарів. Будинок із сухого профільованого бруса з великими вікнами в оточенні літніх терас подарує багато затишку і домашнього тепла своїм домочадцям.
- Кількість поверхів
- 1
- Площа
- 199.6
- Ширина
- 14.3
- Довжина
- 14.8
- Будинки і житлові будови
- Дачі
Котеджі - Кількість кімнат
- П’ятикімнатні будинки
- Особливості будинків
- Будинки з котельнею
Будинки з терасою - Кількість поверхів споруди
- Одноповерхові будинки
Базова комплектація:
(Що входить в ціну)
- комплект стін;
- комплект крокв;
- комплект балок перекриття;
- утеплювач міжвінцевий;
- антисептик (антисептування всього матеріалу);
- дубові нагеля;
- кріпильні материали (саморізи, усадкові болти, анкера, кріпильні пластини);
- гідроізоляція;
- вогнебіозахист (обробка деревини засобом І групи вогнезахисної ефективності)
427680 грн.
Дах (комплектність):
- Рейка 100*25мм (cосна)
- Контрейка 50*25мм (сосна)
- Металочерепиця МОНТЕРРЕЙ (Польща) 0,45мм
- Коник прямий
- Планка примикання
- Лобова (декоративна) планка
- Вітровая планка
- Яндола
- Капельник (Карнизна планка)
- Ущільнювач універсальный
- Саморізи ОС 4.8х35
- Фарба-спрей
- Гідробар'єр
- Монтаж
350800 грн.
Вікна (комплектність):
- Вікно VEKA 58, колір білий 10
- Імпости вертикальні: 1 x 102103
- Скління: СПО, 24мм, (Rсп=0.36)*
- Тип фурнітури: Activpilot поворотно-відкидна, колір білий
- Підбір спеціальний: Activ микровентиляція; Activ 2-функц. механ.
- Моск.сітка: МС 3
- Підвіконня: ВМ 110мм, колір білий
- Підвіконня: ПВ ПВХ 150, заглушки: 600мм, колір білий
- Монтаж
459800 грн.
Двері (комплектність):
- Полотно
- Коробка
- Лиштва
- Карниз
- Фарбування
- Скло
- Фурнітура
- Врізка фурнітуры
- Монтаж
193564 грн.
Фарбування (комплектність):
- Шліфування торців
- Тришарове покриття ефективним деревозахисним засобом на базі низькомолекулярної алкідної смоли методом розпилення.
Параметри забудови
- Кількість поверхів: 1
- Площа: 199.6
Розмір забудови
- Ширина: 14.3
- Довжина: 14.8
Перший поверх
| вітальня (м²) | 31,9 |
| комора (м²) | 4,9 |
| кімната (м²) | 11,5 |
| кухня (м²) | 11,5 |
| с/в (м²) | 2,5 |
| с/в (м²) | 6,3 |
| спальня (м²) | 15,4 |
| спальня (м²) | 15,4 |
| спальня (м²) | 15,4 |
| тамбур (м²) | 8 |
| тераса (м²) | 35,5 |
| тераса (м²) | 35,5 |
| топкова (м²) | 4,9 |
| хол (м²) | 12,3 |
Оциліндрований брус
Оциліндрований брус є найбільш оптимальним і поширеним матеріалом для будівництва дерев`яних будинків і бань, бесідок, альтанок, різноманітних садових меблів, дерев`яних конструкцій будь-яких видів. Дерев`яні будинки з оциліндрованого брусу відрізняються красою, всередині такого будинку завжди відчувається особлива затишна атмосфера.
Профільований брус
Найсучаснішим і високотехнологічним будівельним матеріалом в дерев`яному будівництві на сьогоднішній день є профільований брус. Для виробництва профільованого брусу, звичайному дерев`яному брусу на спеціальному деревообробному обладнанні надається певний профіль.
Подвійний брус з утепленням
Головна ідея застосування подвійного бруса полягала в досягненні енергоефективності житла. Над проектуванням енергозберігаючих будинків працюють провідні інженери та архітектори в різних країнах світу, запропонована фінами технологія подвійного бруса дає можливість звести до мінімуму тепловтрати будинку, а також об`єднує переваги будівництва дерев`яного будинку з економічністю споруди.
Клеєний брус
Клеєний брус принципово відрізняється від інших типів колод багатошаровістю. Така структура робить цей дерев’яний матеріал надміцним і витривалим.
Каркасні конструкції
Каркасні конструкції виготовляються на власних виробничих потужностях компанії «Домінант», з використанням сучасних деревообробних станків. Імпортне, високоточне обладнання дозволяє нам високоякісно виконувати свою роботу. Каркаси складаються зі струганих, ретельно висушених балок 150х50 мм (сосна першого сорту). Ці балки застосовуються для зовнішніх каркасів.










