Зателефонуйте мені
Фазенда №1
Фазенда №2
Фазенда №3
Фазенда №4
Фазенда №5
Фазенда №6
Фазенда №7
Фазенда №1
Фазенда №2
Фазенда №3
Фазенда №4
Фазенда №5
Фазенда №6
Фазенда №7
Фазенда №1
Фазенда №1 Фазенда №2 Фазенда №3 Фазенда №4 Фазенда №5 Фазенда №6 Фазенда №7

Фазенда

805 266,00 ₴
Брусовий дачний будиночок 8,4 на 11 м - «Фазенда»
Розмір брусу
  • Оциліндрований 160
  • Оциліндрований 180
  • Оциліндрований 200
  • Оциліндрований 220
  • Профільований 60
  • Профільований 150
  • Профільований 200
  • Подвійний 300
  • Клеєний 120
  • Клеєний 180
Кількість поверхів
2
Площа
149.8
Ширина
11.2
Довжина
8.4
Будинки і житлові будови
Дачі
Котеджі
Кількість кімнат
Чотирикімнатні будинки
Особливості будинків
Будинки з другим світлом
Будинки з мансардою
Будинки з терасою
Будинки зі сходами
Будинки з ґанком
Кількість поверхів споруди
Двоповерхові будинки
Будинки з брусу
Будинки з оциліндрованого брусу
 

(Що входить в ціну)

Що входить в базову комплектацію

  • комплект стін;
  • комплект крокв;
  • комплект балок перекриття;
  • утеплювач міжвінцевий;
  • антисептик (антисептування всього матеріалу);
  • дубові нагеля;
  • кріпильні материали (саморізи, усадкові болти, анкера, кріпильні пластини);
  • гідроізоляція;
  • вогнебіозахист (обробка деревини засобом І групи вогнезахисної ефективності)

Фазенда - це проект досить великого двоповерхового дачного будинку з лазнею. Такий класичний дерев’яний котедж - будинок-баня стане прикрасою будь-якого заміської ділянки. Зовні привабливий будиночок вирізняється також цікавою внутрішньої «родзинкою». Друге світло над вітальнею поєднує простір першого і другого поверху, роблячи весь простір в будинку світлішим і просторішим. Наш проект Фазенда є класикою заміського будівництва.

У такому дерев’яному будинку з лазнею можна відпочити і оздоровитися, а також відчути максимальне наближення до природи. Він навряд чи підійде тим, хто хоче зробити дачу своєю другою домівкою, хоч і володіє всіма зручностями. Для однієї людини занадто просторо, а для сім’ї малуватий. Але це не заважає йому бути хорошим місцем для відпочинку. Що видно з першого погляду, так це приємну симетричність і невисокий, з невеликим скатом, дах. Така архітектурна деталь є дуже популярною, вона робить будинок на вигляд не таким високим і більш плавним, а поруч з великими гіллястими деревами це ще більше буде помітно.

Тераса невеликих розмірів з двома лавочками та мангалом для барбекю, виглядає дуже миловидно і закликає негайно всім цим скористатися і відпочити. Як самостійна одиниця або в комплексі з іншими сферами розваг і відпочинку, Фазенда dominant-wood.com.ua/uk/proekty/61-fazenda говорить сама за себе. Це літнє місце відпочинку і чіткого визначення його функцій немає, крім як дати можливість подихати свіжим повітрям, прийняти лазневі процедури або поніжитися на ліжку у вихідні, слухаючи пісні птахів за вікном і шум листя.

Кількість поверхів
2
Площа
149.8
Ширина
11.2
Довжина
8.4
Будинки і житлові будови
Дачі
Котеджі
Кількість кімнат
Чотирикімнатні будинки
Особливості будинків
Будинки з другим світлом
Будинки з мансардою
Будинки з терасою
Будинки зі сходами
Будинки з ґанком
Кількість поверхів споруди
Двоповерхові будинки
Будинки з брусу
Будинки з оциліндрованого брусу

Базова комплектація:
(Що входить в ціну)

Що входить в базову комплектацію

  • комплект стін;
  • комплект крокв;
  • комплект балок перекриття;
  • утеплювач міжвінцевий;
  • антисептик (антисептування всього матеріалу);
  • дубові нагеля;
  • кріпильні материали (саморізи, усадкові болти, анкера, кріпильні пластини);
  • гідроізоляція;
  • вогнебіозахист (обробка деревини засобом І групи вогнезахисної ефективності)

345060 грн.

Дах (комплектність):

  • Рейка 100*25мм (cосна)
  • Контрейка 50*25мм (сосна)
  • Металочерепиця МОНТЕРРЕЙ (Польща) 0,45мм
  • Коник прямий
  • Планка примикання
  • Лобова (декоративна) планка
  • Вітровая планка
  • Яндола
  • Капельник (Карнизна планка)
  • Ущільнювач універсальный
  • Саморізи ОС 4.8х35
  • Фарба-спрей
  • Гідробар'єр
  • Монтаж

298180 грн.

Вікна (комплектність):

  • Вікно VEKA 58, колір білий 10
  • Імпости вертикальні: 1 x 102103
  • Скління: СПО, 24мм, (Rсп=0.36)*
  • Тип фурнітури: Activpilot поворотно-відкидна, колір білий
  • Підбір спеціальний: Activ микровентиляція; Activ 2-функц. механ.
  • Моск.сітка: МС 3
  • Підвіконня: ВМ 110мм, колір білий
  • Підвіконня: ПВ ПВХ 150, заглушки: 600мм, колір білий
  • Монтаж

0 грн.

Двері (комплектність):

  • Полотно
  • Коробка
  • Лиштва
  • Карниз
  • Фарбування
  • Скло
  • Фурнітура
  • Врізка фурнітуры
  • Монтаж

141484 грн.

Фарбування (комплектність):

  • Шліфування торців
  • Тришарове покриття ефективним деревозахисним засобом на базі низькомолекулярної алкідної смоли методом розпилення.

Параметри забудови

  • Кількість поверхів: 2
  • Площа: 149.8

Розмір забудови

  • Ширина: 11.2
  • Довжина: 8.4

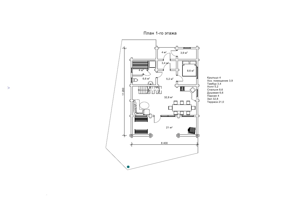
Перший поверх

душова (м²)6,6
зал (м²)32,8
кімната (м²)3,9
ганок (м²)4
парилка (м²)4,1
спальня (м²)8,6
тамбур (м²)3,4
тераса (м²)21
хол (м²)29,4

Другий поверх

друге світло (м²)31,1
спальня (м²)29,4

Оциліндрований брус

Оциліндрований брус є найбільш оптимальним і поширеним матеріалом для будівництва дерев`яних будинків і бань, бесідок, альтанок, різноманітних садових меблів, дерев`яних конструкцій будь-яких видів. Дерев`яні будинки з оциліндрованого брусу відрізняються красою, всередині такого будинку завжди відчувається особлива затишна атмосфера.

Читати далі...

Профільований брус

Найсучаснішим і високотехнологічним будівельним матеріалом в дерев`яному будівництві на сьогоднішній день є профільований брус. Для виробництва профільованого брусу, звичайному дерев`яному брусу на спеціальному деревообробному обладнанні надається певний профіль.

Читати далі...

Подвійний брус з утепленням

Головна ідея застосування подвійного бруса полягала в досягненні енергоефективності житла. Над проектуванням енергозберігаючих будинків працюють провідні інженери та архітектори в різних країнах світу, запропонована фінами технологія подвійного бруса дає можливість звести до мінімуму тепловтрати будинку, а також об`єднує переваги будівництва дерев`яного будинку з економічністю споруди.

Читати далі...

Клеєний брус

Клеєний брус принципово відрізняється від інших типів колод багатошаровістю. Така структура робить цей дерев’яний матеріал надміцним і витривалим.

Читати далі...

Каркасні конструкції

Каркасні конструкції виготовляються на власних виробничих потужностях компанії «Домінант», з використанням сучасних деревообробних станків. Імпортне, високоточне обладнання дозволяє нам високоякісно виконувати свою роботу. Каркаси складаються зі струганих, ретельно висушених балок 150х50 мм (сосна першого сорту). Ці балки застосовуються для зовнішніх каркасів.

Читати далі...

Немає відгуків

Переглянуті товари

16 інших товарів в цій категорії:

Товар додано для порівняння.