Білвер
- Кількість поверхів
- 2
- Площа
- 254
- Ширина
- 12.9
- Довжина
- 14.9
- Будинки і житлові будови
- Маєтки
Садиби - Кількість кімнат
- Шестикімнатні будинки
- Особливості будинків
- Будинки з балконом
Будинки зі сходами - Будинки з брусу
- Будинки з клеєного брусу
Будинки з профільованого брусу
(Що входить в ціну)
- комплект стін;
- комплект крокв;
- комплект балок перекриття;
- утеплювач міжвінцевий;
- антисептик (антисептування всього матеріалу);
- дубові нагеля;
- кріпильні материали (саморізи, усадкові болти, анкера, кріпильні пластини);
- гідроізоляція;
- вогнебіозахист (обробка деревини засобом І групи вогнезахисної ефективності)
Проект «Білвер» - садиба на 4 спальні, площа 254 м2
Садиба «Білвер» з першого погляду вражає своїми габаритами, будова виглядає масштабно за рахунок другого повноцінного поверху. Як правило, в заміських будинках все частіше вважають за краще будувати мансарди, але в маєтку «Білвер» спроектований другий поверх, який по висоті такий же, як перший. Значні розміри потужної конструкції з сухого профільованого бруса визначають наявність безлічі внутрішніх приміщень, створених для влаштування неймовірного комфорту всіх домочадців. Ще одна особливість цього будинку з сухого брусу, на яку ми не могли не звернути увагу - це зовнішні сходи, що ведуть на другий поверх. При бажанні можна прямо з вулиці піднятися в приміщення другого поверху, що дуже зручно, враховуючи великі масштаби будівництва. Це значно скорочує дистанцію, і не потрібно обходити половину будинку, щоб дістатися, наприклад, в свою спальню.
Планування садиби (маєтку) з сухого профільованого брусу
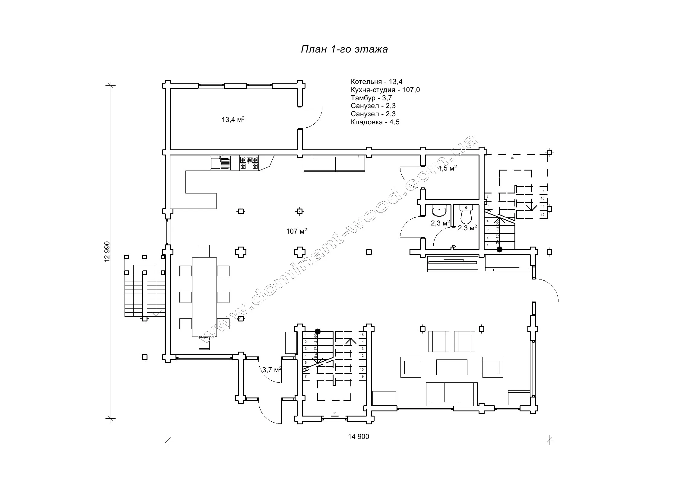
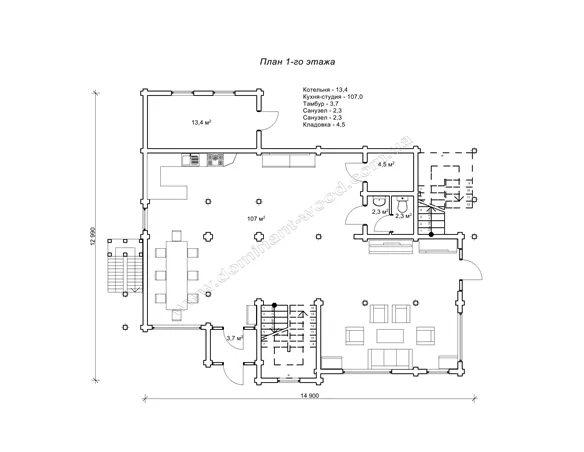
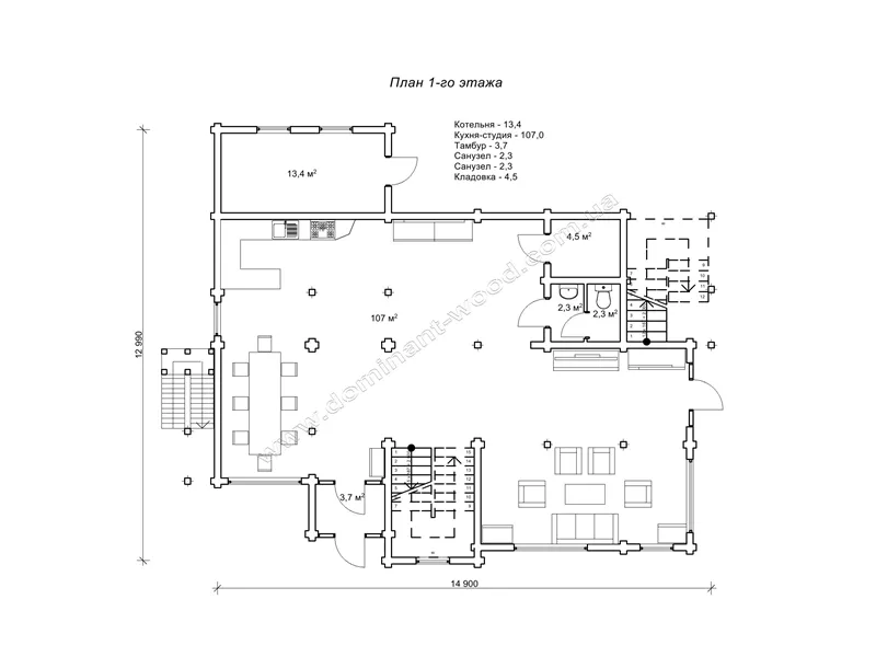
Планування садиби з сухого бруса «Білвер» спроектоване на двох повноцінних поверхах. Перший поверх починаємо з теплового тамбура, який не дозволяє холоду з вулиці проникати всередину будинку, далі проходимо в величезне студійне приміщення, зоноване на кухню, їдальню і зал з м’яким куточком. Окремим приміщенням, куди можна увійти тільки з вулиці є котельня. Також всередині першого поверху є комора і санвузол. Як видно на плануванні з правого фасаду передбачене місце для сходів, що ведуть з підвалу, так як проект «Білвер» створювався під індивідуальне замовлення для клієнтів, які попередньо облаштували підвальне приміщення. Другий поверх містить 4 кімнати, в одній з яких можна передбачити робочий кабінет, а в інших зробити спальні. Або всі чотири кімнати відвести під спальні приміщення - все залежить від бажання господарів. Крім того, на другому поверсі є два санвузли і два балкона, а об’єднуючим приміщенням виступає великий зал на 33,2 м2. Планування маєтку «Білвер» створювалася для того, щоб кожен з жителів цієї прекрасної будови або гість відчув всю розкіш кожного моменту в стінах з натурального, масивного, висушеного в прес-вакуумних камерах, брусу.
Будівництво садиби (маєтку) за проектом «Білвер»
Заміська садиба (маєток) «Білвер» створить своєрідну, унікальну атмосферу на будь-якій заміській ділянці. Будівлі такого роду знадобиться велика територія. Крім того, такі угіддя, як правило, доповнюються і прикрашаються за допомогою дитячого майданчика, альтанки або лазні, проекти яких ми у великій різноманітності з радістю пропонуємо на нашому сайті. Звертайтеся в офіс «Домінант» за номерами: +38 063 499-91-00; +38 097 012-38-52 (Viber; WhatsApp), і ми з радістю побудуємо цей незвичайний маєток з бруса саме для тих, хто цінує комфорт, натуральні матеріали, простір і дбайливо ставиться до облаштування свого заміського житла.
- Кількість поверхів
- 2
- Площа
- 254
- Ширина
- 12.9
- Довжина
- 14.9
- Будинки і житлові будови
- Маєтки
Садиби - Кількість кімнат
- Шестикімнатні будинки
- Особливості будинків
- Будинки з балконом
Будинки зі сходами - Будинки з брусу
- Будинки з клеєного брусу
Будинки з профільованого брусу
Базова комплектація:
(Що входить в ціну)
- комплект стін;
- комплект крокв;
- комплект балок перекриття;
- утеплювач міжвінцевий;
- антисептик (антисептування всього матеріалу);
- дубові нагеля;
- кріпильні материали (саморізи, усадкові болти, анкера, кріпильні пластини);
- гідроізоляція;
- вогнебіозахист (обробка деревини засобом І групи вогнезахисної ефективності)
656100 грн.
Дах (комплектність):
- Рейка 100*25мм (cосна)
- Контрейка 50*25мм (сосна)
- Металочерепиця МОНТЕРРЕЙ (Польща) 0,45мм
- Коник прямий
- Планка примикання
- Лобова (декоративна) планка
- Вітровая планка
- Яндола
- Капельник (Карнизна планка)
- Ущільнювач універсальный
- Саморізи ОС 4.8х35
- Фарба-спрей
- Гідробар'єр
- Монтаж
684060 грн.
Вікна (комплектність):
- Вікно VEKA 58, колір білий 10
- Імпости вертикальні: 1 x 102103
- Скління: СПО, 24мм, (Rсп=0.36)*
- Тип фурнітури: Activpilot поворотно-відкидна, колір білий
- Підбір спеціальний: Activ микровентиляція; Activ 2-функц. механ.
- Моск.сітка: МС 3
- Підвіконня: ВМ 110мм, колір білий
- Підвіконня: ПВ ПВХ 150, заглушки: 600мм, колір білий
- Монтаж
292600 грн.
Двері (комплектність):
- Полотно
- Коробка
- Лиштва
- Карниз
- Фарбування
- Скло
- Фурнітура
- Врізка фурнітуры
- Монтаж
312480 грн.
Фарбування (комплектність):
- Шліфування торців
- Тришарове покриття ефективним деревозахисним засобом на базі низькомолекулярної алкідної смоли методом розпилення.
Параметри забудови
- Кількість поверхів: 2
- Площа: 254
Розмір забудови
- Ширина: 12.9
- Довжина: 14.9
Перший поверх
| котельня (м²) | 13,4 |
| кухня студія (м²) | 107,0 |
| тамбур (м²) | 3,7 |
| санвузол (м²) | 2,3 |
| санвузол (м²) | 2,3 |
| кладовая (м²) | 4,5 |
Другий поверх
| комора (м²) | 4,5 |
| санвузол (м²) | 4,5 |
| санвузол (м²) | 4,5 |
| кабінет (м²) | 12,9 |
| спальня (м²) | 13,4 |
| балкон (м²) | 6,3 |
| коридор (м²) | 3,6 |
| спальня (м²) | 11,6 |
| спальня (м²) | 25,1 |
| балкон (м²) | 5,6 |
Оциліндрований брус
Оциліндрований брус є найбільш оптимальним і поширеним матеріалом для будівництва дерев`яних будинків і бань, бесідок, альтанок, різноманітних садових меблів, дерев`яних конструкцій будь-яких видів. Дерев`яні будинки з оциліндрованого брусу відрізняються красою, всередині такого будинку завжди відчувається особлива затишна атмосфера.
Профільований брус
Найсучаснішим і високотехнологічним будівельним матеріалом в дерев`яному будівництві на сьогоднішній день є профільований брус. Для виробництва профільованого брусу, звичайному дерев`яному брусу на спеціальному деревообробному обладнанні надається певний профіль.
Подвійний брус з утепленням
Головна ідея застосування подвійного бруса полягала в досягненні енергоефективності житла. Над проектуванням енергозберігаючих будинків працюють провідні інженери та архітектори в різних країнах світу, запропонована фінами технологія подвійного бруса дає можливість звести до мінімуму тепловтрати будинку, а також об`єднує переваги будівництва дерев`яного будинку з економічністю споруди.
Клеєний брус
Клеєний брус принципово відрізняється від інших типів колод багатошаровістю. Така структура робить цей дерев’яний матеріал надміцним і витривалим.
Каркасні конструкції
Каркасні конструкції виготовляються на власних виробничих потужностях компанії «Домінант», з використанням сучасних деревообробних станків. Імпортне, високоточне обладнання дозволяє нам високоякісно виконувати свою роботу. Каркаси складаються зі струганих, ретельно висушених балок 150х50 мм (сосна першого сорту). Ці балки застосовуються для зовнішніх каркасів.












