Зателефонуйте мені
Багірма №1
Багірма №2
Багірма №3
Багірма №4
Багірма №5
Багірма №6
Багірма №1
Багірма №2
Багірма №3
Багірма №4
Багірма №5
Багірма №6
Багірма №1
Багірма №1 Багірма №2 Багірма №3 Багірма №4 Багірма №5 Багірма №6

Багірма

527 565,00 ₴
Енергоефективний будинок з утепленого бруса 7,5 на 10,4 м - «Багірма»
Розмір брусу
  • Оциліндрований 160
  • Оциліндрований 180
  • Оциліндрований 200
  • Оциліндрований 220
  • Профільований 60
  • Профільований 150
  • Профільований 200
  • Подвійний 300
  • Клеєний 120
  • Клеєний 180
Кількість поверхів
1
Площа
70.4
Ширина
7.5
Довжина
10.4
Будинки і житлові будови
Котеджі
Кількість кімнат
Двокімнатні будинки
Особливості будинків
Будинки з ґанком
Кількість поверхів споруди
Одноповерхові будинки
Будинки з брусу
Будинки з подвійного брусу з утепленням
 

(Що входить в ціну)

Що входить в базову комплектацію

  • комплект стін;
  • комплект крокв;
  • комплект балок перекриття;
  • утеплювач міжвінцевий;
  • антисептик (антисептування всього матеріалу);
  • дубові нагеля;
  • кріпильні материали (саморізи, усадкові болти, анкера, кріпильні пластини);
  • гідроізоляція;
  • вогнебіозахист (обробка деревини засобом І групи вогнезахисної ефективності)

Енергоефективний будинок з утепленого бруса 7,5 на 10,4 м

Проект «Багірма» - це один з найтепліших будинків для невеликого сімейства, створений за технологією подвійного бруса . Подвійні брусові стіни з утеплювачем всередині акумулюють тепло таким чином, що його втрати в приміщеннях зводяться до мінімуму, роблячи всю будову максимально енергоефективною. Зовні будиночок характеризується простотою і лаконічністю, але цікаво відрізняється від інших високими вікнами від підлоги до стелі. Оригінально виглядає поєднання таких вікон з масивним двосхилим дахом в швейцарському стилі. Котедж «Багірма» створювався для замовників з Північної Європи, тому не дивно, що він враховує стилістичні вимоги регіону і температурний режим холодного нордичного клімату.

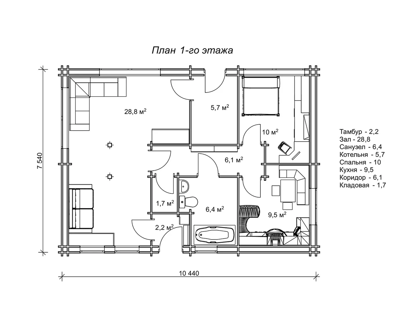
Плани проекту «Багірма» площею 70, 4 м2 з окремою котельнею

Планування котеджу з паралельного бруса «Багірма» включає тепловий тамбур при вході, зал, приміщення котельні, санвузол, комору, спальню і кухню. З котельні є окремий вихід на вулицю. Це дуже зручно в експлуатації. Наприклад, якщо ставити твердопаливний котел для опалювання пелетами, немає необхідності носити гранули в котельню через весь будинок, адже можна принести паливо із заднього дворика. Варто звернути особливу увагу на форму даху в даному проекті. Висота від балок перекриття до коника становить півтора метра і на даху цілком можна влаштувати ще й горищне приміщення на додаток до існуючих кімнат. Всі кімнати в котеджі розплановані компактно і зручно. У будиночку «Багірма» зручно розташується молоде подружжя або навпаки парі похилого віку, яка з нетерпінням чекатиме онуків на вихідні. Особлива подвійна конструкція стін з утепленням дозволить всім - і господарям і гостям відчувати себе чудово в цьому котеджі незалежно від пори року. У холодний період року захисний щит стін з двох рядів бруса і утеплювача буде швидко нагріватися і довго тримати тепло, а спекотним літом прохолода довше збережеться в його стінах.

Замовлення будівництва будинку з утепленого бруса «Багірма»

Всі можливі переваги дерев’яних будівель зібрані саме в технології сухого профільованого паралельного бруса з екологічним утеплювачем всередині стін. Саме за цією технологією ми створювали проект енергозберігаючого котеджу «Багірма». Протягом довгих років роботи в сфері дерев’яного будівництва нам вдалося прийти до найбільш ефективних технологій виробництва і монтажу зрубів. Впевнені, що замовлення будівництва будинку з утепленого бруса за готовим проектом «Багірма» стане найкращим вибором заміського будиночка. Гарний і теплий котедж з великими вікнами вміщує все, щоб жити з комфортом і затишком, насолоджуючись витонченою естетикою дерев’яного інтер’єру і неповторною свіжістю деревного аромату стін із соснового бруса.

Кількість поверхів
1
Площа
70.4
Ширина
7.5
Довжина
10.4
Будинки і житлові будови
Котеджі
Кількість кімнат
Двокімнатні будинки
Особливості будинків
Будинки з ґанком
Кількість поверхів споруди
Одноповерхові будинки
Будинки з брусу
Будинки з подвійного брусу з утепленням

Базова комплектація:
(Що входить в ціну)

Що входить в базову комплектацію

  • комплект стін;
  • комплект крокв;
  • комплект балок перекриття;
  • утеплювач міжвінцевий;
  • антисептик (антисептування всього матеріалу);
  • дубові нагеля;
  • кріпильні материали (саморізи, усадкові болти, анкера, кріпильні пластини);
  • гідроізоляція;
  • вогнебіозахист (обробка деревини засобом І групи вогнезахисної ефективності)

277020 грн.

Дах (комплектність):

  • Рейка 100*25мм (cосна)
  • Контрейка 50*25мм (сосна)
  • Металочерепиця МОНТЕРРЕЙ (Польща) 0,45мм
  • Коник прямий
  • Планка примикання
  • Лобова (декоративна) планка
  • Вітровая планка
  • Яндола
  • Капельник (Карнизна планка)
  • Ущільнювач універсальный
  • Саморізи ОС 4.8х35
  • Фарба-спрей
  • Гідробар'єр
  • Монтаж

403420 грн.

Вікна (комплектність):

  • Вікно VEKA 58, колір білий 10
  • Імпости вертикальні: 1 x 102103
  • Скління: СПО, 24мм, (Rсп=0.36)*
  • Тип фурнітури: Activpilot поворотно-відкидна, колір білий
  • Підбір спеціальний: Activ микровентиляція; Activ 2-функц. механ.
  • Моск.сітка: МС 3
  • Підвіконня: ВМ 110мм, колір білий
  • Підвіконня: ПВ ПВХ 150, заглушки: 600мм, колір білий
  • Монтаж

0 грн.

Двері (комплектність):

  • Полотно
  • Коробка
  • Лиштва
  • Карниз
  • Фарбування
  • Скло
  • Фурнітура
  • Врізка фурнітуры
  • Монтаж

95480 грн.

Фарбування (комплектність):

  • Шліфування торців
  • Тришарове покриття ефективним деревозахисним засобом на базі низькомолекулярної алкідної смоли методом розпилення.

Параметри забудови

  • Кількість поверхів: 1
  • Площа: 70.4

Розмір забудови

  • Ширина: 7.5
  • Довжина: 10.4

Перший поверх

тамбур (м²)2,2
зала (м²)28,8
санвузол (м²)6,4
котельня (м²)5,7
спальня (м²)10
кухня (м²)9,5
коридор (м²)6,1
кладова (м²)1,7

Оциліндрований брус

Оциліндрований брус є найбільш оптимальним і поширеним матеріалом для будівництва дерев`яних будинків і бань, бесідок, альтанок, різноманітних садових меблів, дерев`яних конструкцій будь-яких видів. Дерев`яні будинки з оциліндрованого брусу відрізняються красою, всередині такого будинку завжди відчувається особлива затишна атмосфера.

Читати далі...

Профільований брус

Найсучаснішим і високотехнологічним будівельним матеріалом в дерев`яному будівництві на сьогоднішній день є профільований брус. Для виробництва профільованого брусу, звичайному дерев`яному брусу на спеціальному деревообробному обладнанні надається певний профіль.

Читати далі...

Подвійний брус з утепленням

Головна ідея застосування подвійного бруса полягала в досягненні енергоефективності житла. Над проектуванням енергозберігаючих будинків працюють провідні інженери та архітектори в різних країнах світу, запропонована фінами технологія подвійного бруса дає можливість звести до мінімуму тепловтрати будинку, а також об`єднує переваги будівництва дерев`яного будинку з економічністю споруди.

Читати далі...

Клеєний брус

Клеєний брус принципово відрізняється від інших типів колод багатошаровістю. Така структура робить цей дерев’яний матеріал надміцним і витривалим.

Читати далі...

Каркасні конструкції

Каркасні конструкції виготовляються на власних виробничих потужностях компанії «Домінант», з використанням сучасних деревообробних станків. Імпортне, високоточне обладнання дозволяє нам високоякісно виконувати свою роботу. Каркаси складаються зі струганих, ретельно висушених балок 150х50 мм (сосна першого сорту). Ці балки застосовуються для зовнішніх каркасів.

Читати далі...

Немає відгуків

Переглянуті товари

16 інших товарів в цій категорії:

Товар додано для порівняння.