Княгиня
- Кількість поверхів
- 2
- Площа
- 338.8
- Ширина
- 14.1
- Довжина
- 13.7
- Будинки і житлові будови
- Вілли
Котеджі
Маєтки
Садиби - Особливості будинків
- Будинки з другим світлом
Будинки з мансардою
Будинки з терасою
Будинки зі сходами - Кількість поверхів споруди
- Двоповерхові будинки
- Будинки з брусу
- Будинки з оциліндрованого брусу
(Що входить в ціну)
- комплект стін;
- комплект крокв;
- комплект балок перекриття;
- утеплювач міжвінцевий;
- антисептик (антисептування всього матеріалу);
- дубові нагеля;
- кріпильні материали (саморізи, усадкові болти, анкера, кріпильні пластини);
- гідроізоляція;
- вогнебіозахист (обробка деревини засобом І групи вогнезахисної ефективності)
Проект Княгиня - це розкішний двоповерховий особняк з ефектним зовнішнім виглядом, комфортним плануванням для проживання великої родини. У будинку все передбачено для максимальної зручності всіх домочадців і втілення цікавих дизайнерських рішень в оформленні інтер’єру. Особливістю даного проекту є наявність другого світла, що візуально розширює простір і робить будинок світліше. Просторі розміри забудови проекту Княгиня 14 на 14 м дають можливість реалізувати в цьому будинку все, що господарям буде завгодно.
Із затишного ганку біля входу в будинок відразу можна пройти в передпокій, звідки є вихід в хол зі сходами. Також на першому поверсі розташована простора вітальня з величезними вікнами другого світла, що утворює студійний простір з кухнею. З цього приміщення можна вийти на літню терасу, яка немов служить розкішним продовженням вітальні. Не можна не відзначити наявність спальні на першому поверсі, що відмінно підійде для сім’ї з маленькою дитиною або літніми батьками, яким важко підніматися по сходах. Таку кімнату на першому поверсі зручно також надати гостям для ночівлі. В цілому, особняк Княгиня dominant-wood.com.ua/uk/proekty/57-knyaginya має у розпорядженні п’ять спальних кімнат, що робить цей будинок прекрасним рішенням в якості житла для численного сімейства. Чотири спальні на другому поверсі утворюють особистий простір домочадців. Другий поверх проекту Княгиня - це повністю спальна зона для господарів та їхніх дітей.
Замислюючись про своє власне комфортне заміське житло, виникає безліч питань про те, як побудувати будинок, з якого матеріалу краще це зробити і скільки це буде коштувати. Дерево - найкращий і екологічний матеріал для цих цілей. Тільки дерев’яний брус природним чином створює і регулює ідеальне середовище для проживання людини. Не знаючи як побудувати будинок самостійно, тим більше такий масштабний проект, як Княгиня, дуже важливо знайти професійного підрядника у сфері будівництва, вивчити його реалізовані проекти і якість будівельних послуг. Компанія «Домінант» dominant-wood.com.ua/ пропонує широкий вибір готових проектів дерев’яних будинків і суто індивідуальний підхід до кожного замовника, забезпечуючи будь-які консультації з питань як краще спроектувати і як побудувати будинок, щоб він був оптимальним за якістю і бюджетом, а також радував око довгі роки. Вас цікавить, як побудувати особняк Княгиня? Звертайтеся до нас, і у вас гарантовано буде найкращий дерев’яний будинок!
- Кількість поверхів
- 2
- Площа
- 338.8
- Ширина
- 14.1
- Довжина
- 13.7
- Будинки і житлові будови
- Вілли
Котеджі
Маєтки
Садиби - Особливості будинків
- Будинки з другим світлом
Будинки з мансардою
Будинки з терасою
Будинки зі сходами - Кількість поверхів споруди
- Двоповерхові будинки
- Будинки з брусу
- Будинки з оциліндрованого брусу
Базова комплектація:
(Що входить в ціну)
- комплект стін;
- комплект крокв;
- комплект балок перекриття;
- утеплювач міжвінцевий;
- антисептик (антисептування всього матеріалу);
- дубові нагеля;
- кріпильні материали (саморізи, усадкові болти, анкера, кріпильні пластини);
- гідроізоляція;
- вогнебіозахист (обробка деревини засобом І групи вогнезахисної ефективності)
711990 грн.
Дах (комплектність):
- Рейка 100*25мм (cосна)
- Контрейка 50*25мм (сосна)
- Металочерепиця МОНТЕРРЕЙ (Польща) 0,45мм
- Коник прямий
- Планка примикання
- Лобова (декоративна) планка
- Вітровая планка
- Яндола
- Капельник (Карнизна планка)
- Ущільнювач універсальный
- Саморізи ОС 4.8х35
- Фарба-спрей
- Гідробар'єр
- Монтаж
999780 грн.
Вікна (комплектність):
- Вікно VEKA 58, колір білий 10
- Імпости вертикальні: 1 x 102103
- Скління: СПО, 24мм, (Rсп=0.36)*
- Тип фурнітури: Activpilot поворотно-відкидна, колір білий
- Підбір спеціальний: Activ микровентиляція; Activ 2-функц. механ.
- Моск.сітка: МС 3
- Підвіконня: ВМ 110мм, колір білий
- Підвіконня: ПВ ПВХ 150, заглушки: 600мм, колір білий
- Монтаж
0 грн.
Двері (комплектність):
- Полотно
- Коробка
- Лиштва
- Карниз
- Фарбування
- Скло
- Фурнітура
- Врізка фурнітуры
- Монтаж
244776 грн.
Фарбування (комплектність):
- Шліфування торців
- Тришарове покриття ефективним деревозахисним засобом на базі низькомолекулярної алкідної смоли методом розпилення.
Параметри забудови
- Кількість поверхів: 2
- Площа: 338.8
Розмір забудови
- Ширина: 14.1
- Довжина: 13.7
Перший поверх
| зал (м²) | 86,1 |
| площадка (м²) | 6,3 |
| кімната (м²) | 17,6 |
| сходова зона (м²) | 27,8 |
| передпокій (м²) | 14,2 |
| с/в (м²) | 5,7 |
| тераса (м²) | 23,4 |
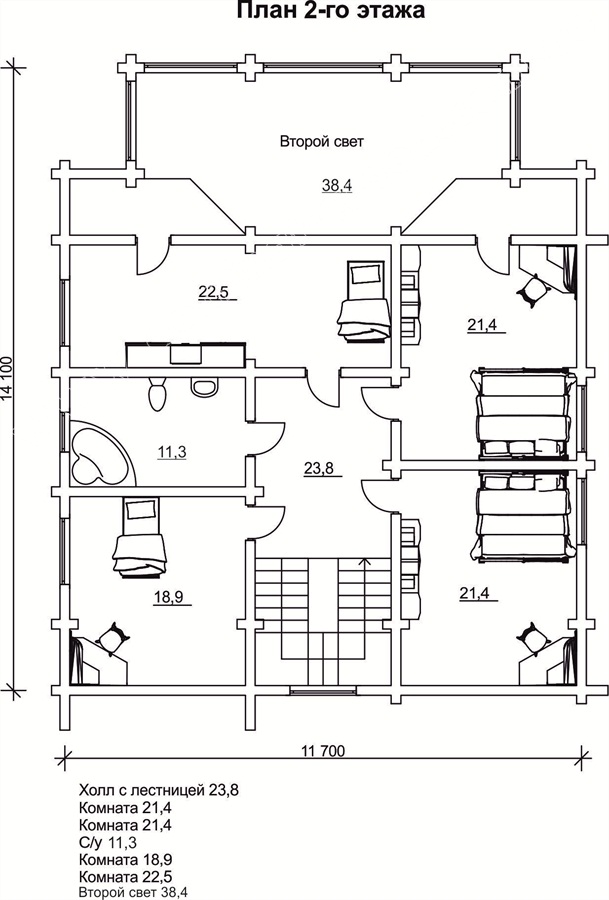
Другий поверх
| друге світло (м²) | 38,4 |
| кімната (м²) | 21,4 |
| кімната (м²) | 21,4 |
| кімната (м²) | 18,9 |
| кімната (м²) | 22,5 |
| сходова зона (м²) | 23,8 |
| с/в (м²) | 11,3 |
Оциліндрований брус
Оциліндрований брус є найбільш оптимальним і поширеним матеріалом для будівництва дерев`яних будинків і бань, бесідок, альтанок, різноманітних садових меблів, дерев`яних конструкцій будь-яких видів. Дерев`яні будинки з оциліндрованого брусу відрізняються красою, всередині такого будинку завжди відчувається особлива затишна атмосфера.
Профільований брус
Найсучаснішим і високотехнологічним будівельним матеріалом в дерев`яному будівництві на сьогоднішній день є профільований брус. Для виробництва профільованого брусу, звичайному дерев`яному брусу на спеціальному деревообробному обладнанні надається певний профіль.
Подвійний брус з утепленням
Головна ідея застосування подвійного бруса полягала в досягненні енергоефективності житла. Над проектуванням енергозберігаючих будинків працюють провідні інженери та архітектори в різних країнах світу, запропонована фінами технологія подвійного бруса дає можливість звести до мінімуму тепловтрати будинку, а також об`єднує переваги будівництва дерев`яного будинку з економічністю споруди.
Клеєний брус
Клеєний брус принципово відрізняється від інших типів колод багатошаровістю. Така структура робить цей дерев’яний матеріал надміцним і витривалим.
Каркасні конструкції
Каркасні конструкції виготовляються на власних виробничих потужностях компанії «Домінант», з використанням сучасних деревообробних станків. Імпортне, високоточне обладнання дозволяє нам високоякісно виконувати свою роботу. Каркаси складаються зі струганих, ретельно висушених балок 150х50 мм (сосна першого сорту). Ці балки застосовуються для зовнішніх каркасів.












