Родана
- Кількість поверхів
- 1
- Площа
- 80.1
- Ширина
- 9
- Довжина
- 8.9
- Будинки і житлові будови
- Дачі
Котеджі - Кількість кімнат
- Трикімнатні будинки
- Особливості будинків
- Будинки з терасою
- Кількість поверхів споруди
- Одноповерхові будинки
- Будинки з брусу
- Будинки з оциліндрованого брусу
(Що входить в ціну)
- комплект стін;
- комплект крокв;
- комплект балок перекриття;
- утеплювач міжвінцевий;
- антисептик (антисептування всього матеріалу);
- дубові нагеля;
- кріпильні материали (саморізи, усадкові болти, анкера, кріпильні пластини);
- гідроізоляція;
- вогнебіозахист (обробка деревини засобом І групи вогнезахисної ефективності)
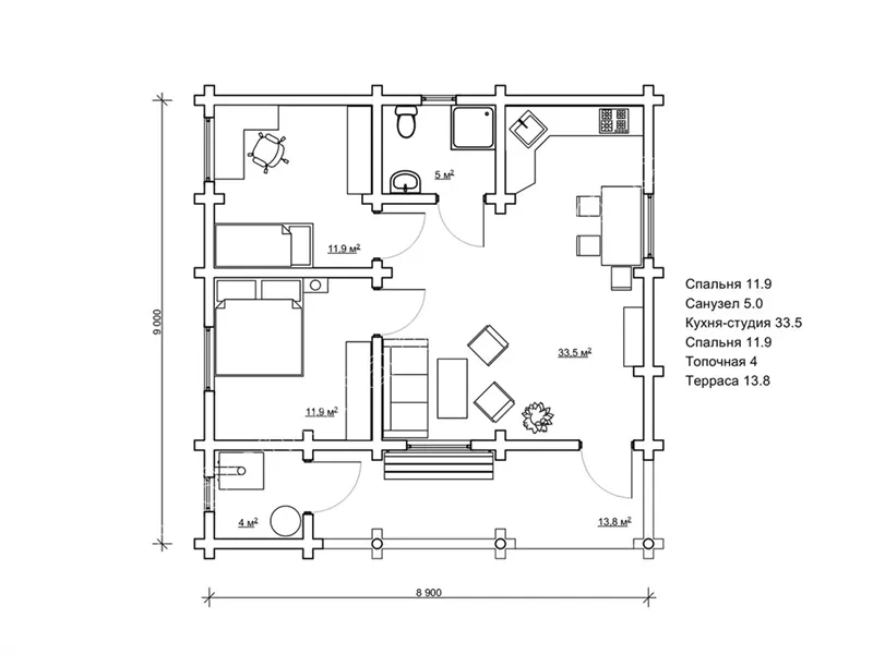
Проект заміського котеджу зі зрубу 9 на 8,9 м
Симпатичний одноповерховий будинок з оциліндрованого бруса за проектом Родана припаде до смаку справжньому шанувальнику класичної краси зрубу. Лаконічні, прямолінійні лінії і нічого зайвого - ось, що можна сказати, дивлячись на цей одноповерховий котедж. Але саме в таких будівлях по-справжньому розкривається вся принадність дерев’яного бруса і ажурного візерунка деревної текстури. Дуже простий і нехитрий будиночок, на перший погляд, несе в собі масу переваг, продумані конструктивні рішення і планування.
Планування одноповерхового заміського котеджу 80,1 м²
Планування внутрішнього простору котеджу за проектом Родана передбачає необхідний набір приміщень для створення комфортної і затишної домашньої обстановки. Біля входу в будинок є літня тераса, де можна поводити теплі літні вечори за чаюванням і цікавою книгою. Передпокій, зал і кухня зливаються в єдине студійне приміщення площею 33,5 м² з розподілом функціональних зон. Усередині будиночка сплановані дві зручні невеликі спальні і санвузол. Таке планування котеджу оптимально підійде в якості постійного житла подружжю з дитиною або для людей похилого віку, яких часто провідують онуки. Котедж з оциліндрованих колод Родана можна розглядати в якості чудового заміського будиночка або дачі всім, хто хоче насолодитися природою і по-справжньому відпочити далеко від запиленогоі загазованого автомобілями міста.
Будівництво будинку по готовому проекту «Родана» під ключ
Будівельна компанія «Домінант» пропонує будівництво дерев’яного котеджу як в базовій комплектації, так і під ключ. На сторінці з проектом Родана можна подивитися вартість будівництва базового комплекту. Вартість під ключ буде залежати від виду додаткових комплектуючих (покрівлі, вікон, дверей і т.д.), які ви виберете для дому, вартості роботи на їх установку. У питанні будівництва під ключ ми індивідуально підходимо до кожного замовника і пропонуємо вибирати комплектуючі на свій розсуд, робимо детальний прорахунок комплектації додатково до базового проекту, і завершуємо будиночок до повної готовності. Звертайтеся за телефонами: +38 063 499-91-00, +38 097 012-38-52 (Viber; WhatsApp).
- Кількість поверхів
- 1
- Площа
- 80.1
- Ширина
- 9
- Довжина
- 8.9
- Будинки і житлові будови
- Дачі
Котеджі - Кількість кімнат
- Трикімнатні будинки
- Особливості будинків
- Будинки з терасою
- Кількість поверхів споруди
- Одноповерхові будинки
- Будинки з брусу
- Будинки з оциліндрованого брусу
Базова комплектація:
(Що входить в ціну)
- комплект стін;
- комплект крокв;
- комплект балок перекриття;
- утеплювач міжвінцевий;
- антисептик (антисептування всього матеріалу);
- дубові нагеля;
- кріпильні материали (саморізи, усадкові болти, анкера, кріпильні пластини);
- гідроізоляція;
- вогнебіозахист (обробка деревини засобом І групи вогнезахисної ефективності)
298890 грн.
Дах (комплектність):
- Рейка 100*25мм (cосна)
- Контрейка 50*25мм (сосна)
- Металочерепиця МОНТЕРРЕЙ (Польща) 0,45мм
- Коник прямий
- Планка примикання
- Лобова (декоративна) планка
- Вітровая планка
- Яндола
- Капельник (Карнизна планка)
- Ущільнювач універсальный
- Саморізи ОС 4.8х35
- Фарба-спрей
- Гідробар'єр
- Монтаж
140320 грн.
Вікна (комплектність):
- Вікно VEKA 58, колір білий 10
- Імпости вертикальні: 1 x 102103
- Скління: СПО, 24мм, (Rсп=0.36)*
- Тип фурнітури: Activpilot поворотно-відкидна, колір білий
- Підбір спеціальний: Activ микровентиляція; Activ 2-функц. механ.
- Моск.сітка: МС 3
- Підвіконня: ВМ 110мм, колір білий
- Підвіконня: ПВ ПВХ 150, заглушки: 600мм, колір білий
- Монтаж
0 грн.
Двері (комплектність):
- Полотно
- Коробка
- Лиштва
- Карниз
- Фарбування
- Скло
- Фурнітура
- Врізка фурнітуры
- Монтаж
98084 грн.
Фарбування (комплектність):
- Шліфування торців
- Тришарове покриття ефективним деревозахисним засобом на базі низькомолекулярної алкідної смоли методом розпилення.
Оциліндрований брус
Оциліндрований брус є найбільш оптимальним і поширеним матеріалом для будівництва дерев`яних будинків і бань, бесідок, альтанок, різноманітних садових меблів, дерев`яних конструкцій будь-яких видів. Дерев`яні будинки з оциліндрованого брусу відрізняються красою, всередині такого будинку завжди відчувається особлива затишна атмосфера.
Профільований брус
Найсучаснішим і високотехнологічним будівельним матеріалом в дерев`яному будівництві на сьогоднішній день є профільований брус. Для виробництва профільованого брусу, звичайному дерев`яному брусу на спеціальному деревообробному обладнанні надається певний профіль.
Подвійний брус з утепленням
Головна ідея застосування подвійного бруса полягала в досягненні енергоефективності житла. Над проектуванням енергозберігаючих будинків працюють провідні інженери та архітектори в різних країнах світу, запропонована фінами технологія подвійного бруса дає можливість звести до мінімуму тепловтрати будинку, а також об`єднує переваги будівництва дерев`яного будинку з економічністю споруди.
Клеєний брус
Клеєний брус принципово відрізняється від інших типів колод багатошаровістю. Така структура робить цей дерев’яний матеріал надміцним і витривалим.
Каркасні конструкції
Каркасні конструкції виготовляються на власних виробничих потужностях компанії «Домінант», з використанням сучасних деревообробних станків. Імпортне, високоточне обладнання дозволяє нам високоякісно виконувати свою роботу. Каркаси складаються зі струганих, ретельно висушених балок 150х50 мм (сосна першого сорту). Ці балки застосовуються для зовнішніх каркасів.












