Флейта
- Кількість поверхів
- 1
- Площа
- 61.7
- Ширина
- 8.8
- Довжина
- 7
- Будинки і житлові будови
- Дачі
- Кількість кімнат
- Трикімнатні будинки
- Особливості будинків
- Будинки з терасою
- Кількість поверхів споруди
- Одноповерхові будинки
- Будинки з брусу
- Будинки з клеєного брусу
Будинки з оциліндрованого брусу
Будинки з профільованого брусу
(Що входить в ціну)
- комплект стін;
- комплект крокв;
- комплект балок перекриття;
- утеплювач міжвінцевий;
- антисептик (антисептування всього матеріалу);
- дубові нагеля;
- кріпильні материали (саморізи, усадкові болти, анкера, кріпильні пластини);
- гідроізоляція;
- вогнебіозахист (обробка деревини засобом І групи вогнезахисної ефективності)
Життя в нескінченній міської метушні пробуджує прагнення до усамітнення та зверненню до природи. Тому першочерговими стають такі нові пріоритети як заміське екологічне житло з природних натуральних матеріалів. Пропонуємо Вам звернути увагу на гідний дачний варіант дерев’яного котеджу - проект Флейта. Це невеликий, затишний одноповерховий будинок з бруса.
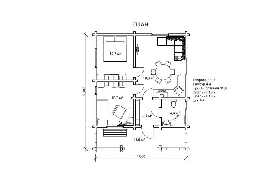
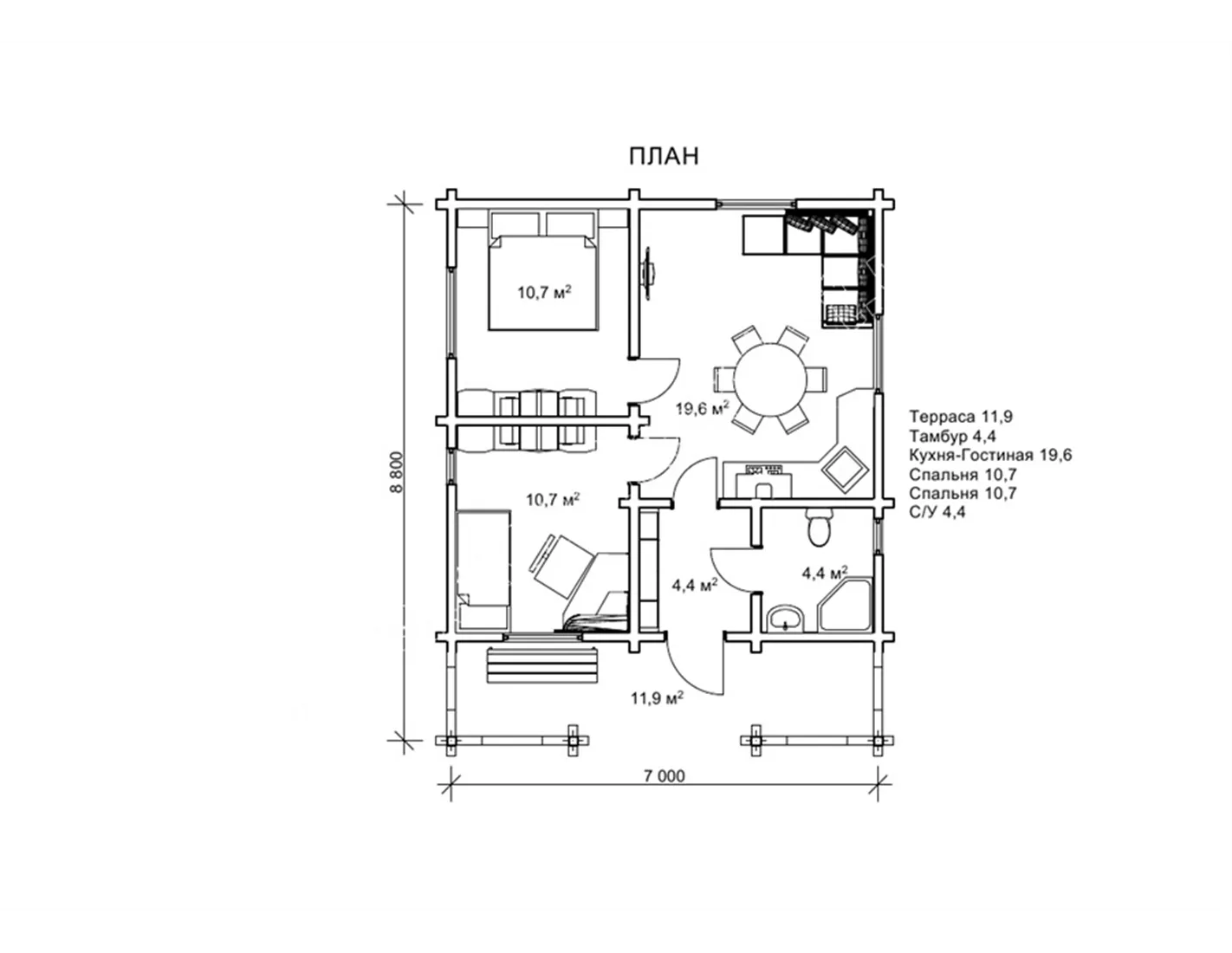
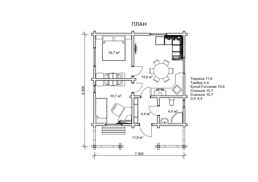
Планування будинку включає літню терасу, тамбур, кухню, поєднану з вітальнею, санвузол і дві спальні. Тераса об’єднує їдальню зону і куточок для відпочинку, її можна облаштувати за допомогою дерев’яних меблів відповідно до екстер’єру котеджу, що зробить відвідування дачі і проведення часу на ній ще більш комфортним і приємним. Флейта, цей той інструмент, яким грають тільки наймелодійніші і ніжні мелодії, які потребують високих переливчастих нот і абсолютної гармонії звуку. Проект Флейта створений, ніби під віянням такої мелодії, так як є втіленням ніжності та витонченості, що досить важко передати за допомогою такого матеріалу, як масивний дерев’яний брус. Цей будиночок dominant-wood.com.ua/uk/proekty/533-flejta - ідеальне місце для маленької сім’ї або пари похилого віку. Тут все говорить про тишу, спокій і відпочинок. Тут зручно приймати в гості онуків і дітей. Можна розбити маленький сад з городом і балувати рідних домашніми фруктами і овочами.
Дуже мальовничо будиночок виглядає в оточенні квіткових клумб і горщиків із зеленню. Це маленьке гніздечко затишку і тепла завжди світло буде згадуватися у вас в пам’яті як ароматне пізнє літо, коли в достатку все, чого можна побажати, а повітря п’янке і ввібрало в себе всю стиглість літа. У такий момент хочеться позбутися від втоми і вдихнути на повні груди життя. Компанія «Домінант» dominant-wood.com.ua/uk/ цілком підтримує вас у цьому починанні і пропонує великий вибір проектів дерев'яних котеджів, які допоможуть зробити ваше життя досконалішим.
- Кількість поверхів
- 1
- Площа
- 61.7
- Ширина
- 8.8
- Довжина
- 7
- Будинки і житлові будови
- Дачі
- Кількість кімнат
- Трикімнатні будинки
- Особливості будинків
- Будинки з терасою
- Кількість поверхів споруди
- Одноповерхові будинки
- Будинки з брусу
- Будинки з клеєного брусу
Будинки з оциліндрованого брусу
Будинки з профільованого брусу
Базова комплектація:
(Що входить в ціну)
- комплект стін;
- комплект крокв;
- комплект балок перекриття;
- утеплювач міжвінцевий;
- антисептик (антисептування всього матеріалу);
- дубові нагеля;
- кріпильні материали (саморізи, усадкові болти, анкера, кріпильні пластини);
- гідроізоляція;
- вогнебіозахист (обробка деревини засобом І групи вогнезахисної ефективності)
216270 грн.
Дах (комплектність):
- Рейка 100*25мм (cосна)
- Контрейка 50*25мм (сосна)
- Металочерепиця МОНТЕРРЕЙ (Польща) 0,45мм
- Коник прямий
- Планка примикання
- Лобова (декоративна) планка
- Вітровая планка
- Яндола
- Капельник (Карнизна планка)
- Ущільнювач універсальный
- Саморізи ОС 4.8х35
- Фарба-спрей
- Гідробар'єр
- Монтаж
140320 грн.
Вікна (комплектність):
- Вікно VEKA 58, колір білий 10
- Імпости вертикальні: 1 x 102103
- Скління: СПО, 24мм, (Rсп=0.36)*
- Тип фурнітури: Activpilot поворотно-відкидна, колір білий
- Підбір спеціальний: Activ микровентиляція; Activ 2-функц. механ.
- Моск.сітка: МС 3
- Підвіконня: ВМ 110мм, колір білий
- Підвіконня: ПВ ПВХ 150, заглушки: 600мм, колір білий
- Монтаж
209000 грн.
Двері (комплектність):
- Полотно
- Коробка
- Лиштва
- Карниз
- Фарбування
- Скло
- Фурнітура
- Врізка фурнітуры
- Монтаж
78120 грн.
Фарбування (комплектність):
- Шліфування торців
- Тришарове покриття ефективним деревозахисним засобом на базі низькомолекулярної алкідної смоли методом розпилення.
Оциліндрований брус
Оциліндрований брус є найбільш оптимальним і поширеним матеріалом для будівництва дерев`яних будинків і бань, бесідок, альтанок, різноманітних садових меблів, дерев`яних конструкцій будь-яких видів. Дерев`яні будинки з оциліндрованого брусу відрізняються красою, всередині такого будинку завжди відчувається особлива затишна атмосфера.
Профільований брус
Найсучаснішим і високотехнологічним будівельним матеріалом в дерев`яному будівництві на сьогоднішній день є профільований брус. Для виробництва профільованого брусу, звичайному дерев`яному брусу на спеціальному деревообробному обладнанні надається певний профіль.
Подвійний брус з утепленням
Головна ідея застосування подвійного бруса полягала в досягненні енергоефективності житла. Над проектуванням енергозберігаючих будинків працюють провідні інженери та архітектори в різних країнах світу, запропонована фінами технологія подвійного бруса дає можливість звести до мінімуму тепловтрати будинку, а також об`єднує переваги будівництва дерев`яного будинку з економічністю споруди.
Клеєний брус
Клеєний брус принципово відрізняється від інших типів колод багатошаровістю. Така структура робить цей дерев’яний матеріал надміцним і витривалим.
Каркасні конструкції
Каркасні конструкції виготовляються на власних виробничих потужностях компанії «Домінант», з використанням сучасних деревообробних станків. Імпортне, високоточне обладнання дозволяє нам високоякісно виконувати свою роботу. Каркаси складаються зі струганих, ретельно висушених балок 150х50 мм (сосна першого сорту). Ці балки застосовуються для зовнішніх каркасів.











