Зателефонуйте мені
Авікс №1
Авікс №2
Авікс №3
Авікс №4
Авікс №5
Авікс №6
Авікс №1
Авікс №2
Авікс №3
Авікс №4
Авікс №5
Авікс №6
Авікс №1
Авікс №1 Авікс №2 Авікс №3 Авікс №4 Авікс №5 Авікс №6

Авікс

763 145,00 ₴
Будівництво будинку під ключ 8 на 11 м - «Авікс»
Розмір брусу
  • Оциліндрований 160
  • Оциліндрований 180
  • Оциліндрований 200
  • Оциліндрований 220
  • Профільований 60
  • Профільований 150
  • Профільований 200
  • Подвійний 300
  • Клеєний 120
  • Клеєний 180
Кількість поверхів
1
Площа
94.8
Ширина
11.3
Довжина
8.3
Будинки і житлові будови
Котеджі
Маєтки
Кількість кімнат
Чотирикімнатні будинки
Особливості будинків
Будинки з терасою
Кількість поверхів споруди
Одноповерхові будинки
Будинки з брусу
Будинки з оциліндрованого брусу
 

(Що входить в ціну)

Що входить в базову комплектацію

  • комплект стін;
  • комплект крокв;
  • комплект балок перекриття;
  • утеплювач міжвінцевий;
  • антисептик (антисептування всього матеріалу);
  • дубові нагеля;
  • кріпильні материали (саморізи, усадкові болти, анкера, кріпильні пластини);
  • гідроізоляція;
  • вогнебіозахист (обробка деревини засобом І групи вогнезахисної ефективності)

Будинок прекрасно послужить як в якості заміського дачного котеджу, так і постійного житла. Придбання будинку під ключ Авікс dominant-wood.com.ua/uk/proekty/528-aviks окупиться сторицею господареві і подарує затишне гніздечко для великого сімейства. Котедж включає три спальні, зал, кухню, санвузол, а прикрасою будинку з бруса Авікс виступає літня тераса. Це один з проектів, які компанія «Домінант» пропонує зробити для вас під ключ, а значить зробити все для вас. При бажанні, ви можете замовити у нас навіть базову комплектацію меблів з дерева, що практично завершить внутрішній дизайн. Далі вам залишиться укомплектувати будинок деталями, відповідно до ваших смаків, цікавими дрібницями, що подарують йому душу.

Зовні компактний, всередині просторий. Вміщує в себе одну нуклеарну сім’ю і дає їй все необхідне для затишку та комфорту. Вдале розташування тераси, дозволить вам насолоджуватися природою і спокоєм без зайвих поглядів. Тут можна проводити вечори з друзями в теплу пору року, що так само не стане надбанням сусідів, завдяки задньому дворику. В першу чергу, заходячи в будинок, ви потрапляєте на кухню, поруч з якою знаходиться санвузол. Це дуже зручно з багатьох причин. Праворуч від вас будуть розміщені ряд спалень для жителів Авікса. Можливо, це спочатку буде незвично, але, незабаром, ви оціните цю перевагу.

Цей проект від компанії «Домінант» dominant-wood.com.ua/uk/ може виступати в ролі заміського будинку або дачного гніздечка для всієї родини. Вирішувати вам. Наше завдання показати вам всі можливі варіанти і допомогти вибрати.

Кількість поверхів
1
Площа
94.8
Ширина
11.3
Довжина
8.3
Будинки і житлові будови
Котеджі
Маєтки
Кількість кімнат
Чотирикімнатні будинки
Особливості будинків
Будинки з терасою
Кількість поверхів споруди
Одноповерхові будинки
Будинки з брусу
Будинки з оциліндрованого брусу

Базова комплектація:
(Що входить в ціну)

Що входить в базову комплектацію

  • комплект стін;
  • комплект крокв;
  • комплект балок перекриття;
  • утеплювач міжвінцевий;
  • антисептик (антисептування всього матеріалу);
  • дубові нагеля;
  • кріпильні материали (саморізи, усадкові болти, анкера, кріпильні пластини);
  • гідроізоляція;
  • вогнебіозахист (обробка деревини засобом І групи вогнезахисної ефективності)

332910 грн.

Дах (комплектність):

  • Рейка 100*25мм (cосна)
  • Контрейка 50*25мм (сосна)
  • Металочерепиця МОНТЕРРЕЙ (Польща) 0,45мм
  • Коник прямий
  • Планка примикання
  • Лобова (декоративна) планка
  • Вітровая планка
  • Яндола
  • Капельник (Карнизна планка)
  • Ущільнювач універсальный
  • Саморізи ОС 4.8х35
  • Фарба-спрей
  • Гідробар'єр
  • Монтаж

192940 грн.

Вікна (комплектність):

  • Вікно VEKA 58, колір білий 10
  • Імпости вертикальні: 1 x 102103
  • Скління: СПО, 24мм, (Rсп=0.36)*
  • Тип фурнітури: Activpilot поворотно-відкидна, колір білий
  • Підбір спеціальний: Activ микровентиляція; Activ 2-функц. механ.
  • Моск.сітка: МС 3
  • Підвіконня: ВМ 110мм, колір білий
  • Підвіконня: ПВ ПВХ 150, заглушки: 600мм, колір білий
  • Монтаж

355300 грн.

Двері (комплектність):

  • Полотно
  • Коробка
  • Лиштва
  • Карниз
  • Фарбування
  • Скло
  • Фурнітура
  • Врізка фурнітуры
  • Монтаж

91140 грн.

Фарбування (комплектність):

  • Шліфування торців
  • Тришарове покриття ефективним деревозахисним засобом на базі низькомолекулярної алкідної смоли методом розпилення.

Параметри забудови

  • Кількість поверхів: 1
  • Площа: 94.8

Розмір забудови

  • Ширина: 11.3
  • Довжина: 8.3

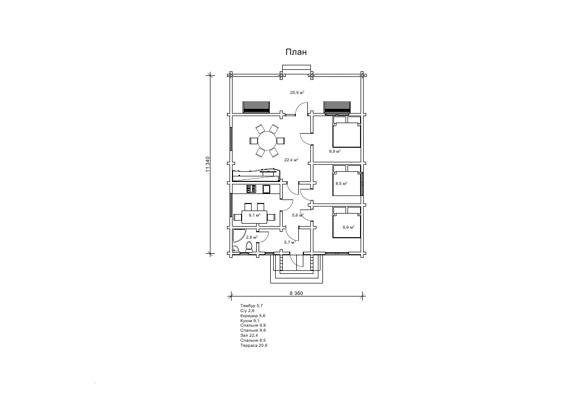
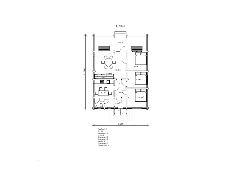
Перший поверх

зал (м²)22,4
коридор (м²)5,6
кухня (м²)9,1
с/в (м²)2,8
спальня (м²)8,5
спальня (м²)9,9
спальня (м²)9,9
тамбур (м²)5,7
тераса (м²)20,9

Оциліндрований брус

Оциліндрований брус є найбільш оптимальним і поширеним матеріалом для будівництва дерев`яних будинків і бань, бесідок, альтанок, різноманітних садових меблів, дерев`яних конструкцій будь-яких видів. Дерев`яні будинки з оциліндрованого брусу відрізняються красою, всередині такого будинку завжди відчувається особлива затишна атмосфера.

Читати далі...

Профільований брус

Найсучаснішим і високотехнологічним будівельним матеріалом в дерев`яному будівництві на сьогоднішній день є профільований брус. Для виробництва профільованого брусу, звичайному дерев`яному брусу на спеціальному деревообробному обладнанні надається певний профіль.

Читати далі...

Подвійний брус з утепленням

Головна ідея застосування подвійного бруса полягала в досягненні енергоефективності житла. Над проектуванням енергозберігаючих будинків працюють провідні інженери та архітектори в різних країнах світу, запропонована фінами технологія подвійного бруса дає можливість звести до мінімуму тепловтрати будинку, а також об`єднує переваги будівництва дерев`яного будинку з економічністю споруди.

Читати далі...

Клеєний брус

Клеєний брус принципово відрізняється від інших типів колод багатошаровістю. Така структура робить цей дерев’яний матеріал надміцним і витривалим.

Читати далі...

Каркасні конструкції

Каркасні конструкції виготовляються на власних виробничих потужностях компанії «Домінант», з використанням сучасних деревообробних станків. Імпортне, високоточне обладнання дозволяє нам високоякісно виконувати свою роботу. Каркаси складаються зі струганих, ретельно висушених балок 150х50 мм (сосна першого сорту). Ці балки застосовуються для зовнішніх каркасів.

Читати далі...

Немає відгуків

Переглянуті товари

16 інших товарів в цій категорії:

Товар додано для порівняння.