Гридні
- Кількість поверхів
- 2
- Площа
- 130.7
- Ширина
- 11.9
- Довжина
- 11
- Будинки і житлові будови
- Котеджі
- Кількість кімнат
- Трикімнатні будинки
- Особливості будинків
- Будинки з терасою
Будинки зі сходами - Кількість поверхів споруди
- Двоповерхові будинки
- Будинки з брусу
- Будинки з оциліндрованого брусу
(Що входить в ціну)
- комплект стін;
- комплект крокв;
- комплект балок перекриття;
- утеплювач міжвінцевий;
- антисептик (антисептування всього матеріалу);
- дубові нагеля;
- кріпильні материали (саморізи, усадкові болти, анкера, кріпильні пластини);
- гідроізоляція;
- вогнебіозахист (обробка деревини засобом І групи вогнезахисної ефективності)
Проект будинку з оциліндрованих колод з терасою
Презентабельний будинок з терасою і масивним дахом виглядає просто дивовижно. З першого погляду мимоволі милуєшся красою будови з великими панорамними вікнами в тіні навісів. Проект «Гридні» немов випромінює затишок і умиротворення, притаманне справжньому зрубу. Адже більше ніде так не відчувається єднання і гармонія з природою, як в будинку з натурального дерева. Так і хочеться пройтися по просторих терасах і заглянути в гостинний будинок, який вже точно давно оселився в чиїйсь мрії і очікує, щоб з’явитися де-небудь в прекрасному куточку нашої планети. Майстри «Домінант» не знають перешкод у своїй роботі і готові створювати комфорт і красу в будь-якій місцевості нашої країни і за кордоном.
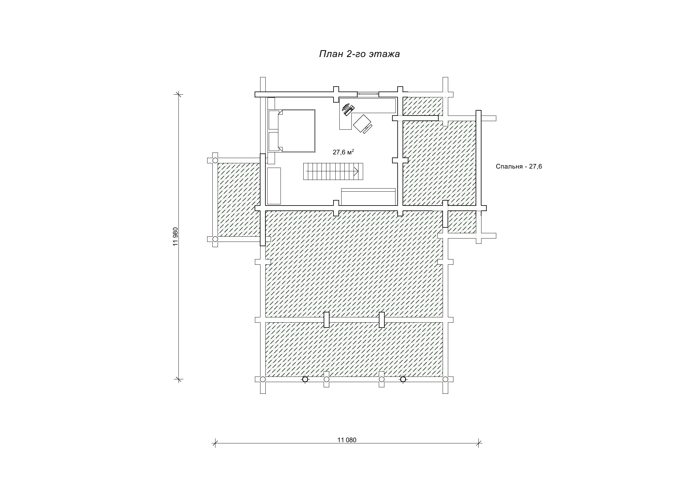
План заміського будинку з колод 11,9 х 11 м «Гридні»
Вдосталь намилувавшись зовнішньою красою славного будиночка, заходимо всередину і бачимо світлий, високий зал. Із залу коридорчик веде в кухню, санвузол і спальню, також передбачений вихід на задній дворик. Дуже незвичайним рішенням планування проекту «Гридні» виступає ідея розмістити лише одне приміщення на другому поверсі будівлі, ця кімната виконує функцію спальні. Можна рекомендувати проект «Гридні» для комфортного проживання сімейної пари, яка любить зустрічати гостей і влаштовувати барбекю біля будинку. В даному випадку спальня на другому поверсі може використовуватися в якості гостьової кімнати. Також будиночок може стати затишним гніздечком для сімейної пари з дитиною або двома дітками. Тоді дитячу кімнату можна облаштувати на другому поверсі, а на терасах біля будинку є маса місця для дитячих ігор. Планування проекту «Гридні» стане запорукою атмосфери тепла і затишку в цьому заміському будинку з колод.
Споруда приватного дерев’яного будинку «Гридні» на 130,7 м2
Проект «Гридні» можна побудувати як в якості житлового будинку, так і заміського або дачного. У будь-якому виконанні він буде прекрасним, особливо в обрамленні квітучих клумб і акуратних парканчиків. Проект створений для того, щоб прикрашати собою навколишню місцевість і чудово вписуватися в будь-який природний ландшафт. Цікаві поради по благоустрою присадибної ділянки можна знайти в розділі нашого сайту «Статті». Класика виконання дерев’яного будинку «Гридні» з оциліндрованих колод ніколи не вийде з моди. Дерев’яний зруб завжди буде затребуваний, тому що поєднує в собі функціональність і привабливість, повністю відповідаючи всім уявленням про гармонійне і комфортне житло.
- Кількість поверхів
- 2
- Площа
- 130.7
- Ширина
- 11.9
- Довжина
- 11
- Будинки і житлові будови
- Котеджі
- Кількість кімнат
- Трикімнатні будинки
- Особливості будинків
- Будинки з терасою
Будинки зі сходами - Кількість поверхів споруди
- Двоповерхові будинки
- Будинки з брусу
- Будинки з оциліндрованого брусу
Базова комплектація:
(Що входить в ціну)
- комплект стін;
- комплект крокв;
- комплект балок перекриття;
- утеплювач міжвінцевий;
- антисептик (антисептування всього матеріалу);
- дубові нагеля;
- кріпильні материали (саморізи, усадкові болти, анкера, кріпильні пластини);
- гідроізоляція;
- вогнебіозахист (обробка деревини засобом І групи вогнезахисної ефективності)
388800 грн.
Дах (комплектність):
- Рейка 100*25мм (cосна)
- Контрейка 50*25мм (сосна)
- Металочерепиця МОНТЕРРЕЙ (Польща) 0,45мм
- Коник прямий
- Планка примикання
- Лобова (декоративна) планка
- Вітровая планка
- Яндола
- Капельник (Карнизна планка)
- Ущільнювач універсальный
- Саморізи ОС 4.8х35
- Фарба-спрей
- Гідробар'єр
- Монтаж
350800 грн.
Вікна (комплектність):
- Вікно VEKA 58, колір білий 10
- Імпости вертикальні: 1 x 102103
- Скління: СПО, 24мм, (Rсп=0.36)*
- Тип фурнітури: Activpilot поворотно-відкидна, колір білий
- Підбір спеціальний: Activ микровентиляція; Activ 2-функц. механ.
- Моск.сітка: МС 3
- Підвіконня: ВМ 110мм, колір білий
- Підвіконня: ПВ ПВХ 150, заглушки: 600мм, колір білий
- Монтаж
0 грн.
Двері (комплектність):
- Полотно
- Коробка
- Лиштва
- Карниз
- Фарбування
- Скло
- Фурнітура
- Врізка фурнітуры
- Монтаж
143220 грн.
Фарбування (комплектність):
- Шліфування торців
- Тришарове покриття ефективним деревозахисним засобом на базі низькомолекулярної алкідної смоли методом розпилення.
Оциліндрований брус
Оциліндрований брус є найбільш оптимальним і поширеним матеріалом для будівництва дерев`яних будинків і бань, бесідок, альтанок, різноманітних садових меблів, дерев`яних конструкцій будь-яких видів. Дерев`яні будинки з оциліндрованого брусу відрізняються красою, всередині такого будинку завжди відчувається особлива затишна атмосфера.
Профільований брус
Найсучаснішим і високотехнологічним будівельним матеріалом в дерев`яному будівництві на сьогоднішній день є профільований брус. Для виробництва профільованого брусу, звичайному дерев`яному брусу на спеціальному деревообробному обладнанні надається певний профіль.
Подвійний брус з утепленням
Головна ідея застосування подвійного бруса полягала в досягненні енергоефективності житла. Над проектуванням енергозберігаючих будинків працюють провідні інженери та архітектори в різних країнах світу, запропонована фінами технологія подвійного бруса дає можливість звести до мінімуму тепловтрати будинку, а також об`єднує переваги будівництва дерев`яного будинку з економічністю споруди.
Клеєний брус
Клеєний брус принципово відрізняється від інших типів колод багатошаровістю. Така структура робить цей дерев’яний матеріал надміцним і витривалим.
Каркасні конструкції
Каркасні конструкції виготовляються на власних виробничих потужностях компанії «Домінант», з використанням сучасних деревообробних станків. Імпортне, високоточне обладнання дозволяє нам високоякісно виконувати свою роботу. Каркаси складаються зі струганих, ретельно висушених балок 150х50 мм (сосна першого сорту). Ці балки застосовуються для зовнішніх каркасів.













