Адальма
- Кількість поверхів
- 1
- Площа
- 116.7
- Ширина
- 12.9
- Довжина
- 9
- Будинки і житлові будови
- Дачі
- Кількість кімнат
- Трикімнатні будинки
- Особливості будинків
- Будинки з терасою
- Кількість поверхів споруди
- Одноповерхові будинки
- Будинки з брусу
- Будинки з оциліндрованого брусу
(Що входить в ціну)
- комплект стін;
- комплект крокв;
- комплект балок перекриття;
- утеплювач міжвінцевий;
- антисептик (антисептування всього матеріалу);
- дубові нагеля;
- кріпильні материали (саморізи, усадкові болти, анкера, кріпильні пластини);
- гідроізоляція;
- вогнебіозахист (обробка деревини засобом І групи вогнезахисної ефективності)
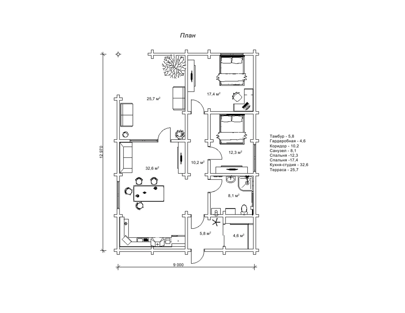
Проект одноповерхового будинку 12,9 на 9 м з двома спальнями
Проект «Адальма» - це неймовірно красивий дерев’яний зруб, який втілює всі переваги проживання у власному будинку! Тут є і тераса, на якій зручно вечеряти в погожі літні вечори; і великі вікна, що наповнюють будинок світлом; і дві затишні кімнати: батьківська спальня і дитяча кімната. Оциліндровані стіни будиночка надають ошатний вигляд котеджу, від нього немов віє теплом і затишком. Котедж «Адальма» створений, щоб втілити вашу мрію про свій будиночку на природі.
Планування будинку на один поверх з двома спальнями, площа 116,7м2
Одноповерховий, дерев’яний будинок з оциліндрованих колод «Адальма» призначений для комфортного проживання та відпочинку родини з 4-х чоловік. Планування будинку характеризується габаритами 12,9 на 9 м і починається з просторої тераси - літній їдальні розміром 25,7 м2. Тераса надійно укрита під скатом покрівлі та відгороджена декоративними бортиками від вулиці, що робить її прекрасним місцем для проведення часу на свіжому повітрі. Навіть в разі дощу тераса захистить від негоди, і в той же час подарує масу насолоди від ефекту присутності в центрі самої стихії. Далі, проходячи в будинок, потрапляємо у велику, світлу кухню-студію з величезними, панорамними вікнами. Є ще один вхід в цей будиночок, облаштований тепловим тамбуром і гардеробом. У зимовий час, коли на терасі буде холодно, можна буде користуватися входом з тепловим тамбуром, який захистить будиночок «Адальма» від попадання холоду всередину приміщень. Дуже комфортним планування роблять дві просторі спальні, великий санвузол. Проект «Адальма» - це комфортний, одноповерховий котедж зі зрубу, в якому затишне планування і справжня близькість природи подарує масу задоволення господарям і гостям родини.
Споруда будинку на один поверх за проектом «Адальма»
Дерев’яний котедж «Адальма» - відмінний вибір для побудови на дачі або в якості постійного житла. Проект обов’язково оцінять ті, хто бажає отримати раціональне планування житлового простору без сходів і другого поверху з розміщенням всіх кімнат на одному рівні. Будинок відповідає всім уявленням про комфортне житло для сім’ї на один поверх з двома спальнями. Споруда будинку на один поверх за проектом «Адальма» стане гідним вибором у випадку ваших сумнівів - що вибрати: одноповерховий або двоповерховий будинок з дерева?. Ми раді запропонувати готове рішення з максимально комфортними умовами для проживання, щоб ви не витрачали час на роздуми по вдалому розміщенню кімнат. Найвимогливіший господар залишиться задоволений, побудувавши котедж «Адальма» на своїй заміській ділянці!
- Кількість поверхів
- 1
- Площа
- 116.7
- Ширина
- 12.9
- Довжина
- 9
- Будинки і житлові будови
- Дачі
- Кількість кімнат
- Трикімнатні будинки
- Особливості будинків
- Будинки з терасою
- Кількість поверхів споруди
- Одноповерхові будинки
- Будинки з брусу
- Будинки з оциліндрованого брусу
Базова комплектація:
(Що входить в ціну)
- комплект стін;
- комплект крокв;
- комплект балок перекриття;
- утеплювач міжвінцевий;
- антисептик (антисептування всього матеріалу);
- дубові нагеля;
- кріпильні материали (саморізи, усадкові болти, анкера, кріпильні пластини);
- гідроізоляція;
- вогнебіозахист (обробка деревини засобом І групи вогнезахисної ефективності)
383940 грн.
Дах (комплектність):
- Рейка 100*25мм (cосна)
- Контрейка 50*25мм (сосна)
- Металочерепиця МОНТЕРРЕЙ (Польща) 0,45мм
- Коник прямий
- Планка примикання
- Лобова (декоративна) планка
- Вітровая планка
- Яндола
- Капельник (Карнизна планка)
- Ущільнювач універсальный
- Саморізи ОС 4.8х35
- Фарба-спрей
- Гідробар'єр
- Монтаж
245560 грн.
Вікна (комплектність):
- Вікно VEKA 58, колір білий 10
- Імпости вертикальні: 1 x 102103
- Скління: СПО, 24мм, (Rсп=0.36)*
- Тип фурнітури: Activpilot поворотно-відкидна, колір білий
- Підбір спеціальний: Activ микровентиляція; Activ 2-функц. механ.
- Моск.сітка: МС 3
- Підвіконня: ВМ 110мм, колір білий
- Підвіконня: ПВ ПВХ 150, заглушки: 600мм, колір білий
- Монтаж
83600 грн.
Двері (комплектність):
- Полотно
- Коробка
- Лиштва
- Карниз
- Фарбування
- Скло
- Фурнітура
- Врізка фурнітуры
- Монтаж
184016 грн.
Фарбування (комплектність):
- Шліфування торців
- Тришарове покриття ефективним деревозахисним засобом на базі низькомолекулярної алкідної смоли методом розпилення.
Оциліндрований брус
Оциліндрований брус є найбільш оптимальним і поширеним матеріалом для будівництва дерев`яних будинків і бань, бесідок, альтанок, різноманітних садових меблів, дерев`яних конструкцій будь-яких видів. Дерев`яні будинки з оциліндрованого брусу відрізняються красою, всередині такого будинку завжди відчувається особлива затишна атмосфера.
Профільований брус
Найсучаснішим і високотехнологічним будівельним матеріалом в дерев`яному будівництві на сьогоднішній день є профільований брус. Для виробництва профільованого брусу, звичайному дерев`яному брусу на спеціальному деревообробному обладнанні надається певний профіль.
Подвійний брус з утепленням
Головна ідея застосування подвійного бруса полягала в досягненні енергоефективності житла. Над проектуванням енергозберігаючих будинків працюють провідні інженери та архітектори в різних країнах світу, запропонована фінами технологія подвійного бруса дає можливість звести до мінімуму тепловтрати будинку, а також об`єднує переваги будівництва дерев`яного будинку з економічністю споруди.
Клеєний брус
Клеєний брус принципово відрізняється від інших типів колод багатошаровістю. Така структура робить цей дерев’яний матеріал надміцним і витривалим.
Каркасні конструкції
Каркасні конструкції виготовляються на власних виробничих потужностях компанії «Домінант», з використанням сучасних деревообробних станків. Імпортне, високоточне обладнання дозволяє нам високоякісно виконувати свою роботу. Каркаси складаються зі струганих, ретельно висушених балок 150х50 мм (сосна першого сорту). Ці балки застосовуються для зовнішніх каркасів.














