Жакона2
- Кількість поверхів
- 1
- Площа
- 100.6
- Ширина
- 14.8
- Довжина
- 6.8
- Будинки і житлові будови
- Дачі
- Кількість кімнат
- Трикімнатні будинки
- Особливості будинків
- Будинки з терасою
- Кількість поверхів споруди
- Одноповерхові будинки
- Будинки з брусу
- Будинки з оциліндрованого брусу
(Що входить в ціну)
- комплект стін;
- комплект крокв;
- комплект балок перекриття;
- утеплювач міжвінцевий;
- антисептик (антисептування всього матеріалу);
- дубові нагеля;
- кріпильні материали (саморізи, усадкові болти, анкера, кріпильні пластини);
- гідроізоляція;
- вогнебіозахист (обробка деревини засобом І групи вогнезахисної ефективності)
Проект оциліндрованого будинку з дерева «Жакона2»
Не раз ми вже будували один з найцікавіших проектів «Жакона» з сухого профільованого бруса. На цей раз клієнт захотів отримати саме такий же оригінальний будиночок, тільки з оциліндрованих колод. Попередня модель з сухого бруса призначалася для прихильників мінімалізму і стилю хай-тек. Нова версія проекту виглядає більш ошатно і масштабно за рахунок використання круглих колод для будівництва. Крім технології будівництва в проекті нічого практично не змінилося. Також спостерігаємо односхилий дах над будинком і прозорий навіс над терасою. А внутрішнє планування також зручне, що не залишає байдужим жодного замовника.
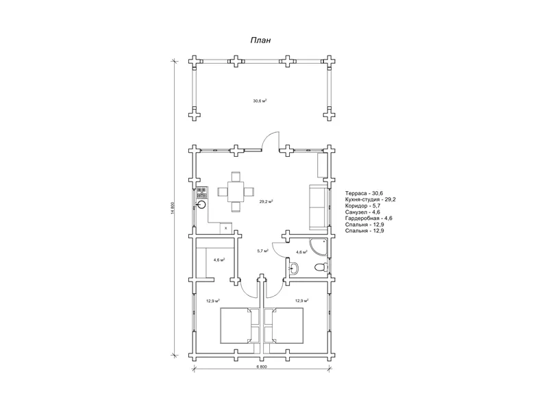
Одноповерховий будинок з колод «Жакона2», площа 100,6 м²
Параметри будівлі становлять 14,8 на 6,8 м, загальна площа - 100,6 м2. Такі габарити, як правило, дуже популярні серед клієнтів і зручні для побудови практично на будь-якій ділянці землі. Терасу з перголами, мабуть, можна назвати головним елементом екстер’єру проекту «Жакона2». Завдяки такому розкішному простору біля будинку, господарі та їхні гості отримують масу можливостей для проведення дозвілля на свіжому повітрі. Планування внутрішніх приміщень створює всі умови для проживання невеликої родини. Тут є дві спальні, гардероб, санвузол і кухня-студія. Прекрасні умови для відпочинку і житла. Чудове поєднання зовнішньої краси, зручного планування і доступної вартості споруди робить проект «Жакона2» одним з найбільш затребуваних серед замовників.
Будівництво оциліндрованого будинку з дерева за готовим проектом «Жакона2»
Готовий проект «Жакона2» рекомендується для проживання невеликої родини або в якості заміського дачного будинку . Оциліндрована колода, з якого виконаний пропонований проект, є одним з найбільш бюджетних будівельних матеріалів для будівництва. Крім того, саме в оциліндрованої будинку з соснової деревини утворюється мікроклімат максимально наближений до природних умов. У такій атмосфері людина відчуває себе набагато краще і здоровіше, ніж в будівлях зі штучних матеріалів. Замовлення будівництва оциліндрованого будинку з дерева за готовим проектом «Жакона2» можна зробити за номерами телефону, вказаними в наших контактних даних на сайті. «Жакона2» з цікавим фасадом і неймовірно привабливою, літньою терасою подарує масу дивовижних миттєвостей своїм господарям.
- Кількість поверхів
- 1
- Площа
- 100.6
- Ширина
- 14.8
- Довжина
- 6.8
- Будинки і житлові будови
- Дачі
- Кількість кімнат
- Трикімнатні будинки
- Особливості будинків
- Будинки з терасою
- Кількість поверхів споруди
- Одноповерхові будинки
- Будинки з брусу
- Будинки з оциліндрованого брусу
Базова комплектація:
(Що входить в ціну)
- комплект стін;
- комплект крокв;
- комплект балок перекриття;
- утеплювач міжвінцевий;
- антисептик (антисептування всього матеріалу);
- дубові нагеля;
- кріпильні материали (саморізи, усадкові болти, анкера, кріпильні пластини);
- гідроізоляція;
- вогнебіозахист (обробка деревини засобом І групи вогнезахисної ефективності)
255150 грн.
Дах (комплектність):
- Рейка 100*25мм (cосна)
- Контрейка 50*25мм (сосна)
- Металочерепиця МОНТЕРРЕЙ (Польща) 0,45мм
- Коник прямий
- Планка примикання
- Лобова (декоративна) планка
- Вітровая планка
- Яндола
- Капельник (Карнизна планка)
- Ущільнювач універсальный
- Саморізи ОС 4.8х35
- Фарба-спрей
- Гідробар'єр
- Монтаж
298180 грн.
Вікна (комплектність):
- Вікно VEKA 58, колір білий 10
- Імпости вертикальні: 1 x 102103
- Скління: СПО, 24мм, (Rсп=0.36)*
- Тип фурнітури: Activpilot поворотно-відкидна, колір білий
- Підбір спеціальний: Activ микровентиляція; Activ 2-функц. механ.
- Моск.сітка: МС 3
- Підвіконня: ВМ 110мм, колір білий
- Підвіконня: ПВ ПВХ 150, заглушки: 600мм, колір білий
- Монтаж
83600 грн.
Двері (комплектність):
- Полотно
- Коробка
- Лиштва
- Карниз
- Фарбування
- Скло
- Фурнітура
- Врізка фурнітуры
- Монтаж
164052 грн.
Фарбування (комплектність):
- Шліфування торців
- Тришарове покриття ефективним деревозахисним засобом на базі низькомолекулярної алкідної смоли методом розпилення.
Оциліндрований брус
Оциліндрований брус є найбільш оптимальним і поширеним матеріалом для будівництва дерев`яних будинків і бань, бесідок, альтанок, різноманітних садових меблів, дерев`яних конструкцій будь-яких видів. Дерев`яні будинки з оциліндрованого брусу відрізняються красою, всередині такого будинку завжди відчувається особлива затишна атмосфера.
Профільований брус
Найсучаснішим і високотехнологічним будівельним матеріалом в дерев`яному будівництві на сьогоднішній день є профільований брус. Для виробництва профільованого брусу, звичайному дерев`яному брусу на спеціальному деревообробному обладнанні надається певний профіль.
Подвійний брус з утепленням
Головна ідея застосування подвійного бруса полягала в досягненні енергоефективності житла. Над проектуванням енергозберігаючих будинків працюють провідні інженери та архітектори в різних країнах світу, запропонована фінами технологія подвійного бруса дає можливість звести до мінімуму тепловтрати будинку, а також об`єднує переваги будівництва дерев`яного будинку з економічністю споруди.
Клеєний брус
Клеєний брус принципово відрізняється від інших типів колод багатошаровістю. Така структура робить цей дерев’яний матеріал надміцним і витривалим.
Каркасні конструкції
Каркасні конструкції виготовляються на власних виробничих потужностях компанії «Домінант», з використанням сучасних деревообробних станків. Імпортне, високоточне обладнання дозволяє нам високоякісно виконувати свою роботу. Каркаси складаються зі струганих, ретельно висушених балок 150х50 мм (сосна першого сорту). Ці балки застосовуються для зовнішніх каркасів.










