Говард
- Кількість поверхів
- 2
- Площа
- 169.5
- Ширина
- 13
- Довжина
- 11
- Будинки і житлові будови
- Котеджі
- Кількість кімнат
- Чотирикімнатні будинки
- Особливості будинків
- Будинки з терасою
Будинки зі сходами - Кількість поверхів споруди
- Двоповерхові будинки
- Будинки з брусу
- Будинки з оциліндрованого брусу
(Що входить в ціну)
- комплект стін;
- комплект крокв;
- комплект балок перекриття;
- утеплювач міжвінцевий;
- антисептик (антисептування всього матеріалу);
- дубові нагеля;
- кріпильні материали (саморізи, усадкові болти, анкера, кріпильні пластини);
- гідроізоляція;
- вогнебіозахист (обробка деревини засобом І групи вогнезахисної ефективності)
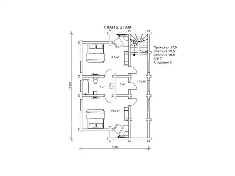
Представляємо проект житлового будинку з оциліндрованого бруса Говард. У будинку передбачено два поверхи і всі приміщення, щоб зробити проживання в ньому максимально комфортним для великого сімейства. Перший поверх включає тамбур, вітальню, кухню, спальню, санвузол і ванну кімнату. Перед головним фасадом є невелика літня тераса, на якій можна організувати куточок для чаювань на свіжому повітрі. На другому поверсі сплановані приміщення передпокою, двох спалень, санвузла з ванною і комори. Це відмінний варіант заміського будинку для постійного проживання.
Зовні будинок виглядає так мініатюрно, що неможливо повірити, що в ньому стільки місця. Швидше за все, цей ефект проводиться за рахунок форми самого будинку і подачі тераси, а також за рахунок форми і кількості вікон. Зона п’ятикутника в проекті Говард dominant-wood.com.ua/uk/proekty/499-govard візуально виглядає з боку як окрема частина його, хоча насправді є просто розширеною частиною вітальні. Вітальня від цього тільки виграла в просторі і освітленні. Вона стане центром збору всіх гостей. Тут відбуватимуться найважливіші події в будинку. Доречним буде встановити тут кінозал або просто кілька м’яких диванів, щоб всі розмістилися з комфортом.
Використання різних видів даху, в залежності від рівнів будівлі, так само впливає на зовнішність споруди. Надає їй солідності і приємного вигляду. Говард стане гордістю будь-якого, хто захоче бути його господарем і принесе в його життя багато щасливих моментів. Приводом для одного з них стане те, що ви лише вибираєте проект, а його повну реалізацію бере на себе компанія «Домінант» dominant-wood.com.ua/uk.
- Кількість поверхів
- 2
- Площа
- 169.5
- Ширина
- 13
- Довжина
- 11
- Будинки і житлові будови
- Котеджі
- Кількість кімнат
- Чотирикімнатні будинки
- Особливості будинків
- Будинки з терасою
Будинки зі сходами - Кількість поверхів споруди
- Двоповерхові будинки
- Будинки з брусу
- Будинки з оциліндрованого брусу
Базова комплектація:
(Що входить в ціну)
- комплект стін;
- комплект крокв;
- комплект балок перекриття;
- утеплювач міжвінцевий;
- антисептик (антисептування всього матеріалу);
- дубові нагеля;
- кріпильні материали (саморізи, усадкові болти, анкера, кріпильні пластини);
- гідроізоляція;
- вогнебіозахист (обробка деревини засобом І групи вогнезахисної ефективності)
379080 грн.
Дах (комплектність):
- Рейка 100*25мм (cосна)
- Контрейка 50*25мм (сосна)
- Металочерепиця МОНТЕРРЕЙ (Польща) 0,45мм
- Коник прямий
- Планка примикання
- Лобова (декоративна) планка
- Вітровая планка
- Яндола
- Капельник (Карнизна планка)
- Ущільнювач універсальный
- Саморізи ОС 4.8х35
- Фарба-спрей
- Гідробар'єр
- Монтаж
491120 грн.
Вікна (комплектність):
- Вікно VEKA 58, колір білий 10
- Імпости вертикальні: 1 x 102103
- Скління: СПО, 24мм, (Rсп=0.36)*
- Тип фурнітури: Activpilot поворотно-відкидна, колір білий
- Підбір спеціальний: Activ микровентиляція; Activ 2-функц. механ.
- Моск.сітка: МС 3
- Підвіконня: ВМ 110мм, колір білий
- Підвіконня: ПВ ПВХ 150, заглушки: 600мм, колір білий
- Монтаж
0 грн.
Двері (комплектність):
- Полотно
- Коробка
- Лиштва
- Карниз
- Фарбування
- Скло
- Фурнітура
- Врізка фурнітуры
- Монтаж
179676 грн.
Фарбування (комплектність):
- Шліфування торців
- Тришарове покриття ефективним деревозахисним засобом на базі низькомолекулярної алкідної смоли методом розпилення.
Оциліндрований брус
Оциліндрований брус є найбільш оптимальним і поширеним матеріалом для будівництва дерев`яних будинків і бань, бесідок, альтанок, різноманітних садових меблів, дерев`яних конструкцій будь-яких видів. Дерев`яні будинки з оциліндрованого брусу відрізняються красою, всередині такого будинку завжди відчувається особлива затишна атмосфера.
Профільований брус
Найсучаснішим і високотехнологічним будівельним матеріалом в дерев`яному будівництві на сьогоднішній день є профільований брус. Для виробництва профільованого брусу, звичайному дерев`яному брусу на спеціальному деревообробному обладнанні надається певний профіль.
Подвійний брус з утепленням
Головна ідея застосування подвійного бруса полягала в досягненні енергоефективності житла. Над проектуванням енергозберігаючих будинків працюють провідні інженери та архітектори в різних країнах світу, запропонована фінами технологія подвійного бруса дає можливість звести до мінімуму тепловтрати будинку, а також об`єднує переваги будівництва дерев`яного будинку з економічністю споруди.
Клеєний брус
Клеєний брус принципово відрізняється від інших типів колод багатошаровістю. Така структура робить цей дерев’яний матеріал надміцним і витривалим.
Каркасні конструкції
Каркасні конструкції виготовляються на власних виробничих потужностях компанії «Домінант», з використанням сучасних деревообробних станків. Імпортне, високоточне обладнання дозволяє нам високоякісно виконувати свою роботу. Каркаси складаються зі струганих, ретельно висушених балок 150х50 мм (сосна першого сорту). Ці балки застосовуються для зовнішніх каркасів.












