Греніт
- Кількість поверхів
- 1
- Площа
- 178.7
- Ширина
- 18.9
- Довжина
- 15.9
- Будинки і житлові будови
- Вілли
Котеджі
Маєтки
Садиби - Особливості будинків
- Будинки з гаражем
Будинки з навісом
Будинки з терасою - Будинки з брусу
- Будинки з клеєного брусу
Будинки з профільованого брусу
(Що входить в ціну)
- комплект стін;
- комплект крокв;
- комплект балок перекриття;
- утеплювач міжвінцевий;
- антисептик (антисептування всього матеріалу);
- дубові нагеля;
- кріпильні материали (саморізи, усадкові болти, анкера, кріпильні пластини);
- гідроізоляція;
- вогнебіозахист (обробка деревини засобом І групи вогнезахисної ефективності)
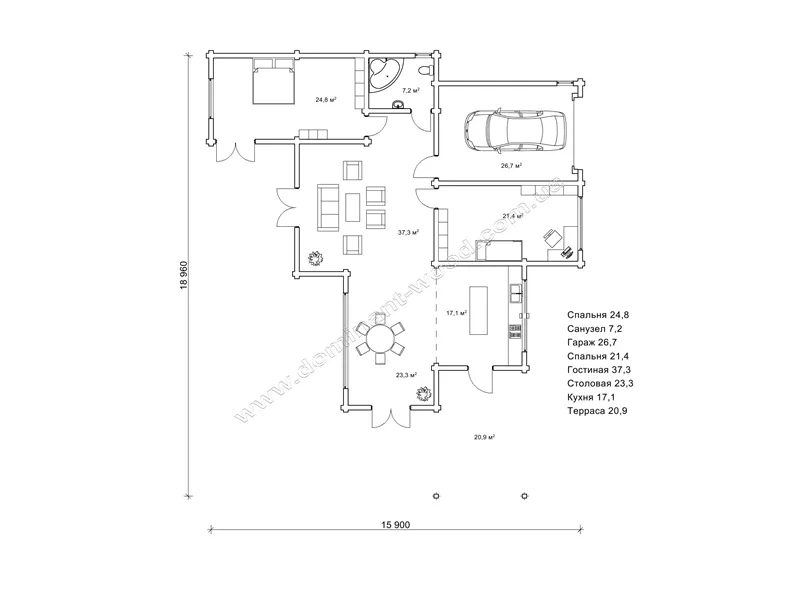
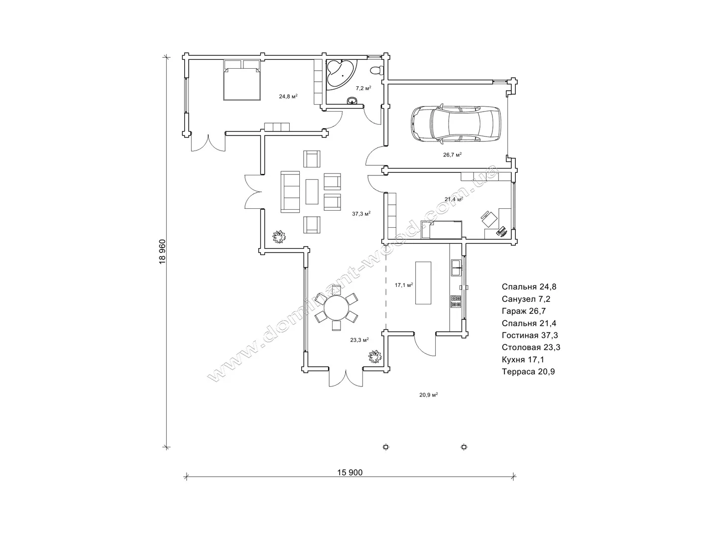
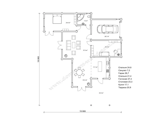
Проект одноповерхової вілли «Греніт»
Одноповерхова вілла «Греніт» цікаво виконана з цілісного сухого профільованого брусу, немов складена з декількох маленьких будиночків. Конструктивно цей проект вимагає наявності досить великої території, щоб розташувати всі необхідні приміщення на одному поверсі. Така модель дерев’яного будинку рекомендується для тих, хто не любить підніматися по сходах і, можливо, для районів з підвищеною сейсмічною активністю. Як відомо, дерев’яний будинок дуже сейсмостійкий за своєю природою, і така одноповерхова споруда як «Греніт» витримає землетрус 7,5-9 балів.
Планування заміської вілли «Греніт» з гаражем і навісом
Дерев’яна вілла «Греніт» спроектована в параметрах 18,9 м на 15,9 м. При вході в будинок немає теплового тамбура і це підкреслює, що будиночок створений для відпочинку за містом переважно в теплий період часу. Або для будівництва на березі теплого моря або океану, де такий одноповерховий котедж буде особливо стійким проти морського вітру і шторму. Біля входу всередину вілли спроектований навіс, де так гарно зустрічати світанки і заходи або просто збиратися на сімейні посиденьки. Всередині будинку є вітальня, їдальня і кухня. Причому всі ці приміщення виконані в одному студійному просторі. Також дерев’яна вілла містить дві спальні, один санвузол і гараж для автомобіля, тому цей заміський котедж цілком можна орендувати мандрівникам на своєму автомобілі.
Будівництво одноповерхової вілли з сухого брусу «Греніт», площа 178,7 м2
Проекти будинків з гаражем, також як і проекти зрубів з навісом дуже функціональні і затребувані в першу чергу. Звернувшись в офіс «Домінант», ви зможете зробити замовлення на будівництво одноповерхової вілли з сухого брусу, і незабаром всі будуть милуватися своєрідною красою і оригінальністю вашого заміського будинку. Проект «Греніт» створений кваліфікованими фахівцями компанії «Домінант», щоб стати справжньою гордістю своїх господарів і організувати максимально комфортні умови проживання за містом.
- Кількість поверхів
- 1
- Площа
- 178.7
- Ширина
- 18.9
- Довжина
- 15.9
- Будинки і житлові будови
- Вілли
Котеджі
Маєтки
Садиби - Особливості будинків
- Будинки з гаражем
Будинки з навісом
Будинки з терасою - Будинки з брусу
- Будинки з клеєного брусу
Будинки з профільованого брусу
Базова комплектація:
(Що входить в ціну)
- комплект стін;
- комплект крокв;
- комплект балок перекриття;
- утеплювач міжвінцевий;
- антисептик (антисептування всього матеріалу);
- дубові нагеля;
- кріпильні материали (саморізи, усадкові болти, анкера, кріпильні пластини);
- гідроізоляція;
- вогнебіозахист (обробка деревини засобом І групи вогнезахисної ефективності)
775170 грн.
Дах (комплектність):
- Рейка 100*25мм (cосна)
- Контрейка 50*25мм (сосна)
- Металочерепиця МОНТЕРРЕЙ (Польща) 0,45мм
- Коник прямий
- Планка примикання
- Лобова (декоративна) планка
- Вітровая планка
- Яндола
- Капельник (Карнизна планка)
- Ущільнювач універсальный
- Саморізи ОС 4.8х35
- Фарба-спрей
- Гідробар'єр
- Монтаж
543740 грн.
Вікна (комплектність):
- Вікно VEKA 58, колір білий 10
- Імпости вертикальні: 1 x 102103
- Скління: СПО, 24мм, (Rсп=0.36)*
- Тип фурнітури: Activpilot поворотно-відкидна, колір білий
- Підбір спеціальний: Activ микровентиляція; Activ 2-функц. механ.
- Моск.сітка: МС 3
- Підвіконня: ВМ 110мм, колір білий
- Підвіконня: ПВ ПВХ 150, заглушки: 600мм, колір білий
- Монтаж
271700 грн.
Двері (комплектність):
- Полотно
- Коробка
- Лиштва
- Карниз
- Фарбування
- Скло
- Фурнітура
- Врізка фурнітуры
- Монтаж
277760 грн.
Фарбування (комплектність):
- Шліфування торців
- Тришарове покриття ефективним деревозахисним засобом на базі низькомолекулярної алкідної смоли методом розпилення.
Оциліндрований брус
Оциліндрований брус є найбільш оптимальним і поширеним матеріалом для будівництва дерев`яних будинків і бань, бесідок, альтанок, різноманітних садових меблів, дерев`яних конструкцій будь-яких видів. Дерев`яні будинки з оциліндрованого брусу відрізняються красою, всередині такого будинку завжди відчувається особлива затишна атмосфера.
Профільований брус
Найсучаснішим і високотехнологічним будівельним матеріалом в дерев`яному будівництві на сьогоднішній день є профільований брус. Для виробництва профільованого брусу, звичайному дерев`яному брусу на спеціальному деревообробному обладнанні надається певний профіль.
Подвійний брус з утепленням
Головна ідея застосування подвійного бруса полягала в досягненні енергоефективності житла. Над проектуванням енергозберігаючих будинків працюють провідні інженери та архітектори в різних країнах світу, запропонована фінами технологія подвійного бруса дає можливість звести до мінімуму тепловтрати будинку, а також об`єднує переваги будівництва дерев`яного будинку з економічністю споруди.
Клеєний брус
Клеєний брус принципово відрізняється від інших типів колод багатошаровістю. Така структура робить цей дерев’яний матеріал надміцним і витривалим.
Каркасні конструкції
Каркасні конструкції виготовляються на власних виробничих потужностях компанії «Домінант», з використанням сучасних деревообробних станків. Імпортне, високоточне обладнання дозволяє нам високоякісно виконувати свою роботу. Каркаси складаються зі струганих, ретельно висушених балок 150х50 мм (сосна першого сорту). Ці балки застосовуються для зовнішніх каркасів.










