Зателефонуйте мені
Файдра №1
Файдра №2
Файдра №3
Файдра №4
Файдра №5
Файдра №6
Файдра №7
Файдра №1
Файдра №2
Файдра №3
Файдра №4
Файдра №5
Файдра №6
Файдра №7
Файдра №1
Файдра №1 Файдра №2 Файдра №3 Файдра №4 Файдра №5 Файдра №6 Файдра №7

Файдра

554 636,00 ₴
Будиночок-зруб для відпочинку - «Файдра»
Розмір брусу
  • Оциліндрований 160
  • Оциліндрований 180
  • Оциліндрований 200
  • Оциліндрований 220
  • Профільований 60
  • Профільований 150
  • Профільований 200
  • Подвійний 300
  • Клеєний 120
  • Клеєний 180
Кількість поверхів
2
Площа
101
Ширина
8.2
Довжина
7.9
Будинки і житлові будови
Дачі
Котеджі
Кількість кімнат
Двокімнатні будинки
Особливості будинків
Будинки з мансардою
Будинки з терасою
Будинки зі сходами
Кількість поверхів споруди
Двоповерхові будинки
Будинки з брусу
Будинки з оциліндрованого брусу
Комерційні будівлі
Бази відпочинку
 

(Що входить в ціну)

Що входить в базову комплектацію

  • комплект стін;
  • комплект крокв;
  • комплект балок перекриття;
  • утеплювач міжвінцевий;
  • антисептик (антисептування всього матеріалу);
  • дубові нагеля;
  • кріпильні материали (саморізи, усадкові болти, анкера, кріпильні пластини);
  • гідроізоляція;
  • вогнебіозахист (обробка деревини засобом І групи вогнезахисної ефективності)

Будиночок-зруб «Файдра» 8,2х7,9 м

Барвистий дерев’яний дизайн зрубу «Файдра» нікого не залишить байдужим. Дивовижне переплетіння колод створює неповторний зовнішній дизайн. Уже при одному погляді на проект, відчуваєш присутність казки та згадуєш слова Білої королеви із задзеркалля: «Мені іноді вдавалося повірити в шість неможливих речей вранці до сніданку ...» Дійсно, немає нічого неможливого, і чудовий дерев’яний будиночок в найближчому майбутньому може стати прикрасою вашої ділянки!

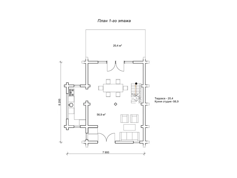
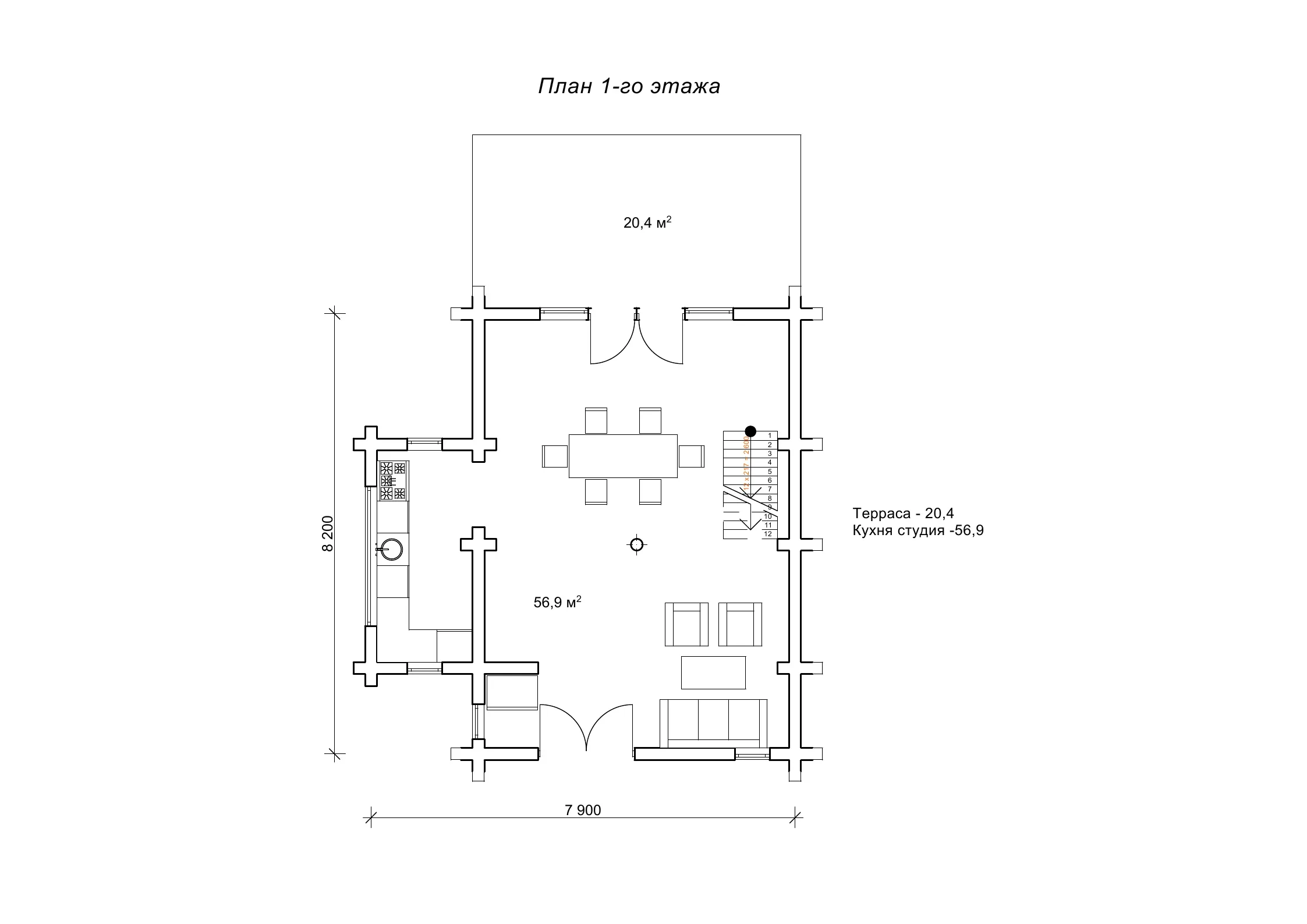
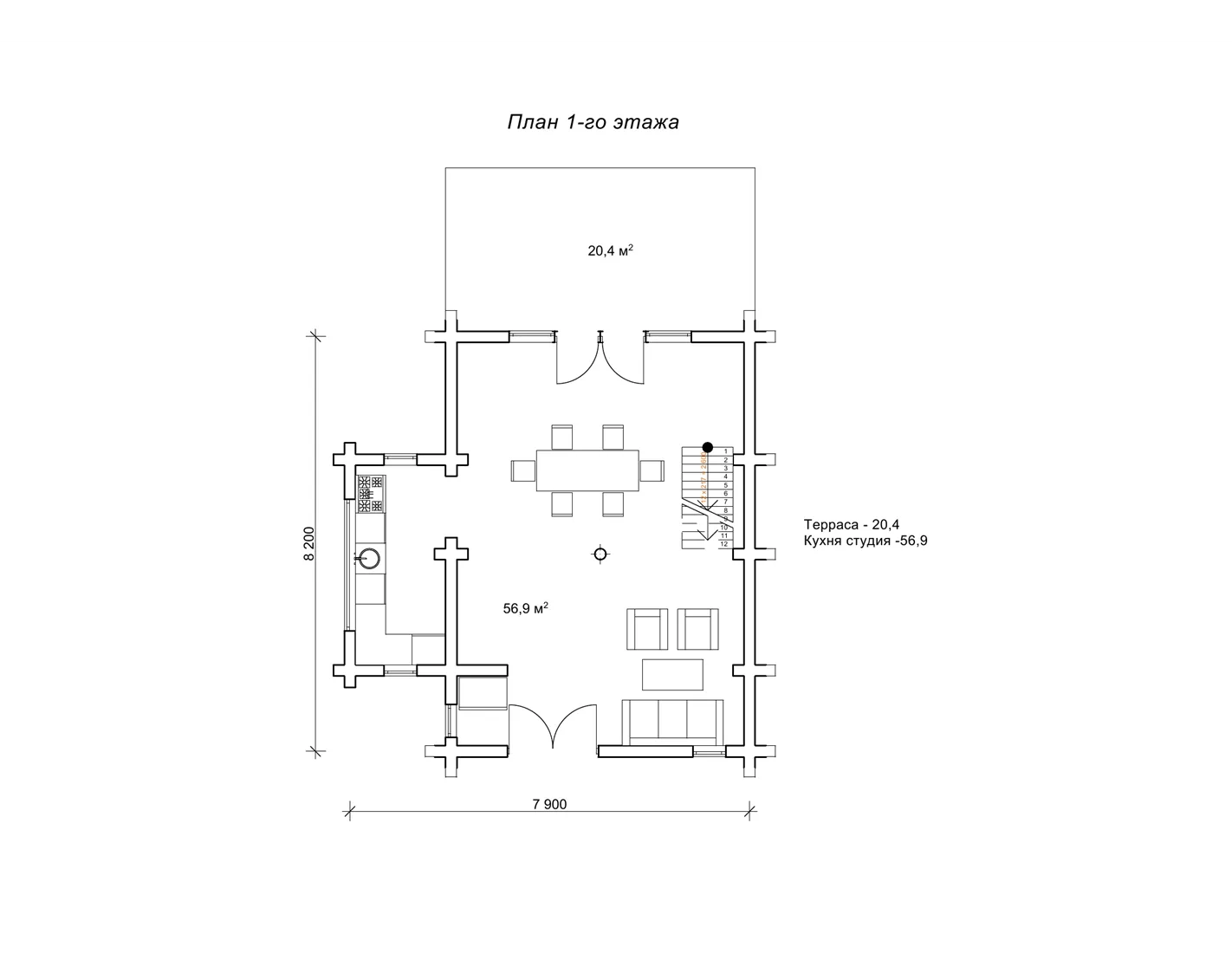
План будиночка-зрубу для відпочинку, площа 101 м2

Інтер’єр будиночка для відпочинку «Файдра» не менше цікавий, ніж його зовнішній вигляд. На першому поверсі зрубу розташоване велике студійне приміщення площею 56,9 м2, яке розподіляється на окремі функціональні зони: зона відпочинку з м’яким куточком, їдальня, кухня, сходова зона. Перед входом розташовується повністю відкрита літня тераса, де можна позасмагати і вдосталь насолодитися сонечком. Другий поверх будиночка є також відкритим простором із другим світлом. Щоб піднятися в спальню можна вибрати цікавий дизайн сходів або використовувати приставні. Як бачимо, в плануванні будиночка не передбачено наявність санвузла. Справа в тому, що будиночок-зруб «Файдра» спеціально створювався, щоб доповнити собою базу відпочинку з декількох таких котеджів, де в окремій будові розташовані санвузли. Таке розміщення об’єктів, як правило, практикується на території, де місцевість не дозволяє поєднати все необхідне в одному великому будинку.

Будівництво хмарочоса-зрубу, проект «Файдра»

Про будиночок-зруб «Файдра» можна сказати, що його особлива аура, яка властива тільки дерев’яним зрубам, сприяє справжньому відпочинку, при якому відбувається повне перезавантаження почуттів, емоцій, станів. У той самий момент, коли переступаєш поріг будиночка, немов огортає атмосфера деревної свіжості, а студійний простір, організованй на різних рівнях, викликає відчуття польоту. Звертайтеся за нашими контактними даними - і ми швидко і якісно виконаємо будівництво проекту «Файдра», який створений щоб стати особливим місцем, де вас чекає багато незабутніх моментів.

Кількість поверхів
2
Площа
101
Ширина
8.2
Довжина
7.9
Будинки і житлові будови
Дачі
Котеджі
Кількість кімнат
Двокімнатні будинки
Особливості будинків
Будинки з мансардою
Будинки з терасою
Будинки зі сходами
Кількість поверхів споруди
Двоповерхові будинки
Будинки з брусу
Будинки з оциліндрованого брусу
Комерційні будівлі
Бази відпочинку

Базова комплектація:
(Що входить в ціну)

Що входить в базову комплектацію

  • комплект стін;
  • комплект крокв;
  • комплект балок перекриття;
  • утеплювач міжвінцевий;
  • антисептик (антисептування всього матеріалу);
  • дубові нагеля;
  • кріпильні материали (саморізи, усадкові болти, анкера, кріпильні пластини);
  • гідроізоляція;
  • вогнебіозахист (обробка деревини засобом І групи вогнезахисної ефективності)

255150 грн.

Дах (комплектність):

  • Рейка 100*25мм (cосна)
  • Контрейка 50*25мм (сосна)
  • Металочерепиця МОНТЕРРЕЙ (Польща) 0,45мм
  • Коник прямий
  • Планка примикання
  • Лобова (декоративна) планка
  • Вітровая планка
  • Яндола
  • Капельник (Карнизна планка)
  • Ущільнювач універсальный
  • Саморізи ОС 4.8х35
  • Фарба-спрей
  • Гідробар'єр
  • Монтаж

140320 грн.

Вікна (комплектність):

  • Вікно VEKA 58, колір білий 10
  • Імпости вертикальні: 1 x 102103
  • Скління: СПО, 24мм, (Rсп=0.36)*
  • Тип фурнітури: Activpilot поворотно-відкидна, колір білий
  • Підбір спеціальний: Activ микровентиляція; Activ 2-функц. механ.
  • Моск.сітка: МС 3
  • Підвіконня: ВМ 110мм, колір білий
  • Підвіконня: ПВ ПВХ 150, заглушки: 600мм, колір білий
  • Монтаж

0 грн.

Двері (комплектність):

  • Полотно
  • Коробка
  • Лиштва
  • Карниз
  • Фарбування
  • Скло
  • Фурнітура
  • Врізка фурнітуры
  • Монтаж

104160 грн.

Фарбування (комплектність):

  • Шліфування торців
  • Тришарове покриття ефективним деревозахисним засобом на базі низькомолекулярної алкідної смоли методом розпилення.

Параметри забудови

  • Кількість поверхів: 2
  • Площа: 101

Розмір забудови

  • Ширина: 8.2
  • Довжина: 7.9

Перший поверх

Другий поверх

Оциліндрований брус

Оциліндрований брус є найбільш оптимальним і поширеним матеріалом для будівництва дерев`яних будинків і бань, бесідок, альтанок, різноманітних садових меблів, дерев`яних конструкцій будь-яких видів. Дерев`яні будинки з оциліндрованого брусу відрізняються красою, всередині такого будинку завжди відчувається особлива затишна атмосфера.

Читати далі...

Профільований брус

Найсучаснішим і високотехнологічним будівельним матеріалом в дерев`яному будівництві на сьогоднішній день є профільований брус. Для виробництва профільованого брусу, звичайному дерев`яному брусу на спеціальному деревообробному обладнанні надається певний профіль.

Читати далі...

Подвійний брус з утепленням

Головна ідея застосування подвійного бруса полягала в досягненні енергоефективності житла. Над проектуванням енергозберігаючих будинків працюють провідні інженери та архітектори в різних країнах світу, запропонована фінами технологія подвійного бруса дає можливість звести до мінімуму тепловтрати будинку, а також об`єднує переваги будівництва дерев`яного будинку з економічністю споруди.

Читати далі...

Клеєний брус

Клеєний брус принципово відрізняється від інших типів колод багатошаровістю. Така структура робить цей дерев’яний матеріал надміцним і витривалим.

Читати далі...

Каркасні конструкції

Каркасні конструкції виготовляються на власних виробничих потужностях компанії «Домінант», з використанням сучасних деревообробних станків. Імпортне, високоточне обладнання дозволяє нам високоякісно виконувати свою роботу. Каркаси складаються зі струганих, ретельно висушених балок 150х50 мм (сосна першого сорту). Ці балки застосовуються для зовнішніх каркасів.

Читати далі...

Немає відгуків

Переглянуті товари

16 інших товарів в цій категорії:

Товар додано для порівняння.