Ролант
- Кількість поверхів
- 1
- Площа
- 60.1
- Ширина
- 7.9
- Довжина
- 9.4
- Будинки і житлові будови
- Будиночки
Дачі
Котеджі - Кількість кімнат
- Двокімнатні будинки
- Особливості будинків
- Будинки з ґанком
- Кількість поверхів споруди
- Одноповерхові будинки
- Будинки з брусу
- Будинки з оциліндрованого брусу
(Що входить в ціну)
- комплект стін;
- комплект крокв;
- комплект балок перекриття;
- утеплювач міжвінцевий;
- антисептик (антисептування всього матеріалу);
- дубові нагеля;
- кріпильні материали (саморізи, усадкові болти, анкера, кріпильні пластини);
- гідроізоляція;
- вогнебіозахист (обробка деревини засобом І групи вогнезахисної ефективності)
Готовий проект дачі з бруса 7,9 х 9,4 м
Для втомленого городянина не існує кращої віддушини в низці сірих буднів, ніж власна дерев’яна дача . Тільки стіни з натурального дерева здатні максимально наблизити нас до природи, наповнити здоров’ям і новими силами. Одноповерховий котедж «Ролант» виглядає дуже мило і мініатюрно. Фасади нехитрого дизайну під простим двосхилим дахом вигідно підкреслюють навколишні краєвиди. Акуратна, невелика будова насправді досить містка і відрізняється великою корисною площею. Давайте уважніше вивчимо, що міститься всередині цього чарівного будиночка.
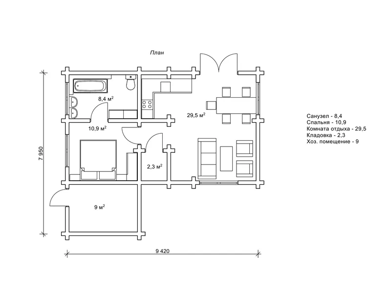
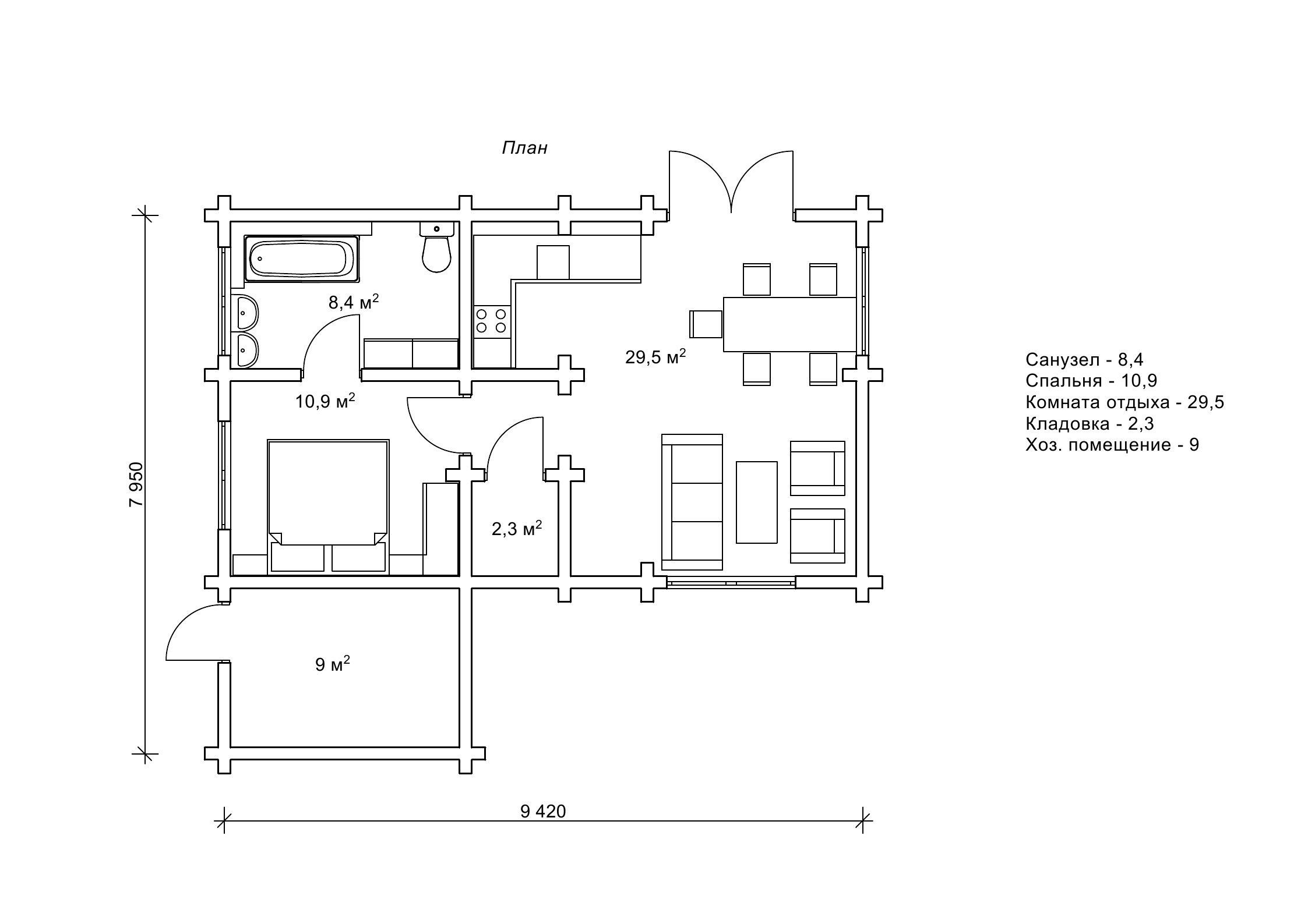
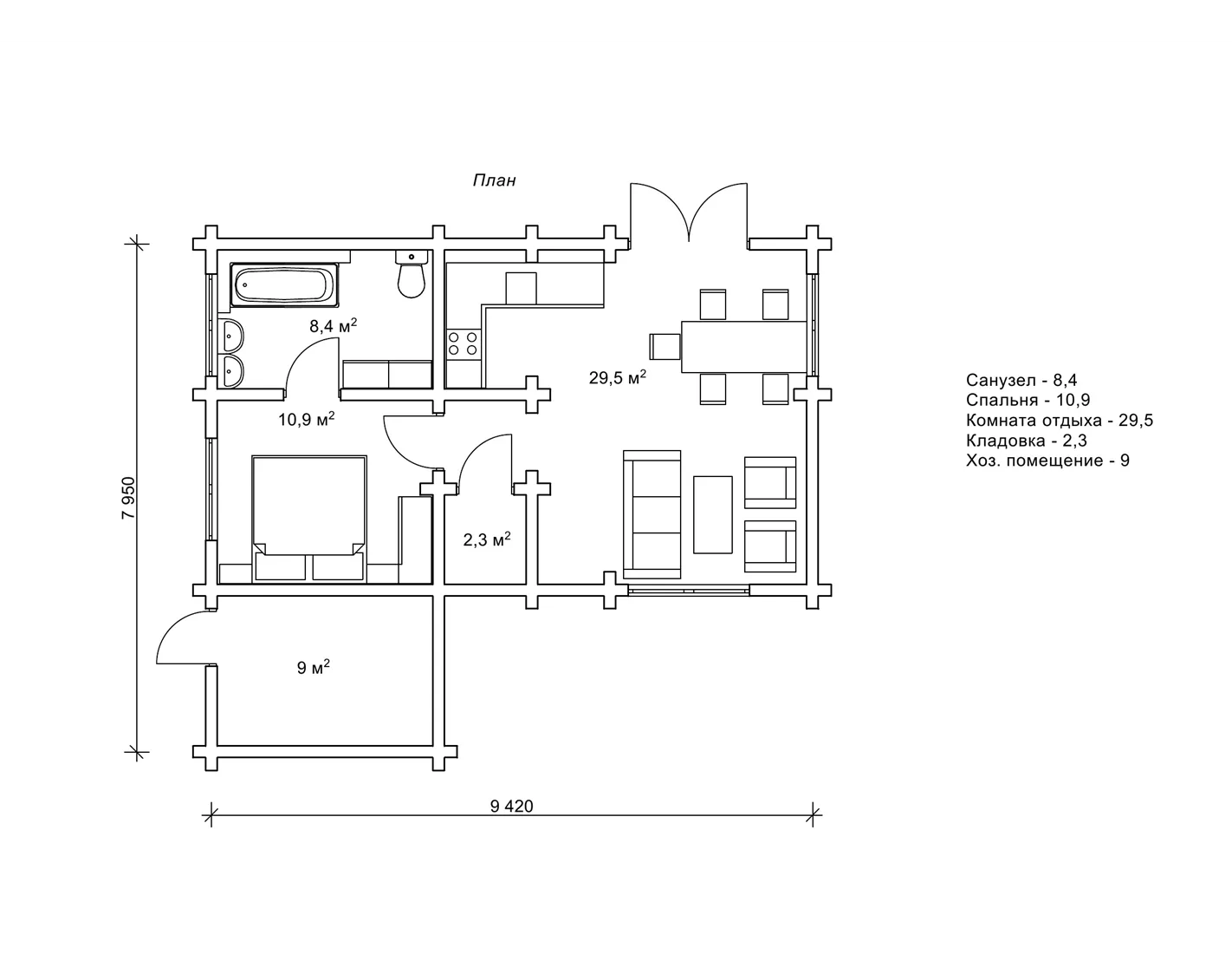
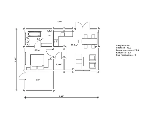
Планування одноповерхового котеджу для дачі «Ролант»
Загальна площа проекту «Ролант» становить 60,1 м2, котедж розташовується в параметрах забудови 7,9 на 9,4 м. Такі габарити дозволили помістити в дерев’яну будівлю просторий зал на 29,5 м2 з м’яким куточком, їдальнею і кухнею, комору, спальню, санвузол з ванною і хозприміщення з окремим входом з боку вулиці. Це чудове планування дозволяє розглядати проект «Ролант» не тільки, як дачний варіант, але і як гостьовий будиночок. Одноповерховий дерев’яний котедж дозволить зручно розташуватися, приготувати поїсти і переночувати в найкомфортніших умовах. Саме така дача або гостьовий будинок, безсумнівно, всім припаде до душі.
Будівництво дерев’яної дачі за проектом «Ролант»
Мріючи про власну дачу подалі від метушні мегаполісів, обов’язково варто розглянути проект брусового будинку «Ролант» як один з найбільш гідних варіантів облаштування заміського ділянки. Його багатофункціональність дозволить використовувати котедж в якості дачного або гостьового будинку, все залежить тільки від побажань замовника. Будь-які зміни вносяться в проект відповідно до вашої фантазії. Як ми будуємо дерев’яні будинки під замовлення можна ознайомитися на нашому сайті, який ми регулярно поповнюємо новою та корисною інформацією. Легка конструкція проекту «Ролант», виконана в простому дизайні з екологічно чистого матеріалу - це той випадок, коли видно, як мінімалізм в деталях прекрасно поєднується з максимумом комфорту і практичності.
- Кількість поверхів
- 1
- Площа
- 60.1
- Ширина
- 7.9
- Довжина
- 9.4
- Будинки і житлові будови
- Будиночки
Дачі
Котеджі - Кількість кімнат
- Двокімнатні будинки
- Особливості будинків
- Будинки з ґанком
- Кількість поверхів споруди
- Одноповерхові будинки
- Будинки з брусу
- Будинки з оциліндрованого брусу
Базова комплектація:
(Що входить в ціну)
- комплект стін;
- комплект крокв;
- комплект балок перекриття;
- утеплювач міжвінцевий;
- антисептик (антисептування всього матеріалу);
- дубові нагеля;
- кріпильні материали (саморізи, усадкові болти, анкера, кріпильні пластини);
- гідроізоляція;
- вогнебіозахист (обробка деревини засобом І групи вогнезахисної ефективності)
221130 грн.
Дах (комплектність):
- Рейка 100*25мм (cосна)
- Контрейка 50*25мм (сосна)
- Металочерепиця МОНТЕРРЕЙ (Польща) 0,45мм
- Коник прямий
- Планка примикання
- Лобова (декоративна) планка
- Вітровая планка
- Яндола
- Капельник (Карнизна планка)
- Ущільнювач універсальный
- Саморізи ОС 4.8х35
- Фарба-спрей
- Гідробар'єр
- Монтаж
157860 грн.
Вікна (комплектність):
- Вікно VEKA 58, колір білий 10
- Імпости вертикальні: 1 x 102103
- Скління: СПО, 24мм, (Rсп=0.36)*
- Тип фурнітури: Activpilot поворотно-відкидна, колір білий
- Підбір спеціальний: Activ микровентиляція; Activ 2-функц. механ.
- Моск.сітка: МС 3
- Підвіконня: ВМ 110мм, колір білий
- Підвіконня: ПВ ПВХ 150, заглушки: 600мм, колір білий
- Монтаж
0 грн.
Двері (комплектність):
- Полотно
- Коробка
- Лиштва
- Карниз
- Фарбування
- Скло
- Фурнітура
- Врізка фурнітуры
- Монтаж
85064 грн.
Фарбування (комплектність):
- Шліфування торців
- Тришарове покриття ефективним деревозахисним засобом на базі низькомолекулярної алкідної смоли методом розпилення.
Оциліндрований брус
Оциліндрований брус є найбільш оптимальним і поширеним матеріалом для будівництва дерев`яних будинків і бань, бесідок, альтанок, різноманітних садових меблів, дерев`яних конструкцій будь-яких видів. Дерев`яні будинки з оциліндрованого брусу відрізняються красою, всередині такого будинку завжди відчувається особлива затишна атмосфера.
Профільований брус
Найсучаснішим і високотехнологічним будівельним матеріалом в дерев`яному будівництві на сьогоднішній день є профільований брус. Для виробництва профільованого брусу, звичайному дерев`яному брусу на спеціальному деревообробному обладнанні надається певний профіль.
Подвійний брус з утепленням
Головна ідея застосування подвійного бруса полягала в досягненні енергоефективності житла. Над проектуванням енергозберігаючих будинків працюють провідні інженери та архітектори в різних країнах світу, запропонована фінами технологія подвійного бруса дає можливість звести до мінімуму тепловтрати будинку, а також об`єднує переваги будівництва дерев`яного будинку з економічністю споруди.
Клеєний брус
Клеєний брус принципово відрізняється від інших типів колод багатошаровістю. Така структура робить цей дерев’яний матеріал надміцним і витривалим.
Каркасні конструкції
Каркасні конструкції виготовляються на власних виробничих потужностях компанії «Домінант», з використанням сучасних деревообробних станків. Імпортне, високоточне обладнання дозволяє нам високоякісно виконувати свою роботу. Каркаси складаються зі струганих, ретельно висушених балок 150х50 мм (сосна першого сорту). Ці балки застосовуються для зовнішніх каркасів.












