Антарес
- Кількість поверхів
- 1
- Площа
- 123
- Ширина
- 12
- Довжина
- 12.4
- Будинки і житлові будови
- Дачі
- Кількість кімнат
- Трикімнатні будинки
- Особливості будинків
- Будинки з басейном
Будинки з терасою - Кількість поверхів споруди
- Одноповерхові будинки
- Садові та господарські споруди
- Бані
Бані з оциліндрованого брусу
(Що входить в ціну)
- комплект стін;
- комплект крокв;
- комплект балок перекриття;
- утеплювач міжвінцевий;
- антисептик (антисептування всього матеріалу);
- дубові нагеля;
- кріпильні материали (саморізи, усадкові болти, анкера, кріпильні пластини);
- гідроізоляція;
- вогнебіозахист (обробка деревини засобом І групи вогнезахисної ефективності)
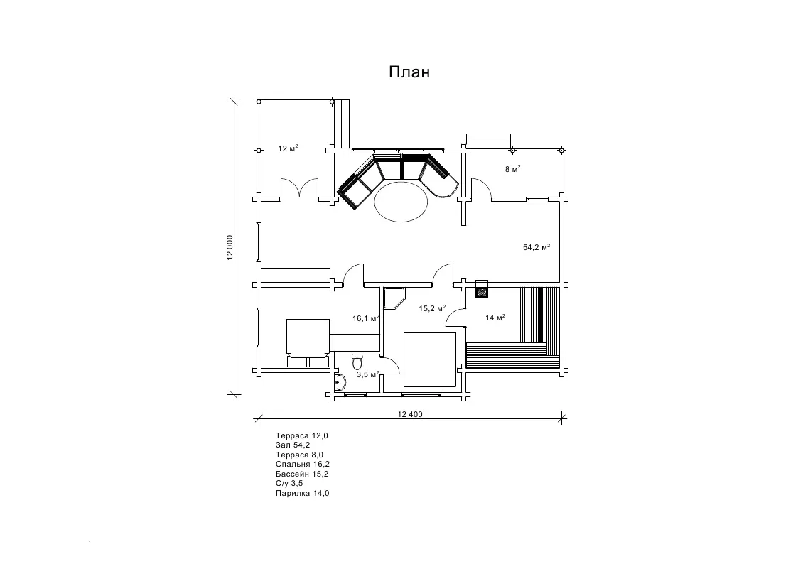
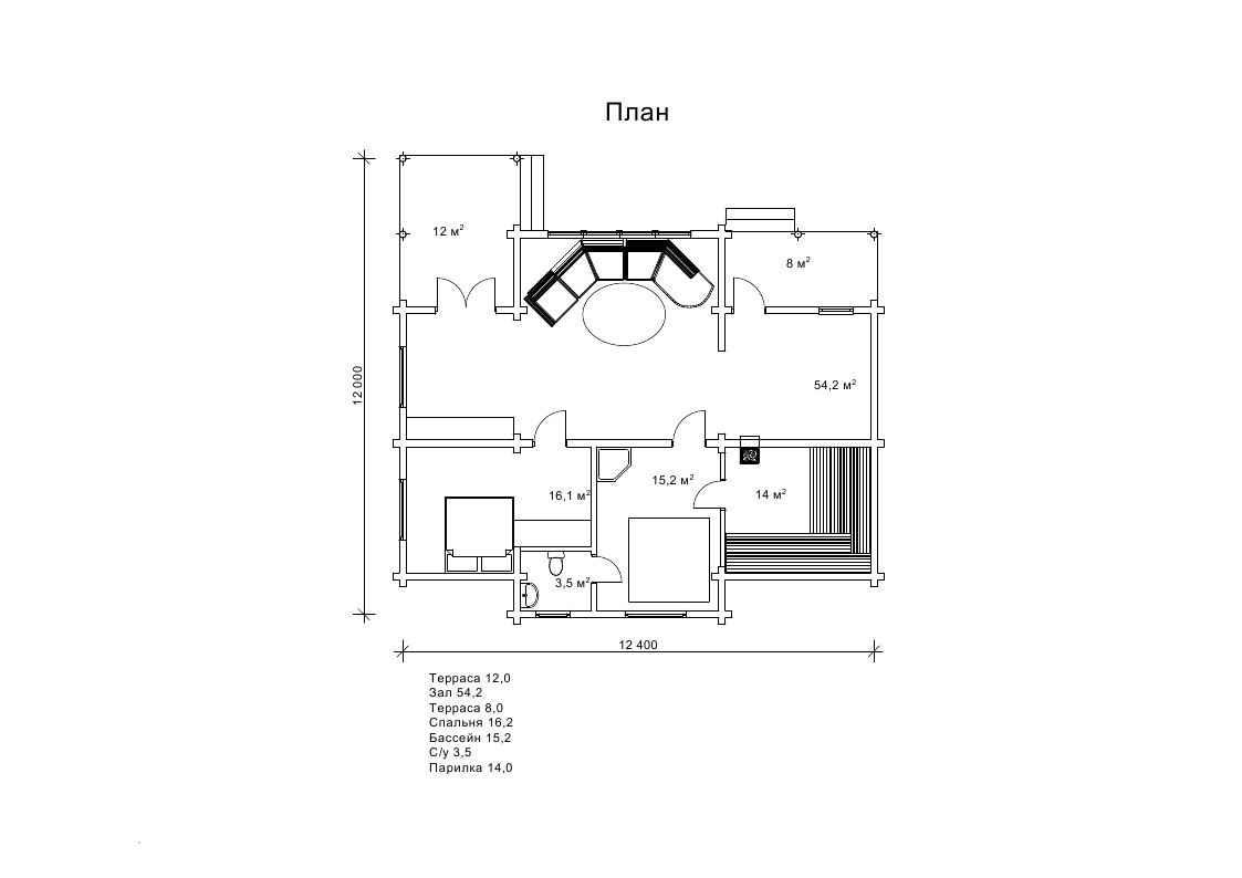
Якщо вас цікавить лазня, комерційна будова або котедж, ціна якого цілком влаштовуватиме будь-якого вимогливого замовника, то варто звернути увагу на наші проекти. Пропонуємо вам проект лазні, яка може бути просто лазнею, дачею, комерційної лазнею або ж частиною готельного або ресторанного комплексу. Просторі багатофункціональні приміщення передбачають: великий зал, спальну кімнату, басейн, парилку, санвузол і два входи з терасами. Комфортне проведення часу в лазні Антарес приємно здивує вас і ваших гостей. Проект Антарес dominant-wood.com.ua/uk/proekty/460-antares представляє собою такий котедж, ціна якого відповідає якості.
Дуже звичним для лазні, в сучасному світі, є наявність просторої кімнати відпочинку або залу. Адже не у всіх вистачає витримки провести багато часу в парильні. І тоді вся компанія збирається в залі для відпочинку і спілкування. А завдяки даному проекту, у вашій лазні зможе відпочивати велика кількість людей. Наявність басейну дає вашим відвідувачам можливість вибігти з парилки і остудитися в холодній воді. Тим самим отримавши від ритуалу максимум задоволення і насолоди. Такий проект неможливо назвати шаблонним або звичайним. Наявність двох терас, басейну і кімнати відпочинку дозволить кожному відвідувачу насолодитися лазнею сповна і по-своєму. Адже існує маса традицій і порад, як варто здійснювати лазневі процедури. Якщо ви хочете ще більше урізноманітнити дане приміщення або змінити габарити споруди, компанія «Домінант» dominant-wood.com.ua/ реалізує ваші побажання з надзвичайною легкістю і швидкістю.
- Кількість поверхів
- 1
- Площа
- 123
- Ширина
- 12
- Довжина
- 12.4
- Будинки і житлові будови
- Дачі
- Кількість кімнат
- Трикімнатні будинки
- Особливості будинків
- Будинки з басейном
Будинки з терасою - Кількість поверхів споруди
- Одноповерхові будинки
- Садові та господарські споруди
- Бані
Бані з оциліндрованого брусу
Базова комплектація:
(Що входить в ціну)
- комплект стін;
- комплект крокв;
- комплект балок перекриття;
- утеплювач міжвінцевий;
- антисептик (антисептування всього матеріалу);
- дубові нагеля;
- кріпильні материали (саморізи, усадкові болти, анкера, кріпильні пластини);
- гідроізоляція;
- вогнебіозахист (обробка деревини засобом І групи вогнезахисної ефективності)
434970 грн.
Дах (комплектність):
- Рейка 100*25мм (cосна)
- Контрейка 50*25мм (сосна)
- Металочерепиця МОНТЕРРЕЙ (Польща) 0,45мм
- Коник прямий
- Планка примикання
- Лобова (декоративна) планка
- Вітровая планка
- Яндола
- Капельник (Карнизна планка)
- Ущільнювач універсальный
- Саморізи ОС 4.8х35
- Фарба-спрей
- Гідробар'єр
- Монтаж
315720 грн.
Вікна (комплектність):
- Вікно VEKA 58, колір білий 10
- Імпости вертикальні: 1 x 102103
- Скління: СПО, 24мм, (Rсп=0.36)*
- Тип фурнітури: Activpilot поворотно-відкидна, колір білий
- Підбір спеціальний: Activ микровентиляція; Activ 2-функц. механ.
- Моск.сітка: МС 3
- Підвіконня: ВМ 110мм, колір білий
- Підвіконня: ПВ ПВХ 150, заглушки: 600мм, колір білий
- Монтаж
188100 грн.
Двері (комплектність):
- Полотно
- Коробка
- Лиштва
- Карниз
- Фарбування
- Скло
- Фурнітура
- Врізка фурнітуры
- Монтаж
110236 грн.
Фарбування (комплектність):
- Шліфування торців
- Тришарове покриття ефективним деревозахисним засобом на базі низькомолекулярної алкідної смоли методом розпилення.
Оциліндрований брус
Оциліндрований брус є найбільш оптимальним і поширеним матеріалом для будівництва дерев`яних будинків і бань, бесідок, альтанок, різноманітних садових меблів, дерев`яних конструкцій будь-яких видів. Дерев`яні будинки з оциліндрованого брусу відрізняються красою, всередині такого будинку завжди відчувається особлива затишна атмосфера.
Профільований брус
Найсучаснішим і високотехнологічним будівельним матеріалом в дерев`яному будівництві на сьогоднішній день є профільований брус. Для виробництва профільованого брусу, звичайному дерев`яному брусу на спеціальному деревообробному обладнанні надається певний профіль.
Подвійний брус з утепленням
Головна ідея застосування подвійного бруса полягала в досягненні енергоефективності житла. Над проектуванням енергозберігаючих будинків працюють провідні інженери та архітектори в різних країнах світу, запропонована фінами технологія подвійного бруса дає можливість звести до мінімуму тепловтрати будинку, а також об`єднує переваги будівництва дерев`яного будинку з економічністю споруди.
Клеєний брус
Клеєний брус принципово відрізняється від інших типів колод багатошаровістю. Така структура робить цей дерев’яний матеріал надміцним і витривалим.
Каркасні конструкції
Каркасні конструкції виготовляються на власних виробничих потужностях компанії «Домінант», з використанням сучасних деревообробних станків. Імпортне, високоточне обладнання дозволяє нам високоякісно виконувати свою роботу. Каркаси складаються зі струганих, ретельно висушених балок 150х50 мм (сосна першого сорту). Ці балки застосовуються для зовнішніх каркасів.










