Теноя
- Кількість поверхів
- 1
- Площа
- 148
- Ширина
- 12
- Довжина
- 20
- Будинки і житлові будови
- Котеджі
- Кількість кімнат
- Двокімнатні будинки
- Особливості будинків
- Будинки з банею
Будинки з терасою
Будинки з ґанком - Кількість поверхів споруди
- Одноповерхові будинки
- Будинки з брусу
- Будинки з оциліндрованого брусу
(Що входить в ціну)
- комплект стін;
- комплект крокв;
- комплект балок перекриття;
- утеплювач міжвінцевий;
- антисептик (антисептування всього матеріалу);
- дубові нагеля;
- кріпильні материали (саморізи, усадкові болти, анкера, кріпильні пластини);
- гідроізоляція;
- вогнебіозахист (обробка деревини засобом І групи вогнезахисної ефективності)
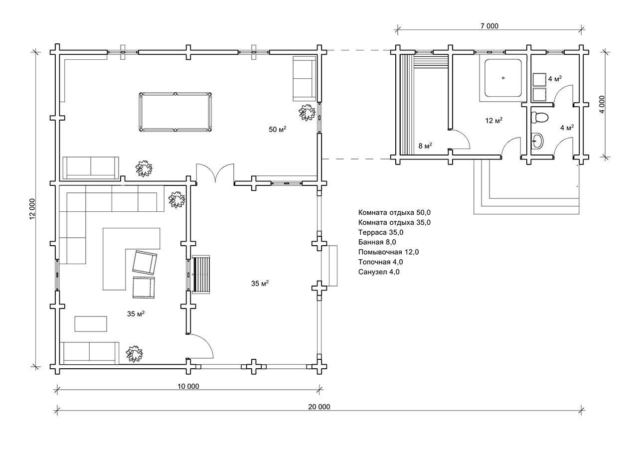
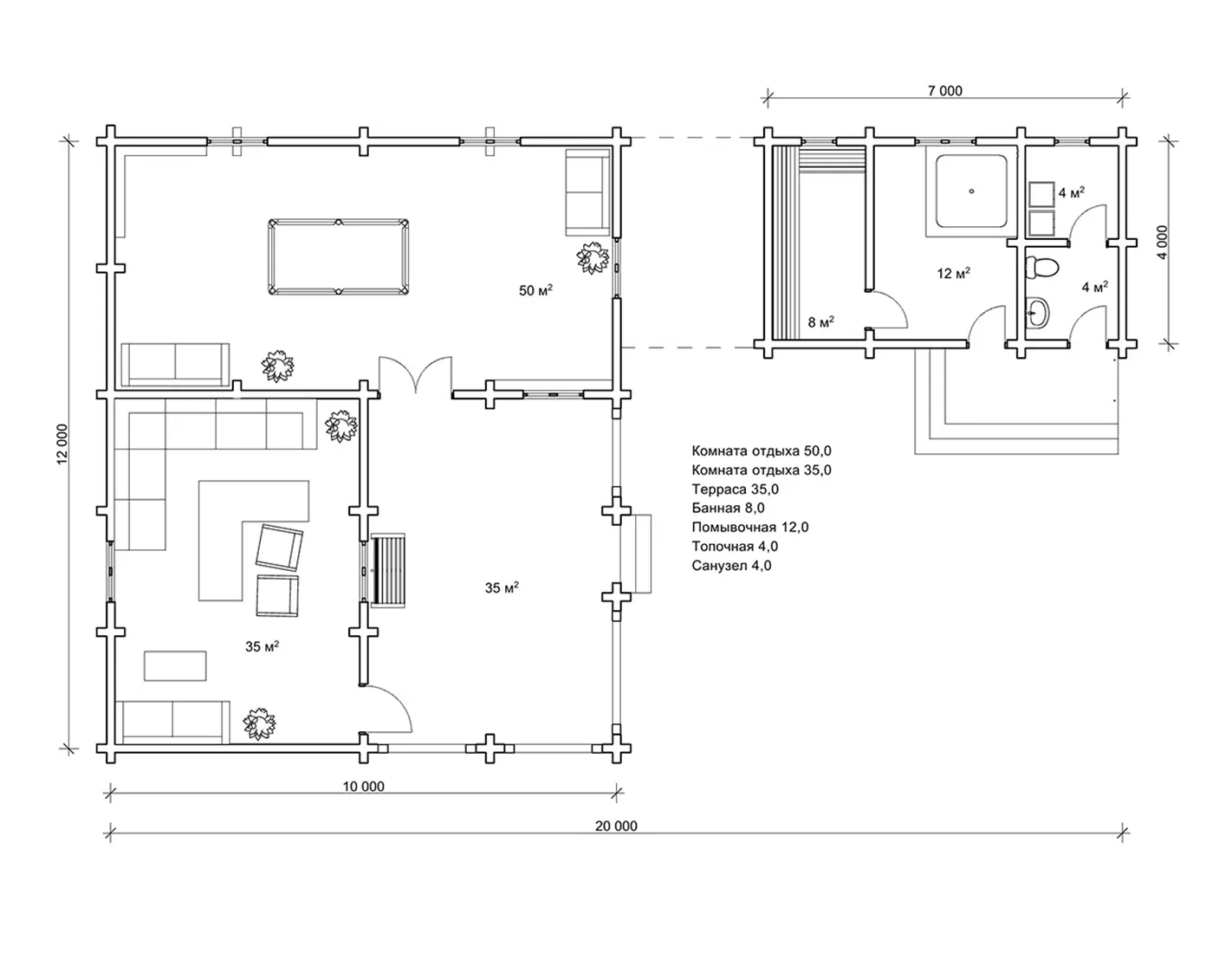
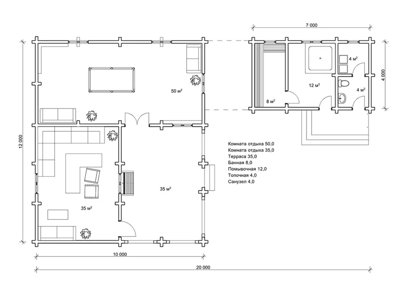
Котедж з лазнею для бази відпочинку 12 на 20 м
Проект котеджу «Теноя» являє собою досить оригінальне рішення споруди для готельного комплексу dominant-wood.com.ua/uk/26-goteli або бази відпочинку. Будова складається з двох частин, об'єднаних під одним дахом. У той же час, дві будівлі розділені тунелем під покрівлею. Така незвичайна форма конструкції пояснюється особливостями планування ділянки, відведеної під комплекс відпочинку. При першому погляді на мальовничий котедж, увагу привертає велика кількість відкритих площ, літніх терас без навісів, відкритих сонцю, де можна сповна насолодитися пляжним відпочинком. Тому саме десь на пляжі, березі річки або озера котедж «Теноя» буде виглядати найдоречніше. Якщо поблизу бази відпочинку немає моря і ніяких інших водойм, відмінним рішенням буде розмістити близько споруди басейн, де так чудово плавати після банних процедур. Така ідея зробить комплекс відпочинку з дерева «Теноя» ще більш привабливим для відпочиваючих.
Планування і площа забудови котеджу з лазнею
Спорудження котеджу займає досить велику площу і характеризується параметрами споруди 12 на 20 м. У першій будові розташовані дві просторі кімнати відпочинку. У першій кімнаті передбачена лаунж-зона на 35 м2, а в іншому приміщенні на 50 м2 можна поставити більярдні столи і захоплююче проводити дозвілля в компанії близьких друзів. Друга будова комплексу - це лазня з парною, душовою, санвузлом, роздягальнею і ґаночком. Поділ проекту на дві будови обумовлено тим, що всі відпочиваючі зможуть знайти собі заняття до смаку, при цьому не заважаючи один одному. Той, хто захоче, буде відпочивати в лаунж-зоні, інші підуть грати в більярд, а треті зможуть гарненько попаритися в лазні, поки ще хтось буде засмагати в шезлонгах на терасі. Кожен буде комфортно себе почувати і знайде собі заняття до смаку.
Будівництво дерев'яного комплексу відпочинку
Котедж з лазнею для бази відпочинку за проектом «Теноя» дозволяє залучити велику кількість відпочиваючих в готельний комплекс, так як спланований для максимального комфорту відвідувачів. Як ми переконалися, ця універсальна брусова будова надає масу можливостей для цікавого дозвілля і повноцінного відпочинку. Будівництво дерев'яного комплексу відпочинку допоможе урізноманітнити проведення часу відвідувачів, залучити нових клієнтів і зробити готельний бізнес ще успішнішим. Швидке будівництво і окупність дерев'яних будівель стануть ще одними перевагами інвестування в даний проект. Замовляйте будівництво готового проекту дерев'яного комплексу відпочинку «Теноя» у виробничо-будівельній компанії «Домінант» - з нами зручно і вигідно працювати!
- Кількість поверхів
- 1
- Площа
- 148
- Ширина
- 12
- Довжина
- 20
- Будинки і житлові будови
- Котеджі
- Кількість кімнат
- Двокімнатні будинки
- Особливості будинків
- Будинки з банею
Будинки з терасою
Будинки з ґанком - Кількість поверхів споруди
- Одноповерхові будинки
- Будинки з брусу
- Будинки з оциліндрованого брусу
Базова комплектація:
(Що входить в ціну)
- комплект стін;
- комплект крокв;
- комплект балок перекриття;
- утеплювач міжвінцевий;
- антисептик (антисептування всього матеріалу);
- дубові нагеля;
- кріпильні материали (саморізи, усадкові болти, анкера, кріпильні пластини);
- гідроізоляція;
- вогнебіозахист (обробка деревини засобом І групи вогнезахисної ефективності)
461700 грн.
Дах (комплектність):
- Рейка 100*25мм (cосна)
- Контрейка 50*25мм (сосна)
- Металочерепиця МОНТЕРРЕЙ (Польща) 0,45мм
- Коник прямий
- Планка примикання
- Лобова (декоративна) планка
- Вітровая планка
- Яндола
- Капельник (Карнизна планка)
- Ущільнювач універсальный
- Саморізи ОС 4.8х35
- Фарба-спрей
- Гідробар'єр
- Монтаж
245560 грн.
Вікна (комплектність):
- Вікно VEKA 58, колір білий 10
- Імпости вертикальні: 1 x 102103
- Скління: СПО, 24мм, (Rсп=0.36)*
- Тип фурнітури: Activpilot поворотно-відкидна, колір білий
- Підбір спеціальний: Activ микровентиляція; Activ 2-функц. механ.
- Моск.сітка: МС 3
- Підвіконня: ВМ 110мм, колір білий
- Підвіконня: ПВ ПВХ 150, заглушки: 600мм, колір білий
- Монтаж
0 грн.
Двері (комплектність):
- Полотно
- Коробка
- Лиштва
- Карниз
- Фарбування
- Скло
- Фурнітура
- Врізка фурнітуры
- Монтаж
213528 грн.
Фарбування (комплектність):
- Шліфування торців
- Тришарове покриття ефективним деревозахисним засобом на базі низькомолекулярної алкідної смоли методом розпилення.
Оциліндрований брус
Оциліндрований брус є найбільш оптимальним і поширеним матеріалом для будівництва дерев`яних будинків і бань, бесідок, альтанок, різноманітних садових меблів, дерев`яних конструкцій будь-яких видів. Дерев`яні будинки з оциліндрованого брусу відрізняються красою, всередині такого будинку завжди відчувається особлива затишна атмосфера.
Профільований брус
Найсучаснішим і високотехнологічним будівельним матеріалом в дерев`яному будівництві на сьогоднішній день є профільований брус. Для виробництва профільованого брусу, звичайному дерев`яному брусу на спеціальному деревообробному обладнанні надається певний профіль.
Подвійний брус з утепленням
Головна ідея застосування подвійного бруса полягала в досягненні енергоефективності житла. Над проектуванням енергозберігаючих будинків працюють провідні інженери та архітектори в різних країнах світу, запропонована фінами технологія подвійного бруса дає можливість звести до мінімуму тепловтрати будинку, а також об`єднує переваги будівництва дерев`яного будинку з економічністю споруди.
Клеєний брус
Клеєний брус принципово відрізняється від інших типів колод багатошаровістю. Така структура робить цей дерев’яний матеріал надміцним і витривалим.
Каркасні конструкції
Каркасні конструкції виготовляються на власних виробничих потужностях компанії «Домінант», з використанням сучасних деревообробних станків. Імпортне, високоточне обладнання дозволяє нам високоякісно виконувати свою роботу. Каркаси складаються зі струганих, ретельно висушених балок 150х50 мм (сосна першого сорту). Ці балки застосовуються для зовнішніх каркасів.










