Зателефонуйте мені
Брант №1
Брант №2
Брант №3
Брант №4
Брант №5
Брант №6
Брант №7
Брант №8
Брант №9
Брант №10
Брант №11
Брант №12
Брант №1
Брант №2
Брант №3
Брант №4
Брант №5
Брант №6
Брант №7
Брант №8
Брант №9
Брант №10
Брант №11
Брант №12
Брант №1
Брант №1 Брант №2 Брант №3 Брант №4 Брант №5 Брант №6 Брант №7 Брант №8 Брант №9 Брант №10 Брант №11 Брант №12

Брант

781 849,00 ₴
Житловий трикімнатний котедж, площа 92 м2 - «Брант»
Розмір брусу
  • Оциліндрований 160
  • Оциліндрований 180
  • Оциліндрований 200
  • Оциліндрований 220
  • Профільований 60
  • Профільований 150
  • Профільований 200
  • Подвійний 300
  • Клеєний 120
  • Клеєний 180
Кількість поверхів
1
Площа
92
Ширина
8
Довжина
11.5
Будинки і житлові будови
Будиночки
Дачі
Котеджі
Кількість кімнат
Трикімнатні будинки
Кількість поверхів споруди
Одноповерхові будинки
Будинки з брусу
Будинки з оциліндрованого брусу
 

(Що входить в ціну)

Що входить в базову комплектацію

  • комплект стін;
  • комплект крокв;
  • комплект балок перекриття;
  • утеплювач міжвінцевий;
  • антисептик (антисептування всього матеріалу);
  • дубові нагеля;
  • кріпильні материали (саморізи, усадкові болти, анкера, кріпильні пластини);
  • гідроізоляція;
  • вогнебіозахист (обробка деревини засобом І групи вогнезахисної ефективності)

Проект житлового трикімнатного котеджу «Брант»

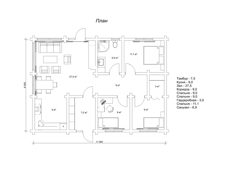
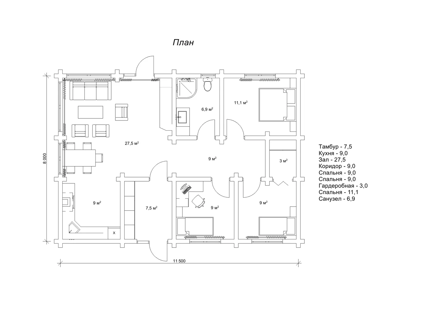
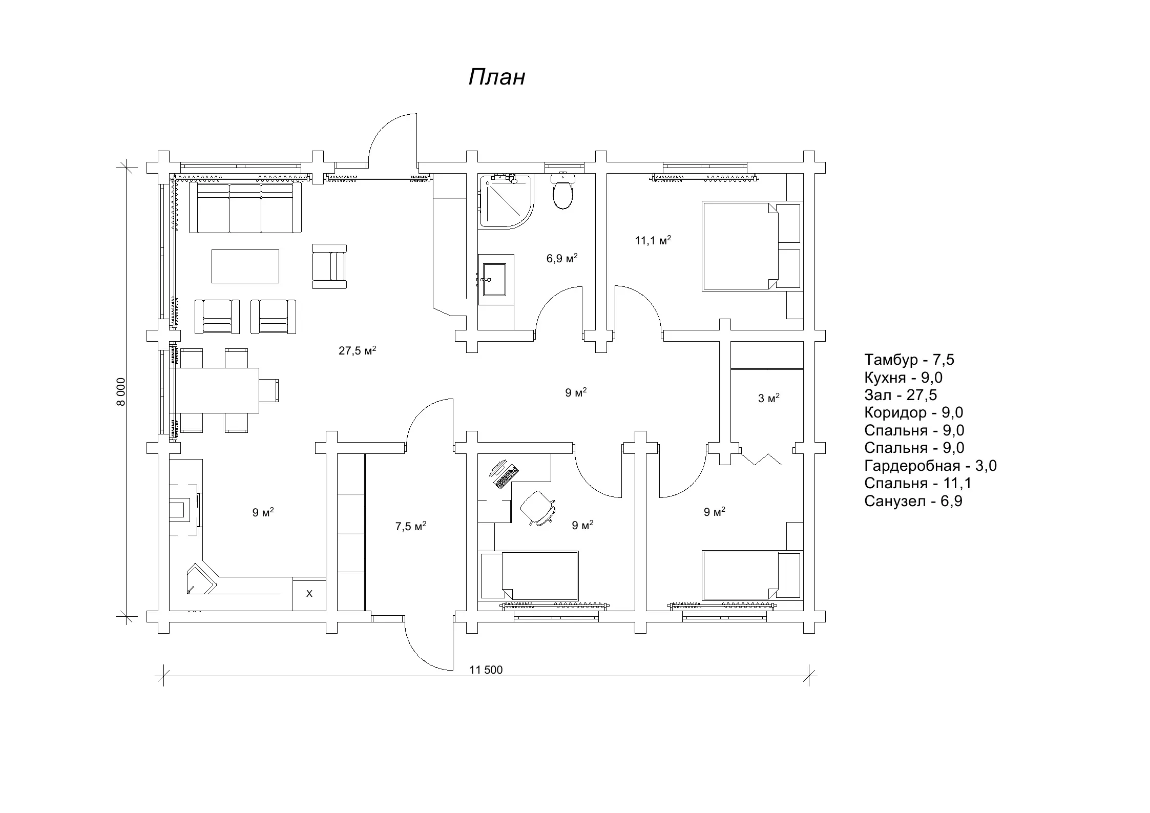
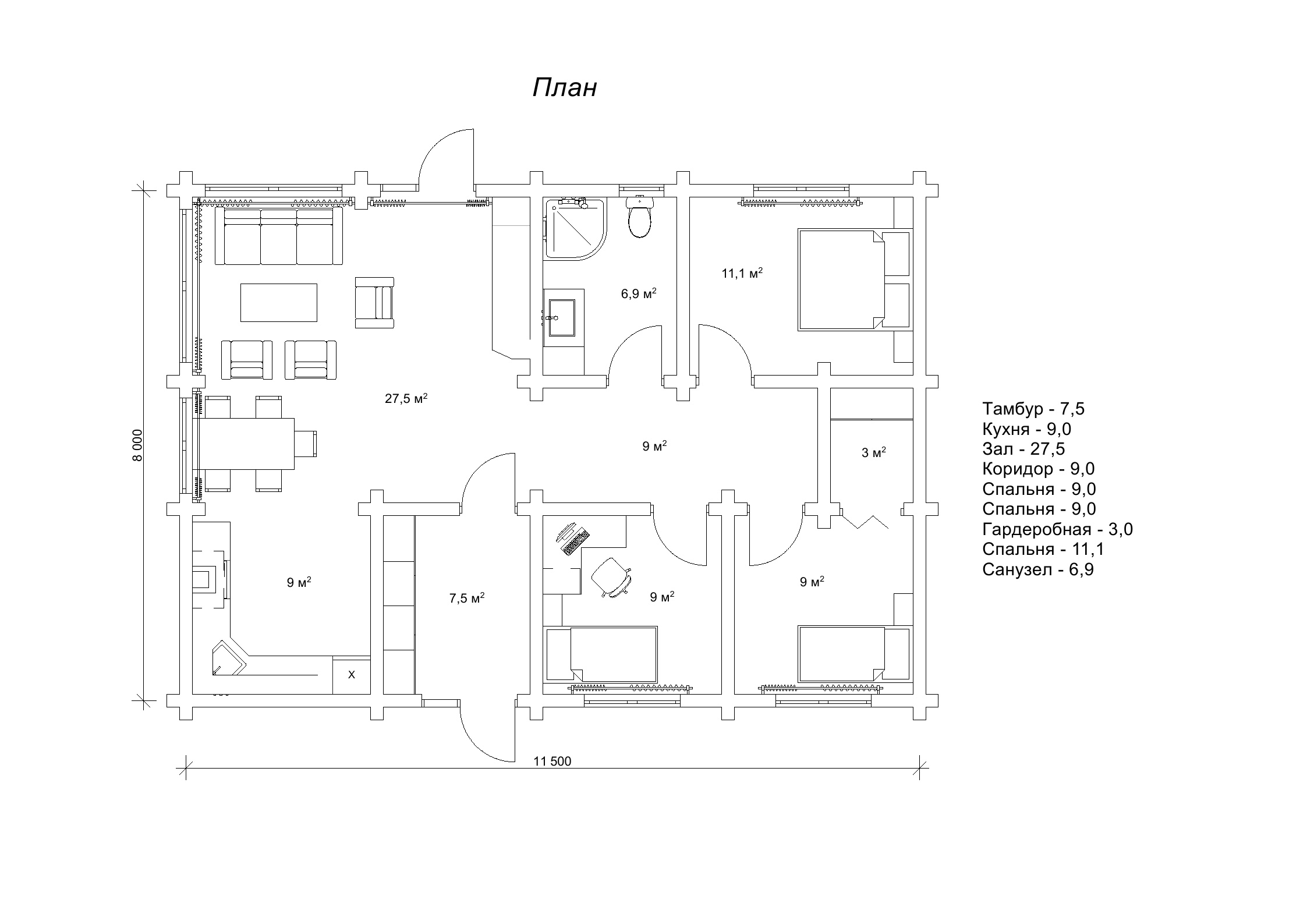
Неймовірно привабливий будиночок «Брант» тішить погляд вишуканим екстер’єром з великими вікнами та колодчастими округлостями на стінах. Акуратні, прості форми, симетричність фасадів, наявність двох входів – основні особливості проекту «Брант». Панорамні вікна, що обрамляють стіни з двох сторін дерев’яного будиночка створюють ефект заскленої тераси. Це архітектурне рішення не лише прикрашає будову, а й надає внутрішнім приміщенням більше природного освітлення. Проект житлового трикімнатного котеджу «Брант» розрахований на площу 92 м2, габарити будівлі складають 8 на 11,5 м2, і в них продумане таке планування, яке зробить життя в такому котеджі винятково комфортабельним.

Будівництво житлового трикімнатного котеджу, площа 92 м2

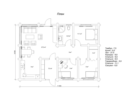
Котедж «Брант» має порівняно невелику площу. Але кожен метр використаний з користю навіть на менш ніж ста квадратах. План житлового котеджу візуально зонований на два блоки. В один блок виділено спальні, гардероб, санвузол та коридорчик. Наявність трьох житлових кімнат дозволяє комфортно проживати у будиночку сім’ї із 4-х осіб. У кімнаті розміром 11,1 м2 можна розмістити спальню батьків, а у двох кімнатах по 9 м2 зробити дитячі кімнати. Якщо сім’я поки без дітей, то в одній кімнаті можна зробити домашній офіс, а другу кімнату відвести під гостьову спальню. У залі розміром 27,5 м2 достатньо місця для того, щоб зібратися родиною та зустріти гостей. Крім перерахованих приміщень у трикімнатному котеджі є ще кухня та тепловий тамбур. Ця споруда повністю підходить під усі запити сучасної людини щодо комфортного проживання.

Кількість поверхів
1
Площа
92
Ширина
8
Довжина
11.5
Будинки і житлові будови
Будиночки
Дачі
Котеджі
Кількість кімнат
Трикімнатні будинки
Кількість поверхів споруди
Одноповерхові будинки
Будинки з брусу
Будинки з оциліндрованого брусу

Базова комплектація:
(Що входить в ціну)

Що входить в базову комплектацію

  • комплект стін;
  • комплект крокв;
  • комплект балок перекриття;
  • утеплювач міжвінцевий;
  • антисептик (антисептування всього матеріалу);
  • дубові нагеля;
  • кріпильні материали (саморізи, усадкові болти, анкера, кріпильні пластини);
  • гідроізоляція;
  • вогнебіозахист (обробка деревини засобом І групи вогнезахисної ефективності)

313470 грн.

Дах (комплектність):

  • Рейка 100*25мм (cосна)
  • Контрейка 50*25мм (сосна)
  • Металочерепиця МОНТЕРРЕЙ (Польща) 0,45мм
  • Коник прямий
  • Планка примикання
  • Лобова (декоративна) планка
  • Вітровая планка
  • Яндола
  • Капельник (Карнизна планка)
  • Ущільнювач універсальный
  • Саморізи ОС 4.8х35
  • Фарба-спрей
  • Гідробар'єр
  • Монтаж

315720 грн.

Вікна (комплектність):

  • Вікно VEKA 58, колір білий 10
  • Імпости вертикальні: 1 x 102103
  • Скління: СПО, 24мм, (Rсп=0.36)*
  • Тип фурнітури: Activpilot поворотно-відкидна, колір білий
  • Підбір спеціальний: Activ микровентиляція; Activ 2-функц. механ.
  • Моск.сітка: МС 3
  • Підвіконня: ВМ 110мм, колір білий
  • Підвіконня: ПВ ПВХ 150, заглушки: 600мм, колір білий
  • Монтаж

146300 грн.

Двері (комплектність):

  • Полотно
  • Коробка
  • Лиштва
  • Карниз
  • Фарбування
  • Скло
  • Фурнітура
  • Врізка фурнітуры
  • Монтаж

164920 грн.

Фарбування (комплектність):

  • Шліфування торців
  • Тришарове покриття ефективним деревозахисним засобом на базі низькомолекулярної алкідної смоли методом розпилення.

Параметри забудови

  • Кількість поверхів: 1
  • Площа: 92

Розмір забудови

  • Ширина: 8
  • Довжина: 11.5

Перший поверх

тамбур (м²)7,5
кухня (м²)9,0
зала (м²)27,5
коридор (м²)9,0
спалья х2(м²)9,0
спальня (м²)11,0
гардеробна (м²)3,0
санвузол (м²)6,9

Оциліндрований брус

Оциліндрований брус є найбільш оптимальним і поширеним матеріалом для будівництва дерев`яних будинків і бань, бесідок, альтанок, різноманітних садових меблів, дерев`яних конструкцій будь-яких видів. Дерев`яні будинки з оциліндрованого брусу відрізняються красою, всередині такого будинку завжди відчувається особлива затишна атмосфера.

Читати далі...

Профільований брус

Найсучаснішим і високотехнологічним будівельним матеріалом в дерев`яному будівництві на сьогоднішній день є профільований брус. Для виробництва профільованого брусу, звичайному дерев`яному брусу на спеціальному деревообробному обладнанні надається певний профіль.

Читати далі...

Подвійний брус з утепленням

Головна ідея застосування подвійного бруса полягала в досягненні енергоефективності житла. Над проектуванням енергозберігаючих будинків працюють провідні інженери та архітектори в різних країнах світу, запропонована фінами технологія подвійного бруса дає можливість звести до мінімуму тепловтрати будинку, а також об`єднує переваги будівництва дерев`яного будинку з економічністю споруди.

Читати далі...

Клеєний брус

Клеєний брус принципово відрізняється від інших типів колод багатошаровістю. Така структура робить цей дерев’яний матеріал надміцним і витривалим.

Читати далі...

Каркасні конструкції

Каркасні конструкції виготовляються на власних виробничих потужностях компанії «Домінант», з використанням сучасних деревообробних станків. Імпортне, високоточне обладнання дозволяє нам високоякісно виконувати свою роботу. Каркаси складаються зі струганих, ретельно висушених балок 150х50 мм (сосна першого сорту). Ці балки застосовуються для зовнішніх каркасів.

Читати далі...

Немає відгуків

Переглянуті товари

16 інших товарів в цій категорії:

Товар додано для порівняння.