Аснорд
- Кількість поверхів
- 1
- Площа
- 75.2
- Ширина
- 7.2
- Довжина
- 10.9
- Будинки і житлові будови
- Дачі
Котеджі - Кількість кімнат
- Трикімнатні будинки
- Особливості будинків
- Будинки з банею
Будинки з ґанком - Кількість поверхів споруди
- Одноповерхові будинки
- Будинки з брусу
- Будинки з подвійного брусу з утепленням
(Що входить в ціну)
- комплект стін;
- комплект крокв;
- комплект балок перекриття;
- утеплювач міжвінцевий;
- антисептик (антисептування всього матеріалу);
- дубові нагеля;
- кріпильні материали (саморізи, усадкові болти, анкера, кріпильні пластини);
- гідроізоляція;
- вогнебіозахист (обробка деревини засобом І групи вогнезахисної ефективності)
Проект котеджу з лазнею з подвійного бруса площею 75 м2
Котедж «Аснорд» - це невеликий, гарний будиночок з подвійного бруса з утеплювачем всередині стін. В екстер’єрі проект об’єднує велику кількість світлих вікон разом з масивним двосхилим дахом, що переходить в навіс над ганком. Тому, незважаючи на масивну покрівлю, споруда виглядає акуратно і гармонійно. Будиночок немов створений для мальовничого альпійського ландшафту. Такі добротні, дерев’яні котеджі, побудовані в швейцарському стилі, часто можна побачити саме біля підніжжя гір. А туристів дуже приваблює відпочинок в такому екологічно чистому будинку з натурального дерева.
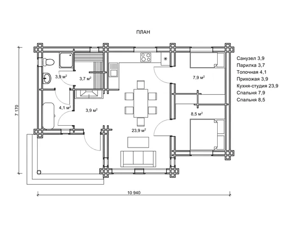
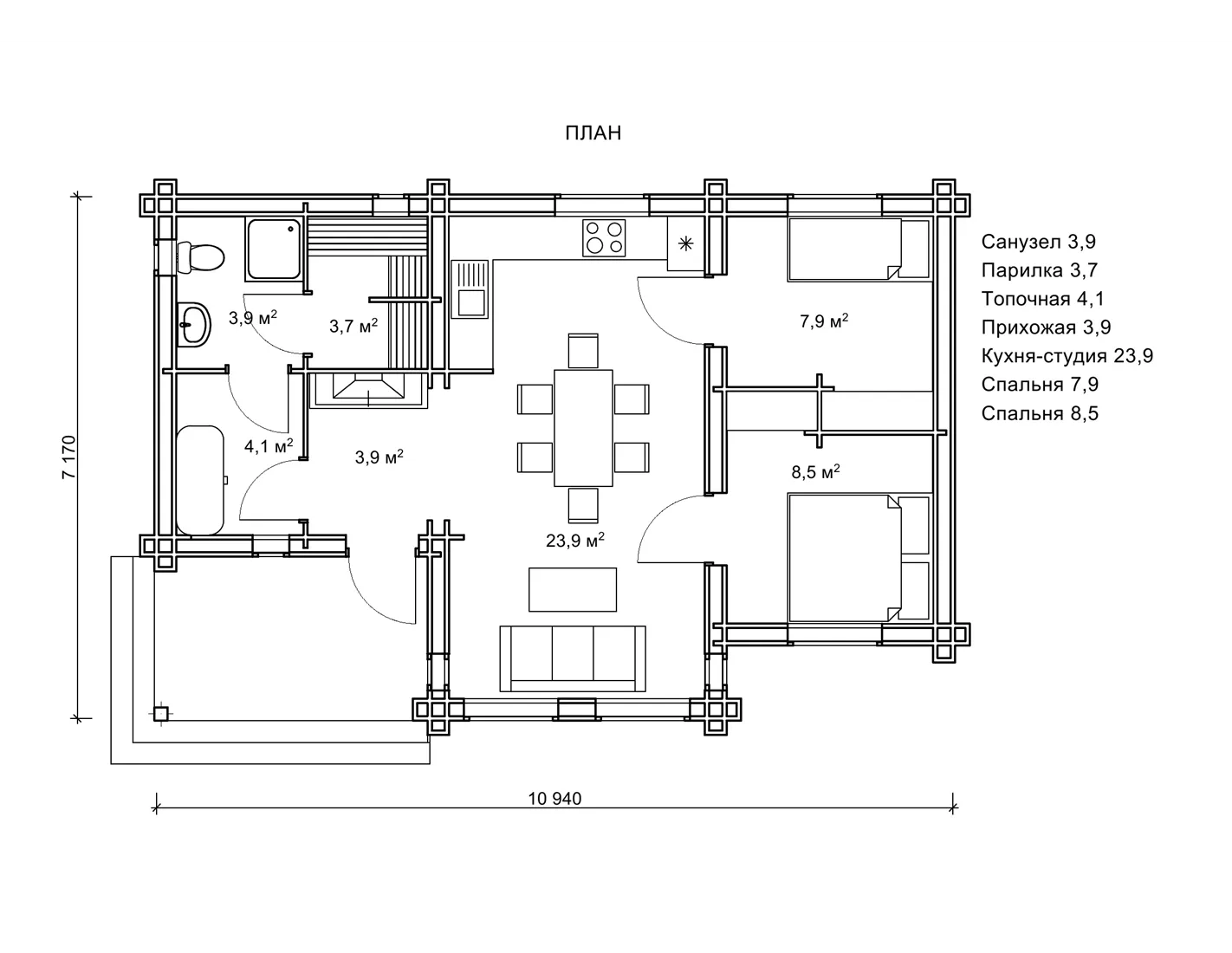
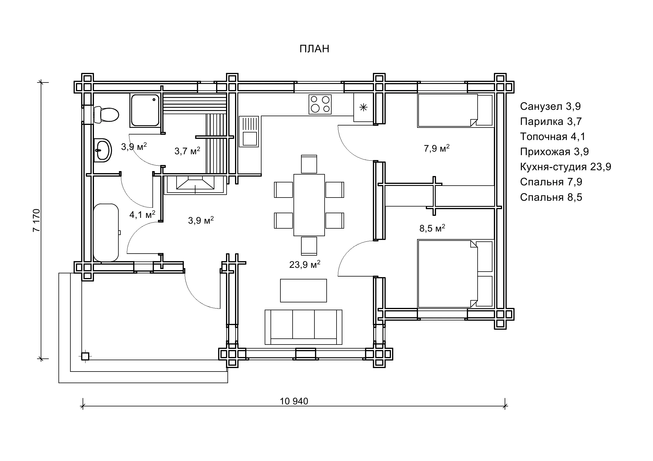
План приміщень будинку-лазні 7,1 на 10,9 м
Планування проекту дає можливість розглядати його в якості повноцінного заміського котеджу, де можна проживати цілий рік незалежно від пори року. Будинок вміщує передпокій, кухню-студію, дві спальні, парилку, топкові і санвузол. Багатофункціональний внутрішнє наповнення робить проект «Аснорд» одним з кращих рішень для заміського ділянки. Він зручний, тому що за рахунок об’єднання лазні та житлових приміщень економить будматеріали, гроші, площа забудови, розширює функціональність будівлі, забезпечує максимальний комфорт господарям, у яких з’являється постійний доступ до банних, оздоровчим процедурам. Замовте будинок-лазню з бруса з утепленням за готовим проектом «Аснорд», і у вашій сім’ї з’явиться улюблене місце відпочинку і проведення часу! А побудувавши такий котедж в курортному містечку, ви зможете зробити цей будинок постійним джерелом доходів, здаючи його в оренду відпочиваючим.
Будуємо утеплений будинок з лазнею
Заміський дерев’яний будинок, а особливо будинок з лазнею, здатний стати віддушиною і головним місцем для зустрічей всього сімейства. Крім того, проект «Аснорд» створений за найкращою технології дерев’яного домобудівництва на сьогоднішній день - технології подвійного бруса з утепленням. Вибираючи цю технологію, можна побудувати теплий, енергозберігаючий будинок, в якому можна значно економити на опаленні. Щоб вирішити питання відповідності товщині стін дерев’яного будинку всім прийнятим в нашій країні нормативам теплопередачі, ми спеціально впровадили технологію паралельного бруса. За рахунок внутрістінного утеплювача, стіна з подвійного бруса по теплу відповідає розміру цілісної колоди товщиною більш ніж півметра. Будівництво котеджу «Аснорд» - це шлях до максимального комфорту. Для замовлення будівництва зателефонуйте: +38 097 012-38-52; +38 063 499-91-00.
- Кількість поверхів
- 1
- Площа
- 75.2
- Ширина
- 7.2
- Довжина
- 10.9
- Будинки і житлові будови
- Дачі
Котеджі - Кількість кімнат
- Трикімнатні будинки
- Особливості будинків
- Будинки з банею
Будинки з ґанком - Кількість поверхів споруди
- Одноповерхові будинки
- Будинки з брусу
- Будинки з подвійного брусу з утепленням
Базова комплектація:
(Що входить в ціну)
- комплект стін;
- комплект крокв;
- комплект балок перекриття;
- утеплювач міжвінцевий;
- антисептик (антисептування всього матеріалу);
- дубові нагеля;
- кріпильні материали (саморізи, усадкові болти, анкера, кріпильні пластини);
- гідроізоляція;
- вогнебіозахист (обробка деревини засобом І групи вогнезахисної ефективності)
264870 грн.
Дах (комплектність):
- Рейка 100*25мм (cосна)
- Контрейка 50*25мм (сосна)
- Металочерепиця МОНТЕРРЕЙ (Польща) 0,45мм
- Коник прямий
- Планка примикання
- Лобова (декоративна) планка
- Вітровая планка
- Яндола
- Капельник (Карнизна планка)
- Ущільнювач універсальный
- Саморізи ОС 4.8х35
- Фарба-спрей
- Гідробар'єр
- Монтаж
228020 грн.
Вікна (комплектність):
- Вікно VEKA 58, колір білий 10
- Імпости вертикальні: 1 x 102103
- Скління: СПО, 24мм, (Rсп=0.36)*
- Тип фурнітури: Activpilot поворотно-відкидна, колір білий
- Підбір спеціальний: Activ микровентиляція; Activ 2-функц. механ.
- Моск.сітка: МС 3
- Підвіконня: ВМ 110мм, колір білий
- Підвіконня: ПВ ПВХ 150, заглушки: 600мм, колір білий
- Монтаж
0 грн.
Двері (комплектність):
- Полотно
- Коробка
- Лиштва
- Карниз
- Фарбування
- Скло
- Фурнітура
- Врізка фурнітуры
- Монтаж
124992 грн.
Фарбування (комплектність):
- Шліфування торців
- Тришарове покриття ефективним деревозахисним засобом на базі низькомолекулярної алкідної смоли методом розпилення.
Оциліндрований брус
Оциліндрований брус є найбільш оптимальним і поширеним матеріалом для будівництва дерев`яних будинків і бань, бесідок, альтанок, різноманітних садових меблів, дерев`яних конструкцій будь-яких видів. Дерев`яні будинки з оциліндрованого брусу відрізняються красою, всередині такого будинку завжди відчувається особлива затишна атмосфера.
Профільований брус
Найсучаснішим і високотехнологічним будівельним матеріалом в дерев`яному будівництві на сьогоднішній день є профільований брус. Для виробництва профільованого брусу, звичайному дерев`яному брусу на спеціальному деревообробному обладнанні надається певний профіль.
Подвійний брус з утепленням
Головна ідея застосування подвійного бруса полягала в досягненні енергоефективності житла. Над проектуванням енергозберігаючих будинків працюють провідні інженери та архітектори в різних країнах світу, запропонована фінами технологія подвійного бруса дає можливість звести до мінімуму тепловтрати будинку, а також об`єднує переваги будівництва дерев`яного будинку з економічністю споруди.
Клеєний брус
Клеєний брус принципово відрізняється від інших типів колод багатошаровістю. Така структура робить цей дерев’яний матеріал надміцним і витривалим.
Каркасні конструкції
Каркасні конструкції виготовляються на власних виробничих потужностях компанії «Домінант», з використанням сучасних деревообробних станків. Імпортне, високоточне обладнання дозволяє нам високоякісно виконувати свою роботу. Каркаси складаються зі струганих, ретельно висушених балок 150х50 мм (сосна першого сорту). Ці балки застосовуються для зовнішніх каркасів.










