Маркеліна
- Кількість поверхів
- 1
- Площа
- 76.5
- Ширина
- 8.5
- Довжина
- 9
- Будинки і житлові будови
- Будиночки
Вілли - Кількість кімнат
- Двокімнатні будинки
- Кількість поверхів споруди
- Одноповерхові будинки
- Будинки з брусу
- Будинки з оциліндрованого брусу
- Комерційні будівлі
- Бази відпочинку
Готелі
(Що входить в ціну)
- комплект стін;
- комплект крокв;
- комплект балок перекриття;
- утеплювач міжвінцевий;
- антисептик (антисептування всього матеріалу);
- дубові нагеля;
- кріпильні материали (саморізи, усадкові болти, анкера, кріпильні пластини);
- гідроізоляція;
- вогнебіозахист (обробка деревини засобом І групи вогнезахисної ефективності)
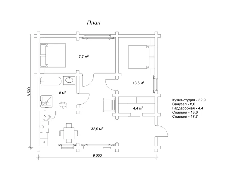
Будівництво одноповерхового будинку 8,5х9 м з колод
Компактний і простий будиночок з колод «Маркеліна» запам’ятовується завдяки своїй асиметричній покрівлі. Скати одноповерхового котеджу різної довжини в ансамблі з колод стінами і довгими, високими вікнами утворюють гранично лаконічний, але досить цікавий дизайн дерев’яної будівлі. Проект «Маркеліна» є вдалим прикладом того, як нестандартно можна оформити простий, одноповерховий будинок. Здавалося б, нічого зайвого, але наскільки елегантний і стильний вигляд екстер’єру. Окрім зовнішньої привабливості в цьому симпатичному будиночку зібрано безліч зручностей, що дозволяють розглядати проект «Маркеліна» не лише у якості сезонної обителі, а й постійного житла.
Одноповерховий будинок 8,5х9 м з колод 76,5 м²
Будова спланована у розмірах 8,5х9 м, і на площі 76,5 м2 містить абсолютно все, що потрібне для комфортного проживання. Планування проекту «Маркеліна» включає кухню, гардероб, санвузол та дві спальні. Це класичний набір приміщень для заміського котеджу, в якому можна проводити відпустку з комфортом і залишитись на будь-який час і в холодний сезон, і теплий. Якщо ви шукаєте дачний будинок, що підходить для проживання, то крім проекту «Маркеліна» ми запропонуємо вам ще багато типових проектів котеджів з двома спальнями, спланованих на одному поверсі. Наш досвід складає більше тисячі реалізованих будівель, тому будь-який будиночок, який ви оберете в нашому каталозі, ми з радістю втілимо для вас якісно та в обумовлені терміни. Ми подбаємо про те, щоб чудовий будиночок за проектом «Маркеліна» прикрасив вашу дачну ділянку за доступною ціною і найближчим часом. А для цього вам знадобиться звернутися до нашого відділу роботи з клієнтами за контактами, вказаними на сайті.
- Кількість поверхів
- 1
- Площа
- 76.5
- Ширина
- 8.5
- Довжина
- 9
- Будинки і житлові будови
- Будиночки
Вілли - Кількість кімнат
- Двокімнатні будинки
- Кількість поверхів споруди
- Одноповерхові будинки
- Будинки з брусу
- Будинки з оциліндрованого брусу
- Комерційні будівлі
- Бази відпочинку
Готелі
Базова комплектація:
(Що входить в ціну)
- комплект стін;
- комплект крокв;
- комплект балок перекриття;
- утеплювач міжвінцевий;
- антисептик (антисептування всього матеріалу);
- дубові нагеля;
- кріпильні материали (саморізи, усадкові болти, анкера, кріпильні пластини);
- гідроізоляція;
- вогнебіозахист (обробка деревини засобом І групи вогнезахисної ефективності)
267300 грн.
Дах (комплектність):
- Рейка 100*25мм (cосна)
- Контрейка 50*25мм (сосна)
- Металочерепиця МОНТЕРРЕЙ (Польща) 0,45мм
- Коник прямий
- Планка примикання
- Лобова (декоративна) планка
- Вітровая планка
- Яндола
- Капельник (Карнизна планка)
- Ущільнювач універсальный
- Саморізи ОС 4.8х35
- Фарба-спрей
- Гідробар'єр
- Монтаж
140320 грн.
Вікна (комплектність):
- Вікно VEKA 58, колір білий 10
- Імпости вертикальні: 1 x 102103
- Скління: СПО, 24мм, (Rсп=0.36)*
- Тип фурнітури: Activpilot поворотно-відкидна, колір білий
- Підбір спеціальний: Activ микровентиляція; Activ 2-функц. механ.
- Моск.сітка: МС 3
- Підвіконня: ВМ 110мм, колір білий
- Підвіконня: ПВ ПВХ 150, заглушки: 600мм, колір білий
- Монтаж
167200 грн.
Двері (комплектність):
- Полотно
- Коробка
- Лиштва
- Карниз
- Фарбування
- Скло
- Фурнітура
- Врізка фурнітуры
- Монтаж
151900 грн.
Фарбування (комплектність):
- Шліфування торців
- Тришарове покриття ефективним деревозахисним засобом на базі низькомолекулярної алкідної смоли методом розпилення.
Оциліндрований брус
Оциліндрований брус є найбільш оптимальним і поширеним матеріалом для будівництва дерев`яних будинків і бань, бесідок, альтанок, різноманітних садових меблів, дерев`яних конструкцій будь-яких видів. Дерев`яні будинки з оциліндрованого брусу відрізняються красою, всередині такого будинку завжди відчувається особлива затишна атмосфера.
Профільований брус
Найсучаснішим і високотехнологічним будівельним матеріалом в дерев`яному будівництві на сьогоднішній день є профільований брус. Для виробництва профільованого брусу, звичайному дерев`яному брусу на спеціальному деревообробному обладнанні надається певний профіль.
Подвійний брус з утепленням
Головна ідея застосування подвійного бруса полягала в досягненні енергоефективності житла. Над проектуванням енергозберігаючих будинків працюють провідні інженери та архітектори в різних країнах світу, запропонована фінами технологія подвійного бруса дає можливість звести до мінімуму тепловтрати будинку, а також об`єднує переваги будівництва дерев`яного будинку з економічністю споруди.
Клеєний брус
Клеєний брус принципово відрізняється від інших типів колод багатошаровістю. Така структура робить цей дерев’яний матеріал надміцним і витривалим.
Каркасні конструкції
Каркасні конструкції виготовляються на власних виробничих потужностях компанії «Домінант», з використанням сучасних деревообробних станків. Імпортне, високоточне обладнання дозволяє нам високоякісно виконувати свою роботу. Каркаси складаються зі струганих, ретельно висушених балок 150х50 мм (сосна першого сорту). Ці балки застосовуються для зовнішніх каркасів.
















