Зателефонуйте мені
Сеньйор №1
Сеньйор №2
Сеньйор №3
Сеньйор №4
Сеньйор №5
Сеньйор №6
Сеньйор №1
Сеньйор №2
Сеньйор №3
Сеньйор №4
Сеньйор №5
Сеньйор №6
Сеньйор №1
Сеньйор №1 Сеньйор №2 Сеньйор №3 Сеньйор №4 Сеньйор №5 Сеньйор №6

Сеньйор

1 534 576,00 ₴
Проект дачного будиночку 10х13 м - «Сеньйор»
Розмір брусу
  • Оциліндрований 160
  • Оциліндрований 180
  • Оциліндрований 200
  • Оциліндрований 220
  • Профільований 60
  • Профільований 150
  • Профільований 200
  • Подвійний 300
  • Клеєний 120
  • Клеєний 180
Кількість поверхів
1
Площа
135.5
Ширина
10
Довжина
13
Будинки і житлові будови
Дачі
Котеджі
Кількість кімнат
Трикімнатні будинки
Особливості будинків
Будинки з котельнею
Будинки з терасою
Будинки з ґанком
Кількість поверхів споруди
Одноповерхові будинки
Будинки з брусу
Будинки з клеєного брусу
Будинки з профільованого брусу
 

(Що входить в ціну)

Що входить в базову комплектацію

  • комплект стін;
  • комплект крокв;
  • комплект балок перекриття;
  • утеплювач міжвінцевий;
  • антисептик (антисептування всього матеріалу);
  • дубові нагеля;
  • кріпильні материали (саморізи, усадкові болти, анкера, кріпильні пластини);
  • гідроізоляція;
  • вогнебіозахист (обробка деревини засобом І групи вогнезахисної ефективності)

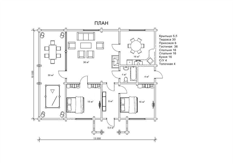
Проект дерев’яного будинку Сеньйор, без сумніву, заслуговує на вашу увагу, тому що є чудовим рішенням для дачного котеджу. Планування даного проекту включає затишний ганок, передпокій, вітальню, кухню, дві спальні, санвузол і топкову. На окрему увагу заслуговує велика тераса, де є хороша можливість помістити більярдний стіл і столову зону. У проекті чудово продумані всі умови для комфортного сезонного проживання і цікавого дозвілля. З першого погляду на цей будинок, можна в нього закохатися. Любителям великих просторів сподобається величезна тераса, шанувальників бунгало приверне характерна архітектура будівлі, цінителів світла причарує велика кількість вікон і їхній розмір.

Цей будинок - втілення стилю. Не відразу кидається в очі матеріал, дерево, з якого він зроблений, так як геометрія цього проекту затьмарює всі інші сторони. Форма, планування, вид ззовні і атмосфера всередині - все це безперечно чесноти дачного будиночка Сеньйор. Хоч проект створений для дачі, в оригіналі і з додатковою модернізацією, він цілком презентабельний як житловий будинок. При цьому будинок спокійно може вмістити в себе гостей і великі галасливі компанії. Їх можна буде розважити більярдом або вечерею на відкритому повітрі, а при холодній погоді - влаштувати перегляд фільмів у вітальні, а може і настільну гру.

Сеньйор dominant-wood.com.ua/uk/proekty/394-senjor, як респектабельний плантатор, дуже заможний і респектабельний, але при цьому, не позбавлений практичності будинок. На дачі він підкреслить достаток господаря, а в межах міста вкаже на здатність цінувати свій час і хороший відпочинок.

Кількість поверхів
1
Площа
135.5
Ширина
10
Довжина
13
Будинки і житлові будови
Дачі
Котеджі
Кількість кімнат
Трикімнатні будинки
Особливості будинків
Будинки з котельнею
Будинки з терасою
Будинки з ґанком
Кількість поверхів споруди
Одноповерхові будинки
Будинки з брусу
Будинки з клеєного брусу
Будинки з профільованого брусу

Базова комплектація:
(Що входить в ціну)

Що входить в базову комплектацію

  • комплект стін;
  • комплект крокв;
  • комплект балок перекриття;
  • утеплювач міжвінцевий;
  • антисептик (антисептування всього матеріалу);
  • дубові нагеля;
  • кріпильні материали (саморізи, усадкові болти, анкера, кріпильні пластини);
  • гідроізоляція;
  • вогнебіозахист (обробка деревини засобом І групи вогнезахисної ефективності)

425250 грн.

Дах (комплектність):

  • Рейка 100*25мм (cосна)
  • Контрейка 50*25мм (сосна)
  • Металочерепиця МОНТЕРРЕЙ (Польща) 0,45мм
  • Коник прямий
  • Планка примикання
  • Лобова (декоративна) планка
  • Вітровая планка
  • Яндола
  • Капельник (Карнизна планка)
  • Ущільнювач універсальный
  • Саморізи ОС 4.8х35
  • Фарба-спрей
  • Гідробар'єр
  • Монтаж

315720 грн.

Вікна (комплектність):

  • Вікно VEKA 58, колір білий 10
  • Імпости вертикальні: 1 x 102103
  • Скління: СПО, 24мм, (Rсп=0.36)*
  • Тип фурнітури: Activpilot поворотно-відкидна, колір білий
  • Підбір спеціальний: Activ микровентиляція; Activ 2-функц. механ.
  • Моск.сітка: МС 3
  • Підвіконня: ВМ 110мм, колір білий
  • Підвіконня: ПВ ПВХ 150, заглушки: 600мм, колір білий
  • Монтаж

0 грн.

Двері (комплектність):

  • Полотно
  • Коробка
  • Лиштва
  • Карниз
  • Фарбування
  • Скло
  • Фурнітура
  • Врізка фурнітуры
  • Монтаж

118916 грн.

Фарбування (комплектність):

  • Шліфування торців
  • Тришарове покриття ефективним деревозахисним засобом на базі низькомолекулярної алкідної смоли методом розпилення.

Параметри забудови

  • Кількість поверхів: 1
  • Площа: 135.5

Розмір забудови

  • Ширина: 10
  • Довжина: 13

Перший поверх

вітальня (м²)36
ганок (м²)5,5
кухня (м²)16
передпокій (м²)8
с/в (м²)4
спальня (м²)16
спальня (м²)15,82
тераса (м²)30
топкова (м²)4

Оциліндрований брус

Оциліндрований брус є найбільш оптимальним і поширеним матеріалом для будівництва дерев`яних будинків і бань, бесідок, альтанок, різноманітних садових меблів, дерев`яних конструкцій будь-яких видів. Дерев`яні будинки з оциліндрованого брусу відрізняються красою, всередині такого будинку завжди відчувається особлива затишна атмосфера.

Читати далі...

Профільований брус

Найсучаснішим і високотехнологічним будівельним матеріалом в дерев`яному будівництві на сьогоднішній день є профільований брус. Для виробництва профільованого брусу, звичайному дерев`яному брусу на спеціальному деревообробному обладнанні надається певний профіль.

Читати далі...

Подвійний брус з утепленням

Головна ідея застосування подвійного бруса полягала в досягненні енергоефективності житла. Над проектуванням енергозберігаючих будинків працюють провідні інженери та архітектори в різних країнах світу, запропонована фінами технологія подвійного бруса дає можливість звести до мінімуму тепловтрати будинку, а також об`єднує переваги будівництва дерев`яного будинку з економічністю споруди.

Читати далі...

Клеєний брус

Клеєний брус принципово відрізняється від інших типів колод багатошаровістю. Така структура робить цей дерев’яний матеріал надміцним і витривалим.

Читати далі...

Каркасні конструкції

Каркасні конструкції виготовляються на власних виробничих потужностях компанії «Домінант», з використанням сучасних деревообробних станків. Імпортне, високоточне обладнання дозволяє нам високоякісно виконувати свою роботу. Каркаси складаються зі струганих, ретельно висушених балок 150х50 мм (сосна першого сорту). Ці балки застосовуються для зовнішніх каркасів.

Читати далі...

Немає відгуків

16 інших товарів в цій категорії:

Товар додано для порівняння.