Зателефонуйте мені
Кондор №1
Кондор №2
Кондор №3
Кондор №4
Кондор №5
Кондор №6
Кондор №7
Кондор №1
Кондор №2
Кондор №3
Кондор №4
Кондор №5
Кондор №6
Кондор №7
Кондор №1
Кондор №1 Кондор №2 Кондор №3 Кондор №4 Кондор №5 Кондор №6 Кондор №7

Кондор

761 615,00 ₴
Брусовий котедж 6,8 на 10 м з другим світлом - «Кондор»
Розмір брусу
  • Оциліндрований 160
  • Оциліндрований 180
  • Оциліндрований 200
  • Оциліндрований 220
  • Профільований 60
  • Профільований 150
  • Профільований 200
  • Подвійний 300
  • Клеєний 120
  • Клеєний 180
Кількість поверхів
2
Площа
136
Ширина
6.8
Довжина
10
Будинки і житлові будови
Вілли
Дачі
Котеджі
Кількість кімнат
Трикімнатні будинки
Особливості будинків
Будинки з другим світлом
Будинки зі сходами
Кількість поверхів споруди
Двоповерхові будинки
Будинки з брусу
Будинки з оциліндрованого брусу
 

(Що входить в ціну)

Що входить в базову комплектацію

  • комплект стін;
  • комплект крокв;
  • комплект балок перекриття;
  • утеплювач міжвінцевий;
  • антисептик (антисептування всього матеріалу);
  • дубові нагеля;
  • кріпильні материали (саморізи, усадкові болти, анкера, кріпильні пластини);
  • гідроізоляція;
  • вогнебіозахист (обробка деревини засобом І групи вогнезахисної ефективності)

Проект брусового котеджу з другим світлом «Кондор»

«Кондор» - це гарний проект брусового котеджу з повністю заскленим головним фасадом. Цей будинок створений для побудови в мальовничих місцях, де-небудь на пагорбі, щоб через величезну панораму відкривався неймовірної краси пейзаж. Гордовито, під стать, птаху, в честь якого названий проект дерев’яного будинку, височить «Кондор» на високому цоколі. Подовжені по вертикалі вікна візуально витягають споруду і надають йому висоти. Мабуть, саме вікна виступають найефектнішим елементом дизайну проекту «Кондор». А чим же нас здивує внутрішнє наповнення котеджу? Давайте подивимося план і розміри будівлі.

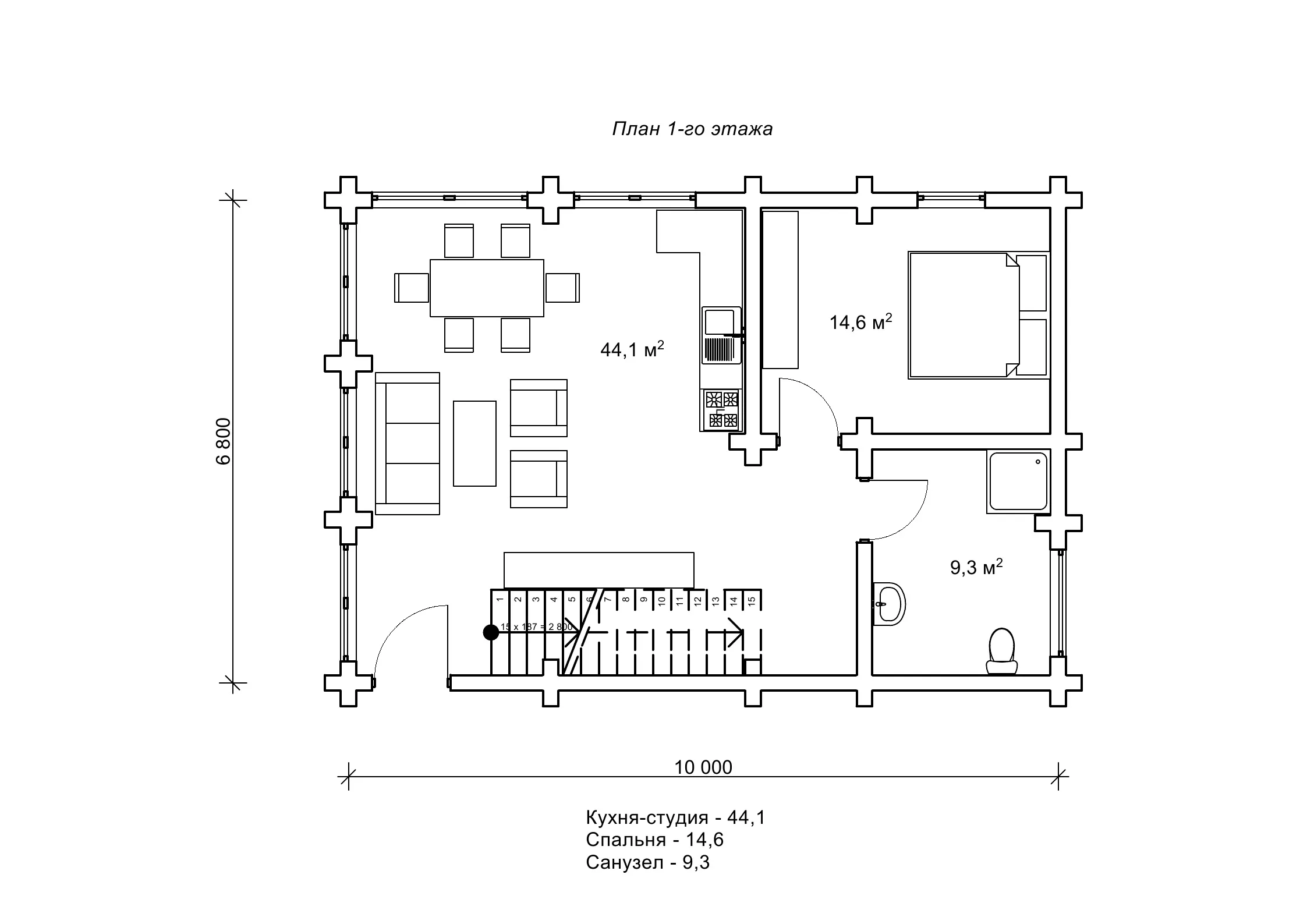
План брусового котеджу 6,8х10 м

Параметри забудови брусового котеджу «Кондор» складають 6,8 м на 10 м. Загальна площа - 136 м2. Як правило, в заміських зрубах такого типу практикується мансардний поверх, але в проекті «Кондор» бачимо практично повноцінний другий поверх з висотою стін не набагато менше , ніж на першому поверсі. Схоже архітектурне рішення ми бачимо в проектах «Стелла» і «Вівальді». Перший поверх брусового котеджу містить великий студійний простір площею 44,1 м2, де можна спланувати кухонну робочу поверхню, виділити зону їдальні і поставити м’який куточок з кріслами. Також перший поверх включає спальню і санвузол. Планування другого поверху складається з однієї просторої кімнати, де можна зробити вітальню для зустрічі друзів і дозвілля в приємній компанії. Проект «Кондор» більше підходить для заміського відпочинку, ніж для постійного проживання. Крім того, він розрахований на сімейну пару без дітей, адже планування включає тільки одну спальню і не включає дитячу кімнату.

Споруда брусового котеджу 6,8х10 м за готовим проектом «Кондор»

Якщо ви хочете замовити будівництво оригінального брусового котеджу за проектом «Кондор», звертайтеся в наш офіс по роботі з клієнтами, контакти якого ви знайдете у відповідному розділі сайту. Якщо ви захочете доповнити проект відповідно до своїх індивідуальних побажань - наш архітектор адаптує готове рішення під ваші запити, і ви обов’язково отримаєте будинок своєї мрії! Але ми впевнені, що таке оригінальне планування, як в проекті «Кондор», підійде вам без змін, адже воно спеціально створене для відпочинку і споглядання природи. Тут відчувається широта простору, і це роздолля дає можливість в повній мірі відчути повноту життя після тісноти міської квартири.

Кількість поверхів
2
Площа
136
Ширина
6.8
Довжина
10
Будинки і житлові будови
Вілли
Дачі
Котеджі
Кількість кімнат
Трикімнатні будинки
Особливості будинків
Будинки з другим світлом
Будинки зі сходами
Кількість поверхів споруди
Двоповерхові будинки
Будинки з брусу
Будинки з оциліндрованого брусу

Базова комплектація:
(Що входить в ціну)

Що входить в базову комплектацію

  • комплект стін;
  • комплект крокв;
  • комплект балок перекриття;
  • утеплювач міжвінцевий;
  • антисептик (антисептування всього матеріалу);
  • дубові нагеля;
  • кріпильні материали (саморізи, усадкові болти, анкера, кріпильні пластини);
  • гідроізоляція;
  • вогнебіозахист (обробка деревини засобом І групи вогнезахисної ефективності)

510300 грн.

Дах (комплектність):

  • Рейка 100*25мм (cосна)
  • Контрейка 50*25мм (сосна)
  • Металочерепиця МОНТЕРРЕЙ (Польща) 0,45мм
  • Коник прямий
  • Планка примикання
  • Лобова (декоративна) планка
  • Вітровая планка
  • Яндола
  • Капельник (Карнизна планка)
  • Ущільнювач універсальный
  • Саморізи ОС 4.8х35
  • Фарба-спрей
  • Гідробар'єр
  • Монтаж

578820 грн.

Вікна (комплектність):

  • Вікно VEKA 58, колір білий 10
  • Імпости вертикальні: 1 x 102103
  • Скління: СПО, 24мм, (Rсп=0.36)*
  • Тип фурнітури: Activpilot поворотно-відкидна, колір білий
  • Підбір спеціальний: Activ микровентиляція; Activ 2-функц. механ.
  • Моск.сітка: МС 3
  • Підвіконня: ВМ 110мм, колір білий
  • Підвіконня: ПВ ПВХ 150, заглушки: 600мм, колір білий
  • Монтаж

62700 грн.

Двері (комплектність):

  • Полотно
  • Коробка
  • Лиштва
  • Карниз
  • Фарбування
  • Скло
  • Фурнітура
  • Врізка фурнітуры
  • Монтаж

234360 грн.

Фарбування (комплектність):

  • Шліфування торців
  • Тришарове покриття ефективним деревозахисним засобом на базі низькомолекулярної алкідної смоли методом розпилення.

Параметри забудови

  • Кількість поверхів: 2
  • Площа: 136

Розмір забудови

  • Ширина: 6.8
  • Довжина: 10

Перший поверх

кухня-студия (м²)44,1
спальня (м²)14,6
санузел (м²)9,3

Другий поверх

комната (м²)29,2

Оциліндрований брус

Оциліндрований брус є найбільш оптимальним і поширеним матеріалом для будівництва дерев`яних будинків і бань, бесідок, альтанок, різноманітних садових меблів, дерев`яних конструкцій будь-яких видів. Дерев`яні будинки з оциліндрованого брусу відрізняються красою, всередині такого будинку завжди відчувається особлива затишна атмосфера.

Читати далі...

Профільований брус

Найсучаснішим і високотехнологічним будівельним матеріалом в дерев`яному будівництві на сьогоднішній день є профільований брус. Для виробництва профільованого брусу, звичайному дерев`яному брусу на спеціальному деревообробному обладнанні надається певний профіль.

Читати далі...

Подвійний брус з утепленням

Головна ідея застосування подвійного бруса полягала в досягненні енергоефективності житла. Над проектуванням енергозберігаючих будинків працюють провідні інженери та архітектори в різних країнах світу, запропонована фінами технологія подвійного бруса дає можливість звести до мінімуму тепловтрати будинку, а також об`єднує переваги будівництва дерев`яного будинку з економічністю споруди.

Читати далі...

Клеєний брус

Клеєний брус принципово відрізняється від інших типів колод багатошаровістю. Така структура робить цей дерев’яний матеріал надміцним і витривалим.

Читати далі...

Каркасні конструкції

Каркасні конструкції виготовляються на власних виробничих потужностях компанії «Домінант», з використанням сучасних деревообробних станків. Імпортне, високоточне обладнання дозволяє нам високоякісно виконувати свою роботу. Каркаси складаються зі струганих, ретельно висушених балок 150х50 мм (сосна першого сорту). Ці балки застосовуються для зовнішніх каркасів.

Читати далі...

Немає відгуків

Переглянуті товари

16 інших товарів в цій категорії:

Товар додано для порівняння.