Карлі
- Кількість поверхів
- 1
- Площа
- 48
- Ширина
- 8
- Довжина
- 6
- Будинки і житлові будови
- Будиночки
Дачі
Котеджі - Кількість кімнат
- Двокімнатні будинки
- Особливості будинків
- Будинки з ґанком
- Кількість поверхів споруди
- Одноповерхові будинки
- Будинки з брусу
- Будинки з клеєного брусу
Будинки з профільованого брусу - Комерційні будівлі
- Бази відпочинку
(Що входить в ціну)
- комплект стін;
- комплект крокв;
- комплект балок перекриття;
- утеплювач міжвінцевий;
- антисептик (антисептування всього матеріалу);
- дубові нагеля;
- кріпильні материали (саморізи, усадкові болти, анкера, кріпильні пластини);
- гідроізоляція;
- вогнебіозахист (обробка деревини засобом І групи вогнезахисної ефективності)
Проект будинку з брусу 6х8 м «Карлі»
Дерев’яний котедж з невисокими стінами і класичним двосхилим дахом «Карлі» являє собою економічний і практичний варіант будівництва на дачі. Головна риса зовнішнього дизайну - мінімалізм і лаконічність. Тут ви не знайдете великих терас або навісів біля будинку. Цей котедж створений для тих, кому потрібно заощадити місце на ділянці і виділити більше території під сад і город. Компактний будиночок з затишним ґаночком привертає з першого погляду своїм, немов «іграшковим», дизайном. У проекті «Карлі» передбачені два невеликих віконця і одне панорамне вікно. Решта переваг знаходяться всередині будиночка з брусу, давайте докладніше розглянемо планування проекту «Карлі».
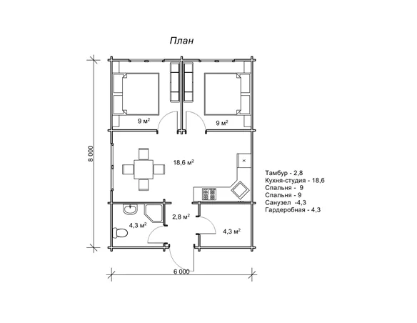
Планування будинку з брусу «Карлі», площа 48 м2
Габарити будиночка «Карлі» 8 на 6 м і загальна площа 48 м2. Матеріал будівництва - сухий профільований брус 60*150 мм говорить про те, що така споруда буде змонтована дуже швидко і за ціною буде недорогою. Мініатюрність котеджу і тонкі стіни з бруса мінімального розміру, пропонованого нашим підприємством, не тільки не обмежують функціональність проекту «Карлі», а навпаки збільшують кількість варіантів його застосування. Його легко поставити біля житлового будинку на присадибній території в якості гостьового будиночка. Можна поставити цей будиночок на дачі. Дві спальні, кухня-студія, санвузол, тамбур і гардероб - все це дозволить залишатися на дачі, скільки душа забажає, навіть протягом усього літа. Таке зручне планування сприяє вигідному використанню будиночка для оренди або в якості курортного котеджу на базі відпочинку.
Замовлення будівництва будинку з брусу «Карлі» з двома спальнями
Дачний котедж «Карлі» з двома спальнями - це оптимальний вибір на дачу або для комерційного використання. Довгі роки дача з бруса, попередньо висушеного в спеціальній камері, буде справно служити своєму господареві, не вимагаючи ремонту або профілактичних робіт. Для того, щоб замовити будівництво дачного будиночка, вам необхідно укласти з нами договір підряду, який в широкому доступі пропонується на нашому сайті. Далі вноситься 50% від вартості базової комплектації, яка вказана на цій сторінці. Після цього ми беремо проект в роботу і виготовляємо комплект споруди. Як відбувається будівництво дерев’яного котеджу, і здійснюються такі платежі, рекомендуємо ознайомитися на нашому сайті в публікації: «10 найпоширеніших питань про будівництво будинку з брусу». Проект будиночка «Карлі» - це душевний куточок, де господаря чекає тепло і комфорт незалежно від погоди і життєвих обставин.
- Кількість поверхів
- 1
- Площа
- 48
- Ширина
- 8
- Довжина
- 6
- Будинки і житлові будови
- Будиночки
Дачі
Котеджі - Кількість кімнат
- Двокімнатні будинки
- Особливості будинків
- Будинки з ґанком
- Кількість поверхів споруди
- Одноповерхові будинки
- Будинки з брусу
- Будинки з клеєного брусу
Будинки з профільованого брусу - Комерційні будівлі
- Бази відпочинку
Базова комплектація:
(Що входить в ціну)
- комплект стін;
- комплект крокв;
- комплект балок перекриття;
- утеплювач міжвінцевий;
- антисептик (антисептування всього матеріалу);
- дубові нагеля;
- кріпильні материали (саморізи, усадкові болти, анкера, кріпильні пластини);
- гідроізоляція;
- вогнебіозахист (обробка деревини засобом І групи вогнезахисної ефективності)
177390 грн.
Дах (комплектність):
- Рейка 100*25мм (cосна)
- Контрейка 50*25мм (сосна)
- Металочерепиця МОНТЕРРЕЙ (Польща) 0,45мм
- Коник прямий
- Планка примикання
- Лобова (декоративна) планка
- Вітровая планка
- Яндола
- Капельник (Карнизна планка)
- Ущільнювач універсальный
- Саморізи ОС 4.8х35
- Фарба-спрей
- Гідробар'єр
- Монтаж
122780 грн.
Вікна (комплектність):
- Вікно VEKA 58, колір білий 10
- Імпости вертикальні: 1 x 102103
- Скління: СПО, 24мм, (Rсп=0.36)*
- Тип фурнітури: Activpilot поворотно-відкидна, колір білий
- Підбір спеціальний: Activ микровентиляція; Activ 2-функц. механ.
- Моск.сітка: МС 3
- Підвіконня: ВМ 110мм, колір білий
- Підвіконня: ПВ ПВХ 150, заглушки: 600мм, колір білий
- Монтаж
41800 грн.
Двері (комплектність):
- Полотно
- Коробка
- Лиштва
- Карниз
- Фарбування
- Скло
- Фурнітура
- Врізка фурнітуры
- Монтаж
73780 грн.
Фарбування (комплектність):
- Шліфування торців
- Тришарове покриття ефективним деревозахисним засобом на базі низькомолекулярної алкідної смоли методом розпилення.
Оциліндрований брус
Оциліндрований брус є найбільш оптимальним і поширеним матеріалом для будівництва дерев`яних будинків і бань, бесідок, альтанок, різноманітних садових меблів, дерев`яних конструкцій будь-яких видів. Дерев`яні будинки з оциліндрованого брусу відрізняються красою, всередині такого будинку завжди відчувається особлива затишна атмосфера.
Профільований брус
Найсучаснішим і високотехнологічним будівельним матеріалом в дерев`яному будівництві на сьогоднішній день є профільований брус. Для виробництва профільованого брусу, звичайному дерев`яному брусу на спеціальному деревообробному обладнанні надається певний профіль.
Подвійний брус з утепленням
Головна ідея застосування подвійного бруса полягала в досягненні енергоефективності житла. Над проектуванням енергозберігаючих будинків працюють провідні інженери та архітектори в різних країнах світу, запропонована фінами технологія подвійного бруса дає можливість звести до мінімуму тепловтрати будинку, а також об`єднує переваги будівництва дерев`яного будинку з економічністю споруди.
Клеєний брус
Клеєний брус принципово відрізняється від інших типів колод багатошаровістю. Така структура робить цей дерев’яний матеріал надміцним і витривалим.
Каркасні конструкції
Каркасні конструкції виготовляються на власних виробничих потужностях компанії «Домінант», з використанням сучасних деревообробних станків. Імпортне, високоточне обладнання дозволяє нам високоякісно виконувати свою роботу. Каркаси складаються зі струганих, ретельно висушених балок 150х50 мм (сосна першого сорту). Ці балки застосовуються для зовнішніх каркасів.










