Ріттес
- Кількість поверхів
- 2
- Площа
- 149.9
- Ширина
- 11.8
- Довжина
- 6.8
- Будинки і житлові будови
- Котеджі
- Кількість кімнат
- Чотирикімнатні будинки
- Особливості будинків
- Будинки з котельнею
Будинки з мансардою
Будинки з терасою
Будинки зі сходами
Будинки з ґанком - Кількість поверхів споруди
- Двоповерхові будинки
- Будинки з брусу
- Будинки з клеєного брусу
Будинки з профільованого брусу
(Що входить в ціну)
- комплект стін;
- комплект крокв;
- комплект балок перекриття;
- утеплювач міжвінцевий;
- антисептик (антисептування всього матеріалу);
- дубові нагеля;
- кріпильні материали (саморізи, усадкові болти, анкера, кріпильні пластини);
- гідроізоляція;
- вогнебіозахист (обробка деревини засобом І групи вогнезахисної ефективності)
Стильний котедж Ріттес з сухого, цільного профільованого бруса являє собою яскравий архітектурний об’єкт з індивідуальною харизмою. Добротну будівлю характеризують прямі, лаконічні лінії. Родзинкою екстер’єру виступає оригінальний ганок, над яким височить своєрідна башточка. Літня тераса під навісом пом’якшує строгість зовнішнього вигляду котеджу Ріттес і додає проекту затишку.
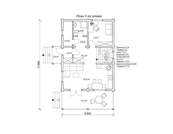
Габарити котеджу Ріттес 11,8 м на 6,8 м дозволяють в досить компактному просторі організувати велику корисну площу. На першому поверсі пропонується таке планування приміщень: ганок, тамбур, хол, коридор, топкова, санвузол, кабінет, кухня-вітальня і тераса. Таке планування буде зручним для господаря, який планує присвячувати себе робочим питанням в домашніх умовах або повністю займатися роботою вдома.
Якщо немає необхідності в окремому робочому кабінеті, то чому б в цій досить просторій кімнаті не облаштувати спальню? Тоді котедж з такою великою кількістю спалень може стати оселею для багатодітної сім’ї.
Ще однією особливістю планування можна назвати об’єднання вітальні і кухні в одне просторе приміщення, з якого передбачений вихід на терасу. Другий поверх вміщує цілих чотири спальні і простора ванна кімната з вікном, через яке можна милуватися навколишнім пейзажем прямо під час прийняття ванни.
Дерев’яний двоповерховий будинок Ріттес, що вміщає чотири спальні і кабінет, являє собою найкомфортніший варіант для постійного проживання великої родини. А літня тераса біля будинку подарує чимало приємних моментів щасливому сімейству, збираючи всіх разом теплими, літніми вечорами.
- Кількість поверхів
- 2
- Площа
- 149.9
- Ширина
- 11.8
- Довжина
- 6.8
- Будинки і житлові будови
- Котеджі
- Кількість кімнат
- Чотирикімнатні будинки
- Особливості будинків
- Будинки з котельнею
Будинки з мансардою
Будинки з терасою
Будинки зі сходами
Будинки з ґанком - Кількість поверхів споруди
- Двоповерхові будинки
- Будинки з брусу
- Будинки з клеєного брусу
Будинки з профільованого брусу
Базова комплектація:
(Що входить в ціну)
- комплект стін;
- комплект крокв;
- комплект балок перекриття;
- утеплювач міжвінцевий;
- антисептик (антисептування всього матеріалу);
- дубові нагеля;
- кріпильні материали (саморізи, усадкові болти, анкера, кріпильні пластини);
- гідроізоляція;
- вогнебіозахист (обробка деревини засобом І групи вогнезахисної ефективності)
330480 грн.
Дах (комплектність):
- Рейка 100*25мм (cосна)
- Контрейка 50*25мм (сосна)
- Металочерепиця МОНТЕРРЕЙ (Польща) 0,45мм
- Коник прямий
- Планка примикання
- Лобова (декоративна) планка
- Вітровая планка
- Яндола
- Капельник (Карнизна планка)
- Ущільнювач універсальный
- Саморізи ОС 4.8х35
- Фарба-спрей
- Гідробар'єр
- Монтаж
280640 грн.
Вікна (комплектність):
- Вікно VEKA 58, колір білий 10
- Імпости вертикальні: 1 x 102103
- Скління: СПО, 24мм, (Rсп=0.36)*
- Тип фурнітури: Activpilot поворотно-відкидна, колір білий
- Підбір спеціальний: Activ микровентиляція; Activ 2-функц. механ.
- Моск.сітка: МС 3
- Підвіконня: ВМ 110мм, колір білий
- Підвіконня: ПВ ПВХ 150, заглушки: 600мм, колір білий
- Монтаж
0 грн.
Двері (комплектність):
- Полотно
- Коробка
- Лиштва
- Карниз
- Фарбування
- Скло
- Фурнітура
- Врізка фурнітуры
- Монтаж
185752 грн.
Фарбування (комплектність):
- Шліфування торців
- Тришарове покриття ефективним деревозахисним засобом на базі низькомолекулярної алкідної смоли методом розпилення.
Параметри забудови
- Кількість поверхів: 2
- Площа: 149.9
Розмір забудови
- Ширина: 11.8
- Довжина: 6.8
Перший поверх
| кімната (м²) | 12 |
| коридор (м²) | 2,8 |
| ґанок (м²) | 2,9 |
| кухня (м²) | 23,9 |
| с/в (м²) | 4,2 |
| тамбур (м²) | 3,2 |
| тераса (м²) | 17,5 |
| топочна (м²) | 4,9 |
| хол (м²) | 12,2 |
Другий поверх
| с/в (м²) | 7,5 |
| спальня (м²) | 12 |
| спальня (м²) | 12 |
| спальня (м²) | 12 |
| хол (м²) | 11,3 |
Оциліндрований брус
Оциліндрований брус є найбільш оптимальним і поширеним матеріалом для будівництва дерев`яних будинків і бань, бесідок, альтанок, різноманітних садових меблів, дерев`яних конструкцій будь-яких видів. Дерев`яні будинки з оциліндрованого брусу відрізняються красою, всередині такого будинку завжди відчувається особлива затишна атмосфера.
Профільований брус
Найсучаснішим і високотехнологічним будівельним матеріалом в дерев`яному будівництві на сьогоднішній день є профільований брус. Для виробництва профільованого брусу, звичайному дерев`яному брусу на спеціальному деревообробному обладнанні надається певний профіль.
Подвійний брус з утепленням
Головна ідея застосування подвійного бруса полягала в досягненні енергоефективності житла. Над проектуванням енергозберігаючих будинків працюють провідні інженери та архітектори в різних країнах світу, запропонована фінами технологія подвійного бруса дає можливість звести до мінімуму тепловтрати будинку, а також об`єднує переваги будівництва дерев`яного будинку з економічністю споруди.
Клеєний брус
Клеєний брус принципово відрізняється від інших типів колод багатошаровістю. Така структура робить цей дерев’яний матеріал надміцним і витривалим.
Каркасні конструкції
Каркасні конструкції виготовляються на власних виробничих потужностях компанії «Домінант», з використанням сучасних деревообробних станків. Імпортне, високоточне обладнання дозволяє нам високоякісно виконувати свою роботу. Каркаси складаються зі струганих, ретельно висушених балок 150х50 мм (сосна першого сорту). Ці балки застосовуються для зовнішніх каркасів.












