Еллата2
- Кількість поверхів
- 1
- Площа
- 186.4
- Ширина
- 13
- Довжина
- 18.7
- Будинки і житлові будови
- Дачі
Маєтки
Садиби - Кількість кімнат
- Чотирикімнатні будинки
- Особливості будинків
- Будинки з каміном
Будинки з котельнею
Будинки з терасою - Кількість поверхів споруди
- Одноповерхові будинки
- Будинки з брусу
- Будинки з оциліндрованого брусу
(Що входить в ціну)
- комплект стін;
- комплект крокв;
- комплект балок перекриття;
- утеплювач міжвінцевий;
- антисептик (антисептування всього матеріалу);
- дубові нагеля;
- кріпильні материали (саморізи, усадкові болти, анкера, кріпильні пластини);
- гідроізоляція;
- вогнебіозахист (обробка деревини засобом І групи вогнезахисної ефективності)
Проект одноповерхового зрубу садиби «Еллата2»
«Еллата2» - це проект, який виглядає ефектно, стильно і розкішно. Неймовірно гарний, ошатний оциліндрований зруб з високими стелями і величезними панорамними вікнами можна розглядати як елітну віллу, на якій життя прекрасне, а відпочинок чудовий! Так і хочеться уявити проект «Еллата2» в оточенні американських секвой неподалік від мальовничого каньйону. Цей проект створений на основі проекту «Еллата», чудового заміського будинку з дерева на 2 спальні. Нова версія «Еллата2» є ще монументальнішою і розкішнішою. Ви переконаєтеся в цьому, як тільки докладніше вивчите планування цієї комфортабельної садиби.
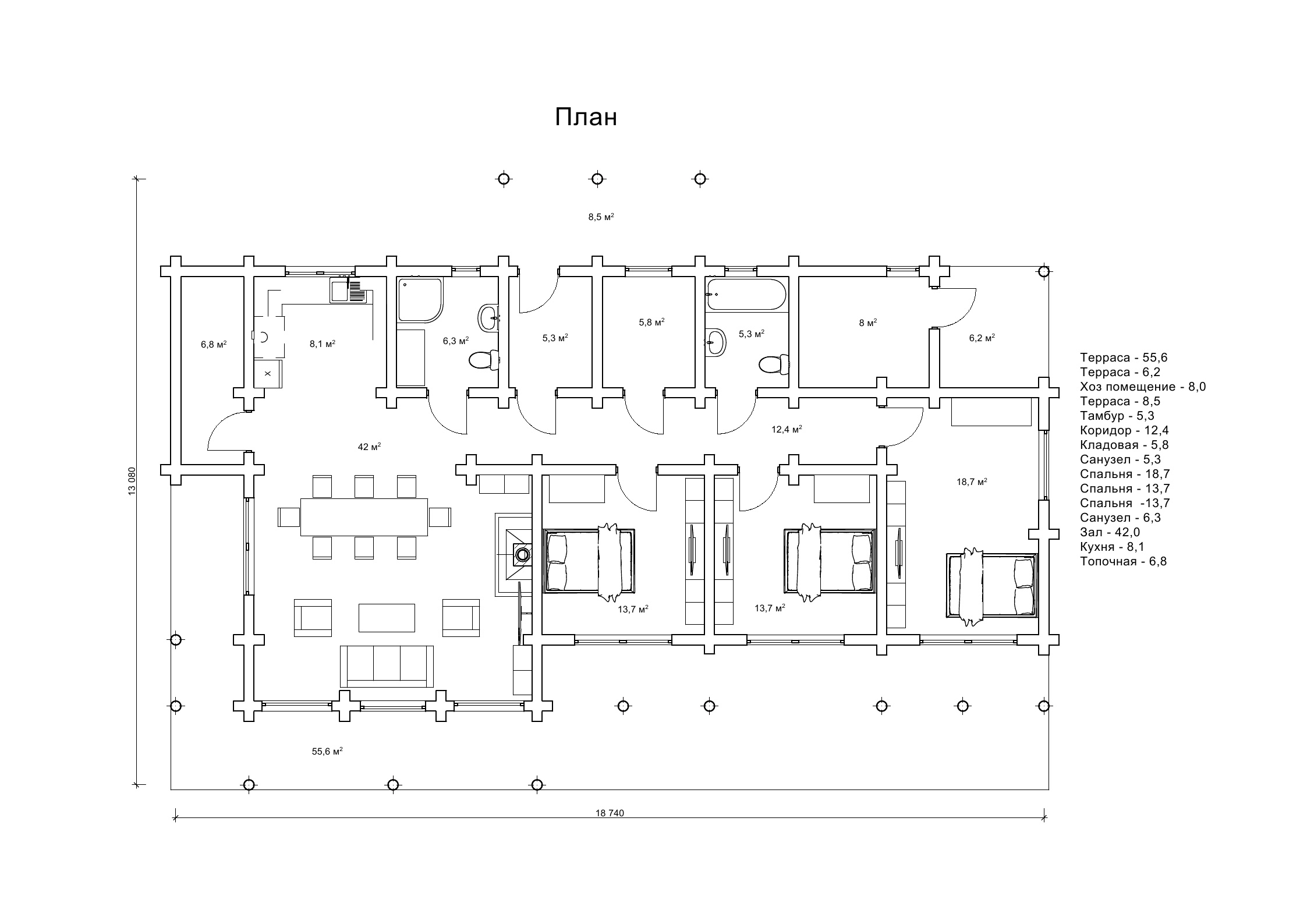
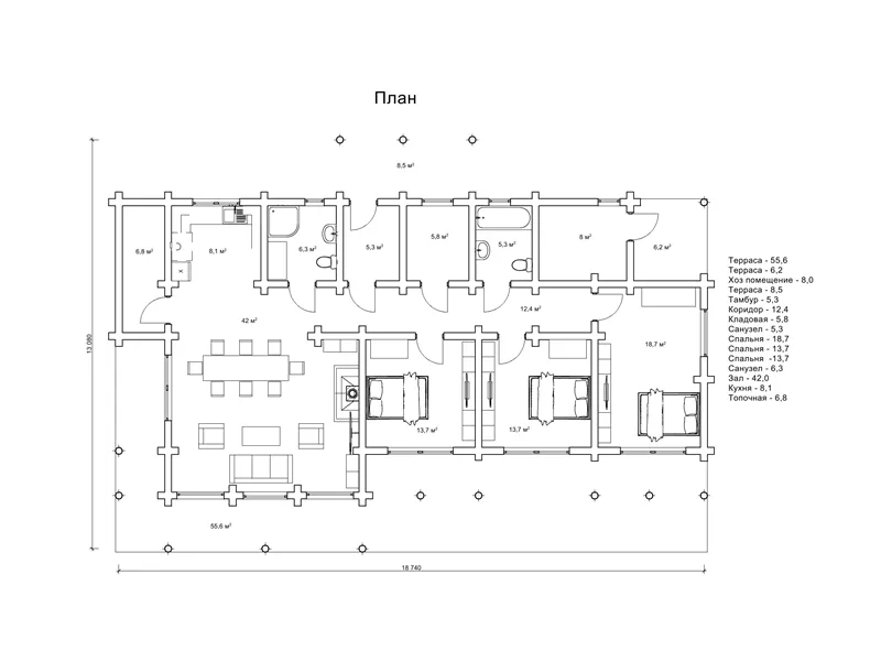
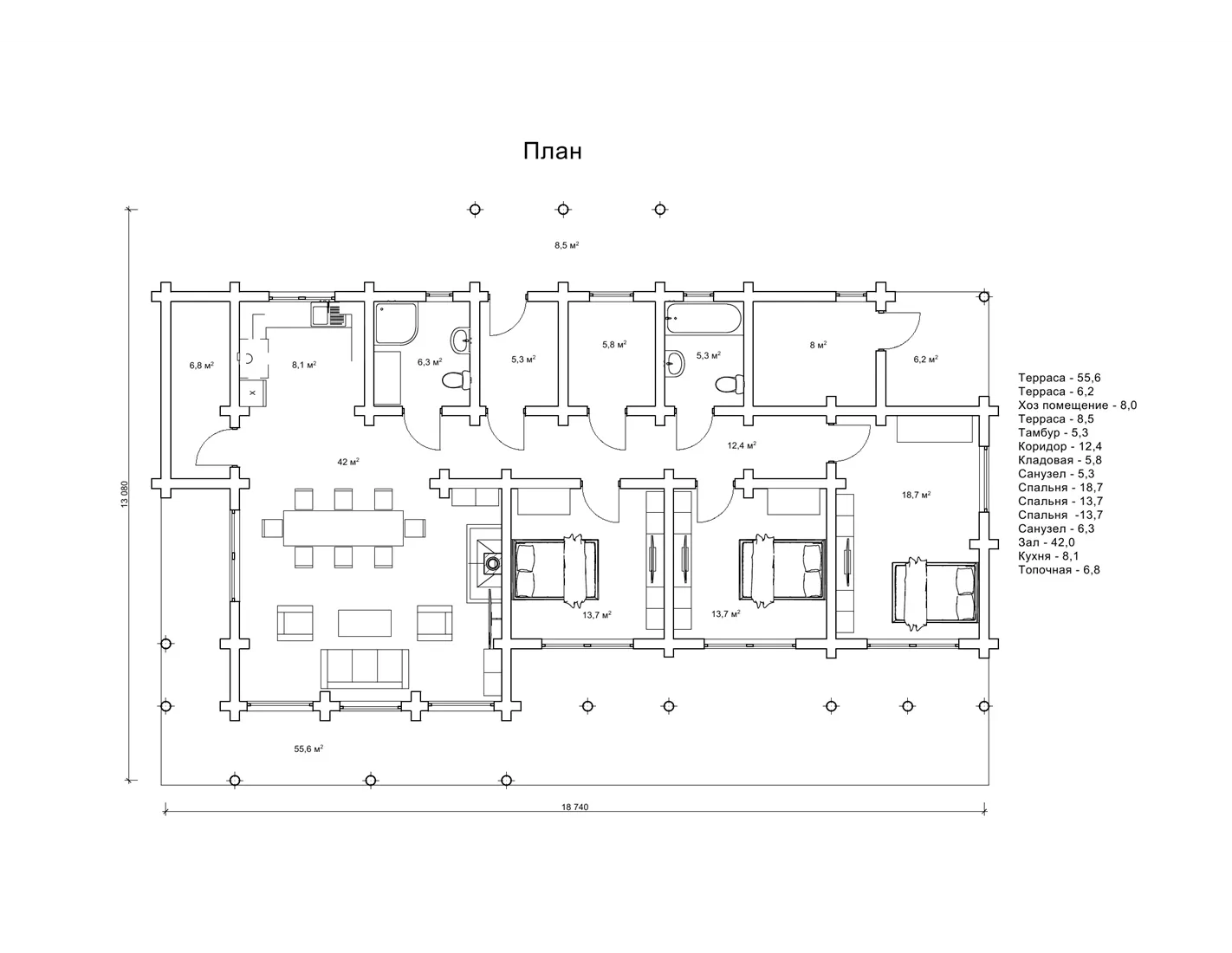
План одноповерхової садиби «Еллата2», площа 186,4 м2
Дерев’яна садиба займає істотну територію забудови 13х18,7 м, а загальна площа проекту «Еллата2» становить 186,4 м2. Це одна з особливостей одноповерхового будинку. Як правило, споруди на один поверх займають набагато більше місця, ніж двоповерхові будівлі аналогічних розмірів. Інші деталі щодо вибору одноповерхового або двоповерхового будинку можна прочитати у відповідній публікації. У разі розробки проекту «Еллата2», господарі хотіли отримати комфортабельне місце для життя, де створені всі умови для релаксу і не потрібно ходити вгору по сходах. Три великі спальні і величезна вітальня з каміном і високими стелями зроблять життя на віллі, побудованій з дерева чудовим. Що ще дуже зручно в плануванні садиби, так це приміщення окремої топкової і наявність двох санвузлів з ванною. Таке зручне планування створене для комфорту великої родини, а привабливість дизайну подарує чимало хвилин естетичної насолоди навколишньою красою.
Садиба «Еллата2»: будівництво одноповерхового зрубу
Багатий маєток (садиба) «Еллата2» рекомендуємо в якості ідеального варіанту для облаштування заміського житла великої родини. Садиба з трьома спальнями зовні виглядає незрівнянно, а за рахунок внутрішнього наповнення і використання при будівництві виключно натуральних матеріалів зробить господарів максимально здоровими і щасливими. Якщо ви хочете зміцнити здоров’я і підняти імунітет, то наші конструкції з натуральної соснової деревини з корисними хвойними фітонцидами це те, що вам просто необхідно. Адже ми використовуємо тільки натуральні та захищені матеріали, з якими жоден сучасний матеріал не зможе конкурувати. Будівництво одноповерхового будинку з дерева за готовим проектом можна замовити за вигідною ціною виробника у виробничо-будівельній компанії «Домінант».
- Кількість поверхів
- 1
- Площа
- 186.4
- Ширина
- 13
- Довжина
- 18.7
- Будинки і житлові будови
- Дачі
Маєтки
Садиби - Кількість кімнат
- Чотирикімнатні будинки
- Особливості будинків
- Будинки з каміном
Будинки з котельнею
Будинки з терасою - Кількість поверхів споруди
- Одноповерхові будинки
- Будинки з брусу
- Будинки з оциліндрованого брусу
Базова комплектація:
(Що входить в ціну)
- комплект стін;
- комплект крокв;
- комплект балок перекриття;
- утеплювач міжвінцевий;
- антисептик (антисептування всього матеріалу);
- дубові нагеля;
- кріпильні материали (саморізи, усадкові болти, анкера, кріпильні пластини);
- гідроізоляція;
- вогнебіозахист (обробка деревини засобом І групи вогнезахисної ефективності)
653670 грн.
Дах (комплектність):
- Рейка 100*25мм (cосна)
- Контрейка 50*25мм (сосна)
- Металочерепиця МОНТЕРРЕЙ (Польща) 0,45мм
- Коник прямий
- Планка примикання
- Лобова (декоративна) планка
- Вітровая планка
- Яндола
- Капельник (Карнизна планка)
- Ущільнювач універсальный
- Саморізи ОС 4.8х35
- Фарба-спрей
- Гідробар'єр
- Монтаж
648980 грн.
Вікна (комплектність):
- Вікно VEKA 58, колір білий 10
- Імпости вертикальні: 1 x 102103
- Скління: СПО, 24мм, (Rсп=0.36)*
- Тип фурнітури: Activpilot поворотно-відкидна, колір білий
- Підбір спеціальний: Activ микровентиляція; Activ 2-функц. механ.
- Моск.сітка: МС 3
- Підвіконня: ВМ 110мм, колір білий
- Підвіконня: ПВ ПВХ 150, заглушки: 600мм, колір білий
- Монтаж
83600 грн.
Двері (комплектність):
- Полотно
- Коробка
- Лиштва
- Карниз
- Фарбування
- Скло
- Фурнітура
- Врізка фурнітуры
- Монтаж
325500 грн.
Фарбування (комплектність):
- Шліфування торців
- Тришарове покриття ефективним деревозахисним засобом на базі низькомолекулярної алкідної смоли методом розпилення.
Параметри забудови
- Кількість поверхів: 1
- Площа: 186.4
Розмір забудови
- Ширина: 13
- Довжина: 18.7
Перший поверх
| тераса (м²) | 55,6 |
| тераса (м²) | 6,2 |
| госп. приміщення (м²) | 8,0 |
| тераса (м²) | 8,5 |
| тамбур (м²) | 5,3 |
| коридор (м²) | 12,4 |
| комора (м²) | 5,8 |
| санвузол (м²) | 5,3 |
| спальня (м²) | 18,7 |
| спальня х2 (м²) | 13,7 |
| санвузол (м²) | 6,3 |
| зала (м²) | 42,0 |
| кухня (м²) | 8,1 |
| топкова (м²) | 6,8 |
Оциліндрований брус
Оциліндрований брус є найбільш оптимальним і поширеним матеріалом для будівництва дерев`яних будинків і бань, бесідок, альтанок, різноманітних садових меблів, дерев`яних конструкцій будь-яких видів. Дерев`яні будинки з оциліндрованого брусу відрізняються красою, всередині такого будинку завжди відчувається особлива затишна атмосфера.
Профільований брус
Найсучаснішим і високотехнологічним будівельним матеріалом в дерев`яному будівництві на сьогоднішній день є профільований брус. Для виробництва профільованого брусу, звичайному дерев`яному брусу на спеціальному деревообробному обладнанні надається певний профіль.
Подвійний брус з утепленням
Головна ідея застосування подвійного бруса полягала в досягненні енергоефективності житла. Над проектуванням енергозберігаючих будинків працюють провідні інженери та архітектори в різних країнах світу, запропонована фінами технологія подвійного бруса дає можливість звести до мінімуму тепловтрати будинку, а також об`єднує переваги будівництва дерев`яного будинку з економічністю споруди.
Клеєний брус
Клеєний брус принципово відрізняється від інших типів колод багатошаровістю. Така структура робить цей дерев’яний матеріал надміцним і витривалим.
Каркасні конструкції
Каркасні конструкції виготовляються на власних виробничих потужностях компанії «Домінант», з використанням сучасних деревообробних станків. Імпортне, високоточне обладнання дозволяє нам високоякісно виконувати свою роботу. Каркаси складаються зі струганих, ретельно висушених балок 150х50 мм (сосна першого сорту). Ці балки застосовуються для зовнішніх каркасів.
















