Зателефонуйте мені
Сола №1
Сола №2
Сола №3
Сола №4
Сола №5
Сола №6
Сола №7
Сола №8
Сола №9
Сола №10
Сола №11
Сола №12
Сола №13
Сола №1
Сола №2
Сола №3
Сола №4
Сола №5
Сола №6
Сола №7
Сола №8
Сола №9
Сола №10
Сола №11
Сола №12
Сола №13
Сола №1
Сола №1 Сола №2 Сола №3 Сола №4 Сола №5 Сола №6 Сола №7 Сола №8 Сола №9 Сола №10 Сола №11 Сола №12 Сола №13

Сола

1 581 986,00 ₴

Будинок з каміном на три спальні - «Сола»

Розмір брусу
  • Оциліндрований 160
  • Оциліндрований 180
  • Оциліндрований 200
  • Оциліндрований 220
  • Профільований 60
  • Профільований 150
  • Профільований 200
  • Подвійний 300
  • Клеєний 120
  • Клеєний 180
Кількість поверхів
1
Площа
104.5
Ширина
10
Довжина
12.5
Будинки і житлові будови
Дачі
Котеджі
Кількість кімнат
Чотирикімнатні будинки
Особливості будинків
Будинки з каміном
Будинки з ґанком
Кількість поверхів споруди
Одноповерхові будинки
Будинки з брусу
Будинки з клеєного брусу
Будинки з профільованого брусу
 

(Що входить в ціну)

Що входить в базову комплектацію

  • комплект стін;
  • комплект крокв;
  • комплект балок перекриття;
  • утеплювач міжвінцевий;
  • антисептик (антисептування всього матеріалу);
  • дубові нагеля;
  • кріпильні материали (саморізи, усадкові болти, анкера, кріпильні пластини);
  • гідроізоляція;
  • вогнебіозахист (обробка деревини засобом І групи вогнезахисної ефективності)

Будівництво будинку з каміном на три спальні за проектом «Сола»

Проект «Сола» виглядає лаконічно та нехитро. Просту форму даху прикрашають невеликі навіси над ґанками. У будинку сплановано два входи. Великі вікна додають природного освітлення будівлі і візуально роблять її витонченіше. Мінімалістичний дизайн та класичний матеріал виконання котеджу «Сола» обов’язково сподобається поціновувачу сучасних дизайнерських рішень. Суворих геометричних форм споруді надає сухий, профільований брус. Гладко відшліфовані стіни з такого матеріалу виглядають просто розкішно, і практично не потребують облицювання. А комфортабельне планування котеджу з сухого брусу заслуговує на особливу увагу, адже воно включає три житлові кімнати.

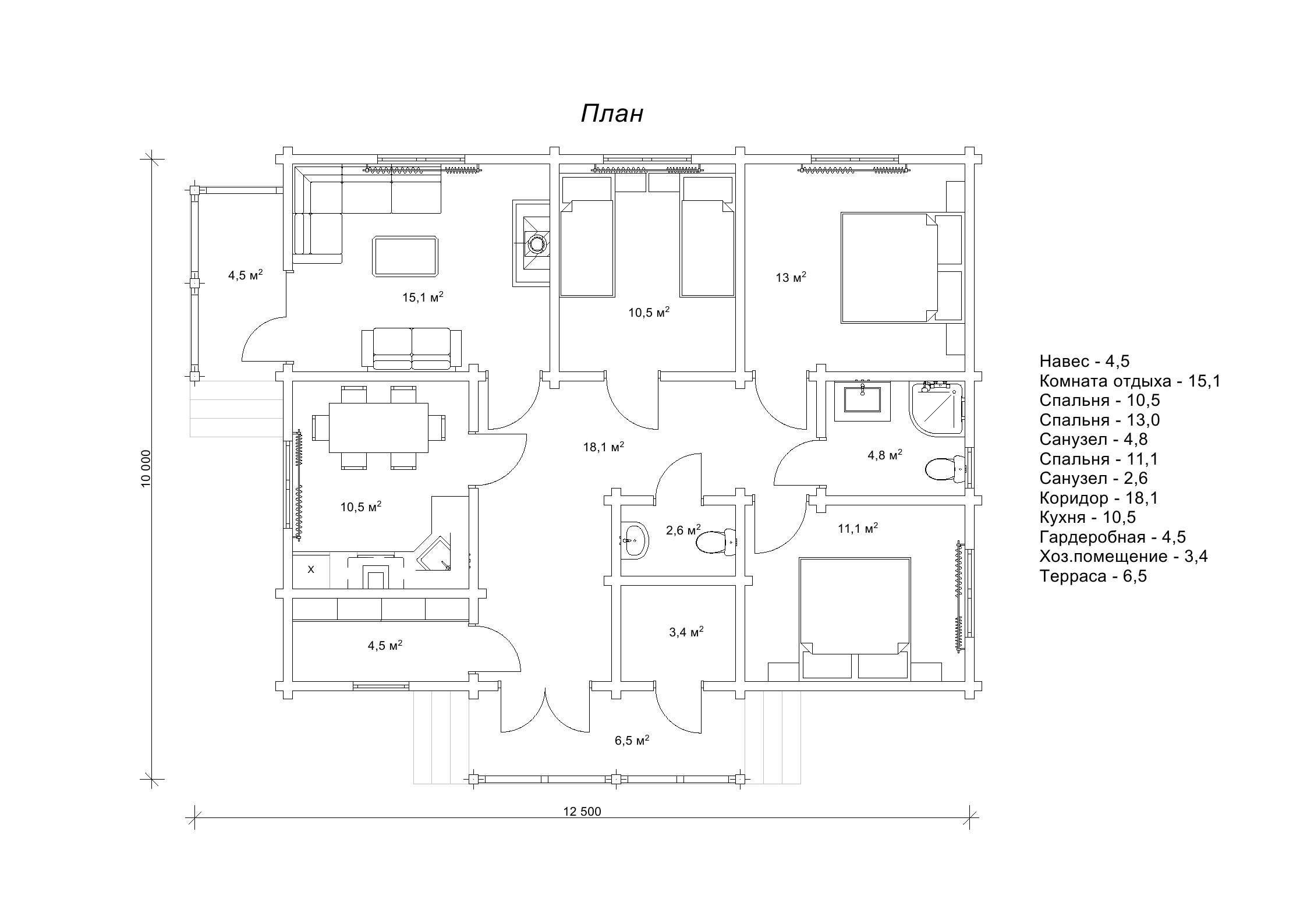
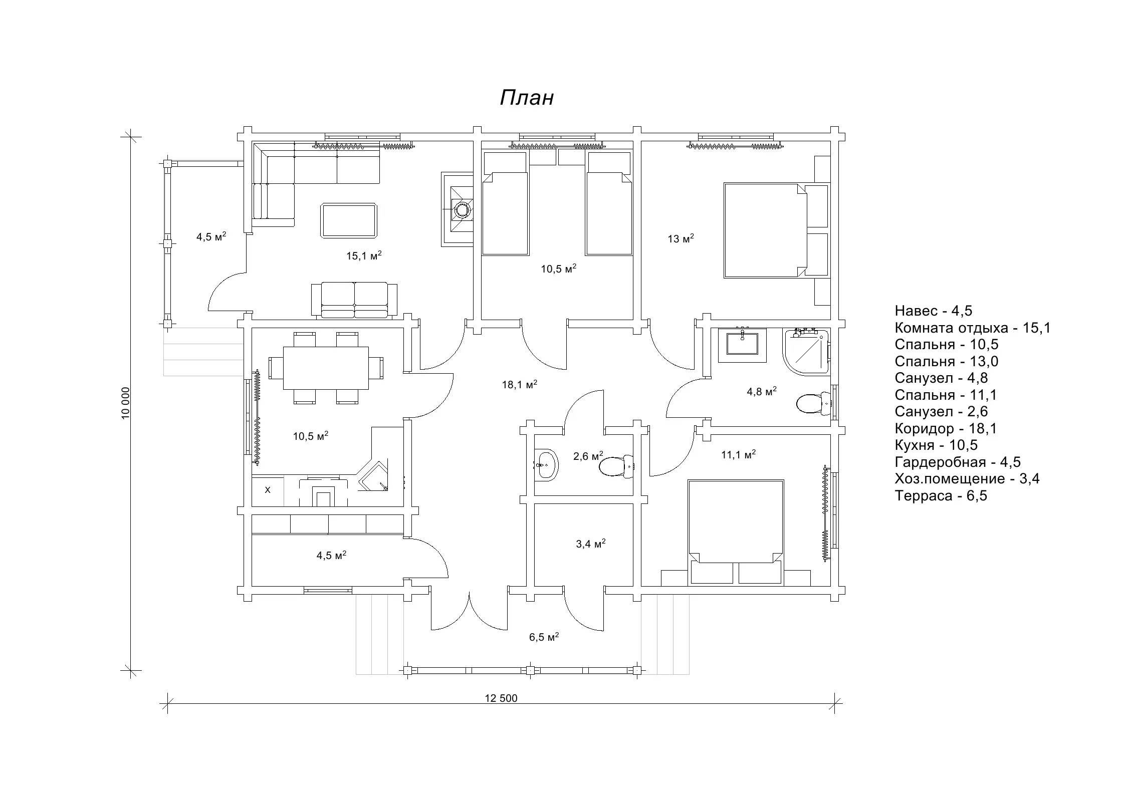
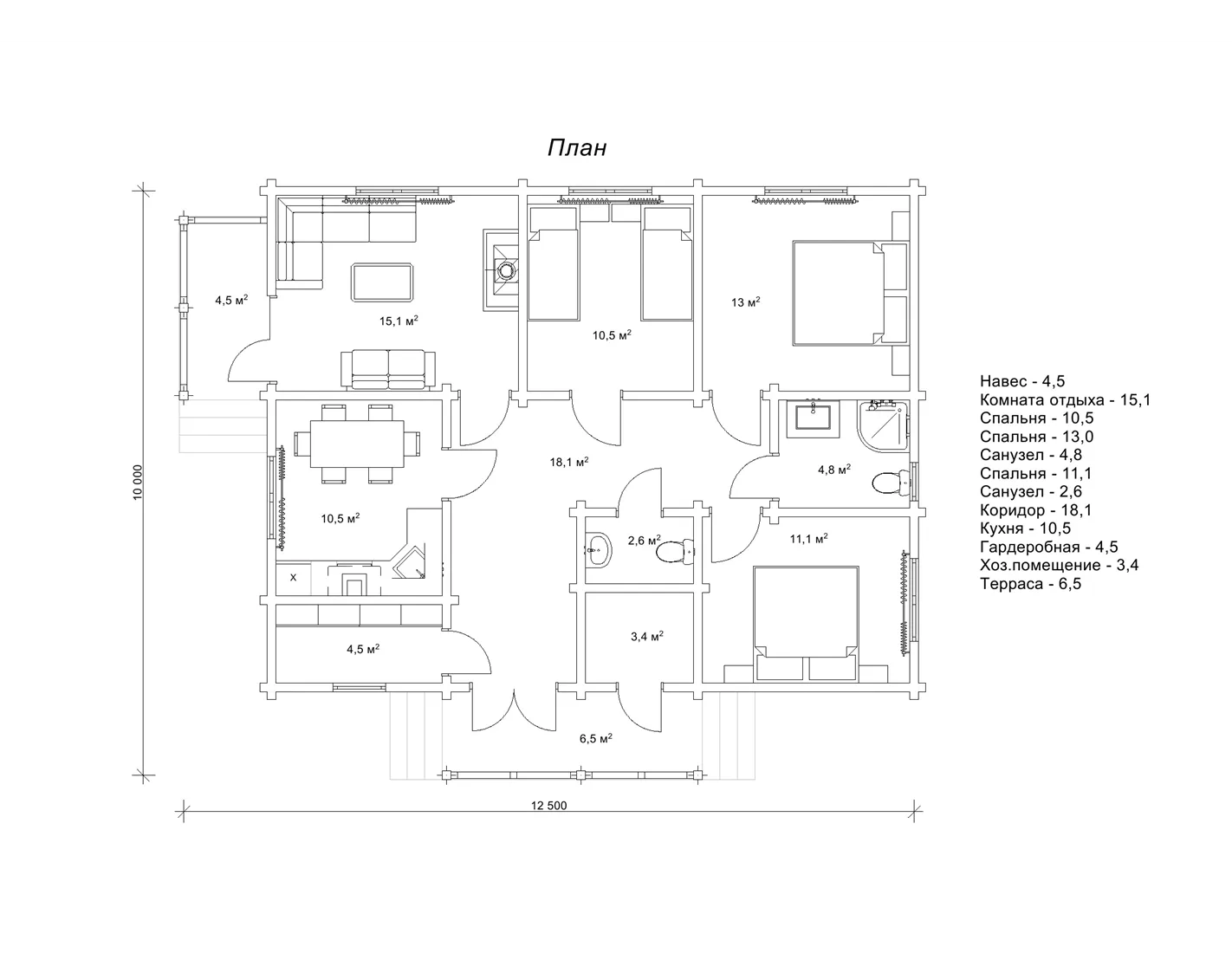
Проект будинку з каміном на три спальні, площа 104,5 м2

Планування котеджу «Сола» розташоване в габаритах 10 на 12,5 м. Це одноповерховий будинок, який включає три просторі спальні, кухню та одну вітальню з каміном, звідки сплановано окремий вихід під навіс. Насолодившись теплом домівки, можна вийти помилуватися навколишньою природою. Місткий, сучасний котедж «Сола», виконаний за передовою технологією сухого, профільованого бруса стане розумним вибором для будівництва на заміській ділянці та ушляхетнить розкішшю натуральних матеріалів будь-яку територію. Це комфортабельний всесезонний будинок з достатньою кількістю житлових кімнат, щоб зручно розмістити родину з 4-5 осіб. Придбання такого трикімнатного будиночка з каміном наповнить ваше життя затишком та радістю від справжньої близькості з природою у стінах із натуральної деревини.

Кількість поверхів
1
Площа
104.5
Ширина
10
Довжина
12.5
Будинки і житлові будови
Дачі
Котеджі
Кількість кімнат
Чотирикімнатні будинки
Особливості будинків
Будинки з каміном
Будинки з ґанком
Кількість поверхів споруди
Одноповерхові будинки
Будинки з брусу
Будинки з клеєного брусу
Будинки з профільованого брусу

Базова комплектація:
(Що входить в ціну)

Що входить в базову комплектацію

  • комплект стін;
  • комплект крокв;
  • комплект балок перекриття;
  • утеплювач міжвінцевий;
  • антисептик (антисептування всього матеріалу);
  • дубові нагеля;
  • кріпильні материали (саморізи, усадкові болти, анкера, кріпильні пластини);
  • гідроізоляція;
  • вогнебіозахист (обробка деревини засобом І групи вогнезахисної ефективності)

99630 грн.

Дах (комплектність):

  • Рейка 100*25мм (cосна)
  • Контрейка 50*25мм (сосна)
  • Металочерепиця МОНТЕРРЕЙ (Польща) 0,45мм
  • Коник прямий
  • Планка примикання
  • Лобова (декоративна) планка
  • Вітровая планка
  • Яндола
  • Капельник (Карнизна планка)
  • Ущільнювач універсальный
  • Саморізи ОС 4.8х35
  • Фарба-спрей
  • Гідробар'єр
  • Монтаж

245560 грн.

Вікна (комплектність):

  • Вікно VEKA 58, колір білий 10
  • Імпости вертикальні: 1 x 102103
  • Скління: СПО, 24мм, (Rсп=0.36)*
  • Тип фурнітури: Activpilot поворотно-відкидна, колір білий
  • Підбір спеціальний: Activ микровентиляція; Activ 2-функц. механ.
  • Моск.сітка: МС 3
  • Підвіконня: ВМ 110мм, колір білий
  • Підвіконня: ПВ ПВХ 150, заглушки: 600мм, колір білий
  • Монтаж

209000 грн.

Двері (комплектність):

  • Полотно
  • Коробка
  • Лиштва
  • Карниз
  • Фарбування
  • Скло
  • Фурнітура
  • Врізка фурнітуры
  • Монтаж

174468 грн.

Фарбування (комплектність):

  • Шліфування торців
  • Тришарове покриття ефективним деревозахисним засобом на базі низькомолекулярної алкідної смоли методом розпилення.

Параметри забудови

  • Кількість поверхів: 1
  • Площа: 104.5

Розмір забудови

  • Ширина: 10
  • Довжина: 12.5

Перший поверх

навіс (м²)4,5
кімната відпочинку (м²)15,1
спальня (м²)10,5
спальня (м²)13,0
санвузол (м²)4,8
спальня (м²)11,1
санвузол (м²)2,6
коридор (м²)18,1
кухня (м²)10,5
гардеробна (м²)4,5
госп. приміщення (м²)3,4
тераса (м²)6,5

Оциліндрований брус

Оциліндрований брус є найбільш оптимальним і поширеним матеріалом для будівництва дерев`яних будинків і бань, бесідок, альтанок, різноманітних садових меблів, дерев`яних конструкцій будь-яких видів. Дерев`яні будинки з оциліндрованого брусу відрізняються красою, всередині такого будинку завжди відчувається особлива затишна атмосфера.

Читати далі...

Профільований брус

Найсучаснішим і високотехнологічним будівельним матеріалом в дерев`яному будівництві на сьогоднішній день є профільований брус. Для виробництва профільованого брусу, звичайному дерев`яному брусу на спеціальному деревообробному обладнанні надається певний профіль.

Читати далі...

Подвійний брус з утепленням

Головна ідея застосування подвійного бруса полягала в досягненні енергоефективності житла. Над проектуванням енергозберігаючих будинків працюють провідні інженери та архітектори в різних країнах світу, запропонована фінами технологія подвійного бруса дає можливість звести до мінімуму тепловтрати будинку, а також об`єднує переваги будівництва дерев`яного будинку з економічністю споруди.

Читати далі...

Клеєний брус

Клеєний брус принципово відрізняється від інших типів колод багатошаровістю. Така структура робить цей дерев’яний матеріал надміцним і витривалим.

Читати далі...

Каркасні конструкції

Каркасні конструкції виготовляються на власних виробничих потужностях компанії «Домінант», з використанням сучасних деревообробних станків. Імпортне, високоточне обладнання дозволяє нам високоякісно виконувати свою роботу. Каркаси складаються зі струганих, ретельно висушених балок 150х50 мм (сосна першого сорту). Ці балки застосовуються для зовнішніх каркасів.

Читати далі...

Немає відгуків

Переглянуті товари

16 інших товарів в цій категорії:

Товар додано для порівняння.