Азарнія
- Кількість поверхів
- 2
- Площа
- 243.48
- Ширина
- 9.6
- Довжина
- 14.3
- Будинки і житлові будови
- Вілли
Маєтки
Садиби - Кількість кімнат
- Чотирикімнатні будинки
- Особливості будинків
- Будинки з другим світлом
Будинки з мансардою
Будинки з терасою
Будинки зі сходами
Будинки з ґанком - Кількість поверхів споруди
- Двоповерхові будинки
(Що входить в ціну)
- комплект стін;
- комплект крокв;
- комплект балок перекриття;
- утеплювач міжвінцевий;
- антисептик (антисептування всього матеріалу);
- дубові нагеля;
- кріпильні материали (саморізи, усадкові болти, анкера, кріпильні пластини);
- гідроізоляція;
- вогнебіозахист (обробка деревини засобом І групи вогнезахисної ефективності)
Придбання розкішного дерев’яного особняка преміум класу Азарнія дає можливість в повній мірі відчути себе господарем життя. Дуже стильно і зі смаком в будинку виглядає поєднання таких архітектурних рішень як мансарда і «друге світло». Також мило виглядають дві затишні, невеликі тераси, симетрично розташовані в різних куточках будинку. А внутрішнє наповнення особняка продумано так, щоб кожен, хто увійде в цей світлий будинок занурився в атмосферу виключного комфорту.
Планування проекту Азарнія dominant-wood.com.ua/uk/proekty/250-azarniya пропонує просторі, світлі приміщення, розміщення яких ретельно продумано кваліфікованими фахівцями «Домінант» dominant-wood.com.ua/uk. В особняку спроектовано три великі спальні, при чому, кожна з них має в своєму розпорядженні площу понад двадцять квадратних метрів. З розкішної, високою вітальні з «другим світлом» сплановано вихід на літню терасу.
У будинку передбачено наявність двох затишних терас, симетрично розташованих з двох сторін головного фасаду. На одну з терас можна вийти прямо з кухні. Великий студійний простір, розділений на окремі функціональні зони, займає весь перший поверх. Таке архітектурне рішення дає можливість відчути в будинку широту простору і, разом з тим, знайти свій затишний куточок. На другому поверсі спроектований внутрішній лофт-балкон з панорамними вікнами, звідки так приємно милуватися навколишньою природою.
Поруч з таким добротним дерев’яному будинком солідно буде виглядати лазня з сухого профільованого бруса dominant-wood.com.ua/uk/42-bani-z-profilovanogo-brusu від компанії «Домінант». Дерев’яний особняк Азарнія просто створений для дбайливого сім’янина, для того, хто хоче створити справжню сімейну династію і подбати про благоустрій своїх наступних поколінь.
- Кількість поверхів
- 2
- Площа
- 243.48
- Ширина
- 9.6
- Довжина
- 14.3
- Будинки і житлові будови
- Вілли
Маєтки
Садиби - Кількість кімнат
- Чотирикімнатні будинки
- Особливості будинків
- Будинки з другим світлом
Будинки з мансардою
Будинки з терасою
Будинки зі сходами
Будинки з ґанком - Кількість поверхів споруди
- Двоповерхові будинки
Базова комплектація:
(Що входить в ціну)
- комплект стін;
- комплект крокв;
- комплект балок перекриття;
- утеплювач міжвінцевий;
- антисептик (антисептування всього матеріалу);
- дубові нагеля;
- кріпильні материали (саморізи, усадкові болти, анкера, кріпильні пластини);
- гідроізоляція;
- вогнебіозахист (обробка деревини засобом І групи вогнезахисної ефективності)
534600 грн.
Дах (комплектність):
- Рейка 100*25мм (cосна)
- Контрейка 50*25мм (сосна)
- Металочерепиця МОНТЕРРЕЙ (Польща) 0,45мм
- Коник прямий
- Планка примикання
- Лобова (декоративна) планка
- Вітровая планка
- Яндола
- Капельник (Карнизна планка)
- Ущільнювач універсальный
- Саморізи ОС 4.8х35
- Фарба-спрей
- Гідробар'єр
- Монтаж
824380 грн.
Вікна (комплектність):
- Вікно VEKA 58, колір білий 10
- Імпости вертикальні: 1 x 102103
- Скління: СПО, 24мм, (Rсп=0.36)*
- Тип фурнітури: Activpilot поворотно-відкидна, колір білий
- Підбір спеціальний: Activ микровентиляція; Activ 2-функц. механ.
- Моск.сітка: МС 3
- Підвіконня: ВМ 110мм, колір білий
- Підвіконня: ПВ ПВХ 150, заглушки: 600мм, колір білий
- Монтаж
0 грн.
Двері (комплектність):
- Полотно
- Коробка
- Лиштва
- Карниз
- Фарбування
- Скло
- Фурнітура
- Врізка фурнітуры
- Монтаж
196168 грн.
Фарбування (комплектність):
- Шліфування торців
- Тришарове покриття ефективним деревозахисним засобом на базі низькомолекулярної алкідної смоли методом розпилення.
Параметри забудови
- Кількість поверхів: 2
- Площа: 243.48
Розмір забудови
- Ширина: 9.6
- Довжина: 14.3
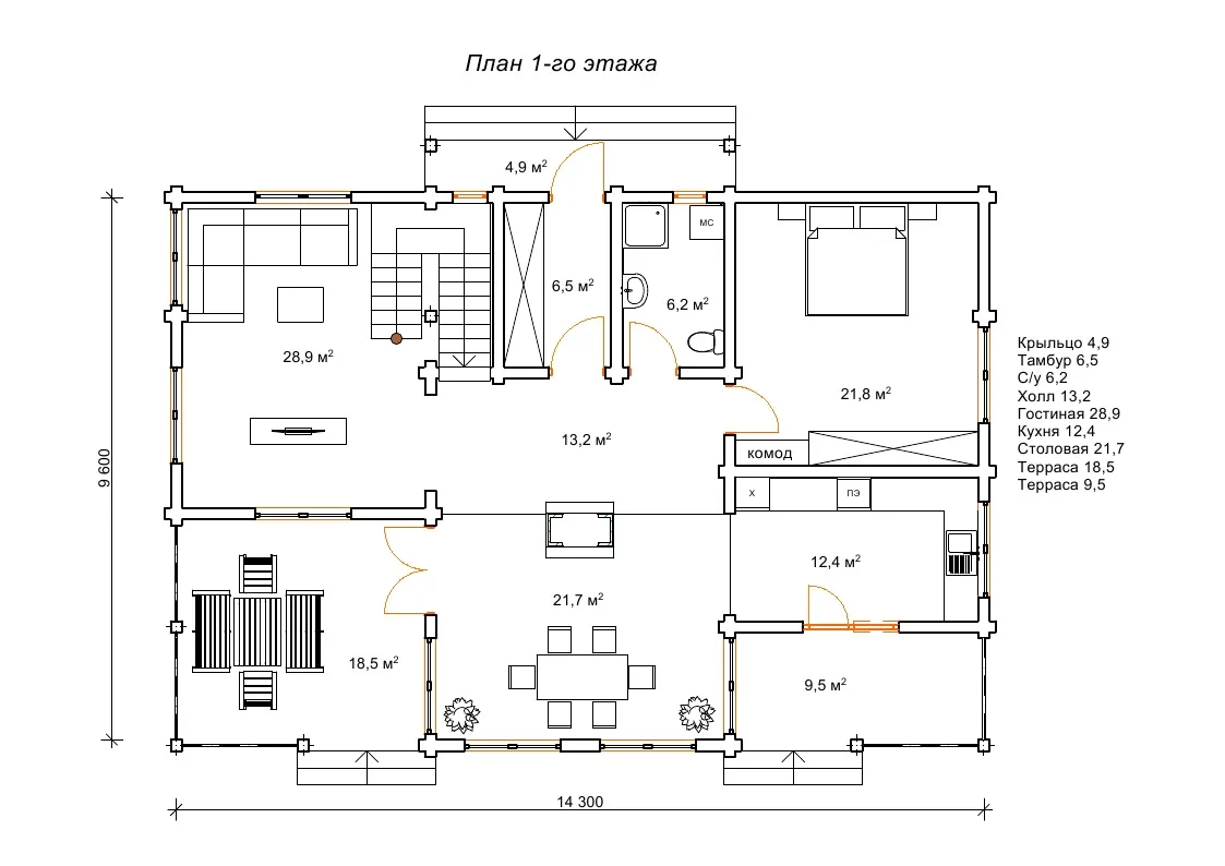
Перший поверх
| вітальня (м²) | 28,9 |
| ґанок (м²) | 4,9 |
| кухня (м²) | 12,4 |
| с/в (м²) | 6,2 |
| їдальня (м²) | 21,7 |
| тамбур (м²) | 6,5 |
| тераса (м²) | 18,5 |
| тераса (м²) | 9,5 |
| хол (м²) | 13,2 |
Другий поверх
| друге світло (м²) | 21,5 |
| с/в (м²) | 12,7 |
| спальня (м²) | 24,8 |
| спальня (м²) | 24,8 |
| хол (м²) | 17 |
Оциліндрований брус
Оциліндрований брус є найбільш оптимальним і поширеним матеріалом для будівництва дерев`яних будинків і бань, бесідок, альтанок, різноманітних садових меблів, дерев`яних конструкцій будь-яких видів. Дерев`яні будинки з оциліндрованого брусу відрізняються красою, всередині такого будинку завжди відчувається особлива затишна атмосфера.
Профільований брус
Найсучаснішим і високотехнологічним будівельним матеріалом в дерев`яному будівництві на сьогоднішній день є профільований брус. Для виробництва профільованого брусу, звичайному дерев`яному брусу на спеціальному деревообробному обладнанні надається певний профіль.
Подвійний брус з утепленням
Головна ідея застосування подвійного бруса полягала в досягненні енергоефективності житла. Над проектуванням енергозберігаючих будинків працюють провідні інженери та архітектори в різних країнах світу, запропонована фінами технологія подвійного бруса дає можливість звести до мінімуму тепловтрати будинку, а також об`єднує переваги будівництва дерев`яного будинку з економічністю споруди.
Клеєний брус
Клеєний брус принципово відрізняється від інших типів колод багатошаровістю. Така структура робить цей дерев’яний матеріал надміцним і витривалим.
Каркасні конструкції
Каркасні конструкції виготовляються на власних виробничих потужностях компанії «Домінант», з використанням сучасних деревообробних станків. Імпортне, високоточне обладнання дозволяє нам високоякісно виконувати свою роботу. Каркаси складаються зі струганих, ретельно висушених балок 150х50 мм (сосна першого сорту). Ці балки застосовуються для зовнішніх каркасів.













