Мармарис
- Кількість поверхів
- 2
- Площа
- 258.05
- Ширина
- 13.9
- Довжина
- 15
- Будинки і житлові будови
- Маєтки
Садиби - Кількість кімнат
- П’ятикімнатні будинки
- Особливості будинків
- Будинки з балконом
Будинки з мансардою
Будинки зі сходами
Будинки з ґанком - Кількість поверхів споруди
- Двоповерхові будинки
- Будинки з брусу
- Будинки з оциліндрованого брусу
(Що входить в ціну)
- комплект стін;
- комплект крокв;
- комплект балок перекриття;
- утеплювач міжвінцевий;
- антисептик (антисептування всього матеріалу);
- дубові нагеля;
- кріпильні материали (саморізи, усадкові болти, анкера, кріпильні пластини);
- гідроізоляція;
- вогнебіозахист (обробка деревини засобом І групи вогнезахисної ефективності)
Проект особняка з виразною архітектурою Мармарис dominant-wood.com.ua/uk/proekty/240-marmaris ідеальний для постійного проживання великої родини. Незвичайний зовнішній вигляд будівлі в стилі хай-тек, незважаючи, що будинок виконується з традиційних оциліндрованих колод, миттєво концентрує на собі інтерес всіх перехожих.
Крім елегантного дизайну, будиночок володіє комфортним і просторим внутрішнім плануванням, планом враховано присутність практичного навісу, що виконує роль альтанки. Завдяки лаконічності і місткості, котедж передбачає собою найкращу версію заміського будинку. Неповторний, високотехнологічний будинок Мармарис з оциліндрованого бруса відображає оригінальність і сучасні погляди своїх власників.
Хотілося б зауважити, що стиль хай-тек, реалізований в дереві дуже добре поєднується із зовнішнім середовищем. Наявність двох парадних входів, дає можливість власникам організувати задній дворик, прихований від спостерігачів. Так само, не можна не відзначити, наявність великої кількості вікон, різної форми, що додатково висвітлює все приміщення і додає будинку характеру і індивідуальності. Потрапляючи всередину, ви будете захоплені грамотністю і продуманістю планування. Перший поверх включає в себе хол, кухню-їдальню, санвузол, кімнату та сходи, яка проводжає вас на другий поверх. А другий ярус містить три спальні, просторий коридор і балкон. Так, як балкон виходить на задній двір, ви зможете безтурботно проводити свій вільний час наодинці з собою і своїми думками.
Для максимальної досконалості вашої ділянки радимо підібрати баню dominant-wood.com.ua/ru/42-bani, з якою відпочинок у вашому маєтку стане яскравішим і різноманітнішим.
- Кількість поверхів
- 2
- Площа
- 258.05
- Ширина
- 13.9
- Довжина
- 15
- Будинки і житлові будови
- Маєтки
Садиби - Кількість кімнат
- П’ятикімнатні будинки
- Особливості будинків
- Будинки з балконом
Будинки з мансардою
Будинки зі сходами
Будинки з ґанком - Кількість поверхів споруди
- Двоповерхові будинки
- Будинки з брусу
- Будинки з оциліндрованого брусу
Базова комплектація:
(Що входить в ціну)
- комплект стін;
- комплект крокв;
- комплект балок перекриття;
- утеплювач міжвінцевий;
- антисептик (антисептування всього матеріалу);
- дубові нагеля;
- кріпильні материали (саморізи, усадкові болти, анкера, кріпильні пластини);
- гідроізоляція;
- вогнебіозахист (обробка деревини засобом І групи вогнезахисної ефективності)
558900 грн.
Дах (комплектність):
- Рейка 100*25мм (cосна)
- Контрейка 50*25мм (сосна)
- Металочерепиця МОНТЕРРЕЙ (Польща) 0,45мм
- Коник прямий
- Планка примикання
- Лобова (декоративна) планка
- Вітровая планка
- Яндола
- Капельник (Карнизна планка)
- Ущільнювач універсальный
- Саморізи ОС 4.8х35
- Фарба-спрей
- Гідробар'єр
- Монтаж
175400 грн.
Вікна (комплектність):
- Вікно VEKA 58, колір білий 10
- Імпости вертикальні: 1 x 102103
- Скління: СПО, 24мм, (Rсп=0.36)*
- Тип фурнітури: Activpilot поворотно-відкидна, колір білий
- Підбір спеціальний: Activ микровентиляція; Activ 2-функц. механ.
- Моск.сітка: МС 3
- Підвіконня: ВМ 110мм, колір білий
- Підвіконня: ПВ ПВХ 150, заглушки: 600мм, колір білий
- Монтаж
0 грн.
Двері (комплектність):
- Полотно
- Коробка
- Лиштва
- Карниз
- Фарбування
- Скло
- Фурнітура
- Врізка фурнітуры
- Монтаж
190960 грн.
Фарбування (комплектність):
- Шліфування торців
- Тришарове покриття ефективним деревозахисним засобом на базі низькомолекулярної алкідної смоли методом розпилення.
Параметри забудови
- Кількість поверхів: 2
- Площа: 258.05
Розмір забудови
- Ширина: 13.9
- Довжина: 15
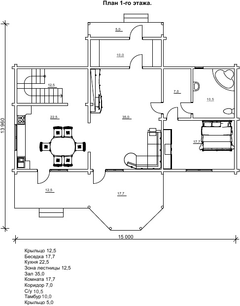
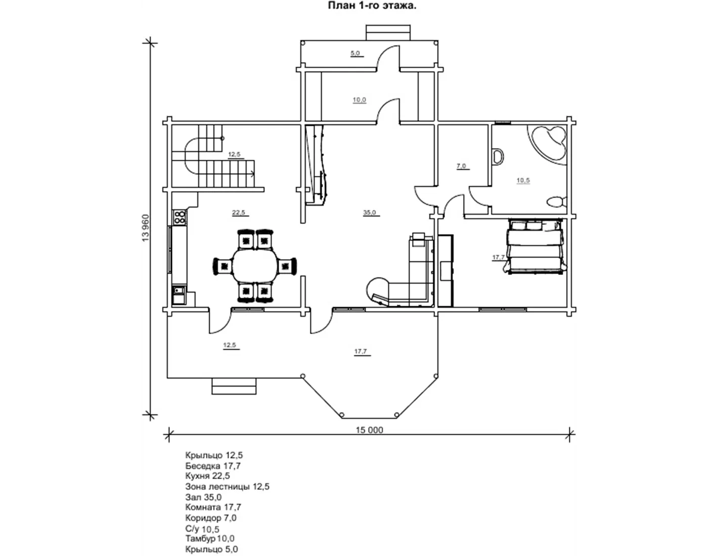
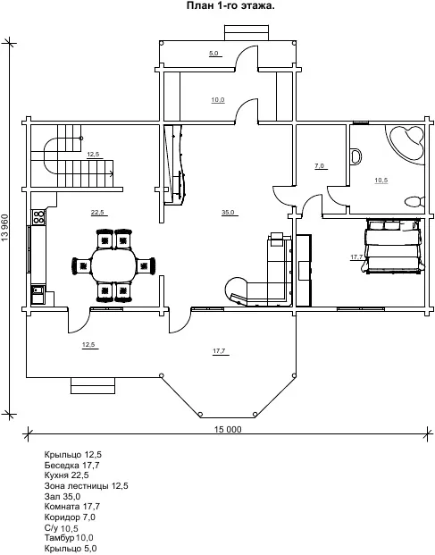
Перший поверх
| альтанка (м²) | 17,7 |
| зал (м²) | 35 |
| кімната (м²) | 17,7 |
| коридор (м²) | 7 |
| ганок (м²) | 12,5 |
| ганок (м²) | 5 |
| кухня (м²) | 22,5 |
| сходова зона (м²) | 12,5 |
| с/в (м²) | 10,5 |
| тамбур (м²) | 10 |
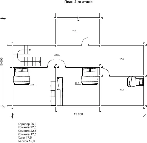
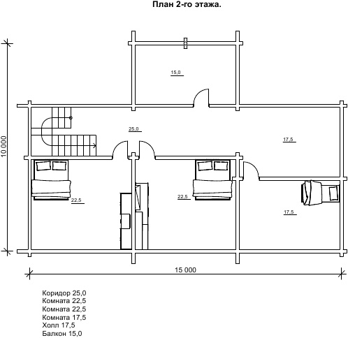
Другий поверх
| балкон (м²) | 15 |
| кімната (м²) | 22,5 |
| кімната (м²) | 22,5 |
| кімната (м²) | 17,5 |
| коридор (м²) | 25 |
| хол (м²) | 17,5 |
Оциліндрований брус
Оциліндрований брус є найбільш оптимальним і поширеним матеріалом для будівництва дерев`яних будинків і бань, бесідок, альтанок, різноманітних садових меблів, дерев`яних конструкцій будь-яких видів. Дерев`яні будинки з оциліндрованого брусу відрізняються красою, всередині такого будинку завжди відчувається особлива затишна атмосфера.
Профільований брус
Найсучаснішим і високотехнологічним будівельним матеріалом в дерев`яному будівництві на сьогоднішній день є профільований брус. Для виробництва профільованого брусу, звичайному дерев`яному брусу на спеціальному деревообробному обладнанні надається певний профіль.
Подвійний брус з утепленням
Головна ідея застосування подвійного бруса полягала в досягненні енергоефективності житла. Над проектуванням енергозберігаючих будинків працюють провідні інженери та архітектори в різних країнах світу, запропонована фінами технологія подвійного бруса дає можливість звести до мінімуму тепловтрати будинку, а також об`єднує переваги будівництва дерев`яного будинку з економічністю споруди.
Клеєний брус
Клеєний брус принципово відрізняється від інших типів колод багатошаровістю. Така структура робить цей дерев’яний матеріал надміцним і витривалим.
Каркасні конструкції
Каркасні конструкції виготовляються на власних виробничих потужностях компанії «Домінант», з використанням сучасних деревообробних станків. Імпортне, високоточне обладнання дозволяє нам високоякісно виконувати свою роботу. Каркаси складаються зі струганих, ретельно висушених балок 150х50 мм (сосна першого сорту). Ці балки застосовуються для зовнішніх каркасів.












