Жарта
- Кількість поверхів
- 2
- Площа
- 220.08
- Ширина
- 10.6
- Довжина
- 10.8
- Будинки і житлові будови
- Дачі
Котеджі
Маєтки
Садиби - Кількість кімнат
- Трикімнатні будинки
- Особливості будинків
- Будинки з банею
Будинки з мансардою
Будинки з терасою
Будинки зі сходами - Кількість поверхів споруди
- Двоповерхові будинки
(Що входить в ціну)
- комплект стін;
- комплект крокв;
- комплект балок перекриття;
- утеплювач міжвінцевий;
- антисептик (антисептування всього матеріалу);
- дубові нагеля;
- кріпильні материали (саморізи, усадкові болти, анкера, кріпильні пластини);
- гідроізоляція;
- вогнебіозахист (обробка деревини засобом І групи вогнезахисної ефективності)
Розкішний особняк Жарта просто приголомшливо виглядає завдяки витонченої округлості оциліндрованих колод, цікавому багатогранному даху і затишному будиночку - балкончику. Великі світлі вікна роблять всю будівлю світлішою і яскравішою. Це ефектний дерев’яний зруб, який здатний тільки підкреслити гарний смак і високий статус свого господаря. Гарний дерев’яний будинок з цікавим балкончиком і літньою терасою Жарта, гостинно запрошує скоріше увійти і дізнатися, що ж в ньому знаходиться.
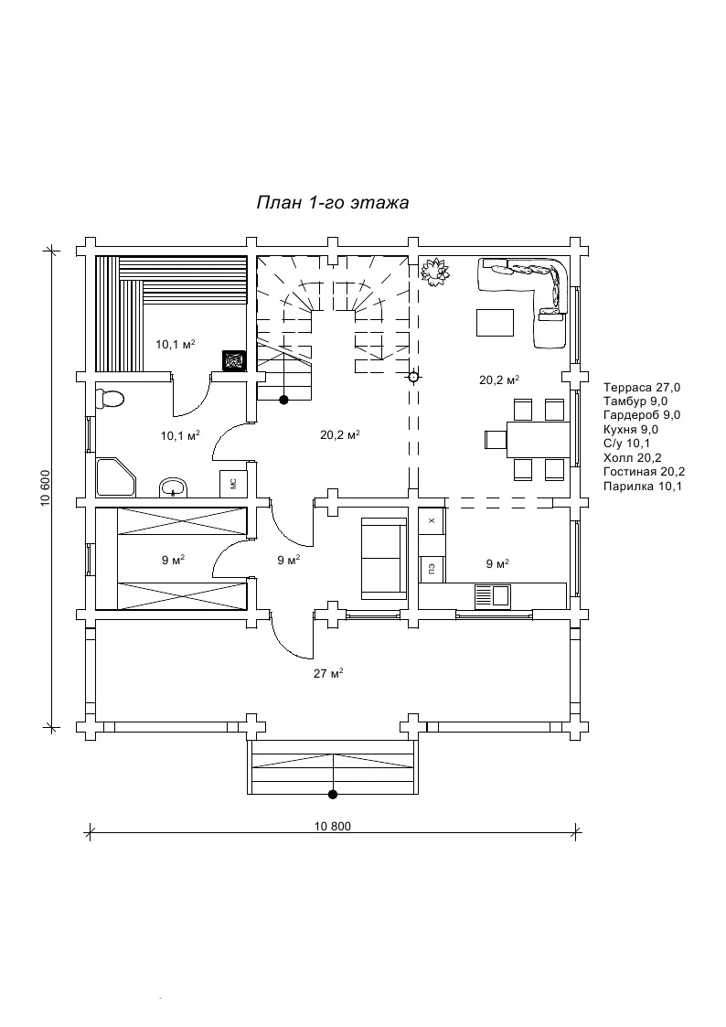
Проект Жарта спланований на два поверхи. На нижньому поверсі плануванням пропонується наявність тамбура, санвузла і просторих приміщень вітальні, кухні, гардероба. На літній терасі сплановано досить місця для того, щоб поставити столик, стільці і обідати, насолоджуючись свіжим повітрям і навколишньою красою. Очевидною перевагою цього будинку виступає велика парилка на компанію з 6-7 чоловік. Побудувавши заміський будинок Жарта від компанії «Домінант» dominant-wood.com.ua/uk/, вам вже не потрібно буде замислюватися про спорудження додаткового приміщення для лазні. Другий поверх будинку зустрічає просторим холом, звідки можна увійти в спальні, сану зел, гардероб і балкон. Така функціональність і комфорт внутрішнього планування робить будинок придатним як для постійного проживання, так і сезонного відпочинку і проведення часу.
Проект Жарта dominant-wood.com.ua/ru/proekty/232-zharta можна розглядати як постійне житло для невеликої сім’ї або розкішну заміську дачу з лазнею. Також цей багатофункціональний проект чудово можна використовувати як комерційну лазню. Про такий заміський будинок можна тільки мріяти! А ми з радістю побудуємо цю мрію для вас.
- Кількість поверхів
- 2
- Площа
- 220.08
- Ширина
- 10.6
- Довжина
- 10.8
- Будинки і житлові будови
- Дачі
Котеджі
Маєтки
Садиби - Кількість кімнат
- Трикімнатні будинки
- Особливості будинків
- Будинки з банею
Будинки з мансардою
Будинки з терасою
Будинки зі сходами - Кількість поверхів споруди
- Двоповерхові будинки
Базова комплектація:
(Що входить в ціну)
- комплект стін;
- комплект крокв;
- комплект балок перекриття;
- утеплювач міжвінцевий;
- антисептик (антисептування всього матеріалу);
- дубові нагеля;
- кріпильні материали (саморізи, усадкові болти, анкера, кріпильні пластини);
- гідроізоляція;
- вогнебіозахист (обробка деревини засобом І групи вогнезахисної ефективності)
884520 грн.
Дах (комплектність):
- Рейка 100*25мм (cосна)
- Контрейка 50*25мм (сосна)
- Металочерепиця МОНТЕРРЕЙ (Польща) 0,45мм
- Коник прямий
- Планка примикання
- Лобова (декоративна) планка
- Вітровая планка
- Яндола
- Капельник (Карнизна планка)
- Ущільнювач універсальный
- Саморізи ОС 4.8х35
- Фарба-спрей
- Гідробар'єр
- Монтаж
596360 грн.
Вікна (комплектність):
- Вікно VEKA 58, колір білий 10
- Імпости вертикальні: 1 x 102103
- Скління: СПО, 24мм, (Rсп=0.36)*
- Тип фурнітури: Activpilot поворотно-відкидна, колір білий
- Підбір спеціальний: Activ микровентиляція; Activ 2-функц. механ.
- Моск.сітка: МС 3
- Підвіконня: ВМ 110мм, колір білий
- Підвіконня: ПВ ПВХ 150, заглушки: 600мм, колір білий
- Монтаж
0 грн.
Двері (комплектність):
- Полотно
- Коробка
- Лиштва
- Карниз
- Фарбування
- Скло
- Фурнітура
- Врізка фурнітуры
- Монтаж
197904 грн.
Фарбування (комплектність):
- Шліфування торців
- Тришарове покриття ефективним деревозахисним засобом на базі низькомолекулярної алкідної смоли методом розпилення.
Параметри забудови
- Кількість поверхів: 2
- Площа: 220.08
Розмір забудови
- Ширина: 10.6
- Довжина: 10.8
Перший поверх
| гардеробна (м²) | 9 |
| вітальня (м²) | 20,2 |
| кухня (м²) | 9 |
| парилка (м²) | 10,1 |
| с/в (м²) | 10,1 |
| тамбур (м²) | 9 |
| тераса (м²) | 27 |
| хол (м²) | 20,2 |
Другий поверх
| гардеробна (м²) | 9 |
| с/в (м²) | 9 |
| спальня (м²) | 20,2 |
| спальня (м²) | 20,2 |
| хол (м²) | 29,2 |
Оциліндрований брус
Оциліндрований брус є найбільш оптимальним і поширеним матеріалом для будівництва дерев`яних будинків і бань, бесідок, альтанок, різноманітних садових меблів, дерев`яних конструкцій будь-яких видів. Дерев`яні будинки з оциліндрованого брусу відрізняються красою, всередині такого будинку завжди відчувається особлива затишна атмосфера.
Профільований брус
Найсучаснішим і високотехнологічним будівельним матеріалом в дерев`яному будівництві на сьогоднішній день є профільований брус. Для виробництва профільованого брусу, звичайному дерев`яному брусу на спеціальному деревообробному обладнанні надається певний профіль.
Подвійний брус з утепленням
Головна ідея застосування подвійного бруса полягала в досягненні енергоефективності житла. Над проектуванням енергозберігаючих будинків працюють провідні інженери та архітектори в різних країнах світу, запропонована фінами технологія подвійного бруса дає можливість звести до мінімуму тепловтрати будинку, а також об`єднує переваги будівництва дерев`яного будинку з економічністю споруди.
Клеєний брус
Клеєний брус принципово відрізняється від інших типів колод багатошаровістю. Така структура робить цей дерев’яний матеріал надміцним і витривалим.
Каркасні конструкції
Каркасні конструкції виготовляються на власних виробничих потужностях компанії «Домінант», з використанням сучасних деревообробних станків. Імпортне, високоточне обладнання дозволяє нам високоякісно виконувати свою роботу. Каркаси складаються зі струганих, ретельно висушених балок 150х50 мм (сосна першого сорту). Ці балки застосовуються для зовнішніх каркасів.












