Бєлонна
- Кількість поверхів
- 1
- Площа
- 78
- Ширина
- 6
- Довжина
- 13
- Будинки і житлові будови
- Дачі
Котеджі - Кількість кімнат
- Двокімнатні будинки
- Особливості будинків
- Будинки з банею
Будинки з терасою - Кількість поверхів споруди
- Одноповерхові будинки
- Будинки з брусу
- Будинки з оциліндрованого брусу
- Садові та господарські споруди
- Бані
Бані з оциліндрованого брусу
(Що входить в ціну)
- комплект стін;
- комплект крокв;
- комплект балок перекриття;
- утеплювач міжвінцевий;
- антисептик (антисептування всього матеріалу);
- дубові нагеля;
- кріпильні материали (саморізи, усадкові болти, анкера, кріпильні пластини);
- гідроізоляція;
- вогнебіозахист (обробка деревини засобом І групи вогнезахисної ефективності)
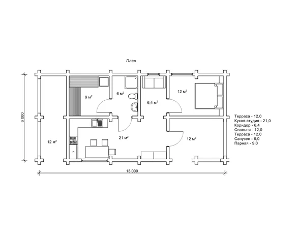
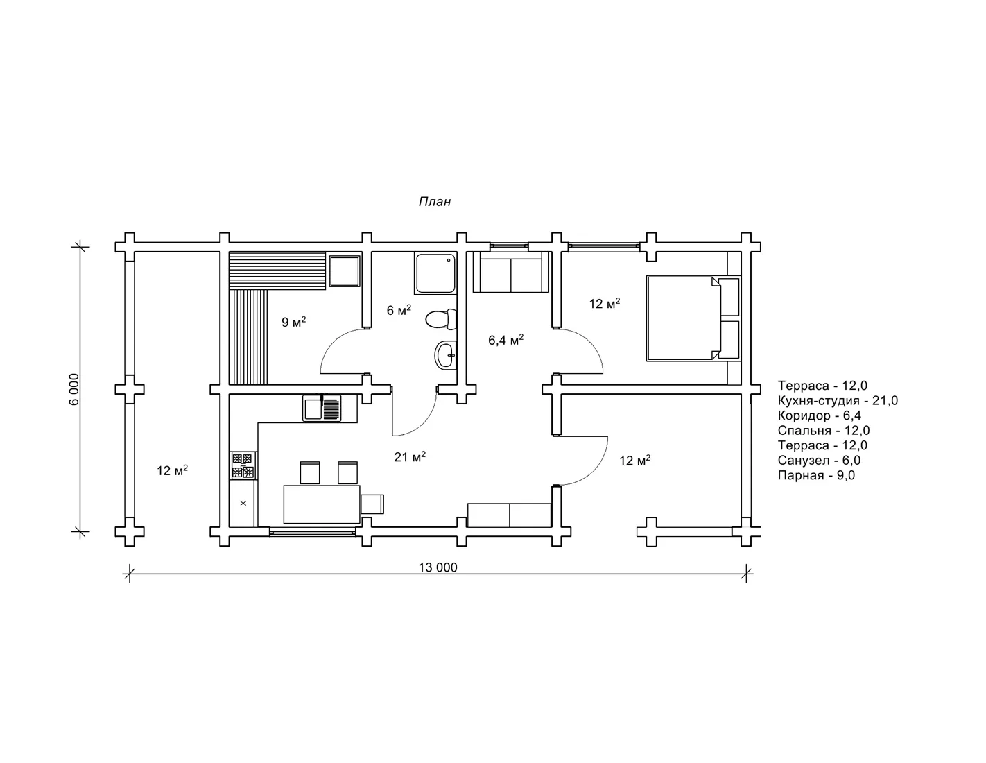
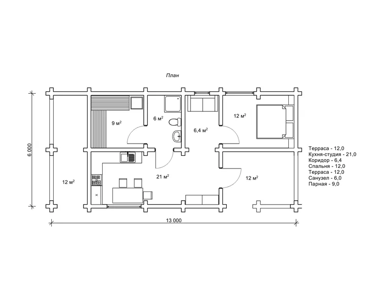
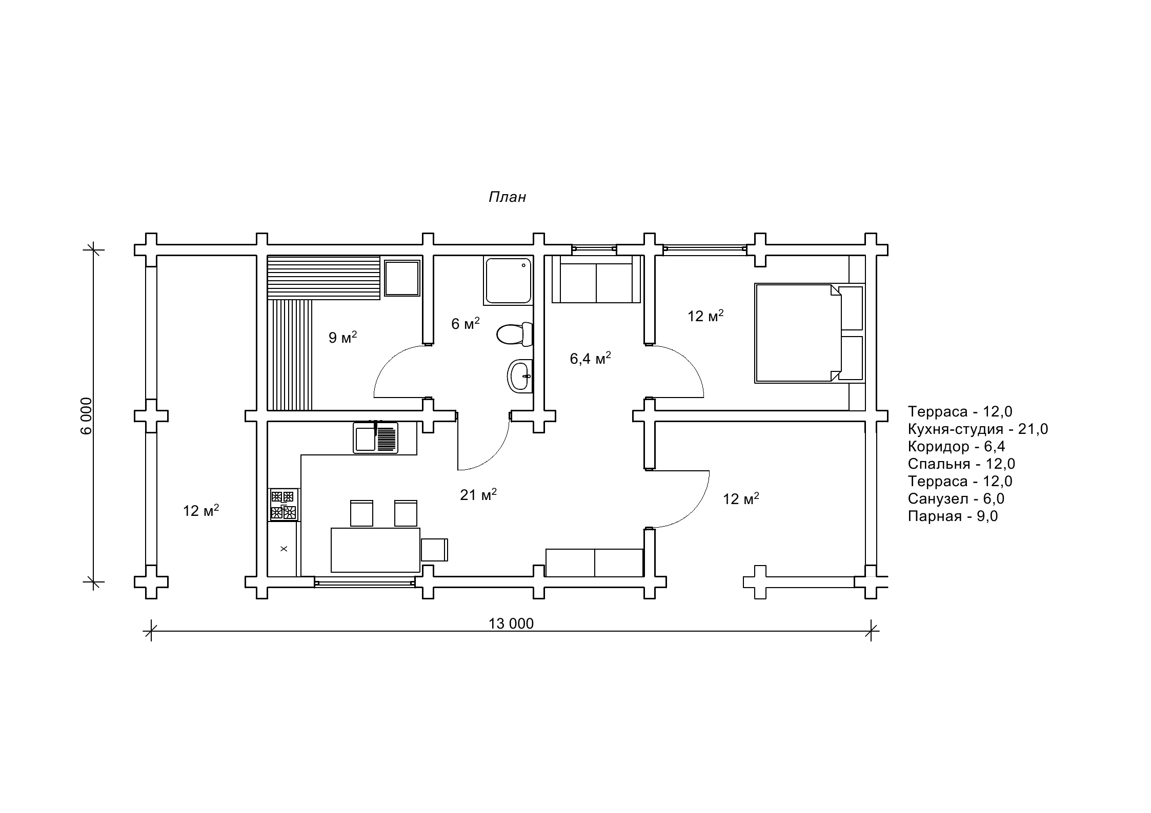
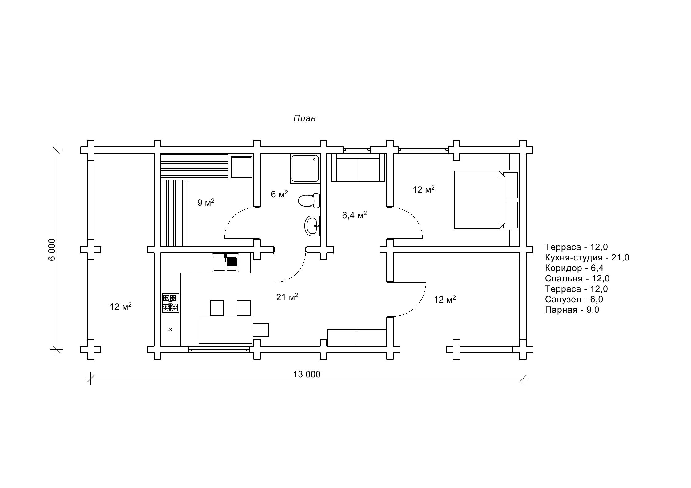
Проект лазні з дерева «Бєлонна», 78 м2
Баня з дерева - це невід’ємний атрибут на прибудинковій території, на дачі або в оздоровчому комплексі. Без зрубової баньки не обійдеться жодна база відпочинку, куди приїжджають за прекрасним настроєм і самопочуттям. Проект лазні «Бєлонна» враховує всі бажання любителів попаритися, ще й надає додатковий комфорт господарям у вигляді кімнати відпочинку. Тут також є дві тераси - біля головного входу і протилежного фасаду (тут зручно складати дрова або дачний інвентар). Прихильникам парних процедур, які бажають мати у себе на ділянці лазню з дерева, проект «Бєлонна» дасть все необхідне і не зажадає дорогих капіталовкладень. Переконатися в цьому можна, переглянувши ціни будівництва лазні на даній сторінці.
Планування лазні 6х13 м з кімнатою відпочинку
Зруб лазні спланований в параметрах 6х13 м і займає площу 78 м2. Всередині є велика кухня-студія, де багато місця для виділення робочої поверхні, обіднього столу і м’якого куточка. Окрема спальня площею 12 м2 дозволяє розглядати проект «Бєлонна» не тільки в якості лазні, а й як повноцінний дачний будинок. Що ще необхідно підкреслити, так це великі розміри парилки - 9 м2. Тут одночасно може перебувати більше десяти чоловік, і тому є можливість вигідно використовувати баню в комерційних цілях. Добре продумане планування лазні «Бєлонна» робить проект універсальним по виконуваним функціям і гідним вибором як для приватного, так і комерційного використання.
Будівництво лазні з дерева по проекту «Бєлонна»
Для великого готелю зі зрубу, розташованого в мальовничій природній зоні, така лазня як «Бєлонна», розширить обсяг послуг, що надаються, клієнтську базу і підвищить дохід готельного бізнесу. Будівництво лазні з дерева по проекту «Бєлонна» можна замовити звернувшись в наш офіс (дивіться розділ сайту «Контакти»). Ми побудуємо якісний, оциліндрований зруб лазні в короткі терміни і надамо клієнту можливість вибирати покрівлю, вікна, двері та інші додаткові деталі для лазні і парильні на свій смак і бюджет. Таким чином, ви скомплектуєте собі зрубову баньку за оптимальною вартістю, а всі ваші побажання щодо зовнішнього і внутрішнього оздоблення зрубу будуть враховані.
- Кількість поверхів
- 1
- Площа
- 78
- Ширина
- 6
- Довжина
- 13
- Будинки і житлові будови
- Дачі
Котеджі - Кількість кімнат
- Двокімнатні будинки
- Особливості будинків
- Будинки з банею
Будинки з терасою - Кількість поверхів споруди
- Одноповерхові будинки
- Будинки з брусу
- Будинки з оциліндрованого брусу
- Садові та господарські споруди
- Бані
Бані з оциліндрованого брусу
Базова комплектація:
(Що входить в ціну)
- комплект стін;
- комплект крокв;
- комплект балок перекриття;
- утеплювач міжвінцевий;
- антисептик (антисептування всього матеріалу);
- дубові нагеля;
- кріпильні материали (саморізи, усадкові болти, анкера, кріпильні пластини);
- гідроізоляція;
- вогнебіозахист (обробка деревини засобом І групи вогнезахисної ефективності)
272160 грн.
Дах (комплектність):
- Рейка 100*25мм (cосна)
- Контрейка 50*25мм (сосна)
- Металочерепиця МОНТЕРРЕЙ (Польща) 0,45мм
- Коник прямий
- Планка примикання
- Лобова (декоративна) планка
- Вітровая планка
- Яндола
- Капельник (Карнизна планка)
- Ущільнювач універсальный
- Саморізи ОС 4.8х35
- Фарба-спрей
- Гідробар'єр
- Монтаж
140320 грн.
Вікна (комплектність):
- Вікно VEKA 58, колір білий 10
- Імпости вертикальні: 1 x 102103
- Скління: СПО, 24мм, (Rсп=0.36)*
- Тип фурнітури: Activpilot поворотно-відкидна, колір білий
- Підбір спеціальний: Activ микровентиляція; Activ 2-функц. механ.
- Моск.сітка: МС 3
- Підвіконня: ВМ 110мм, колір білий
- Підвіконня: ПВ ПВХ 150, заглушки: 600мм, колір білий
- Монтаж
41800 грн.
Двері (комплектність):
- Полотно
- Коробка
- Лиштва
- Карниз
- Фарбування
- Скло
- Фурнітура
- Врізка фурнітуры
- Монтаж
132804 грн.
Фарбування (комплектність):
- Шліфування торців
- Тришарове покриття ефективним деревозахисним засобом на базі низькомолекулярної алкідної смоли методом розпилення.
Оциліндрований брус
Оциліндрований брус є найбільш оптимальним і поширеним матеріалом для будівництва дерев`яних будинків і бань, бесідок, альтанок, різноманітних садових меблів, дерев`яних конструкцій будь-яких видів. Дерев`яні будинки з оциліндрованого брусу відрізняються красою, всередині такого будинку завжди відчувається особлива затишна атмосфера.
Профільований брус
Найсучаснішим і високотехнологічним будівельним матеріалом в дерев`яному будівництві на сьогоднішній день є профільований брус. Для виробництва профільованого брусу, звичайному дерев`яному брусу на спеціальному деревообробному обладнанні надається певний профіль.
Подвійний брус з утепленням
Головна ідея застосування подвійного бруса полягала в досягненні енергоефективності житла. Над проектуванням енергозберігаючих будинків працюють провідні інженери та архітектори в різних країнах світу, запропонована фінами технологія подвійного бруса дає можливість звести до мінімуму тепловтрати будинку, а також об`єднує переваги будівництва дерев`яного будинку з економічністю споруди.
Клеєний брус
Клеєний брус принципово відрізняється від інших типів колод багатошаровістю. Така структура робить цей дерев’яний матеріал надміцним і витривалим.
Каркасні конструкції
Каркасні конструкції виготовляються на власних виробничих потужностях компанії «Домінант», з використанням сучасних деревообробних станків. Імпортне, високоточне обладнання дозволяє нам високоякісно виконувати свою роботу. Каркаси складаються зі струганих, ретельно висушених балок 150х50 мм (сосна першого сорту). Ці балки застосовуються для зовнішніх каркасів.










