Каравелла
- Кількість поверхів
- 3
- Площа
- 432.3
- Ширина
- 15.7
- Довжина
- 9.7
- Будинки і житлові будови
- Маєтки
- Кількість кімнат
- П’ятикімнатні будинки
- Особливості будинків
- Будинки з балконом
Будинки з гаражем
Будинки з котельнею
Будинки з мансардою
Будинки зі сходами - Кількість поверхів споруди
- Триповерхові будинки
- Будинки з брусу
- Будинки з оциліндрованого брусу
(Що входить в ціну)
- комплект стін;
- комплект крокв;
- комплект балок перекриття;
- утеплювач міжвінцевий;
- антисептик (антисептування всього матеріалу);
- дубові нагеля;
- кріпильні материали (саморізи, усадкові болти, анкера, кріпильні пластини);
- гідроізоляція;
- вогнебіозахист (обробка деревини засобом І групи вогнезахисної ефективності)
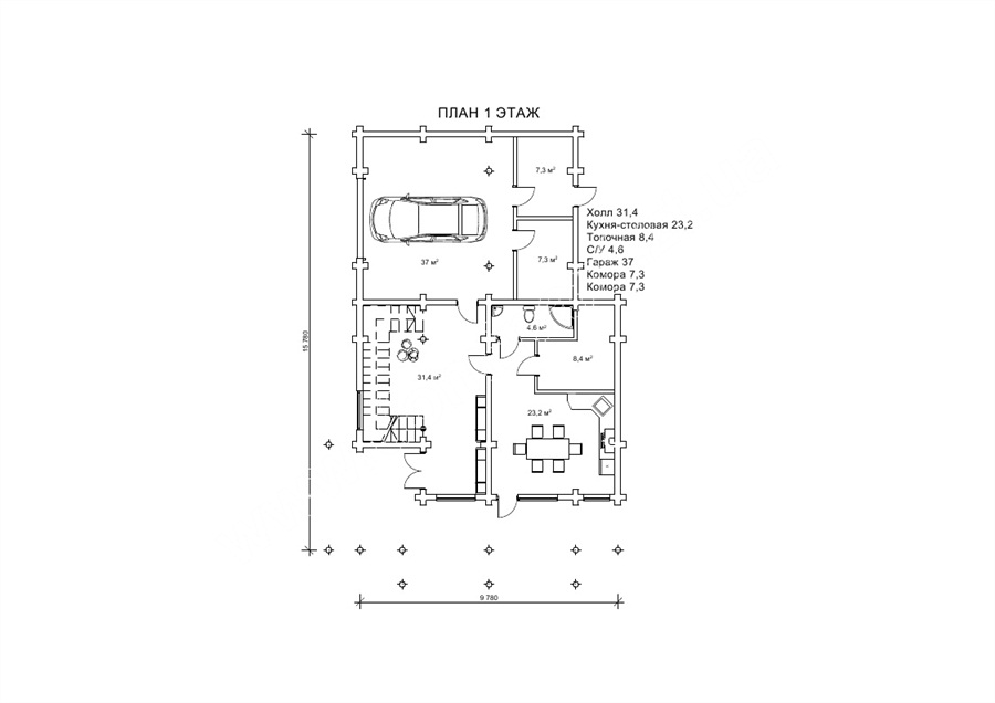
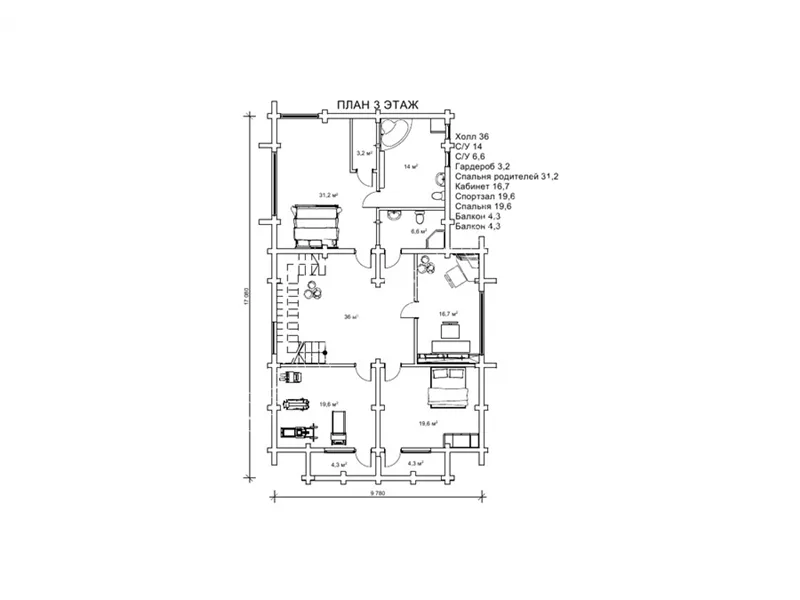
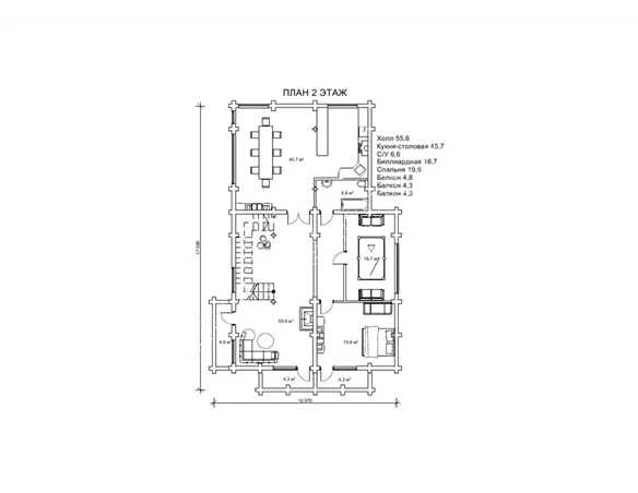
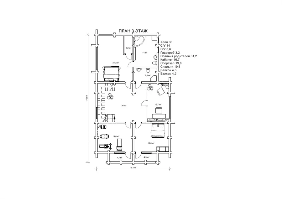
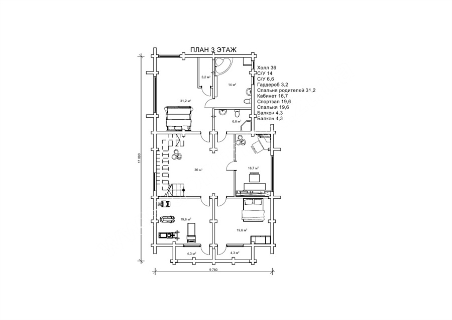
Триповерховий елітний особняк Каравела призначений для проживання великої родини. Проект будинку характеризується вражаючим, виразним фасадом, добре продуманої, функціональним плануванням і великий корисною площею. Внутрішній простір першого поверху складається з холу, кухні-їдальні, топкової, санвузла, гаража та двох господарських приміщень. Весь перший поверх являє собою робочу частину будинку. На другому поверсі є хол, кухня-їдальня, більярдна і спальня. На третьому поверсі розташовані дві спальні, одна з яких вміщує гардероб і окремий санвузол. Також на третьому поверсі планування передбачає спортзал і кабінет, ще один санвузол і два балкони.
Проект Каравела dominant-wood.com.ua/uk/proekty/224-karavella був розроблений з урахуванням всіх індивідуальних побажань замовників, він повною мірою відображає внутрішній світ і стиль життя своїх господарів. Шалено гарний зовнішній вигляд, дійсно робить особняк мрією для проживання. Такого роду споруда буде гармонійно виглядати на березі моря або в горах. І це буде тим випадком, коли і природа, і будова будуть вабити до себе погляди всіх. Манера виконання і архітектура цілком підходить і перевершує європейські стандарти. Величезна площа приміщення дає можливість власникам розташувати у себе в будинку все приміщення для щасливого проживання і проведення часу, а то і більше.
Розробляти дизайн для облаштування такого особняка справжнє задоволення. Безліч кімнат і функціональних приміщень, можуть поєднати в собі кілька стилів. Компанія «Домінант» dominant-wood.com.ua проявила в цьому проекті не тільки свій професіоналізм, а й ту пристрасть, з якою ми виконуємо всі наші проекти.
- Кількість поверхів
- 3
- Площа
- 432.3
- Ширина
- 15.7
- Довжина
- 9.7
- Будинки і житлові будови
- Маєтки
- Кількість кімнат
- П’ятикімнатні будинки
- Особливості будинків
- Будинки з балконом
Будинки з гаражем
Будинки з котельнею
Будинки з мансардою
Будинки зі сходами - Кількість поверхів споруди
- Триповерхові будинки
- Будинки з брусу
- Будинки з оциліндрованого брусу
Базова комплектація:
(Що входить в ціну)
- комплект стін;
- комплект крокв;
- комплект балок перекриття;
- утеплювач міжвінцевий;
- антисептик (антисептування всього матеріалу);
- дубові нагеля;
- кріпильні материали (саморізи, усадкові болти, анкера, кріпильні пластини);
- гідроізоляція;
- вогнебіозахист (обробка деревини засобом І групи вогнезахисної ефективності)
554040 грн.
Дах (комплектність):
- Рейка 100*25мм (cосна)
- Контрейка 50*25мм (сосна)
- Металочерепиця МОНТЕРРЕЙ (Польща) 0,45мм
- Коник прямий
- Планка примикання
- Лобова (декоративна) планка
- Вітровая планка
- Яндола
- Капельник (Карнизна планка)
- Ущільнювач універсальный
- Саморізи ОС 4.8х35
- Фарба-спрей
- Гідробар'єр
- Монтаж
912080 грн.
Вікна (комплектність):
- Вікно VEKA 58, колір білий 10
- Імпости вертикальні: 1 x 102103
- Скління: СПО, 24мм, (Rсп=0.36)*
- Тип фурнітури: Activpilot поворотно-відкидна, колір білий
- Підбір спеціальний: Activ микровентиляція; Activ 2-функц. механ.
- Моск.сітка: МС 3
- Підвіконня: ВМ 110мм, колір білий
- Підвіконня: ПВ ПВХ 150, заглушки: 600мм, колір білий
- Монтаж
1045000 грн.
Двері (комплектність):
- Полотно
- Коробка
- Лиштва
- Карниз
- Фарбування
- Скло
- Фурнітура
- Врізка фурнітуры
- Монтаж
1429596 грн.
Фарбування (комплектність):
- Шліфування торців
- Тришарове покриття ефективним деревозахисним засобом на базі низькомолекулярної алкідної смоли методом розпилення.
Параметри забудови
- Кількість поверхів: 3
- Площа: 432.3
Розмір забудови
- Ширина: 15.7
- Довжина: 9.7
Перший поверх
| гараж (м²) | 37 |
| комора (м²) | 7,3 |
| кімната (м²) | 7,3 |
| кухня (м²) | 23,2 |
| с/в (м²) | 4,6 |
| топкова (м²) | 8,4 |
| хол (м²) | 31,4 |
Другий поверх
| балкон (м²) | 4,8 |
| балкон (м²) | 4,3 |
| балкон (м²) | 4,3 |
| зал (м²) | 18 |
| кухня (м²) | 45,7 |
| с/в (м²) | 6,6 |
| спальня (м²) | 19,6 |
| хол (м²) | 55,6 |
Третій поверх
| балкон (м²) | 4,3 |
| балкон (м²) | 4,3 |
| гардеробна (м²) | 3,2 |
| офісне приміщення (м²) | 16,7 |
| с/в (м²) | 6,6 |
| с/в (м²) | 14 |
| спальня (м²) | 19,6 |
| спальня (м²) | 31,2 |
| тренажерна зала (м²) | 19,6 |
| хол (м²) | 36 |
Оциліндрований брус
Оциліндрований брус є найбільш оптимальним і поширеним матеріалом для будівництва дерев`яних будинків і бань, бесідок, альтанок, різноманітних садових меблів, дерев`яних конструкцій будь-яких видів. Дерев`яні будинки з оциліндрованого брусу відрізняються красою, всередині такого будинку завжди відчувається особлива затишна атмосфера.
Профільований брус
Найсучаснішим і високотехнологічним будівельним матеріалом в дерев`яному будівництві на сьогоднішній день є профільований брус. Для виробництва профільованого брусу, звичайному дерев`яному брусу на спеціальному деревообробному обладнанні надається певний профіль.
Подвійний брус з утепленням
Головна ідея застосування подвійного бруса полягала в досягненні енергоефективності житла. Над проектуванням енергозберігаючих будинків працюють провідні інженери та архітектори в різних країнах світу, запропонована фінами технологія подвійного бруса дає можливість звести до мінімуму тепловтрати будинку, а також об`єднує переваги будівництва дерев`яного будинку з економічністю споруди.
Клеєний брус
Клеєний брус принципово відрізняється від інших типів колод багатошаровістю. Така структура робить цей дерев’яний матеріал надміцним і витривалим.
Каркасні конструкції
Каркасні конструкції виготовляються на власних виробничих потужностях компанії «Домінант», з використанням сучасних деревообробних станків. Імпортне, високоточне обладнання дозволяє нам високоякісно виконувати свою роботу. Каркаси складаються зі струганих, ретельно висушених балок 150х50 мм (сосна першого сорту). Ці балки застосовуються для зовнішніх каркасів.














