Аріадна
- Кількість поверхів
- 2
- Площа
- 210.3
- Ширина
- 11.6
- Довжина
- 11.9
- Будинки і житлові будови
- Маєтки
Садиби - Кількість кімнат
- Шестикімнатні будинки
- Особливості будинків
- Будинки з балконом
Будинки з мансардою
Будинки зі сходами
Будинки з ґанком - Кількість поверхів споруди
- Двоповерхові будинки
- Будинки з брусу
- Будинки з оциліндрованого брусу
(Що входить в ціну)
- комплект стін;
- комплект крокв;
- комплект балок перекриття;
- утеплювач міжвінцевий;
- антисептик (антисептування всього матеріалу);
- дубові нагеля;
- кріпильні материали (саморізи, усадкові болти, анкера, кріпильні пластини);
- гідроізоляція;
- вогнебіозахист (обробка деревини засобом І групи вогнезахисної ефективності)
Проект Аріадна з мансардним поверхом - це проект двоповерхового будинку зовні дуже красивого, а всередині комфортного. Привабливий фасад з затишним балконом і ґанком, великі вікна, всі деталі проекту продумані до дрібниць, щоб врахувати побажання всіх членів сім’ї. У будинку є 5 спалень, зал, кухня, хол з сходами, два санвузли, балкон. Аріадна dominant-wood.com.ua/uk/proekty/219-ariadna - це один з найбільш затребуваних варіантів, на сьогоднішній день, який містить наш асортимент дерев’яних будинків. Даний проект популярний в якості повноцінного заміського житла, в такому будинку може комфортно розташуватися велика сім’я, не заважаючи один одному.
Винятковий і грандіозний у своєму роді особняк, дарує своїм власникам необмежені можливості для використання кожного куточка. Проект не схожий на стандартні будинки, які можна зустріти на території нашої країни. Перш за все, виділяючись своєю архітектурою і манерою виконання, і закінчуючи досить вдалим плануванням і розташуванням кімнат. Наші архітектори пропонують вам розташувати більшість спалень на другому поверсі, що дуже розумно для комфортного відпочинку. При цьому приміщення на першому поверсі, замість спальні, можна замінити кабінетом, бібліотекою або ігровою кімнатою для ваших дітей. При наявності такої площі і множинної кількості кімнат, ви необмежені у виборі функціональності будь-якої з них. Все залежить від уподобань і звичок вашої родини. У будь-якому випадку, компанія «Домінант» dominant-wood.com.ua/ буде рада підібрати максимально вигідний, що підходить саме для вас і вашої родини, варіант.
- Кількість поверхів
- 2
- Площа
- 210.3
- Ширина
- 11.6
- Довжина
- 11.9
- Будинки і житлові будови
- Маєтки
Садиби - Кількість кімнат
- Шестикімнатні будинки
- Особливості будинків
- Будинки з балконом
Будинки з мансардою
Будинки зі сходами
Будинки з ґанком - Кількість поверхів споруди
- Двоповерхові будинки
- Будинки з брусу
- Будинки з оциліндрованого брусу
Базова комплектація:
(Що входить в ціну)
- комплект стін;
- комплект крокв;
- комплект балок перекриття;
- утеплювач міжвінцевий;
- антисептик (антисептування всього матеріалу);
- дубові нагеля;
- кріпильні материали (саморізи, усадкові болти, анкера, кріпильні пластини);
- гідроізоляція;
- вогнебіозахист (обробка деревини засобом І групи вогнезахисної ефективності)
439830 грн.
Дах (комплектність):
- Рейка 100*25мм (cосна)
- Контрейка 50*25мм (сосна)
- Металочерепиця МОНТЕРРЕЙ (Польща) 0,45мм
- Коник прямий
- Планка примикання
- Лобова (декоративна) планка
- Вітровая планка
- Яндола
- Капельник (Карнизна планка)
- Ущільнювач універсальный
- Саморізи ОС 4.8х35
- Фарба-спрей
- Гідробар'єр
- Монтаж
420960 грн.
Вікна (комплектність):
- Вікно VEKA 58, колір білий 10
- Імпости вертикальні: 1 x 102103
- Скління: СПО, 24мм, (Rсп=0.36)*
- Тип фурнітури: Activpilot поворотно-відкидна, колір білий
- Підбір спеціальний: Activ микровентиляція; Activ 2-функц. механ.
- Моск.сітка: МС 3
- Підвіконня: ВМ 110мм, колір білий
- Підвіконня: ПВ ПВХ 150, заглушки: 600мм, колір білий
- Монтаж
0 грн.
Двері (комплектність):
- Полотно
- Коробка
- Лиштва
- Карниз
- Фарбування
- Скло
- Фурнітура
- Врізка фурнітуры
- Монтаж
195300 грн.
Фарбування (комплектність):
- Шліфування торців
- Тришарове покриття ефективним деревозахисним засобом на базі низькомолекулярної алкідної смоли методом розпилення.
Параметри забудови
- Кількість поверхів: 2
- Площа: 210.3
Розмір забудови
- Ширина: 11.6
- Довжина: 11.9
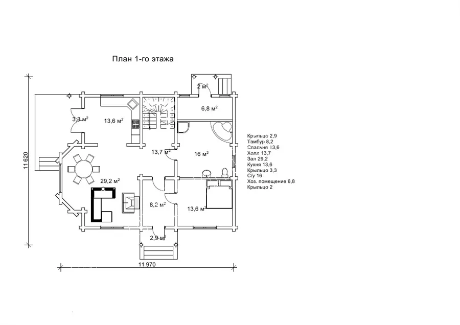
Перший поверх
| зал (м²) | 29,2 |
| комора (м²) | 6,8 |
| ганок (м²) | 2,9 |
| ганок (м²) | 2 |
| кухня (м²) | 13,6 |
| с/в (м²) | 16 |
| спальня (м²) | 13,6 |
| тамбур (м²) | 8,2 |
| хол (м²) | 13,7 |
| ганок (м²) | 3,3 |
Другий поверх
| балкон (м²) | 6,4 |
| с/в (м²) | 7,1 |
| спальня (м²) | 13,6 |
| спальня (м²) | 13,6 |
| спальня (м²) | 13,6 |
| спальня (м²) | 22,6 |
| хол (м²) | 23,9 |
Оциліндрований брус
Оциліндрований брус є найбільш оптимальним і поширеним матеріалом для будівництва дерев`яних будинків і бань, бесідок, альтанок, різноманітних садових меблів, дерев`яних конструкцій будь-яких видів. Дерев`яні будинки з оциліндрованого брусу відрізняються красою, всередині такого будинку завжди відчувається особлива затишна атмосфера.
Профільований брус
Найсучаснішим і високотехнологічним будівельним матеріалом в дерев`яному будівництві на сьогоднішній день є профільований брус. Для виробництва профільованого брусу, звичайному дерев`яному брусу на спеціальному деревообробному обладнанні надається певний профіль.
Подвійний брус з утепленням
Головна ідея застосування подвійного бруса полягала в досягненні енергоефективності житла. Над проектуванням енергозберігаючих будинків працюють провідні інженери та архітектори в різних країнах світу, запропонована фінами технологія подвійного бруса дає можливість звести до мінімуму тепловтрати будинку, а також об`єднує переваги будівництва дерев`яного будинку з економічністю споруди.
Клеєний брус
Клеєний брус принципово відрізняється від інших типів колод багатошаровістю. Така структура робить цей дерев’яний матеріал надміцним і витривалим.
Каркасні конструкції
Каркасні конструкції виготовляються на власних виробничих потужностях компанії «Домінант», з використанням сучасних деревообробних станків. Імпортне, високоточне обладнання дозволяє нам високоякісно виконувати свою роботу. Каркаси складаються зі струганих, ретельно висушених балок 150х50 мм (сосна першого сорту). Ці балки застосовуються для зовнішніх каркасів.












