Мілорд
- Кількість поверхів
- 2
- Площа
- 229.5
- Ширина
- 13.5
- Довжина
- 8.5
- Будинки і житлові будови
- Маєтки
Садиби - Кількість кімнат
- Трикімнатні будинки
- Особливості будинків
- Будинки з балконом
Будинки з мансардою
Будинки з терасою
Будинки зі сходами - Кількість поверхів споруди
- Двоповерхові будинки
- Будинки з брусу
- Будинки з клеєного брусу
Будинки з профільованого брусу
(Що входить в ціну)
- комплект стін;
- комплект крокв;
- комплект балок перекриття;
- утеплювач міжвінцевий;
- антисептик (антисептування всього матеріалу);
- дубові нагеля;
- кріпильні материали (саморізи, усадкові болти, анкера, кріпильні пластини);
- гідроізоляція;
- вогнебіозахист (обробка деревини засобом І групи вогнезахисної ефективності)
Статний, добротний особняк Мілорд - це втілення мрії про свій заміський будинок. Дивлячись на нього, відразу уявляєш зручні лавки на просторій літній терасі, або м’який куточок зі столиком для чаювань на свіжому повітрі. Сухий профільований брус, з якого побудований будинок, додає особливої фактури і акуратності всьому екстер’єру. Проект розроблений з матеріалу власного виробництва компанії «Домінант». Детальніше про технологію виготовлення сухого, цільного профільованого бруса читайте на сторінці з проектом Мілорд в закладці «Технології»: dominant-wood.com.ua/uk/proekty/216-milord.
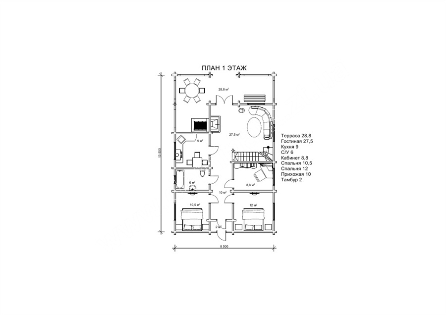
Внутрішнє планування особняка розроблене для сучасної, респектабельної, сімейної людини, яка дбає про здоров’я і любить цікаве дозвілля. Всередині є вітальня, кухня, кабінет, дві спальні, передпокій, тамбур і санвузол. За проектом спланований другий вихід на задній дворик. При вході в будинок, на терасі передбачено місце для облаштування мангала. Це дуже цікава особливість проекту Мілорд, завдяки якій на присадибній ділянці не знадобиться встановлювати окрему альтанку або місце для барбекю. На терасі біля будинку достатньо місця для цих цілей. Піднімаючись на другий поверх, потрапляємо в передпокій, потім в більярдну і виходимо на просторий балкон, де достатньо місця, щоб помістити комфортні меблі і більше часу проводити на відкритому повітрі. На другому поверсі також є тренажерний зал і санвузол. Таке внутрішнє наповнення будинку не просто функціональне, воно повністю відображає індивідуальний спосіб життя господарів, а також їхні індивідуальні уявлення про комфорт та якість заміського особняка.
Професіонали компанії «Домінант» прекрасно знають, як в будинку створити умови для щасливого сімейного життя, а також для захоплюючого дозвілля господарів і гостей. Замовляйте будівництво благородного, дерев’яного особняка Мілорд, будемо раді будувати для вас: dominant-wood.com.ua/uk/content/24-kontakty.
- Кількість поверхів
- 2
- Площа
- 229.5
- Ширина
- 13.5
- Довжина
- 8.5
- Будинки і житлові будови
- Маєтки
Садиби - Кількість кімнат
- Трикімнатні будинки
- Особливості будинків
- Будинки з балконом
Будинки з мансардою
Будинки з терасою
Будинки зі сходами - Кількість поверхів споруди
- Двоповерхові будинки
- Будинки з брусу
- Будинки з клеєного брусу
Будинки з профільованого брусу
Базова комплектація:
(Що входить в ціну)
- комплект стін;
- комплект крокв;
- комплект балок перекриття;
- утеплювач міжвінцевий;
- антисептик (антисептування всього матеріалу);
- дубові нагеля;
- кріпильні материали (саморізи, усадкові болти, анкера, кріпильні пластини);
- гідроізоляція;
- вогнебіозахист (обробка деревини засобом І групи вогнезахисної ефективності)
398520 грн.
Дах (комплектність):
- Рейка 100*25мм (cосна)
- Контрейка 50*25мм (сосна)
- Металочерепиця МОНТЕРРЕЙ (Польща) 0,45мм
- Коник прямий
- Планка примикання
- Лобова (декоративна) планка
- Вітровая планка
- Яндола
- Капельник (Карнизна планка)
- Ущільнювач універсальный
- Саморізи ОС 4.8х35
- Фарба-спрей
- Гідробар'єр
- Монтаж
298180 грн.
Вікна (комплектність):
- Вікно VEKA 58, колір білий 10
- Імпости вертикальні: 1 x 102103
- Скління: СПО, 24мм, (Rсп=0.36)*
- Тип фурнітури: Activpilot поворотно-відкидна, колір білий
- Підбір спеціальний: Activ микровентиляція; Activ 2-функц. механ.
- Моск.сітка: МС 3
- Підвіконня: ВМ 110мм, колір білий
- Підвіконня: ПВ ПВХ 150, заглушки: 600мм, колір білий
- Монтаж
0 грн.
Двері (комплектність):
- Полотно
- Коробка
- Лиштва
- Карниз
- Фарбування
- Скло
- Фурнітура
- Врізка фурнітуры
- Монтаж
170128 грн.
Фарбування (комплектність):
- Шліфування торців
- Тришарове покриття ефективним деревозахисним засобом на базі низькомолекулярної алкідної смоли методом розпилення.
Параметри забудови
- Кількість поверхів: 2
- Площа: 229.5
Розмір забудови
- Ширина: 13.5
- Довжина: 8.5
Перший поверх
| вітальня (м²) | 27,5 |
| кухня (м²) | 9 |
| офісне приміщення (м²) | 8,8 |
| с/в (м²) | 6 |
| спальня (м²) | 12 |
| тамбур (м²) | 2 |
| тераса (м²) | 28,8 |
| спальня (м²) | 10,5 |
| передпокій (м²) | 10 |
Другий поверх
| балкон (м²) | 21,3 |
| більярдна (м²) | 34 |
| передпокій (м²) | 23,8 |
| с/в (м²) | 6 |
| тренажерна зала (м²) | 29,8 |
Оциліндрований брус
Оциліндрований брус є найбільш оптимальним і поширеним матеріалом для будівництва дерев`яних будинків і бань, бесідок, альтанок, різноманітних садових меблів, дерев`яних конструкцій будь-яких видів. Дерев`яні будинки з оциліндрованого брусу відрізняються красою, всередині такого будинку завжди відчувається особлива затишна атмосфера.
Профільований брус
Найсучаснішим і високотехнологічним будівельним матеріалом в дерев`яному будівництві на сьогоднішній день є профільований брус. Для виробництва профільованого брусу, звичайному дерев`яному брусу на спеціальному деревообробному обладнанні надається певний профіль.
Подвійний брус з утепленням
Головна ідея застосування подвійного бруса полягала в досягненні енергоефективності житла. Над проектуванням енергозберігаючих будинків працюють провідні інженери та архітектори в різних країнах світу, запропонована фінами технологія подвійного бруса дає можливість звести до мінімуму тепловтрати будинку, а також об`єднує переваги будівництва дерев`яного будинку з економічністю споруди.
Клеєний брус
Клеєний брус принципово відрізняється від інших типів колод багатошаровістю. Така структура робить цей дерев’яний матеріал надміцним і витривалим.
Каркасні конструкції
Каркасні конструкції виготовляються на власних виробничих потужностях компанії «Домінант», з використанням сучасних деревообробних станків. Імпортне, високоточне обладнання дозволяє нам високоякісно виконувати свою роботу. Каркаси складаються зі струганих, ретельно висушених балок 150х50 мм (сосна першого сорту). Ці балки застосовуються для зовнішніх каркасів.












