Аполлон2
- Кількість поверхів
- 2
- Площа
- 194.4
- Ширина
- 11.6
- Довжина
- 12
- Будинки і житлові будови
- Вілли
Котеджі
Маєтки
Садиби - Кількість кімнат
- Чотирикімнатні будинки
- Особливості будинків
- Будинки з другим світлом
Будинки з каміном
Будинки з мансардою
Будинки з терасою
Будинки зі сходами - Кількість поверхів споруди
- Двоповерхові будинки
- Будинки з брусу
- Будинки з клеєного брусу
Будинки з профільованого брусу
(Що входить в ціну)
- комплект стін;
- комплект крокв;
- комплект балок перекриття;
- утеплювач міжвінцевий;
- антисептик (антисептування всього матеріалу);
- дубові нагеля;
- кріпильні материали (саморізи, усадкові болти, анкера, кріпильні пластини);
- гідроізоляція;
- вогнебіозахист (обробка деревини засобом І групи вогнезахисної ефективності)
Будівництво маєтку 12х11,6 м із сухого, профільованого брусу
Яскрава краса високих, гострих дахів та величезних вікон проекту «Аполон» зумовила великий попит на будівництво саме цього проекту. Ефектний дизайн будинку з брусу, за красою порівнянний з грецьким богом краси, неодноразово надихав наших клієнтів на будівництво унікальних проектів, наприклад, розкішний зруб з дерева на замовлення. Цього разу ми презентуємо варіант проекту із сухого, профільованого бруса. Звісно, «Аполлон2» значно відрізняється від вихідного проекту, оскільки строгі, прямокутні форми шліфованого бруса передбачають наявність лише прямих кутів. Але, як і раніше, величний маєток з брусу створений для того, щоб довгі роки прикрашати життя та створювати комфорт великій та дружній родині.
Маєток «Аполлон2» площа 194,4 м²
У стильному зовні особняку «Аполлон2» такий самий екстравагантний інтер’єр. Ось, наприклад, де ви ще бачили трикутний антресольний поверх? Така оригінальна обстановка та своєрідний стиль будівлі даруватиме господарям радість від дозвілля в таких умовах і щодня надихатиме на нові звершення. На першому поверсі особняка є камінний зал, спальня, тераса, санвузол, а на другому поверсі три просторі спальні та великий простір антресольного поверху. Окрім іншого, у будинку передбачені підсобні приміщення, тераси та балкончики. А на візуалізації інтер’єру можна повністю поринути у чудову атмосферу маєтку та відчути себе господарем цієї мрії. Якщо ви розглядаєте престижний варіант житла, і вас цікавить будівництво комфортабельного будинку з бруса з великою кількістю житлових кімнат, обов’язково зверніть увагу на проект «Апполон2» – ексклюзивний будинок із цільного, просушеного бруса, який довго та надійно слугуватиме багатьом поколінням вашої родини.
- Кількість поверхів
- 2
- Площа
- 194.4
- Ширина
- 11.6
- Довжина
- 12
- Будинки і житлові будови
- Вілли
Котеджі
Маєтки
Садиби - Кількість кімнат
- Чотирикімнатні будинки
- Особливості будинків
- Будинки з другим світлом
Будинки з каміном
Будинки з мансардою
Будинки з терасою
Будинки зі сходами - Кількість поверхів споруди
- Двоповерхові будинки
- Будинки з брусу
- Будинки з клеєного брусу
Будинки з профільованого брусу
Базова комплектація:
(Що входить в ціну)
- комплект стін;
- комплект крокв;
- комплект балок перекриття;
- утеплювач міжвінцевий;
- антисептик (антисептування всього матеріалу);
- дубові нагеля;
- кріпильні материали (саморізи, усадкові болти, анкера, кріпильні пластини);
- гідроізоляція;
- вогнебіозахист (обробка деревини засобом І групи вогнезахисної ефективності)
468990 грн.
Дах (комплектність):
- Рейка 100*25мм (cосна)
- Контрейка 50*25мм (сосна)
- Металочерепиця МОНТЕРРЕЙ (Польща) 0,45мм
- Коник прямий
- Планка примикання
- Лобова (декоративна) планка
- Вітровая планка
- Яндола
- Капельник (Карнизна планка)
- Ущільнювач універсальный
- Саморізи ОС 4.8х35
- Фарба-спрей
- Гідробар'єр
- Монтаж
701600 грн.
Вікна (комплектність):
- Вікно VEKA 58, колір білий 10
- Імпости вертикальні: 1 x 102103
- Скління: СПО, 24мм, (Rсп=0.36)*
- Тип фурнітури: Activpilot поворотно-відкидна, колір білий
- Підбір спеціальний: Activ микровентиляція; Activ 2-функц. механ.
- Моск.сітка: МС 3
- Підвіконня: ВМ 110мм, колір білий
- Підвіконня: ПВ ПВХ 150, заглушки: 600мм, колір білий
- Монтаж
229900 грн.
Двері (комплектність):
- Полотно
- Коробка
- Лиштва
- Карниз
- Фарбування
- Скло
- Фурнітура
- Врізка фурнітуры
- Монтаж
256060 грн.
Фарбування (комплектність):
- Шліфування торців
- Тришарове покриття ефективним деревозахисним засобом на базі низькомолекулярної алкідної смоли методом розпилення.
Параметри забудови
- Кількість поверхів: 2
- Площа: 194.4
Розмір забудови
- Ширина: 11.6
- Довжина: 12
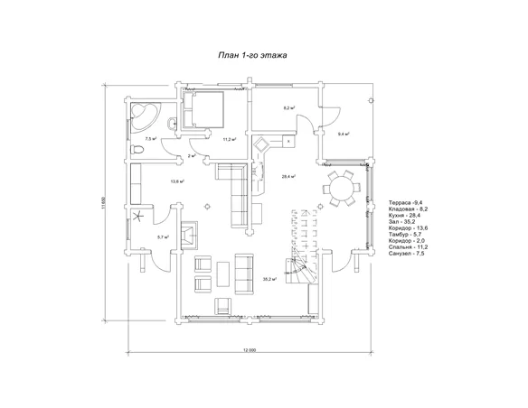
Перший поверх
| терраса (м²) | 9,4 |
| кладовая (м²) | 8,2 |
| кухня (м²) | 28,4 |
| зал (м²) | 35,2 |
| коридор (м²) | 13,6 |
| тамбур (м²) | 5,7 |
| коридор (м²) | 2,0 |
| спальня (м²) | 11,2 |
| санузел (м²) | 7,5 |
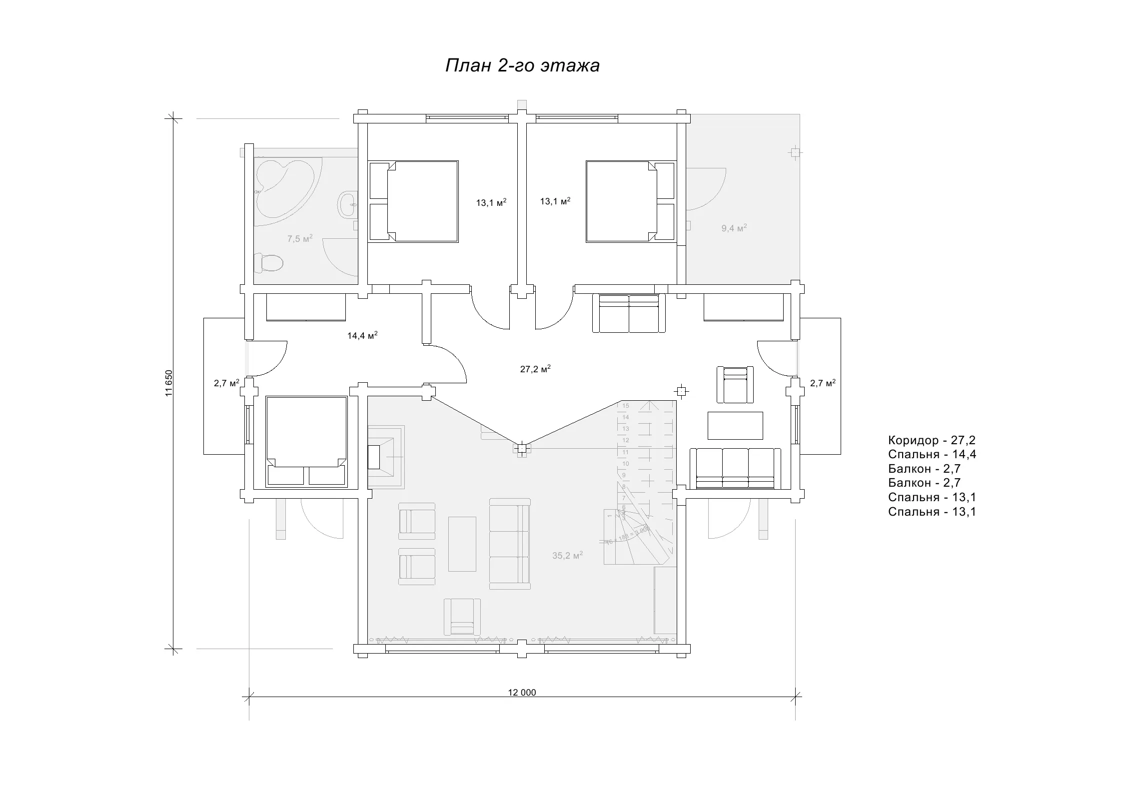
Другий поверх
| коридор (м²) | 27,2 |
| спальня (м²) | 14,4 |
| балкон (м²) | 2,7 |
| балкон (м²) | 2,7 |
| спальня (м²) | 13,1 |
| спальня (м²) | 13,1 |
Оциліндрований брус
Оциліндрований брус є найбільш оптимальним і поширеним матеріалом для будівництва дерев`яних будинків і бань, бесідок, альтанок, різноманітних садових меблів, дерев`яних конструкцій будь-яких видів. Дерев`яні будинки з оциліндрованого брусу відрізняються красою, всередині такого будинку завжди відчувається особлива затишна атмосфера.
Профільований брус
Найсучаснішим і високотехнологічним будівельним матеріалом в дерев`яному будівництві на сьогоднішній день є профільований брус. Для виробництва профільованого брусу, звичайному дерев`яному брусу на спеціальному деревообробному обладнанні надається певний профіль.
Подвійний брус з утепленням
Головна ідея застосування подвійного бруса полягала в досягненні енергоефективності житла. Над проектуванням енергозберігаючих будинків працюють провідні інженери та архітектори в різних країнах світу, запропонована фінами технологія подвійного бруса дає можливість звести до мінімуму тепловтрати будинку, а також об`єднує переваги будівництва дерев`яного будинку з економічністю споруди.
Клеєний брус
Клеєний брус принципово відрізняється від інших типів колод багатошаровістю. Така структура робить цей дерев’яний матеріал надміцним і витривалим.
Каркасні конструкції
Каркасні конструкції виготовляються на власних виробничих потужностях компанії «Домінант», з використанням сучасних деревообробних станків. Імпортне, високоточне обладнання дозволяє нам високоякісно виконувати свою роботу. Каркаси складаються зі струганих, ретельно висушених балок 150х50 мм (сосна першого сорту). Ці балки застосовуються для зовнішніх каркасів.



















