Гордож
- Кількість поверхів
- 2
- Площа
- 94.38
- Ширина
- 8.6
- Довжина
- 5.5
- Будинки і житлові будови
- Дачі
Котеджі - Кількість кімнат
- Трикімнатні будинки
- Особливості будинків
- Будинки з балконом
Будинки з мансардою
Будинки з терасою
Будинки зі сходами - Кількість поверхів споруди
- Двоповерхові будинки
- Будинки з брусу
- Будинки з оциліндрованого брусу
(Що входить в ціну)
- комплект стін;
- комплект крокв;
- комплект балок перекриття;
- утеплювач міжвінцевий;
- антисептик (антисептування всього матеріалу);
- дубові нагеля;
- кріпильні материали (саморізи, усадкові болти, анкера, кріпильні пластини);
- гідроізоляція;
- вогнебіозахист (обробка деревини засобом І групи вогнезахисної ефективності)
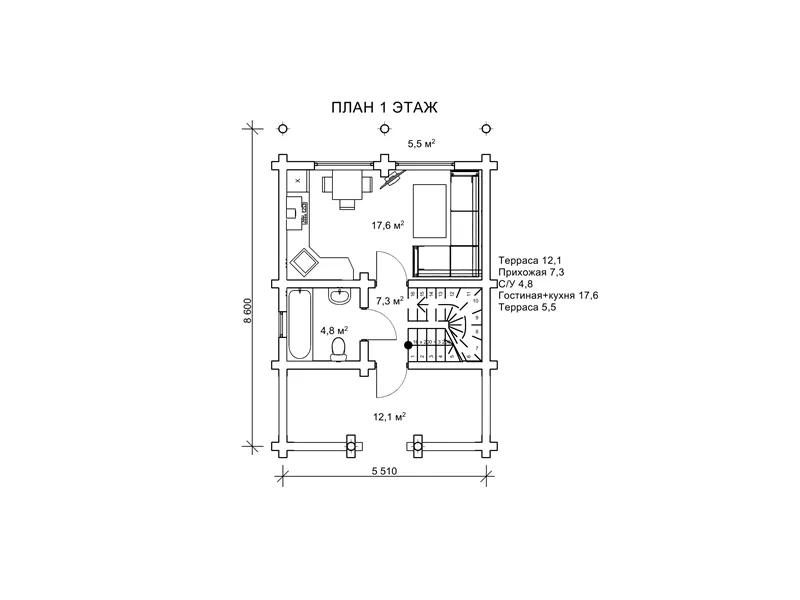
Мальовничий і схожий на казковий будиночок Гордож dominant-wood.com.ua/uk/proekty/208-gordozh є яскравим втіленням класичної краси дерев’яного зрубу з оциліндрованого бруса. Приємні для очей округлості колод складаються в ідеальну геометрію. Затишна, невелика тераса додає будиночку привітності і тепла. Розглядаючи внутрішнє наповнення котеджу Гордож, ви переконаєтеся, що розроблений в компактних розмірах 8,6 на 5,5 м проект володіє великою корисною площею і є дуже містким.
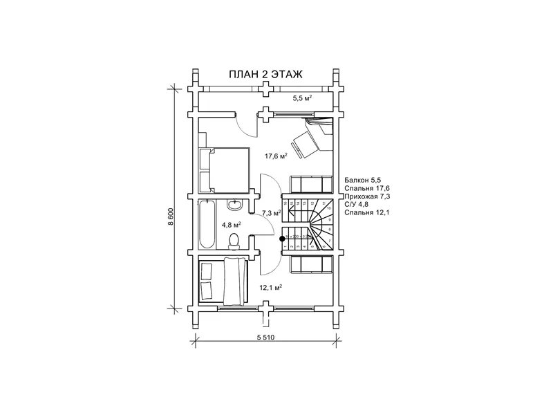
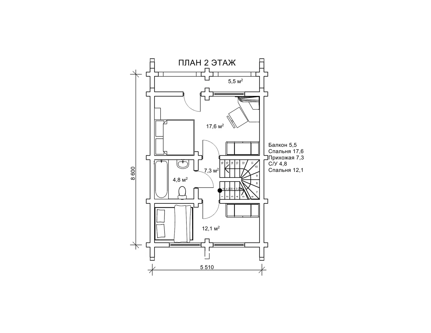
Планування кімнат цього дерев’яного будинку складається з приміщень передпокою, вітальні-кухні і санвузла на першому поверсі і двох спалень, санвузла, передпокою і балкона на другому поверсі. Як бачимо, професійні проектанти компанії «Домінант» dominant-wood.com.ua/uk/ використали кожен квадратний метр споруди за призначенням. Завдяки такій оптимальній комбінації компактних розмірів і великій корисній площі, замовник за доступною ціною отримує повноцінний дерев’яний будинок, який можна не тільки використовувати в якості дачного варіанту, але і для постійного проживання невеликої родини.
А якщо реалізувати проект Гордож як курортний будиночок для здачі в оренду десь в мальовничій місцевості, то вигода від такого бізнес-проекту очевидна. Більшість відпочиваючих обов’язково віддасть перевагу найбільш здоровому і повноцінному відпочинку в дерев’яних стінах справжнього зрубу. Класичний проект дерев’яного котеджу з бруса Гордож є оптимальним рішенням для заміської ділянки. Адже в ньому поєднуються зовнішній ефектний вигляд, велика корисна площа внутрішніх приміщень, доступна ціна споруди і простота експлуатації.
- Кількість поверхів
- 2
- Площа
- 94.38
- Ширина
- 8.6
- Довжина
- 5.5
- Будинки і житлові будови
- Дачі
Котеджі - Кількість кімнат
- Трикімнатні будинки
- Особливості будинків
- Будинки з балконом
Будинки з мансардою
Будинки з терасою
Будинки зі сходами - Кількість поверхів споруди
- Двоповерхові будинки
- Будинки з брусу
- Будинки з оциліндрованого брусу
Базова комплектація:
(Що входить в ціну)
- комплект стін;
- комплект крокв;
- комплект балок перекриття;
- утеплювач міжвінцевий;
- антисептик (антисептування всього матеріалу);
- дубові нагеля;
- кріпильні материали (саморізи, усадкові болти, анкера, кріпильні пластини);
- гідроізоляція;
- вогнебіозахист (обробка деревини засобом І групи вогнезахисної ефективності)
211410 грн.
Дах (комплектність):
- Рейка 100*25мм (cосна)
- Контрейка 50*25мм (сосна)
- Металочерепиця МОНТЕРРЕЙ (Польща) 0,45мм
- Коник прямий
- Планка примикання
- Лобова (декоративна) планка
- Вітровая планка
- Яндола
- Капельник (Карнизна планка)
- Ущільнювач універсальный
- Саморізи ОС 4.8х35
- Фарба-спрей
- Гідробар'єр
- Монтаж
175400 грн.
Вікна (комплектність):
- Вікно VEKA 58, колір білий 10
- Імпости вертикальні: 1 x 102103
- Скління: СПО, 24мм, (Rсп=0.36)*
- Тип фурнітури: Activpilot поворотно-відкидна, колір білий
- Підбір спеціальний: Activ микровентиляція; Activ 2-функц. механ.
- Моск.сітка: МС 3
- Підвіконня: ВМ 110мм, колір білий
- Підвіконня: ПВ ПВХ 150, заглушки: 600мм, колір білий
- Монтаж
0 грн.
Двері (комплектність):
- Полотно
- Коробка
- Лиштва
- Карниз
- Фарбування
- Скло
- Фурнітура
- Врізка фурнітуры
- Монтаж
126728 грн.
Фарбування (комплектність):
- Шліфування торців
- Тришарове покриття ефективним деревозахисним засобом на базі низькомолекулярної алкідної смоли методом розпилення.
Оциліндрований брус
Оциліндрований брус є найбільш оптимальним і поширеним матеріалом для будівництва дерев`яних будинків і бань, бесідок, альтанок, різноманітних садових меблів, дерев`яних конструкцій будь-яких видів. Дерев`яні будинки з оциліндрованого брусу відрізняються красою, всередині такого будинку завжди відчувається особлива затишна атмосфера.
Профільований брус
Найсучаснішим і високотехнологічним будівельним матеріалом в дерев`яному будівництві на сьогоднішній день є профільований брус. Для виробництва профільованого брусу, звичайному дерев`яному брусу на спеціальному деревообробному обладнанні надається певний профіль.
Подвійний брус з утепленням
Головна ідея застосування подвійного бруса полягала в досягненні енергоефективності житла. Над проектуванням енергозберігаючих будинків працюють провідні інженери та архітектори в різних країнах світу, запропонована фінами технологія подвійного бруса дає можливість звести до мінімуму тепловтрати будинку, а також об`єднує переваги будівництва дерев`яного будинку з економічністю споруди.
Клеєний брус
Клеєний брус принципово відрізняється від інших типів колод багатошаровістю. Така структура робить цей дерев’яний матеріал надміцним і витривалим.
Каркасні конструкції
Каркасні конструкції виготовляються на власних виробничих потужностях компанії «Домінант», з використанням сучасних деревообробних станків. Імпортне, високоточне обладнання дозволяє нам високоякісно виконувати свою роботу. Каркаси складаються зі струганих, ретельно висушених балок 150х50 мм (сосна першого сорту). Ці балки застосовуються для зовнішніх каркасів.












