Жевелс
- Кількість поверхів
- 2
- Площа
- 95
- Ширина
- 7.7
- Довжина
- 6.9
- Будинки і житлові будови
- Дачі
Котеджі - Кількість кімнат
- Чотирикімнатні будинки
- Особливості будинків
- Будинки з балконом
Будинки з мансардою
Будинки з терасою
Будинки зі сходами - Кількість поверхів споруди
- Двоповерхові будинки
- Будинки з брусу
- Будинки з оциліндрованого брусу
(Що входить в ціну)
- комплект стін;
- комплект крокв;
- комплект балок перекриття;
- утеплювач міжвінцевий;
- антисептик (антисептування всього матеріалу);
- дубові нагеля;
- кріпильні материали (саморізи, усадкові болти, анкера, кріпильні пластини);
- гідроізоляція;
- вогнебіозахист (обробка деревини засобом І групи вогнезахисної ефективності)
Будинок-зруб «Жевелс», 95 м2
Мальовничий будиночок з затишним балкончиком і мансардою «Жевелс» відразу привертає увагу. Приємні обриси дерев’яних стін з округлостями оциліндрованого зрубу особливо гарно виглядають на головному фасаді з терасою і роблять котедж ошатним і презентабельним. Дуже привабливо виглядає тераса біля входу, її незвичайна, закруглена форма дуже підходить дизайну екстер’єру будинку-зрубу «Жевелс». Зрубовий котедж виглядає компактно і мініатюрно. Але, не дивлячись, на невеликий розмір, будинок вміщує три спальні і все необхідне для виняткового комфорту всіх домочадців.
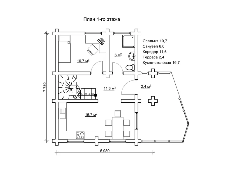
Проект будинку зі зрубу 7,7 на 6,9 м з трьома спальнями
Проект «Жевелс» виконаний в габаритах 7,7 на 6,9 м, загальна площа будинку-зрубу становить 95 м2. На першому поверсі розташована кухня-їдальня, коридор, спальня і санвузол. На другому поверсі є ще дві спальні, коридор, балкон і ще один санвузол. Простір усередині будинку грамотно і раціонально сплановано, завдяки чому ми отримали достатню кількість спалень, наявність санвузла на кожному поверсі, а також додаткові переваги планування в вигляді тераси і балкону. Заміський будинок «Жевелс» прикрасить собою навколишню місцевість і додасть чарівності природному ландшафту. Проект розроблений і продуманий до дрібниць, щоб господарі та їхні гості відчували себе завжди затишно в цьому прекрасному будинку з дерева.
Будівництво готового проекту будинку-зрубу «Жевелс»
Будинок зі зрубу «Жевелс» з трьома спальнями - це прекрасний вибір людини, яка піклується про своє здоров’я і цінує комфорт. Будівництво готового проекту будинку-зрубу «Жевелс» стане запорукою довгого і щасливого проживання за містом всієї родини. Компанія «Домінант» постійно поповнює каталог проектів новинками виробів. Всім, кому сподобався проект «Жевелс», також рекомендуємо доглянути на нашому сайті відмінний дерев’яний зруб лазні або альтанки для гарного і функціонального облаштування прибудинкової території.
- Кількість поверхів
- 2
- Площа
- 95
- Ширина
- 7.7
- Довжина
- 6.9
- Будинки і житлові будови
- Дачі
Котеджі - Кількість кімнат
- Чотирикімнатні будинки
- Особливості будинків
- Будинки з балконом
Будинки з мансардою
Будинки з терасою
Будинки зі сходами - Кількість поверхів споруди
- Двоповерхові будинки
- Будинки з брусу
- Будинки з оциліндрованого брусу
Базова комплектація:
(Що входить в ціну)
- комплект стін;
- комплект крокв;
- комплект балок перекриття;
- утеплювач міжвінцевий;
- антисептик (антисептування всього матеріалу);
- дубові нагеля;
- кріпильні материали (саморізи, усадкові болти, анкера, кріпильні пластини);
- гідроізоляція;
- вогнебіозахист (обробка деревини засобом І групи вогнезахисної ефективності)
272160 грн.
Дах (комплектність):
- Рейка 100*25мм (cосна)
- Контрейка 50*25мм (сосна)
- Металочерепиця МОНТЕРРЕЙ (Польща) 0,45мм
- Коник прямий
- Планка примикання
- Лобова (декоративна) планка
- Вітровая планка
- Яндола
- Капельник (Карнизна планка)
- Ущільнювач універсальный
- Саморізи ОС 4.8х35
- Фарба-спрей
- Гідробар'єр
- Монтаж
228020 грн.
Вікна (комплектність):
- Вікно VEKA 58, колір білий 10
- Імпости вертикальні: 1 x 102103
- Скління: СПО, 24мм, (Rсп=0.36)*
- Тип фурнітури: Activpilot поворотно-відкидна, колір білий
- Підбір спеціальний: Activ микровентиляція; Activ 2-функц. механ.
- Моск.сітка: МС 3
- Підвіконня: ВМ 110мм, колір білий
- Підвіконня: ПВ ПВХ 150, заглушки: 600мм, колір білий
- Монтаж
41800 грн.
Двері (комплектність):
- Полотно
- Коробка
- Лиштва
- Карниз
- Фарбування
- Скло
- Фурнітура
- Врізка фурнітуры
- Монтаж
0 грн.
Фарбування (комплектність):
- Шліфування торців
- Тришарове покриття ефективним деревозахисним засобом на базі низькомолекулярної алкідної смоли методом розпилення.
Оциліндрований брус
Оциліндрований брус є найбільш оптимальним і поширеним матеріалом для будівництва дерев`яних будинків і бань, бесідок, альтанок, різноманітних садових меблів, дерев`яних конструкцій будь-яких видів. Дерев`яні будинки з оциліндрованого брусу відрізняються красою, всередині такого будинку завжди відчувається особлива затишна атмосфера.
Профільований брус
Найсучаснішим і високотехнологічним будівельним матеріалом в дерев`яному будівництві на сьогоднішній день є профільований брус. Для виробництва профільованого брусу, звичайному дерев`яному брусу на спеціальному деревообробному обладнанні надається певний профіль.
Подвійний брус з утепленням
Головна ідея застосування подвійного бруса полягала в досягненні енергоефективності житла. Над проектуванням енергозберігаючих будинків працюють провідні інженери та архітектори в різних країнах світу, запропонована фінами технологія подвійного бруса дає можливість звести до мінімуму тепловтрати будинку, а також об`єднує переваги будівництва дерев`яного будинку з економічністю споруди.
Клеєний брус
Клеєний брус принципово відрізняється від інших типів колод багатошаровістю. Така структура робить цей дерев’яний матеріал надміцним і витривалим.
Каркасні конструкції
Каркасні конструкції виготовляються на власних виробничих потужностях компанії «Домінант», з використанням сучасних деревообробних станків. Імпортне, високоточне обладнання дозволяє нам високоякісно виконувати свою роботу. Каркаси складаються зі струганих, ретельно висушених балок 150х50 мм (сосна першого сорту). Ці балки застосовуються для зовнішніх каркасів.












