Зателефонуйте мені
Дівія №1
Дівія №2
Дівія №3
Дівія №4
Дівія №5
Дівія №6
Дівія №7
Дівія №1
Дівія №2
Дівія №3
Дівія №4
Дівія №5
Дівія №6
Дівія №7
Дівія №1
Дівія №1 Дівія №2 Дівія №3 Дівія №4 Дівія №5 Дівія №6 Дівія №7

Дівія

2 854 959,00 ₴
Маєток з мансардою і навісом для автомобіля - «Дівія»
Розмір брусу
  • Оциліндрований 160
  • Оциліндрований 180
  • Оциліндрований 200
  • Оциліндрований 220
  • Профільований 60
  • Профільований 150
  • Профільований 200
  • Подвійний 300
  • Клеєний 120
  • Клеєний 180
Кількість поверхів
2
Площа
252.9
Ширина
11.2
Довжина
14.5
Будинки і житлові будови
Вілли
Котеджі
Маєтки
Садиби
Особливості будинків
Будинки з котельнею
Будинки з мансардою
Будинки з терасою
Будинки зі сходами
Кількість поверхів споруди
Двоповерхові будинки
Будинки з брусу
Будинки з клеєного брусу
Будинки з профільованого брусу
 

(Що входить в ціну)

Що входить в базову комплектацію

  • комплект стін;
  • комплект крокв;
  • комплект балок перекриття;
  • утеплювач міжвінцевий;
  • антисептик (антисептування всього матеріалу);
  • дубові нагеля;
  • кріпильні материали (саморізи, усадкові болти, анкера, кріпильні пластини);
  • гідроізоляція;
  • вогнебіозахист (обробка деревини засобом І групи вогнезахисної ефективності)

Проект маєтку «Дівія» з мансардою і навісом для машини

Маєток з сухого бруса «Дівія» відрізняється неповторним дизайном і виконується з високотехнологічного матеріалу - соснового бруса, висушеного в прес-вакуумній сушці. Такий вибір проекту дерев’яного будинку відображає сучасні погляди своїх власників. Прямолінійні архітектурні лінії маєтку підкреслюються великою кількістю вікон різної форми, які роблять будинок світлим і створюють неповторний стиль будови. Огороджений дерев’яною планкою навіс для автомобіля не тільки ефектно доповнює дизайн споруди, але в той же час робить її практичною. Наявність двох парадних входів, дає можливість власникам будинку з дерева організувати задній дворик, прихований від спостерігачів. Причому, біля одного з входів передбачена простора тераса, що огинає фасад. Потрапляючи всередину проекту «Дівія», ви будете захоплені грамотністю і продуманістю планування!

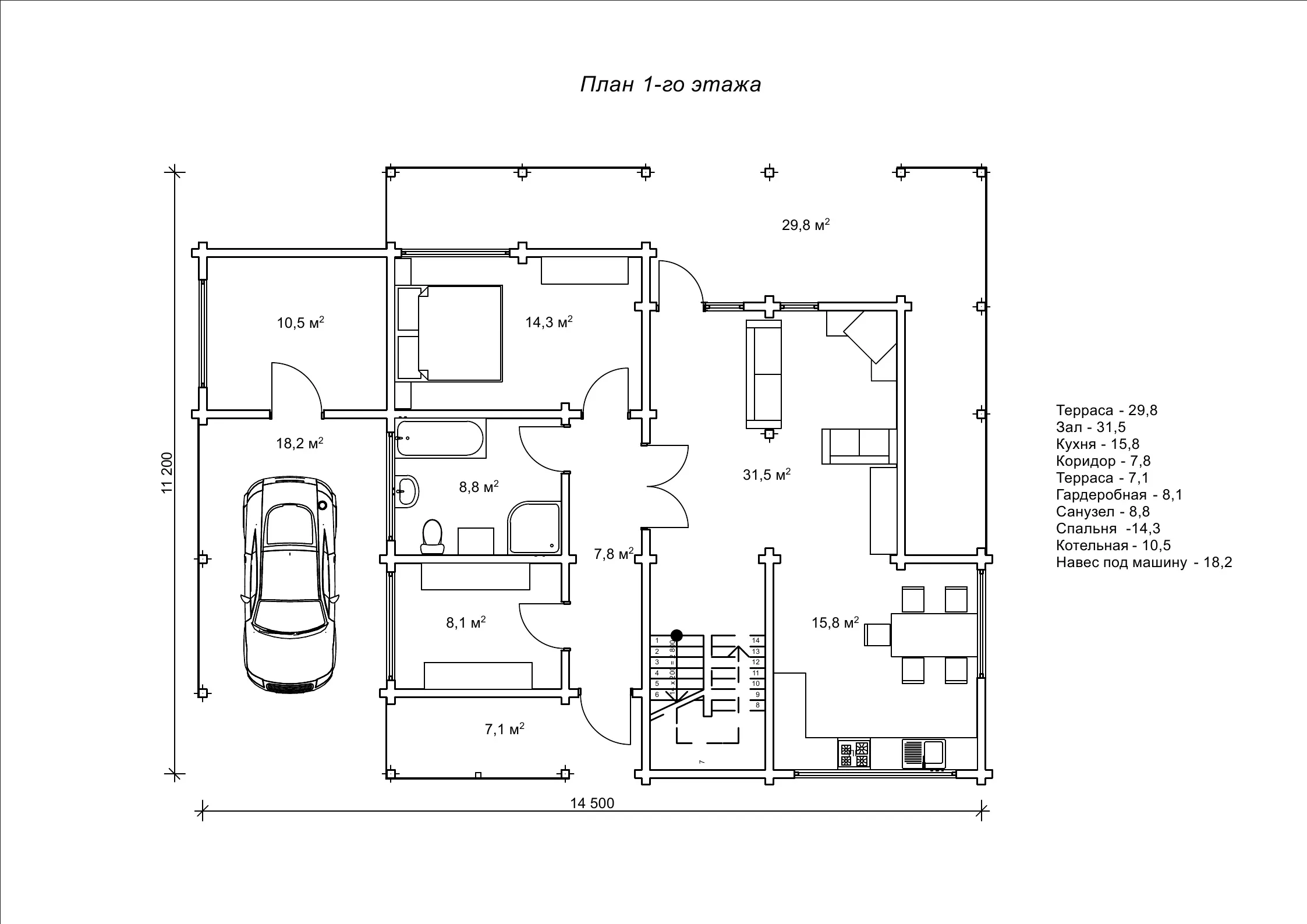
Планування маєтку «Дівія», площа 252,9 м2

Внутрішнє планування маєтку «Дівія» говорить про те, що такий добротний проект був розроблений для великої і дружної сім’ї. Шестикімнатний будинок стане сімейним вогнищем для багатодітної сім’ї або для родини, яке проживає з батьками похилого віку. Тому що на першому поверсі передбачена спальня, яка як раз підійде для людей, яким важко підніматися на другий поверх. Або можна тут влаштувати гостьову кімнату. Крім спальні, перший поверх вміщує кухню, зал, санвузол, гардеробну кімнату і приміщення котельні поруч з навісом для авто. Над залом височіє простір «другого світла», і така широта простору надає масу можливостей для створення ексклюзивного інтер’єру в цьому надзвичайно красивому будинку! На другому поверсі, який спроектований у вигляді мансарди, є 4 спальні і санвузол. Таким чином, площа маєтку «Дівія» організована так, щоб вся родина могла збиратися разом, і при цьому, для кожного виділяється достатньо місця під особистий простір.

Будівництво маєтку з мансардою і навісом для автомобіля за готовим проектом «Дівія»

Маєток з мансардою і навісом для автомобіля «Дівія» - дуже привабливий зовні і зручно спланований всередині будинок з сухого профільованого бруса. Споруда готового проекту «Дівія» ушляхетнить будь-яку місцевість і подарує господарям справжній комфорт. Вибираючи будівництво маєтку з мансардою і навісом для автомобіля за готовим проектом «Дівія», ви отримуєте надійне і тепле житло. Добре просушений деревний матеріал споруди стане запорукою її високої якості і довговічної експлуатації. Для замовлення споруди дерев’яного комплекту будинку телефонуйте за номерами офісу по роботі з клієнтами «Домінант» - і в найкоротші терміни прекрасний маєток з натурального дерева стане довгоочікуваною реальністю!

Кількість поверхів
2
Площа
252.9
Ширина
11.2
Довжина
14.5
Будинки і житлові будови
Вілли
Котеджі
Маєтки
Садиби
Особливості будинків
Будинки з котельнею
Будинки з мансардою
Будинки з терасою
Будинки зі сходами
Кількість поверхів споруди
Двоповерхові будинки
Будинки з брусу
Будинки з клеєного брусу
Будинки з профільованого брусу

Базова комплектація:
(Що входить в ціну)

Що входить в базову комплектацію

  • комплект стін;
  • комплект крокв;
  • комплект балок перекриття;
  • утеплювач міжвінцевий;
  • антисептик (антисептування всього матеріалу);
  • дубові нагеля;
  • кріпильні материали (саморізи, усадкові болти, анкера, кріпильні пластини);
  • гідроізоляція;
  • вогнебіозахист (обробка деревини засобом І групи вогнезахисної ефективності)

456840 грн.

Дах (комплектність):

  • Рейка 100*25мм (cосна)
  • Контрейка 50*25мм (сосна)
  • Металочерепиця МОНТЕРРЕЙ (Польща) 0,45мм
  • Коник прямий
  • Планка примикання
  • Лобова (декоративна) планка
  • Вітровая планка
  • Яндола
  • Капельник (Карнизна планка)
  • Ущільнювач універсальный
  • Саморізи ОС 4.8х35
  • Фарба-спрей
  • Гідробар'єр
  • Монтаж

526200 грн.

Вікна (комплектність):

  • Вікно VEKA 58, колір білий 10
  • Імпости вертикальні: 1 x 102103
  • Скління: СПО, 24мм, (Rсп=0.36)*
  • Тип фурнітури: Activpilot поворотно-відкидна, колір білий
  • Підбір спеціальний: Activ микровентиляція; Activ 2-функц. механ.
  • Моск.сітка: МС 3
  • Підвіконня: ВМ 110мм, колір білий
  • Підвіконня: ПВ ПВХ 150, заглушки: 600мм, колір білий
  • Монтаж

188100 грн.

Двері (комплектність):

  • Полотно
  • Коробка
  • Лиштва
  • Карниз
  • Фарбування
  • Скло
  • Фурнітура
  • Врізка фурнітуры
  • Монтаж

306404 грн.

Фарбування (комплектність):

  • Шліфування торців
  • Тришарове покриття ефективним деревозахисним засобом на базі низькомолекулярної алкідної смоли методом розпилення.

Параметри забудови

  • Кількість поверхів: 2
  • Площа: 252.9

Розмір забудови

  • Ширина: 11.2
  • Довжина: 14.5

Перший поверх

терраса (м²)29,8
зала (м²)31,5
кухня (м²)15,8
коридор (м²)7,8
терраса (м²)7,1
гардеробная (м²)8,1
санузел (м²)8,8
спальня (м²)14,3
котельня (м²)10,5
навес под машину (м²)18,2

Другий поверх

коридор (м²)13,4
спальня х2 (м²)13,4
спальня (м²)13,4
спальня (м²)15,8
санузел (м²)8,8
балкон (м²)7,1

Оциліндрований брус

Оциліндрований брус є найбільш оптимальним і поширеним матеріалом для будівництва дерев`яних будинків і бань, бесідок, альтанок, різноманітних садових меблів, дерев`яних конструкцій будь-яких видів. Дерев`яні будинки з оциліндрованого брусу відрізняються красою, всередині такого будинку завжди відчувається особлива затишна атмосфера.

Читати далі...

Профільований брус

Найсучаснішим і високотехнологічним будівельним матеріалом в дерев`яному будівництві на сьогоднішній день є профільований брус. Для виробництва профільованого брусу, звичайному дерев`яному брусу на спеціальному деревообробному обладнанні надається певний профіль.

Читати далі...

Подвійний брус з утепленням

Головна ідея застосування подвійного бруса полягала в досягненні енергоефективності житла. Над проектуванням енергозберігаючих будинків працюють провідні інженери та архітектори в різних країнах світу, запропонована фінами технологія подвійного бруса дає можливість звести до мінімуму тепловтрати будинку, а також об`єднує переваги будівництва дерев`яного будинку з економічністю споруди.

Читати далі...

Клеєний брус

Клеєний брус принципово відрізняється від інших типів колод багатошаровістю. Така структура робить цей дерев’яний матеріал надміцним і витривалим.

Читати далі...

Каркасні конструкції

Каркасні конструкції виготовляються на власних виробничих потужностях компанії «Домінант», з використанням сучасних деревообробних станків. Імпортне, високоточне обладнання дозволяє нам високоякісно виконувати свою роботу. Каркаси складаються зі струганих, ретельно висушених балок 150х50 мм (сосна першого сорту). Ці балки застосовуються для зовнішніх каркасів.

Читати далі...

Немає відгуків

Переглянуті товари

16 інших товарів в цій категорії:

Товар додано для порівняння.