Гарм
Колодчастий будиночок 7 на 8 м на дачу - «Гарм»
- Кількість поверхів
- 1
- Площа
- 55.7
- Ширина
- 7
- Довжина
- 8
- Будинки і житлові будови
- Будиночки
Дачі
Котеджі - Кількість кімнат
- Двокімнатні будинки
- Особливості будинків
- Будинки з ґанком
- Кількість поверхів споруди
- Одноповерхові будинки
- Будинки з брусу
- Будинки з оциліндрованого брусу
- Комерційні будівлі
- Бази відпочинку
Готелі
(Що входить в ціну)
- комплект стін;
- комплект крокв;
- комплект балок перекриття;
- утеплювач міжвінцевий;
- антисептик (антисептування всього матеріалу);
- дубові нагеля;
- кріпильні материали (саморізи, усадкові болти, анкера, кріпильні пластини);
- гідроізоляція;
- вогнебіозахист (обробка деревини засобом І групи вогнезахисної ефективності)
Будівництво колодчастого будиночка 7 на 8 м на дачу
Проект колодчастого будиночка «Гарм» пропонується як дачний або гостьовий котедж на присадибну територію. Компактна споруда спланована максимально просто під звичайним двосхилим дахом. Найвидатнішими деталями виступає затишний ґанок, заглиблений усередину будиночка під навіс одного зі схилів даху, і кілька високих вікон від підлоги до стелі. Дачний котедж виконується в класичному стилі зрубу з колод, його стіни необхідно пошліфувати і пофарбувати. Жодного додаткового утеплення та масштабних оздоблювальних робіт проект не вимагає, а отже будиночок швидко вводиться в експлуатацію без зайвих витрат.
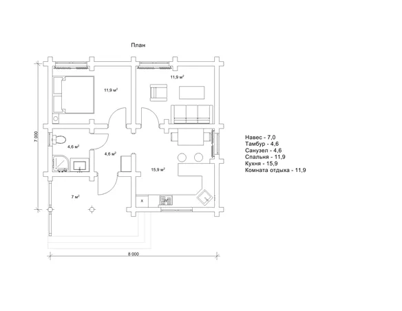
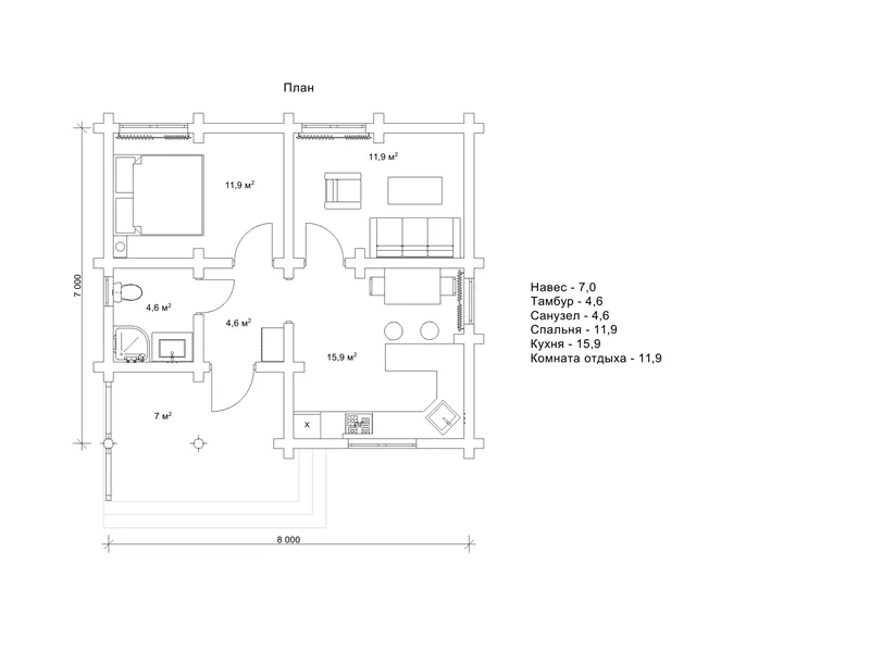
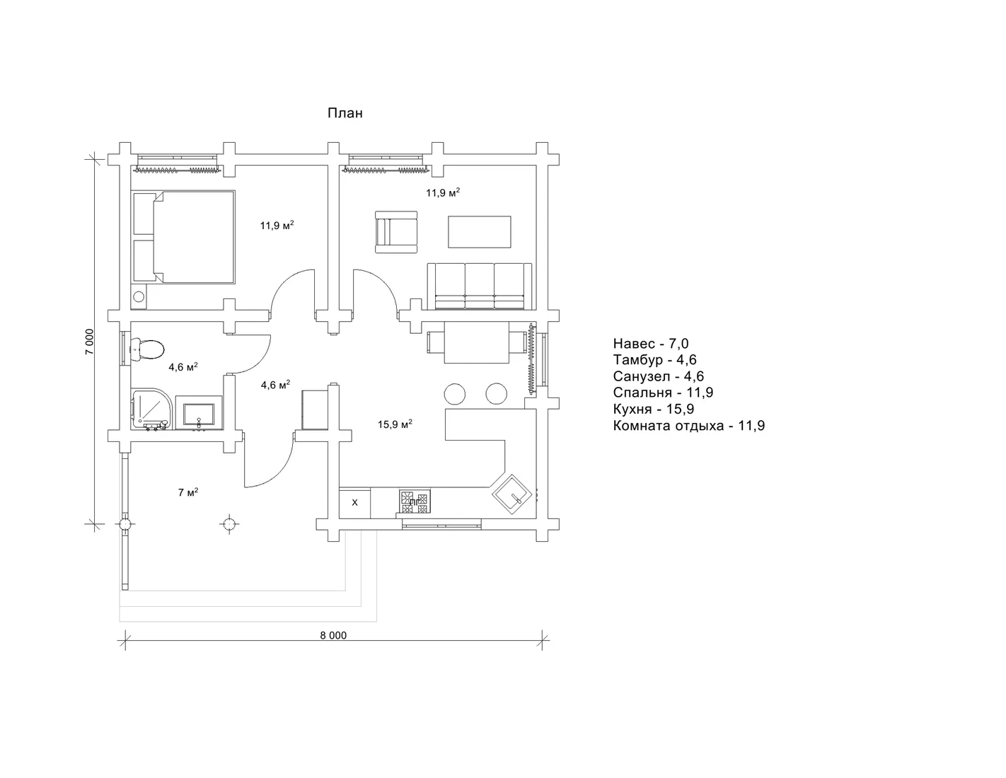
Планування колодчастого будиночка 7 на 8 м на дачу, проект «Гарм»
Планування колодчастого будиночка «Гарм» розташоване в параметрах 7 на 8 м, загальна площа майже квадратної споруди становить 55,7 м2. Вхід до котеджу починається з ґанку на 7 м2, далі йде мініатюрний тамбур на 4,6 м2. Санвузол такого ж розміру знаходиться ліворуч від тамбуру, а праворуч заходимо на кухню площею 16 м2. Планування проекту «Гарм» включає також дві житлові кімнати по 11,9 м2. В одній пропонується облаштувати спальню, а в іншій – вітальню. Але за бажанням можна зробити в будиночку дві спальні кімнати, одну для господарів та другу дитячу. Або у другій кімнаті влаштувати майстерню чи кабінет. Наш дизайнер пропонує лише ідеї, а ви можете організувати в котеджі свій життєвий простір так, як вам зручно. Щоб можна було відпочити і наповнитися живою енергією природи від колодчастих стін з натуральної сосни. Для будівництва стін можна вибирати колоди 160-180 мм, якщо ви не плануєте тут жити. Такої товщини стін для комфортного літнього відпочинку буде достатньо, і нема чого здорожчувати будівлю. Але щоб отримати всесезонне житло слід вибирати більший діаметр колод, а саме 200-220 мм. Це буде дорожче коштувати, але ви отримаєте теплий будиночок з бруса, в якому буде комфортно цілий рік.
- Кількість поверхів
- 1
- Площа
- 55.7
- Ширина
- 7
- Довжина
- 8
- Будинки і житлові будови
- Будиночки
Дачі
Котеджі - Кількість кімнат
- Двокімнатні будинки
- Особливості будинків
- Будинки з ґанком
- Кількість поверхів споруди
- Одноповерхові будинки
- Будинки з брусу
- Будинки з оциліндрованого брусу
- Комерційні будівлі
- Бази відпочинку
Готелі
Базова комплектація:
(Що входить в ціну)
- комплект стін;
- комплект крокв;
- комплект балок перекриття;
- утеплювач міжвінцевий;
- антисептик (антисептування всього матеріалу);
- дубові нагеля;
- кріпильні материали (саморізи, усадкові болти, анкера, кріпильні пластини);
- гідроізоляція;
- вогнебіозахист (обробка деревини засобом І групи вогнезахисної ефективності)
199260 грн.
Дах (комплектність):
- Рейка 100*25мм (cосна)
- Контрейка 50*25мм (сосна)
- Металочерепиця МОНТЕРРЕЙ (Польща) 0,45мм
- Коник прямий
- Планка примикання
- Лобова (декоративна) планка
- Вітровая планка
- Яндола
- Капельник (Карнизна планка)
- Ущільнювач універсальный
- Саморізи ОС 4.8х35
- Фарба-спрей
- Гідробар'єр
- Монтаж
175400 грн.
Вікна (комплектність):
- Вікно VEKA 58, колір білий 10
- Імпости вертикальні: 1 x 102103
- Скління: СПО, 24мм, (Rсп=0.36)*
- Тип фурнітури: Activpilot поворотно-відкидна, колір білий
- Підбір спеціальний: Activ микровентиляція; Activ 2-функц. механ.
- Моск.сітка: МС 3
- Підвіконня: ВМ 110мм, колір білий
- Підвіконня: ПВ ПВХ 150, заглушки: 600мм, колір білий
- Монтаж
41800 грн.
Двері (комплектність):
- Полотно
- Коробка
- Лиштва
- Карниз
- Фарбування
- Скло
- Фурнітура
- Врізка фурнітуры
- Монтаж
106764 грн.
Фарбування (комплектність):
- Шліфування торців
- Тришарове покриття ефективним деревозахисним засобом на базі низькомолекулярної алкідної смоли методом розпилення.
Оциліндрований брус
Оциліндрований брус є найбільш оптимальним і поширеним матеріалом для будівництва дерев`яних будинків і бань, бесідок, альтанок, різноманітних садових меблів, дерев`яних конструкцій будь-яких видів. Дерев`яні будинки з оциліндрованого брусу відрізняються красою, всередині такого будинку завжди відчувається особлива затишна атмосфера.
Профільований брус
Найсучаснішим і високотехнологічним будівельним матеріалом в дерев`яному будівництві на сьогоднішній день є профільований брус. Для виробництва профільованого брусу, звичайному дерев`яному брусу на спеціальному деревообробному обладнанні надається певний профіль.
Подвійний брус з утепленням
Головна ідея застосування подвійного бруса полягала в досягненні енергоефективності житла. Над проектуванням енергозберігаючих будинків працюють провідні інженери та архітектори в різних країнах світу, запропонована фінами технологія подвійного бруса дає можливість звести до мінімуму тепловтрати будинку, а також об`єднує переваги будівництва дерев`яного будинку з економічністю споруди.
Клеєний брус
Клеєний брус принципово відрізняється від інших типів колод багатошаровістю. Така структура робить цей дерев’яний матеріал надміцним і витривалим.
Каркасні конструкції
Каркасні конструкції виготовляються на власних виробничих потужностях компанії «Домінант», з використанням сучасних деревообробних станків. Імпортне, високоточне обладнання дозволяє нам високоякісно виконувати свою роботу. Каркаси складаються зі струганих, ретельно висушених балок 150х50 мм (сосна першого сорту). Ці балки застосовуються для зовнішніх каркасів.

















