Зателефонуйте мені
Домарі №1
Домарі №2
Домарі №3
Домарі №4
Домарі №5
Домарі №6
Домарі №7
Домарі №8
Домарі №9
Домарі №10
Домарі №11
Домарі №12
Домарі №13
Домарі №14
Домарі №1
Домарі №2
Домарі №3
Домарі №4
Домарі №5
Домарі №6
Домарі №7
Домарі №8
Домарі №9
Домарі №10
Домарі №11
Домарі №12
Домарі №13
Домарі №14
Домарі №1
Домарі №1 Домарі №2 Домарі №3 Домарі №4 Домарі №5 Домарі №6 Домарі №7 Домарі №8 Домарі №9 Домарі №10 Домарі №11 Домарі №12 Домарі №13 Домарі №14

Домарі

743 828,00 ₴
Гостьовий котедж 5,7 на 6 м з мансардою - «Домарі»
Розмір брусу
  • Оциліндрований 160
  • Оциліндрований 180
  • Оциліндрований 200
  • Оциліндрований 220
  • Профільований 60
  • Профільований 150
  • Профільований 200
  • Подвійний 300
  • Клеєний 120
  • Клеєний 180
Кількість поверхів
2
Площа
60.2
Ширина
5.7
Довжина
6
Будинки і житлові будови
Будиночки
Дачі
Котеджі
Кількість кімнат
Однокімнатні будинки
Особливості будинків
Будинки зі сходами
Кількість поверхів споруди
Двоповерхові будинки
Будинки з брусу
Будинки з оциліндрованого брусу
Комерційні будівлі
Бази відпочинку
Готелі
 

(Що входить в ціну)

Що входить в базову комплектацію

  • комплект стін;
  • комплект крокв;
  • комплект балок перекриття;
  • утеплювач міжвінцевий;
  • антисептик (антисептування всього матеріалу);
  • дубові нагеля;
  • кріпильні материали (саморізи, усадкові болти, анкера, кріпильні пластини);
  • гідроізоляція;
  • вогнебіозахист (обробка деревини засобом І групи вогнезахисної ефективності)

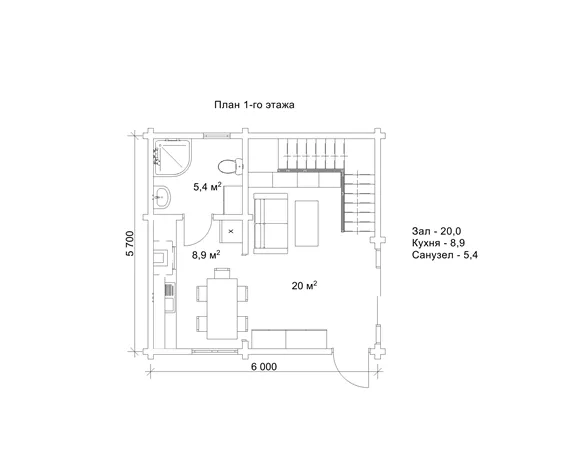
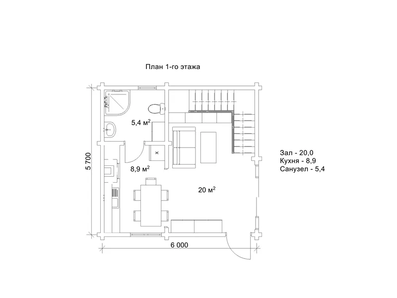
План гостьового котеджу 5,7 на 6 м з мансардою

У котеджі з соснового дерева завжди по-особливому затишна атмосфера домашнього тепла і завжди пахне хвойною свіжістю. Завдяки цьому котеджі з бруса завжди найбільше затребувані в якості гостьових будиночків на базах відпочинку і в готельних комплексах. А вже побудувавши собі дачу з соснового зрубу у вас завжди буде місце для повноцінного відпочинку в єднанні з природою. Будівельна компанія «Домінант» пропонує дерев’яний котедж з сухого профільованого бруса «Домарі», як відмінний варіант дачі або гостьового будиночка. Проект «Домарі» являє собою компактний, акуратний котедж розміром 5,7 на 6 м з мансардою, площа будиночка 60,2 м2. Це дуже зручні параметри для зведення зрубу практично на будь-якій ділянці. Провести відпустку або вихідні в такому чудовому будиночку - це завжди прекрасна можливість оздоровитися і урізноманітнити дозвілля.

Гостьовий котедж 5,7 на 6 м з мансардою «Домарі»

Бази відпочинку з дерев’яних котеджів завжди затребувані серед відпочиваючих завдяки сприятливому впливу корисних деревних фітонцидів. Час, проведений, в гостьовому котеджі «Домарі» стане по-справжньому цілющим. На першому поверсі проекту розташовується зал зі сходами, кухнею та санвузлом. Другий поверх повністю складається з просторої спальні розміром 26 м2. Дерев’яний зруб «Домарі» являє собою екологічно чисту і надійну споруду з сухого, профільованого бруса, який відомий своєю стабільністю і надійністю. Простота і лаконічність обрисів будиночка обумовлює його економічність і привабливість, як для бажаючих побудувати комерційний об’єкт, так і для тих, хто мріє придбати максимально комфортну дачу.

Кількість поверхів
2
Площа
60.2
Ширина
5.7
Довжина
6
Будинки і житлові будови
Будиночки
Дачі
Котеджі
Кількість кімнат
Однокімнатні будинки
Особливості будинків
Будинки зі сходами
Кількість поверхів споруди
Двоповерхові будинки
Будинки з брусу
Будинки з оциліндрованого брусу
Комерційні будівлі
Бази відпочинку
Готелі

Базова комплектація:
(Що входить в ціну)

Що входить в базову комплектацію

  • комплект стін;
  • комплект крокв;
  • комплект балок перекриття;
  • утеплювач міжвінцевий;
  • антисептик (антисептування всього матеріалу);
  • дубові нагеля;
  • кріпильні материали (саморізи, усадкові болти, анкера, кріпильні пластини);
  • гідроізоляція;
  • вогнебіозахист (обробка деревини засобом І групи вогнезахисної ефективності)

155520 грн.

Дах (комплектність):

  • Рейка 100*25мм (cосна)
  • Контрейка 50*25мм (сосна)
  • Металочерепиця МОНТЕРРЕЙ (Польща) 0,45мм
  • Коник прямий
  • Планка примикання
  • Лобова (декоративна) планка
  • Вітровая планка
  • Яндола
  • Капельник (Карнизна планка)
  • Ущільнювач універсальный
  • Саморізи ОС 4.8х35
  • Фарба-спрей
  • Гідробар'єр
  • Монтаж

140320 грн.

Вікна (комплектність):

  • Вікно VEKA 58, колір білий 10
  • Імпости вертикальні: 1 x 102103
  • Скління: СПО, 24мм, (Rсп=0.36)*
  • Тип фурнітури: Activpilot поворотно-відкидна, колір білий
  • Підбір спеціальний: Activ микровентиляція; Activ 2-функц. механ.
  • Моск.сітка: МС 3
  • Підвіконня: ВМ 110мм, колір білий
  • Підвіконня: ПВ ПВХ 150, заглушки: 600мм, колір білий
  • Монтаж

167200 грн.

Двері (комплектність):

  • Полотно
  • Коробка
  • Лиштва
  • Карниз
  • Фарбування
  • Скло
  • Фурнітура
  • Врізка фурнітуры
  • Монтаж

87668 грн.

Фарбування (комплектність):

  • Шліфування торців
  • Тришарове покриття ефективним деревозахисним засобом на базі низькомолекулярної алкідної смоли методом розпилення.

Параметри забудови

  • Кількість поверхів: 2
  • Площа: 60.2

Розмір забудови

  • Ширина: 5.7
  • Довжина: 6

Перший поверх

зала (м²)20,0
кухня (м²)8,9
санвузол (м²)5,4

Другий поверх

спальня (м²)26,0

Оциліндрований брус

Оциліндрований брус є найбільш оптимальним і поширеним матеріалом для будівництва дерев`яних будинків і бань, бесідок, альтанок, різноманітних садових меблів, дерев`яних конструкцій будь-яких видів. Дерев`яні будинки з оциліндрованого брусу відрізняються красою, всередині такого будинку завжди відчувається особлива затишна атмосфера.

Читати далі...

Профільований брус

Найсучаснішим і високотехнологічним будівельним матеріалом в дерев`яному будівництві на сьогоднішній день є профільований брус. Для виробництва профільованого брусу, звичайному дерев`яному брусу на спеціальному деревообробному обладнанні надається певний профіль.

Читати далі...

Подвійний брус з утепленням

Головна ідея застосування подвійного бруса полягала в досягненні енергоефективності житла. Над проектуванням енергозберігаючих будинків працюють провідні інженери та архітектори в різних країнах світу, запропонована фінами технологія подвійного бруса дає можливість звести до мінімуму тепловтрати будинку, а також об`єднує переваги будівництва дерев`яного будинку з економічністю споруди.

Читати далі...

Клеєний брус

Клеєний брус принципово відрізняється від інших типів колод багатошаровістю. Така структура робить цей дерев’яний матеріал надміцним і витривалим.

Читати далі...

Каркасні конструкції

Каркасні конструкції виготовляються на власних виробничих потужностях компанії «Домінант», з використанням сучасних деревообробних станків. Імпортне, високоточне обладнання дозволяє нам високоякісно виконувати свою роботу. Каркаси складаються зі струганих, ретельно висушених балок 150х50 мм (сосна першого сорту). Ці балки застосовуються для зовнішніх каркасів.

Читати далі...

Немає відгуків

Переглянуті товари

16 інших товарів в цій категорії:

Товар додано для порівняння.