Ейлав
- Кількість поверхів
- 1
- Площа
- 48
- Ширина
- 8
- Довжина
- 6
- Будинки і житлові будови
- Будиночки
Дачі
Котеджі - Кількість кімнат
- Однокімнатні будинки
- Особливості будинків
- Будинки з ґанком
- Кількість поверхів споруди
- Одноповерхові будинки
- Будинки з брусу
- Будинки з клеєного брусу
Будинки з профільованого брусу - Комерційні будівлі
- Бази відпочинку
Готелі
(Що входить в ціну)
- комплект стін;
- комплект крокв;
- комплект балок перекриття;
- утеплювач міжвінцевий;
- антисептик (антисептування всього матеріалу);
- дубові нагеля;
- кріпильні материали (саморізи, усадкові болти, анкера, кріпильні пластини);
- гідроізоляція;
- вогнебіозахист (обробка деревини засобом І групи вогнезахисної ефективності)
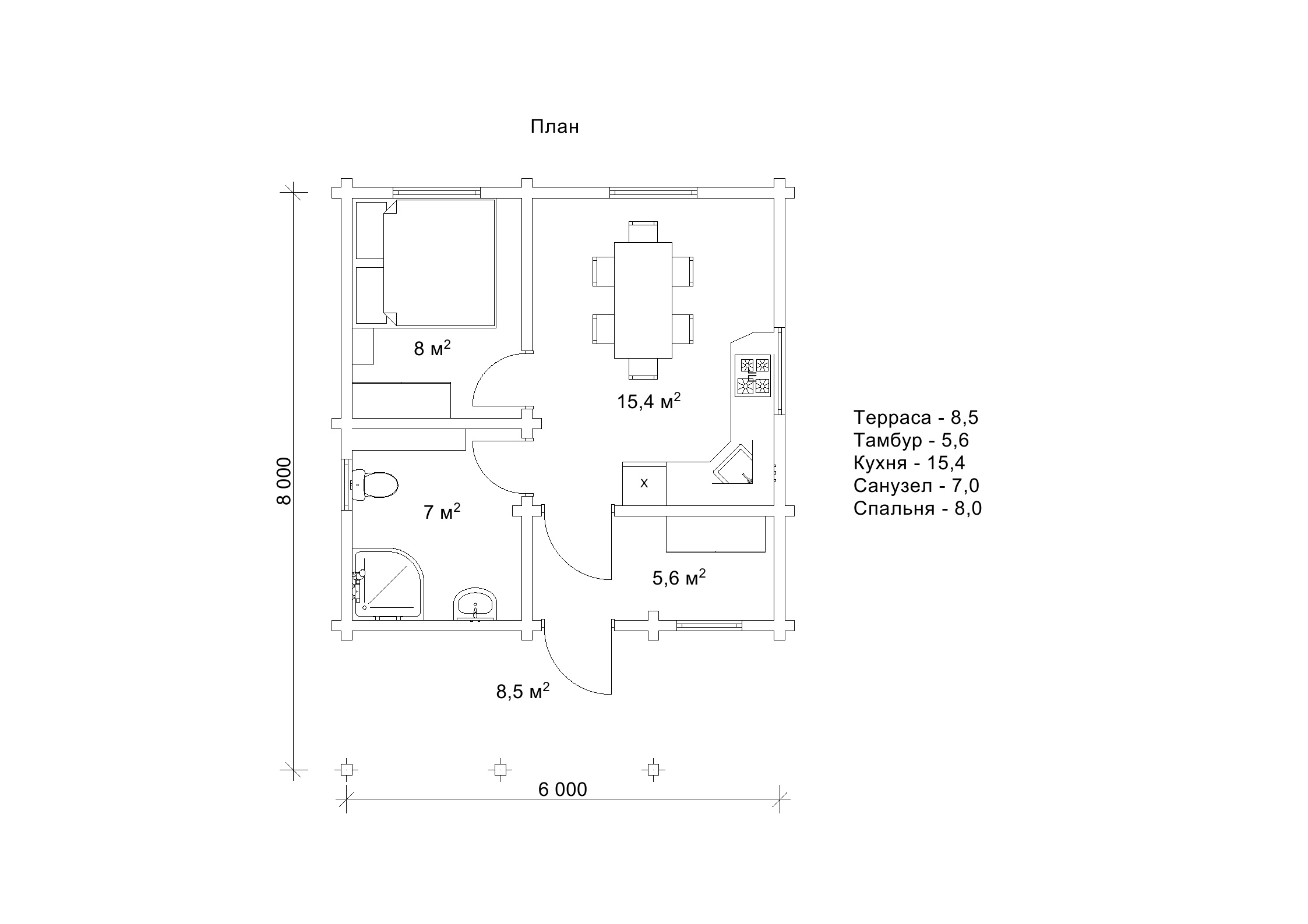
План дачного котеджу 8х6м з однією спальнею
Котедж «Ейлав» - це проект маленького будиночка з сухого, профільованого бруса. Економічний і компактний котедж створить затишок і подарує масу комфорту в будь-який час року будь-якому господареві дачної ділянки. Сосновий брус розміром 150*150 мм дозволяє експлуатувати котедж всесезонно, і навіть в зимові морози в будиночку з бруса буде тепло і комфортно. До того ж плануванням проекту «Ейла» передбачено наявність всіх зручностей, необхідних для повноцінного відпочинку. В параметрах 8х6 м містяться приміщення кухні, спальні, санвузла та тамбура. Загальна площа дачі 48 м2. Біля входу є затишний ґанок-тераса на 8,5 м2 під симпатичним козирком.
Дачний котедж «Ейла» площа 48 м²
Дачний котедж «Ейла», виконаний з просушеного і відшліфованого бруса, виглядає дуже стильно, яскраво розкриваючи самобутню красу соснового дерева. Це чудовий вибір для цінителів лаконічного, мінімалістичного дизайну, які бажають не тільки корисно організувати свою ділянку, а й отримати всесезонну дачу. До всього іншого, варто підкреслити, що придбання котеджу «Ейла» в комерційних цілях дозволить розширити функціональність будь-якого комплексу відпочинку. Такий гостьовий котедж подарує масу задоволень гостям від перебування в повному єднанні з природою. Якісний матеріал будівництва та багатофункціональність планування будиночка «Ейла» виступають основними перевагами дачного котеджу. Це оптимальний вибір для заміської ділянки, який дозволить отримати вигідний комерційний варіант або зручний дачний котедж з натурального дерева.
- Кількість поверхів
- 1
- Площа
- 48
- Ширина
- 8
- Довжина
- 6
- Будинки і житлові будови
- Будиночки
Дачі
Котеджі - Кількість кімнат
- Однокімнатні будинки
- Особливості будинків
- Будинки з ґанком
- Кількість поверхів споруди
- Одноповерхові будинки
- Будинки з брусу
- Будинки з клеєного брусу
Будинки з профільованого брусу - Комерційні будівлі
- Бази відпочинку
Готелі
Базова комплектація:
(Що входить в ціну)
- комплект стін;
- комплект крокв;
- комплект балок перекриття;
- утеплювач міжвінцевий;
- антисептик (антисептування всього матеріалу);
- дубові нагеля;
- кріпильні материали (саморізи, усадкові болти, анкера, кріпильні пластини);
- гідроізоляція;
- вогнебіозахист (обробка деревини засобом І групи вогнезахисної ефективності)
177390 грн.
Дах (комплектність):
- Рейка 100*25мм (cосна)
- Контрейка 50*25мм (сосна)
- Металочерепиця МОНТЕРРЕЙ (Польща) 0,45мм
- Коник прямий
- Планка примикання
- Лобова (декоративна) планка
- Вітровая планка
- Яндола
- Капельник (Карнизна планка)
- Ущільнювач універсальный
- Саморізи ОС 4.8х35
- Фарба-спрей
- Гідробар'єр
- Монтаж
122780 грн.
Вікна (комплектність):
- Вікно VEKA 58, колір білий 10
- Імпости вертикальні: 1 x 102103
- Скління: СПО, 24мм, (Rсп=0.36)*
- Тип фурнітури: Activpilot поворотно-відкидна, колір білий
- Підбір спеціальний: Activ микровентиляція; Activ 2-функц. механ.
- Моск.сітка: МС 3
- Підвіконня: ВМ 110мм, колір білий
- Підвіконня: ПВ ПВХ 150, заглушки: 600мм, колір білий
- Монтаж
41800 грн.
Двері (комплектність):
- Полотно
- Коробка
- Лиштва
- Карниз
- Фарбування
- Скло
- Фурнітура
- Врізка фурнітуры
- Монтаж
89404 грн.
Фарбування (комплектність):
- Шліфування торців
- Тришарове покриття ефективним деревозахисним засобом на базі низькомолекулярної алкідної смоли методом розпилення.
Оциліндрований брус
Оциліндрований брус є найбільш оптимальним і поширеним матеріалом для будівництва дерев`яних будинків і бань, бесідок, альтанок, різноманітних садових меблів, дерев`яних конструкцій будь-яких видів. Дерев`яні будинки з оциліндрованого брусу відрізняються красою, всередині такого будинку завжди відчувається особлива затишна атмосфера.
Профільований брус
Найсучаснішим і високотехнологічним будівельним матеріалом в дерев`яному будівництві на сьогоднішній день є профільований брус. Для виробництва профільованого брусу, звичайному дерев`яному брусу на спеціальному деревообробному обладнанні надається певний профіль.
Подвійний брус з утепленням
Головна ідея застосування подвійного бруса полягала в досягненні енергоефективності житла. Над проектуванням енергозберігаючих будинків працюють провідні інженери та архітектори в різних країнах світу, запропонована фінами технологія подвійного бруса дає можливість звести до мінімуму тепловтрати будинку, а також об`єднує переваги будівництва дерев`яного будинку з економічністю споруди.
Клеєний брус
Клеєний брус принципово відрізняється від інших типів колод багатошаровістю. Така структура робить цей дерев’яний матеріал надміцним і витривалим.
Каркасні конструкції
Каркасні конструкції виготовляються на власних виробничих потужностях компанії «Домінант», з використанням сучасних деревообробних станків. Імпортне, високоточне обладнання дозволяє нам високоякісно виконувати свою роботу. Каркаси складаються зі струганих, ретельно висушених балок 150х50 мм (сосна першого сорту). Ці балки застосовуються для зовнішніх каркасів.
















