Танаш
- Кількість поверхів
- 1
- Площа
- 140.2
- Ширина
- 12
- Довжина
- 14
- Будинки і житлові будови
- Вілли
Дачі
Котеджі - Кількість кімнат
- Двокімнатні будинки
- Особливості будинків
- Будинки з терасою
- Кількість поверхів споруди
- Одноповерхові будинки
- Будинки з брусу
- Будинки з клеєного брусу
Будинки з профільованого брусу - Комерційні будівлі
- Готелі
(Що входить в ціну)
- комплект стін;
- комплект крокв;
- комплект балок перекриття;
- утеплювач міжвінцевий;
- антисептик (антисептування всього матеріалу);
- дубові нагеля;
- кріпильні материали (саморізи, усадкові болти, анкера, кріпильні пластини);
- гідроізоляція;
- вогнебіозахист (обробка деревини засобом І групи вогнезахисної ефективності)
Будівництво дерев’яного котеджу 14х12 м з великими вікнами
Проект «Танаш» виконується із сухого, профільованого бруса, який формує стильний та лаконічний вигляд будівлі. Завдяки такій презентабельності проект «Танаш» стане родзинкою будь-якої місцевості. Крім того, оригінальна архітектурна форма споруди дає відчуття, що будиночок складається з двох котеджів. Тому, поглянувши на проект, можна подумати, що це дуплекс або таунхаус. Насправді така ілюзія вміло створена нашим архітектором за рахунок симетричного оформлення фасадів по обидва боки від входу та вибору М-подібної форми даху, яка як раз зустрічається в таунхаусах. Оригінальність котеджу полягає не лише у його зовнішній неповторності. Ви обов’язково оціните його внутрішній комфорт, ознайомившись детальніше із плануванням.
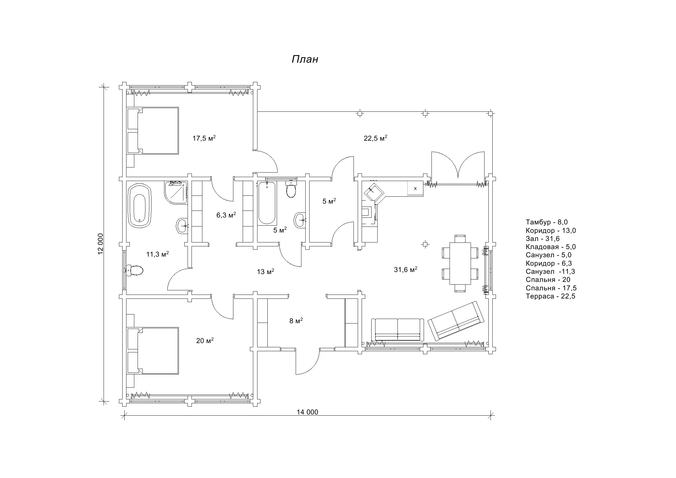
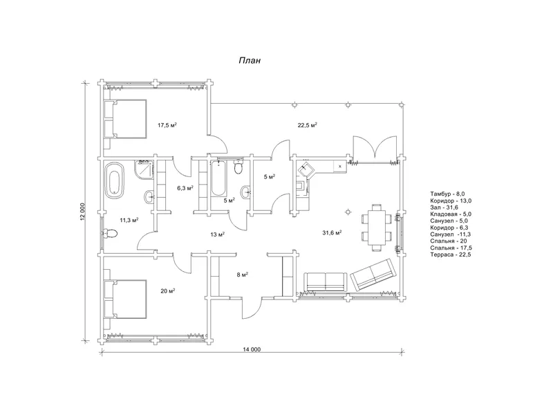
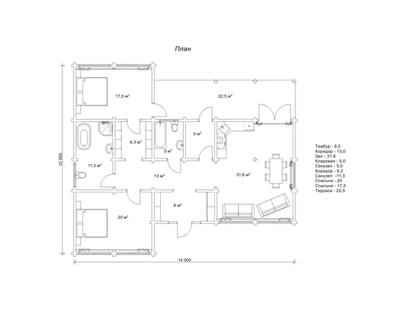
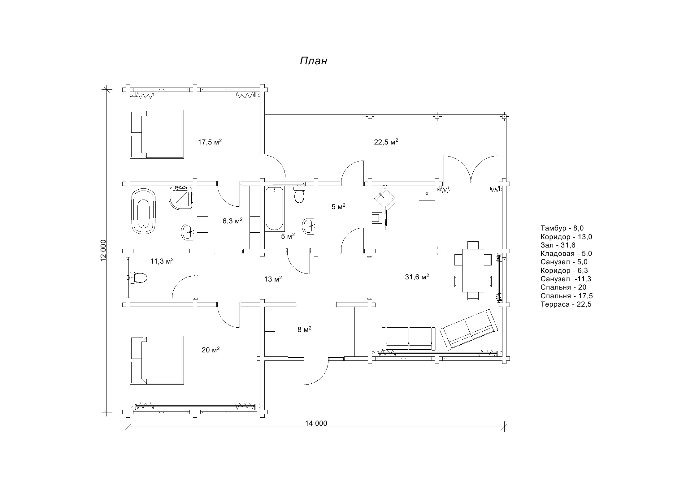
Дерев’яний котедж 14х12 м «Танаш» площа 140,2 м ²
Дерев’яний котедж «Танаш» є унікальним як за своїм зовнішнім виконанням, так і за внутрішнім наповненням. Цей будинок включає повний благоустрій життя за містом, уособлюючи всі його переваги. Для будівництва цього котеджу знадобиться досить велика земельна ділянка. Посудіть самі, параметри будови становлять 14 м на 12 м, а його площа – 140,2 м2. Внутрішні приміщення також дуже просторі. Зал за розмірами займає 31,6 м2, дві житлові кімнати спроектовані у розмірах 20 м2 та 17,5 м2. Є дві цікаві особливості планування котеджу «Танаш», на які хочемо звернути особливу увагу. Це наявність в одноповерховому котеджі двох ванних кімнат та особливості розташування однієї зі спалень, звідки спроектований окремий вихід з будинку на терасу. Таку кімнату можна відвести під кабінет чи гостьову спальню. Нестандартний дизайн та внутрішнє наповнення проекту «Танаш» робить його вибором справжнього оригінала та естета!
- Кількість поверхів
- 1
- Площа
- 140.2
- Ширина
- 12
- Довжина
- 14
- Будинки і житлові будови
- Вілли
Дачі
Котеджі - Кількість кімнат
- Двокімнатні будинки
- Особливості будинків
- Будинки з терасою
- Кількість поверхів споруди
- Одноповерхові будинки
- Будинки з брусу
- Будинки з клеєного брусу
Будинки з профільованого брусу - Комерційні будівлі
- Готелі
Базова комплектація:
(Що входить в ціну)
- комплект стін;
- комплект крокв;
- комплект балок перекриття;
- утеплювач міжвінцевий;
- антисептик (антисептування всього матеріалу);
- дубові нагеля;
- кріпильні материали (саморізи, усадкові болти, анкера, кріпильні пластини);
- гідроізоляція;
- вогнебіозахист (обробка деревини засобом І групи вогнезахисної ефективності)
456840 грн.
Дах (комплектність):
- Рейка 100*25мм (cосна)
- Контрейка 50*25мм (сосна)
- Металочерепиця МОНТЕРРЕЙ (Польща) 0,45мм
- Коник прямий
- Планка примикання
- Лобова (декоративна) планка
- Вітровая планка
- Яндола
- Капельник (Карнизна планка)
- Ущільнювач універсальный
- Саморізи ОС 4.8х35
- Фарба-спрей
- Гідробар'єр
- Монтаж
526200 грн.
Вікна (комплектність):
- Вікно VEKA 58, колір білий 10
- Імпости вертикальні: 1 x 102103
- Скління: СПО, 24мм, (Rсп=0.36)*
- Тип фурнітури: Activpilot поворотно-відкидна, колір білий
- Підбір спеціальний: Activ микровентиляція; Activ 2-функц. механ.
- Моск.сітка: МС 3
- Підвіконня: ВМ 110мм, колір білий
- Підвіконня: ПВ ПВХ 150, заглушки: 600мм, колір білий
- Монтаж
292600 грн.
Двері (комплектність):
- Полотно
- Коробка
- Лиштва
- Карниз
- Фарбування
- Скло
- Фурнітура
- Врізка фурнітуры
- Монтаж
179676 грн.
Фарбування (комплектність):
- Шліфування торців
- Тришарове покриття ефективним деревозахисним засобом на базі низькомолекулярної алкідної смоли методом розпилення.
Оциліндрований брус
Оциліндрований брус є найбільш оптимальним і поширеним матеріалом для будівництва дерев`яних будинків і бань, бесідок, альтанок, різноманітних садових меблів, дерев`яних конструкцій будь-яких видів. Дерев`яні будинки з оциліндрованого брусу відрізняються красою, всередині такого будинку завжди відчувається особлива затишна атмосфера.
Профільований брус
Найсучаснішим і високотехнологічним будівельним матеріалом в дерев`яному будівництві на сьогоднішній день є профільований брус. Для виробництва профільованого брусу, звичайному дерев`яному брусу на спеціальному деревообробному обладнанні надається певний профіль.
Подвійний брус з утепленням
Головна ідея застосування подвійного бруса полягала в досягненні енергоефективності житла. Над проектуванням енергозберігаючих будинків працюють провідні інженери та архітектори в різних країнах світу, запропонована фінами технологія подвійного бруса дає можливість звести до мінімуму тепловтрати будинку, а також об`єднує переваги будівництва дерев`яного будинку з економічністю споруди.
Клеєний брус
Клеєний брус принципово відрізняється від інших типів колод багатошаровістю. Така структура робить цей дерев’яний матеріал надміцним і витривалим.
Каркасні конструкції
Каркасні конструкції виготовляються на власних виробничих потужностях компанії «Домінант», з використанням сучасних деревообробних станків. Імпортне, високоточне обладнання дозволяє нам високоякісно виконувати свою роботу. Каркаси складаються зі струганих, ретельно висушених балок 150х50 мм (сосна першого сорту). Ці балки застосовуються для зовнішніх каркасів.
















