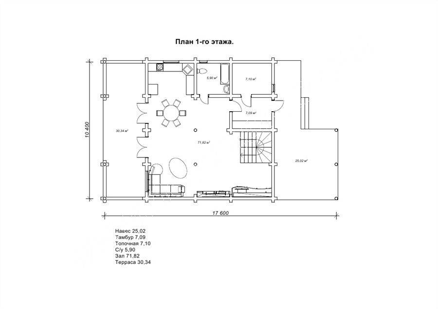
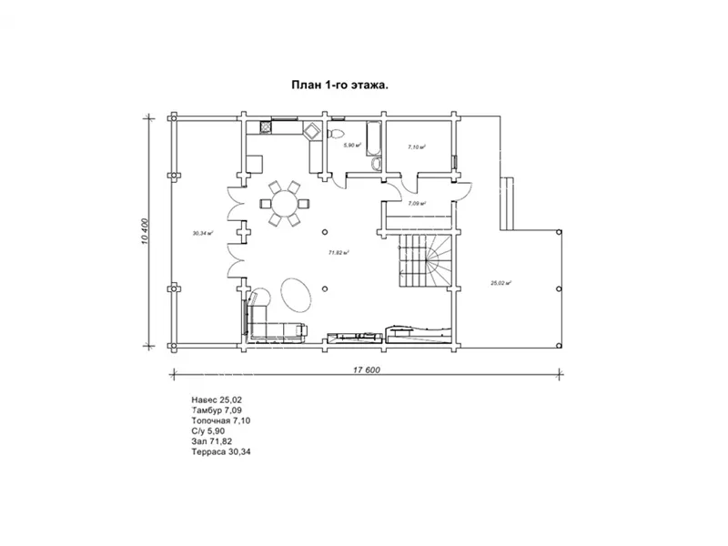
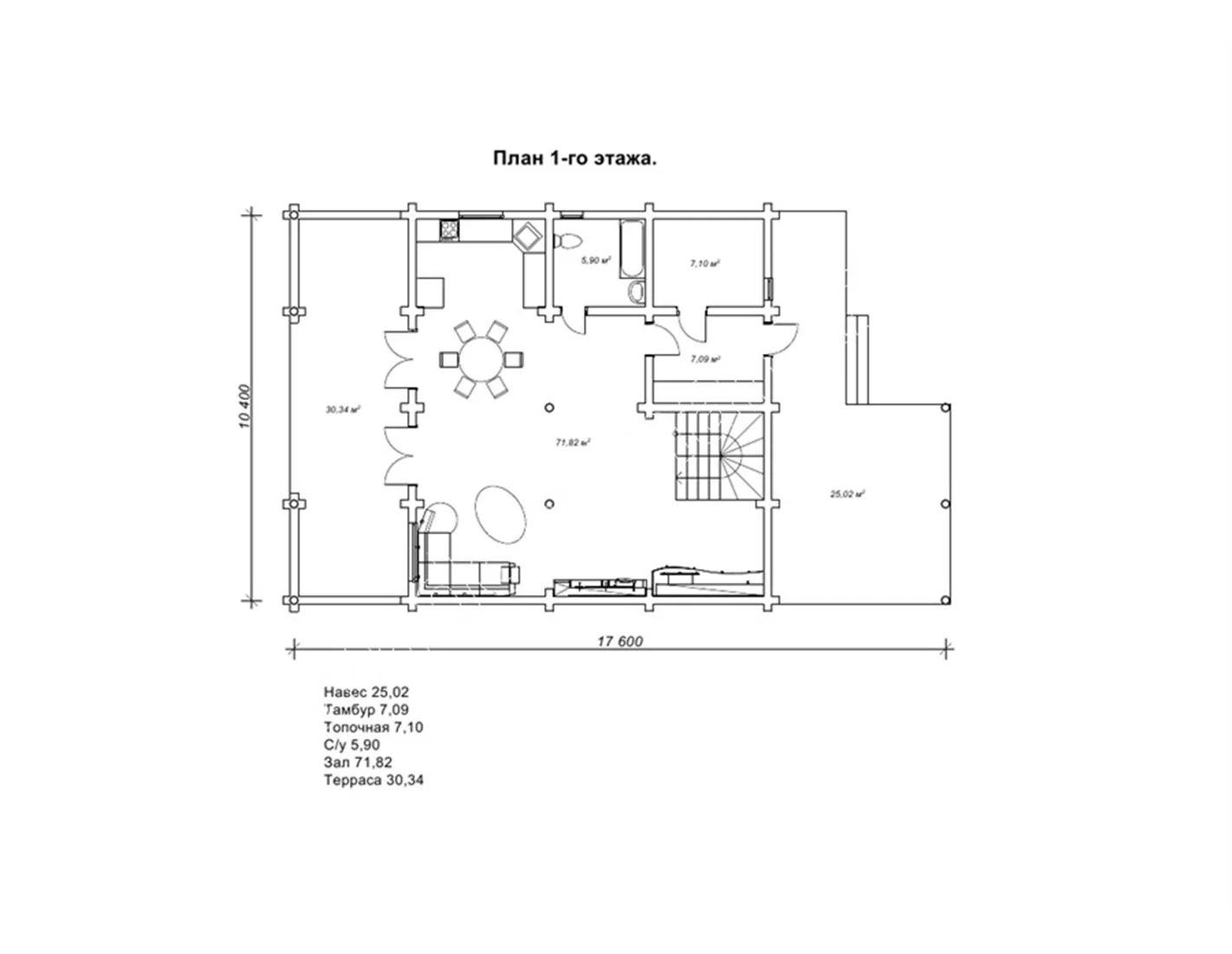
Гавань
- Кількість поверхів
- 2
- Площа
- 258
- Ширина
- 10.4
- Довжина
- 17.6
- Будинки і житлові будови
- Маєтки
Садиби - Кількість кімнат
- Чотирикімнатні будинки
- Особливості будинків
- Будинки з котельнею
Будинки з мансардою
Будинки з навісом
Будинки з терасою
Будинки зі сходами - Кількість поверхів споруди
- Двоповерхові будинки
- Будинки з брусу
- Будинки з оциліндрованого брусу
(Що входить в ціну)
- комплект стін;
- комплект крокв;
- комплект балок перекриття;
- утеплювач міжвінцевий;
- антисептик (антисептування всього матеріалу);
- дубові нагеля;
- кріпильні материали (саморізи, усадкові болти, анкера, кріпильні пластини);
- гідроізоляція;
- вогнебіозахист (обробка деревини засобом І групи вогнезахисної ефективності)
Пропонуємо вам проект дерев’яного будинку «Гавань». Це просторий дерев’яний будинок з брусу для відпочинку і проживання. Зручне і разом з тим раціональне планування, наявність просторої тераси і навісу для машини роблять даний проект дерев’яного будинку дуже привабливим для того щоб його побудувати. Цікавий зовнішній дизайн котеджу зовні плавно проектується і на створювану їм атмосферу.
Оригінальна форма будинку елегантно поєднується з будь-яким ландшафтом. Стиль пропонованого вам проекту зовні нагадує аристократичний особняк. При цьому цілком поєднує в собі всі сучасні рішення і функції. Бо якщо ви плануєте використовувати особняк як будинок відпочинку для вашої родини і друзів, то на терасі відмінно можна розташувати настільний теніс або більярд. Якщо ж ви любите більш спокійний відпочинок, то тут можна помістити гамак і м’які меблі.
Так як маєток має три спальні кімнати, то може вмістити велику кількість людей. Ви можете також переорієнтувати приміщення під ваші потреби і бажання, наприклад, спортзал або офісне приміщення. Особливістю даного проекту так само є наявність топкового приміщення, що свідчить про можливість постійного проживання. А для максимально вдалого дизайну приміщень пропонуємо вам ознайомитися з інформацією на нашому сайті «Планування будинків: як розумно спланувати приміщення і жити з комфортом» dominant-wood.com.ua/uk/blog/statti/planuvannya-budinkiv.
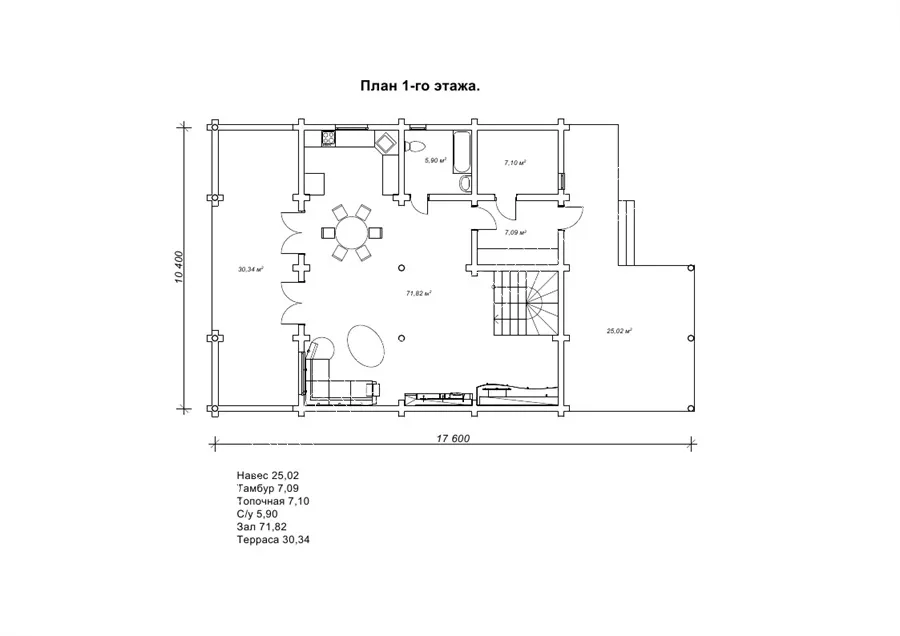
Проект дерев’яного будинку «Гавань» враховує всі вимоги сучасного замовника, який планує купити двоповерховий будинок з брусу для сезонного відпочинку або постійного проживання.
- Кількість поверхів
- 2
- Площа
- 258
- Ширина
- 10.4
- Довжина
- 17.6
- Будинки і житлові будови
- Маєтки
Садиби - Кількість кімнат
- Чотирикімнатні будинки
- Особливості будинків
- Будинки з котельнею
Будинки з мансардою
Будинки з навісом
Будинки з терасою
Будинки зі сходами - Кількість поверхів споруди
- Двоповерхові будинки
- Будинки з брусу
- Будинки з оциліндрованого брусу
Базова комплектація:
(Що входить в ціну)
- комплект стін;
- комплект крокв;
- комплект балок перекриття;
- утеплювач міжвінцевий;
- антисептик (антисептування всього матеріалу);
- дубові нагеля;
- кріпильні материали (саморізи, усадкові болти, анкера, кріпильні пластини);
- гідроізоляція;
- вогнебіозахист (обробка деревини засобом І групи вогнезахисної ефективності)
534600 грн.
Дах (комплектність):
- Рейка 100*25мм (cосна)
- Контрейка 50*25мм (сосна)
- Металочерепиця МОНТЕРРЕЙ (Польща) 0,45мм
- Коник прямий
- Планка примикання
- Лобова (декоративна) планка
- Вітровая планка
- Яндола
- Капельник (Карнизна планка)
- Ущільнювач універсальный
- Саморізи ОС 4.8х35
- Фарба-спрей
- Гідробар'єр
- Монтаж
245560 грн.
Вікна (комплектність):
- Вікно VEKA 58, колір білий 10
- Імпости вертикальні: 1 x 102103
- Скління: СПО, 24мм, (Rсп=0.36)*
- Тип фурнітури: Activpilot поворотно-відкидна, колір білий
- Підбір спеціальний: Activ микровентиляція; Activ 2-функц. механ.
- Моск.сітка: МС 3
- Підвіконня: ВМ 110мм, колір білий
- Підвіконня: ПВ ПВХ 150, заглушки: 600мм, колір білий
- Монтаж
0 грн.
Двері (комплектність):
- Полотно
- Коробка
- Лиштва
- Карниз
- Фарбування
- Скло
- Фурнітура
- Врізка фурнітуры
- Монтаж
183148 грн.
Фарбування (комплектність):
- Шліфування торців
- Тришарове покриття ефективним деревозахисним засобом на базі низькомолекулярної алкідної смоли методом розпилення.
Оциліндрований брус
Оциліндрований брус є найбільш оптимальним і поширеним матеріалом для будівництва дерев`яних будинків і бань, бесідок, альтанок, різноманітних садових меблів, дерев`яних конструкцій будь-яких видів. Дерев`яні будинки з оциліндрованого брусу відрізняються красою, всередині такого будинку завжди відчувається особлива затишна атмосфера.
Профільований брус
Найсучаснішим і високотехнологічним будівельним матеріалом в дерев`яному будівництві на сьогоднішній день є профільований брус. Для виробництва профільованого брусу, звичайному дерев`яному брусу на спеціальному деревообробному обладнанні надається певний профіль.
Подвійний брус з утепленням
Головна ідея застосування подвійного бруса полягала в досягненні енергоефективності житла. Над проектуванням енергозберігаючих будинків працюють провідні інженери та архітектори в різних країнах світу, запропонована фінами технологія подвійного бруса дає можливість звести до мінімуму тепловтрати будинку, а також об`єднує переваги будівництва дерев`яного будинку з економічністю споруди.
Клеєний брус
Клеєний брус принципово відрізняється від інших типів колод багатошаровістю. Така структура робить цей дерев’яний матеріал надміцним і витривалим.
Каркасні конструкції
Каркасні конструкції виготовляються на власних виробничих потужностях компанії «Домінант», з використанням сучасних деревообробних станків. Імпортне, високоточне обладнання дозволяє нам високоякісно виконувати свою роботу. Каркаси складаються зі струганих, ретельно висушених балок 150х50 мм (сосна першого сорту). Ці балки застосовуються для зовнішніх каркасів.













