Мастарна
- Кількість поверхів
- 1
- Площа
- 129.6
- Ширина
- 12
- Довжина
- 14.6
- Будинки і житлові будови
- Дачі
Котеджі - Кількість кімнат
- Трикімнатні будинки
- Особливості будинків
- Будинки з гаражем
Будинки з котельнею
Будинки з навісом
Будинки з терасою - Кількість поверхів споруди
- Одноповерхові будинки
- Будинки з брусу
- Будинки з клеєного брусу
Будинки з профільованого брусу
(Що входить в ціну)
- комплект стін;
- комплект крокв;
- комплект балок перекриття;
- утеплювач міжвінцевий;
- антисептик (антисептування всього матеріалу);
- дубові нагеля;
- кріпильні материали (саморізи, усадкові болти, анкера, кріпильні пластини);
- гідроізоляція;
- вогнебіозахист (обробка деревини засобом І групи вогнезахисної ефективності)
Будівництво будинку із сухого бруса з гаражем «Мастарна»
Проект «Мастарна» обов'язково зацікавить кожного, хто хоче комфортно облаштувати свою заміську ділянку. Зовні котедж виглядає максимально просто, але його вигляд оживляють оригінальні форми будови та великі вікна від підлоги до стелі. Будинок з гаражем побудований за проектом «Мастарна», послужить чудовим варіантом дачного або житлового котеджу. Гараж, передбачений у плані будиночка, дозволить легко приїжджати сюди, не переймаючись стоянкою для машини. Крім того, дуже зручно, що приміщення гаража знаходиться не окремо, а прямо всередині будівлі. Власнику навіть не доведеться виходити на вулицю, щоб прогріти машину, перед тим, як кудись виїжджати. Тому будівництво будинку з гаражем «Мастарна» допоможе отримати максимальний комфорт у стінах із натурального матеріалу.
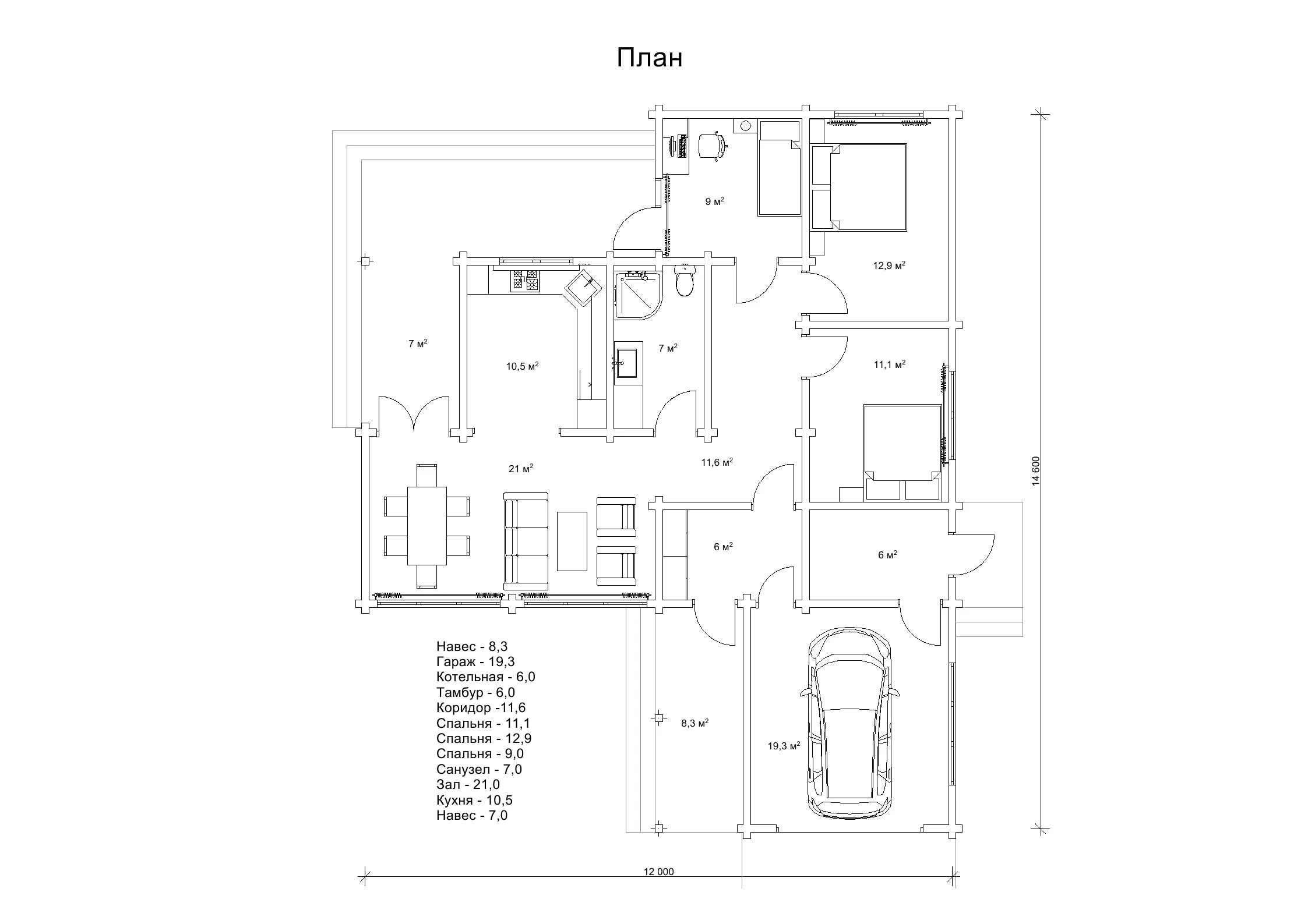
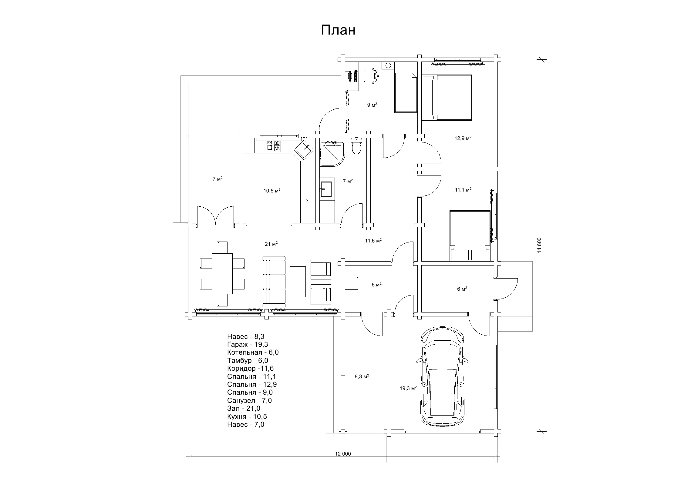
Проект будинку із сухого бруса з гаражем, площа 129,6 м²
Окрім головної особливості споруди у вигляді вбудованого гаража, проект «Мастарна» передбачає наявність трьох просторих житлових кімнат. Розміри спалень становлять 13, 11 і 9 м, зал спланований на 21 м2, гараж займає 19,3 м2. З однієї спальні передбачений вихід під навіс, де можна поставити шезлонг або адірондак і насолодитися свіжим повітрям та оточуючими видами на відкритій терасі. Окрім цих приміщень у котеджі «Мастарна» є кухня, санвузол, тамбур, котельня. У цьому проекті є абсолютно все, що зробить проживання упорядкованим та полегшить побут господарям. Причому все планування організоване на одному рівні. Це підходить тим, хто бажає отримати всі зручності на одному поверсі, щоб не доводилося пересуватися щодня сходами, і не потрібно було б відводити частину корисної площі під сходову зону. Зовні скромний і не примітний будиночок «Мастарна» напрочуд практичний і зручний усередині. Хто вже бажає для себе такий одноповерховий котедж, укомплектований гаражем, пишіть онлайн консультанту або дзвоніть за контактами сайту, виробництво «Домінант» в найкоротші терміни реалізує ваше замовлення!
- Кількість поверхів
- 1
- Площа
- 129.6
- Ширина
- 12
- Довжина
- 14.6
- Будинки і житлові будови
- Дачі
Котеджі - Кількість кімнат
- Трикімнатні будинки
- Особливості будинків
- Будинки з гаражем
Будинки з котельнею
Будинки з навісом
Будинки з терасою - Кількість поверхів споруди
- Одноповерхові будинки
- Будинки з брусу
- Будинки з клеєного брусу
Будинки з профільованого брусу
Базова комплектація:
(Що входить в ціну)
- комплект стін;
- комплект крокв;
- комплект балок перекриття;
- утеплювач міжвінцевий;
- антисептик (антисептування всього матеріалу);
- дубові нагеля;
- кріпильні материали (саморізи, усадкові болти, анкера, кріпильні пластини);
- гідроізоляція;
- вогнебіозахист (обробка деревини засобом І групи вогнезахисної ефективності)
471420 грн.
Дах (комплектність):
- Рейка 100*25мм (cосна)
- Контрейка 50*25мм (сосна)
- Металочерепиця МОНТЕРРЕЙ (Польща) 0,45мм
- Коник прямий
- Планка примикання
- Лобова (декоративна) планка
- Вітровая планка
- Яндола
- Капельник (Карнизна планка)
- Ущільнювач універсальный
- Саморізи ОС 4.8х35
- Фарба-спрей
- Гідробар'єр
- Монтаж
315720 грн.
Вікна (комплектність):
- Вікно VEKA 58, колір білий 10
- Імпости вертикальні: 1 x 102103
- Скління: СПО, 24мм, (Rсп=0.36)*
- Тип фурнітури: Activpilot поворотно-відкидна, колір білий
- Підбір спеціальний: Activ микровентиляція; Activ 2-функц. механ.
- Моск.сітка: МС 3
- Підвіконня: ВМ 110мм, колір білий
- Підвіконня: ПВ ПВХ 150, заглушки: 600мм, колір білий
- Монтаж
418000 грн.
Двері (комплектність):
- Полотно
- Коробка
- Лиштва
- Карниз
- Фарбування
- Скло
- Фурнітура
- Врізка фурнітуры
- Монтаж
186620 грн.
Фарбування (комплектність):
- Шліфування торців
- Тришарове покриття ефективним деревозахисним засобом на базі низькомолекулярної алкідної смоли методом розпилення.
Оциліндрований брус
Оциліндрований брус є найбільш оптимальним і поширеним матеріалом для будівництва дерев`яних будинків і бань, бесідок, альтанок, різноманітних садових меблів, дерев`яних конструкцій будь-яких видів. Дерев`яні будинки з оциліндрованого брусу відрізняються красою, всередині такого будинку завжди відчувається особлива затишна атмосфера.
Профільований брус
Найсучаснішим і високотехнологічним будівельним матеріалом в дерев`яному будівництві на сьогоднішній день є профільований брус. Для виробництва профільованого брусу, звичайному дерев`яному брусу на спеціальному деревообробному обладнанні надається певний профіль.
Подвійний брус з утепленням
Головна ідея застосування подвійного бруса полягала в досягненні енергоефективності житла. Над проектуванням енергозберігаючих будинків працюють провідні інженери та архітектори в різних країнах світу, запропонована фінами технологія подвійного бруса дає можливість звести до мінімуму тепловтрати будинку, а також об`єднує переваги будівництва дерев`яного будинку з економічністю споруди.
Клеєний брус
Клеєний брус принципово відрізняється від інших типів колод багатошаровістю. Така структура робить цей дерев’яний матеріал надміцним і витривалим.
Каркасні конструкції
Каркасні конструкції виготовляються на власних виробничих потужностях компанії «Домінант», з використанням сучасних деревообробних станків. Імпортне, високоточне обладнання дозволяє нам високоякісно виконувати свою роботу. Каркаси складаються зі струганих, ретельно висушених балок 150х50 мм (сосна першого сорту). Ці балки застосовуються для зовнішніх каркасів.


















