Франт
- Кількість поверхів
- 2
- Площа
- 316.9
- Ширина
- 14.9
- Довжина
- 12.8
- Будинки і житлові будови
- Маєтки
Садиби - Кількість кімнат
- Чотирикімнатні будинки
- Особливості будинків
- Будинки з другим світлом
Будинки з котельнею
Будинки з мансардою
Будинки з терасою
Будинки зі сходами - Кількість поверхів споруди
- Двоповерхові будинки
- Будинки з брусу
- Будинки з клеєного брусу
Будинки з профільованого брусу
(Що входить в ціну)
- комплект стін;
- комплект крокв;
- комплект балок перекриття;
- утеплювач міжвінцевий;
- антисептик (антисептування всього матеріалу);
- дубові нагеля;
- кріпильні материали (саморізи, усадкові болти, анкера, кріпильні пластини);
- гідроізоляція;
- вогнебіозахист (обробка деревини засобом І групи вогнезахисної ефективності)
Підбираючи відповідний проект заміського будинку, зверніть свою увагу на відмінний варіант заміського житла Франт. Проект Франт dominant-wood.com.ua/uk/proekty/141-frant поєднує дуже красивий, цікавий, комбінований з різних матеріалів зовнішній дизайн і внутрішнє планування підвищеної комфортності для постійного проживання сім’ї. Фасади будинку оточують просторі літні тераси, великі вікна другого світла ошатно прикрашають будинок. Проект Франт під стать своїй назві створений, щоб красуватися на заміській ділянці справжнього естета з відмінним смаком і відчуттям справжнього стилю.
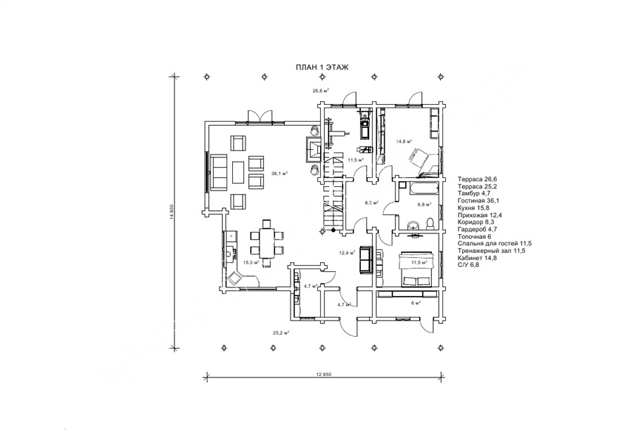
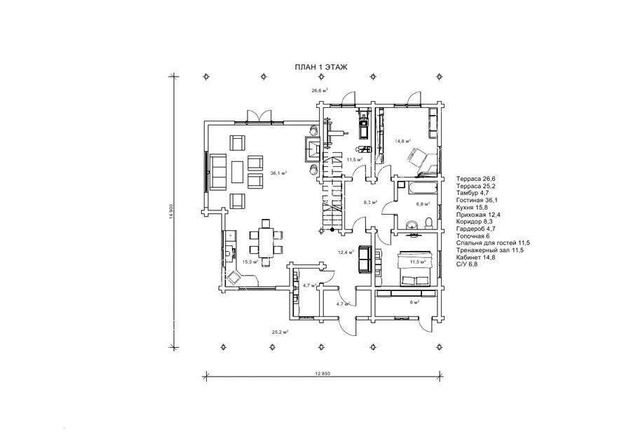
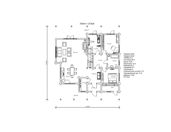
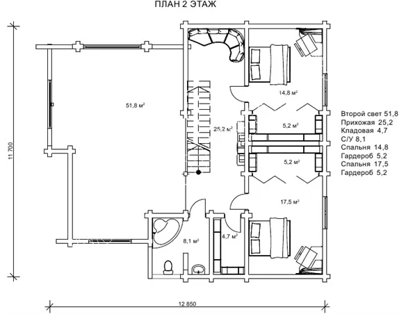
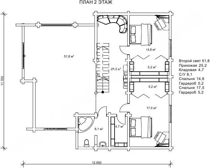
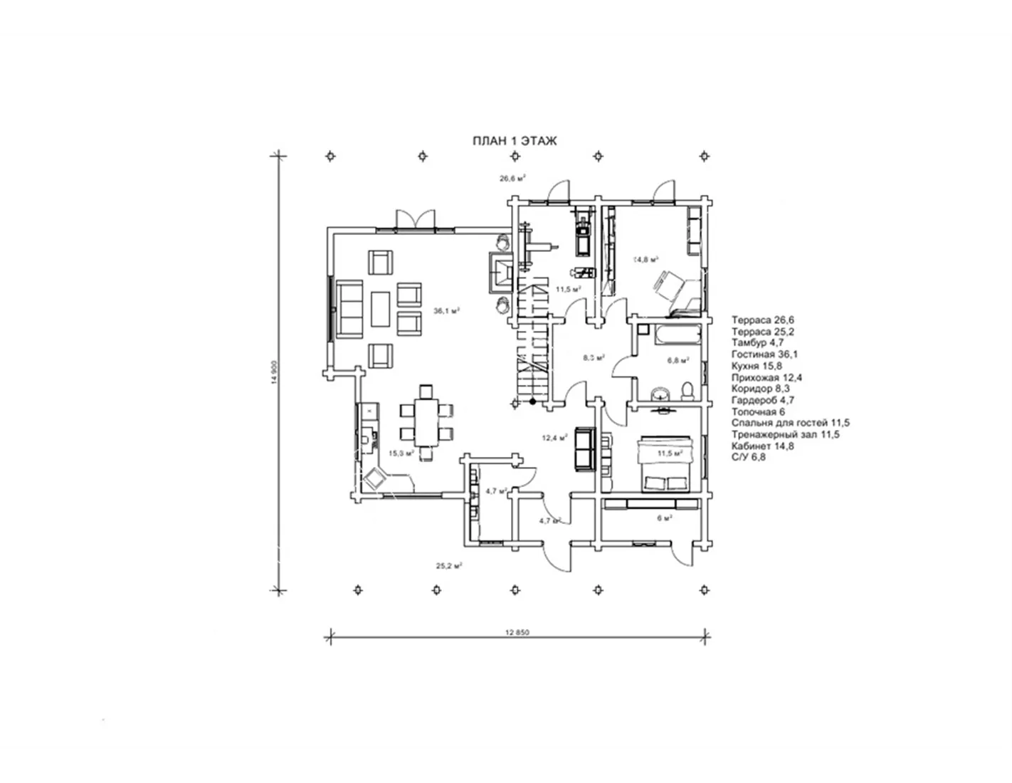
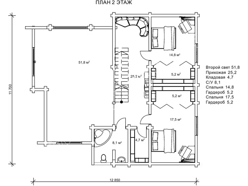
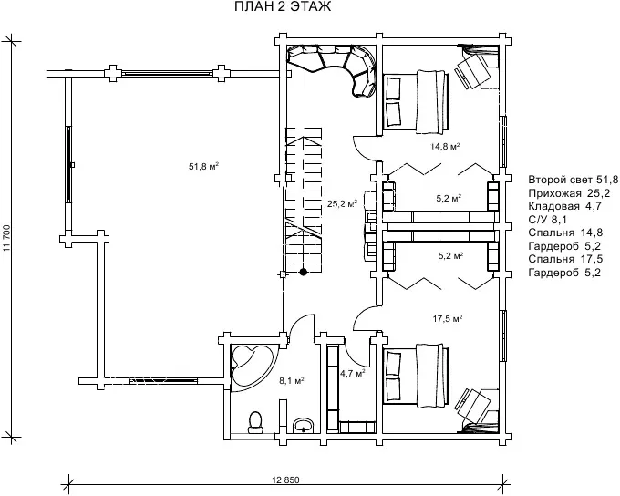
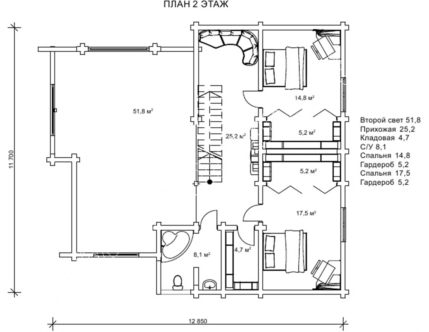
Сімейний особняк спроектований в просторих розмірах забудови 14,9 на 12,8 м, загальна площа будівлі становить 316,9 м². Такі габарити пояснюються наявністю просторих терас по периметру особняка, які надають чудову можливість проводити якомога більше часу на відкритому повітрі. Всередині першого поверху розташовується тамбур, вітальня, кухня, передпокій, коридор, гардероб, топкова, гостьова кімната, тренажерний зал, робочий кабінет і санвузол. На другому поверсі є простора вітальня, дві спальні, санвузол і гардероб. Таке внутрішнє наповнення свідчить про те, що господарі подбали не тільки про комфортне проживання, а й про можливість цікаво проводити дозвілля, продуктивно працювати, розвиватися і дбати про своє здоров’я. Тому купуючи такий досконалий проект для постійного проживання, ви робите значний внесок у якість і високий рівень свого життя, а також забезпечуєте свою сім’ю справжнім сімейним вогнищем, родовим маєтком, яким будуть пишатися ваші діти.
Замовте будівництво будинку по готовому проекту Франт від компанії «Домінант» dominant-wood.com.ua/ і ви придбаєте справжній будинок, який стане найріднішим місцем на землі, де з вами будуть жити найближчі люди і народжуватися найщасливіші спогади!
- Кількість поверхів
- 2
- Площа
- 316.9
- Ширина
- 14.9
- Довжина
- 12.8
- Будинки і житлові будови
- Маєтки
Садиби - Кількість кімнат
- Чотирикімнатні будинки
- Особливості будинків
- Будинки з другим світлом
Будинки з котельнею
Будинки з мансардою
Будинки з терасою
Будинки зі сходами - Кількість поверхів споруди
- Двоповерхові будинки
- Будинки з брусу
- Будинки з клеєного брусу
Будинки з профільованого брусу
Базова комплектація:
(Що входить в ціну)
- комплект стін;
- комплект крокв;
- комплект балок перекриття;
- утеплювач міжвінцевий;
- антисептик (антисептування всього матеріалу);
- дубові нагеля;
- кріпильні материали (саморізи, усадкові болти, анкера, кріпильні пластини);
- гідроізоляція;
- вогнебіозахист (обробка деревини засобом І групи вогнезахисної ефективності)
663390 грн.
Дах (комплектність):
- Рейка 100*25мм (cосна)
- Контрейка 50*25мм (сосна)
- Металочерепиця МОНТЕРРЕЙ (Польща) 0,45мм
- Коник прямий
- Планка примикання
- Лобова (декоративна) планка
- Вітровая планка
- Яндола
- Капельник (Карнизна планка)
- Ущільнювач універсальный
- Саморізи ОС 4.8х35
- Фарба-спрей
- Гідробар'єр
- Монтаж
648980 грн.
Вікна (комплектність):
- Вікно VEKA 58, колір білий 10
- Імпости вертикальні: 1 x 102103
- Скління: СПО, 24мм, (Rсп=0.36)*
- Тип фурнітури: Activpilot поворотно-відкидна, колір білий
- Підбір спеціальний: Activ микровентиляція; Activ 2-функц. механ.
- Моск.сітка: МС 3
- Підвіконня: ВМ 110мм, колір білий
- Підвіконня: ПВ ПВХ 150, заглушки: 600мм, колір білий
- Монтаж
0 грн.
Двері (комплектність):
- Полотно
- Коробка
- Лиштва
- Карниз
- Фарбування
- Скло
- Фурнітура
- Врізка фурнітуры
- Монтаж
206584 грн.
Фарбування (комплектність):
- Шліфування торців
- Тришарове покриття ефективним деревозахисним засобом на базі низькомолекулярної алкідної смоли методом розпилення.
Параметри забудови
- Кількість поверхів: 2
- Площа: 316.9
Розмір забудови
- Ширина: 14.9
- Довжина: 12.8
Перший поверх
| гардеробна (м²) | 4,7 |
| вітальня (м²) | 36,1 |
| коридор (м²) | 8,3 |
| кухня (м²) | 15,8 |
| офісне приміщення (м²) | 14,8 |
| передпокій (м²) | 12,4 |
| с/в (м²) | 6,8 |
| спальня (м²) | 11,5 |
| тамбур (м²) | 4,7 |
| тераса (м²) | 26,6 |
| тераса (м²) | 25,2 |
| топкова (м²) | 6 |
| тренажерна зала (м²) | 11,5 |
Другий поверх
| друге світло (м²) | 51,8 |
| гардеробна (м²) | 5,2 |
| гардеробна (м²) | 5,2 |
| комора (м²) | 4,7 |
| передпокій (м²) | 25,2 |
| с/в (м²) | 8,1 |
| спальня (м²) | 17,5 |
| спальня (м²) | 14,8 |
Оциліндрований брус
Оциліндрований брус є найбільш оптимальним і поширеним матеріалом для будівництва дерев`яних будинків і бань, бесідок, альтанок, різноманітних садових меблів, дерев`яних конструкцій будь-яких видів. Дерев`яні будинки з оциліндрованого брусу відрізняються красою, всередині такого будинку завжди відчувається особлива затишна атмосфера.
Профільований брус
Найсучаснішим і високотехнологічним будівельним матеріалом в дерев`яному будівництві на сьогоднішній день є профільований брус. Для виробництва профільованого брусу, звичайному дерев`яному брусу на спеціальному деревообробному обладнанні надається певний профіль.
Подвійний брус з утепленням
Головна ідея застосування подвійного бруса полягала в досягненні енергоефективності житла. Над проектуванням енергозберігаючих будинків працюють провідні інженери та архітектори в різних країнах світу, запропонована фінами технологія подвійного бруса дає можливість звести до мінімуму тепловтрати будинку, а також об`єднує переваги будівництва дерев`яного будинку з економічністю споруди.
Клеєний брус
Клеєний брус принципово відрізняється від інших типів колод багатошаровістю. Така структура робить цей дерев’яний матеріал надміцним і витривалим.
Каркасні конструкції
Каркасні конструкції виготовляються на власних виробничих потужностях компанії «Домінант», з використанням сучасних деревообробних станків. Імпортне, високоточне обладнання дозволяє нам високоякісно виконувати свою роботу. Каркаси складаються зі струганих, ретельно висушених балок 150х50 мм (сосна першого сорту). Ці балки застосовуються для зовнішніх каркасів.












