Гарсон
- Кількість поверхів
- 2
- Площа
- 221.1
- Ширина
- 12.8
- Довжина
- 11.5
- Будинки і житлові будови
- Маєтки
Садиби - Кількість кімнат
- Трикімнатні будинки
- Особливості будинків
- Будинки з другим світлом
Будинки з мансардою
Будинки з терасою
Будинки зі сходами
Будинки з ґанком - Кількість поверхів споруди
- Двоповерхові будинки
- Будинки з брусу
- Будинки з оциліндрованого брусу
(Що входить в ціну)
- комплект стін;
- комплект крокв;
- комплект балок перекриття;
- утеплювач міжвінцевий;
- антисептик (антисептування всього матеріалу);
- дубові нагеля;
- кріпильні материали (саморізи, усадкові болти, анкера, кріпильні пластини);
- гідроізоляція;
- вогнебіозахист (обробка деревини засобом І групи вогнезахисної ефективності)
Цей дерев’яний будинок являє собою прекрасний вибір для побудови заміського житла. Він володіє містким масштабом, цікавими дизайнерськими ходами, сучасним підходом і багатьма дрібницями, які дарують цьому будинку свою особливу душу. Чого варте тільки друге світло, що спроектовано в будинку Гарсон. На плані цього проекту друге світло зображене окремо, що дає вам краще його зрозуміти і допомагає відчути внутрішню атмосферу. Наявність великої кількості вікон відразу говорить про те, що будинок всередині буде світлим і затишним.
Нестандартні вікна на першому поверсі, великі і занижені в підлогу, в зоні кухні-студії привносять в цей проект особливу атмосферу і роблять будинок сучасним. В таких проектах, великих за своїми параметрами, вікна є одним з найважливіших елементів, тому ми рекомендуємо вам ознайомитися з нашою статтею «Які вікна краще поставити в дерев’яний будинок?» dominant-wood.com.ua/uk/blog/statti/yaki-vikna-krasche-postavyty-v-derevjany-budynok. Вона буде дуже корисною. Окремо варто розглянути в проекті Гарсон друге світло. Воно робить будинок ще більш сучасним і дає відчуття такої свободи, що ваша уява просто завирує від різноманітності способів його використання. Дуже добре, що друге світло спроектовано близько до входу і в зоні студії. Сюди можна буде легко занести ялинку на Різдво і без перешкод встановити найбільшу, що створить неперевершену атмосферу свята. Тут же можна обігравати простір різними текстурами, втілювати різні стилі оформлення. Це буде найсучасніше місце у вашому домі.
Для того, щоб краще спланувати дане приміщення ми пропонуємо вам ознайомитися з нашою статтею «Друге світло в дерев’яному будинку: особливості планування» dominant-wood.com.ua/uk/blog/statti/druge-svitlo. Компанія «Домінант» робить все можливе, щоб допомогти вам з правильним вибором і грамотним підходом.
- Кількість поверхів
- 2
- Площа
- 221.1
- Ширина
- 12.8
- Довжина
- 11.5
- Будинки і житлові будови
- Маєтки
Садиби - Кількість кімнат
- Трикімнатні будинки
- Особливості будинків
- Будинки з другим світлом
Будинки з мансардою
Будинки з терасою
Будинки зі сходами
Будинки з ґанком - Кількість поверхів споруди
- Двоповерхові будинки
- Будинки з брусу
- Будинки з оциліндрованого брусу
Базова комплектація:
(Що входить в ціну)
- комплект стін;
- комплект крокв;
- комплект балок перекриття;
- утеплювач міжвінцевий;
- антисептик (антисептування всього матеріалу);
- дубові нагеля;
- кріпильні материали (саморізи, усадкові болти, анкера, кріпильні пластини);
- гідроізоляція;
- вогнебіозахист (обробка деревини засобом І групи вогнезахисної ефективності)
464130 грн.
Дах (комплектність):
- Рейка 100*25мм (cосна)
- Контрейка 50*25мм (сосна)
- Металочерепиця МОНТЕРРЕЙ (Польща) 0,45мм
- Коник прямий
- Планка примикання
- Лобова (декоративна) планка
- Вітровая планка
- Яндола
- Капельник (Карнизна планка)
- Ущільнювач універсальный
- Саморізи ОС 4.8х35
- Фарба-спрей
- Гідробар'єр
- Монтаж
403420 грн.
Вікна (комплектність):
- Вікно VEKA 58, колір білий 10
- Імпости вертикальні: 1 x 102103
- Скління: СПО, 24мм, (Rсп=0.36)*
- Тип фурнітури: Activpilot поворотно-відкидна, колір білий
- Підбір спеціальний: Activ микровентиляція; Activ 2-функц. механ.
- Моск.сітка: МС 3
- Підвіконня: ВМ 110мм, колір білий
- Підвіконня: ПВ ПВХ 150, заглушки: 600мм, колір білий
- Монтаж
0 грн.
Двері (комплектність):
- Полотно
- Коробка
- Лиштва
- Карниз
- Фарбування
- Скло
- Фурнітура
- Врізка фурнітуры
- Монтаж
208320 грн.
Фарбування (комплектність):
- Шліфування торців
- Тришарове покриття ефективним деревозахисним засобом на базі низькомолекулярної алкідної смоли методом розпилення.
Параметри забудови
- Кількість поверхів: 2
- Площа: 221.1
Розмір забудови
- Ширина: 12.8
- Довжина: 11.5
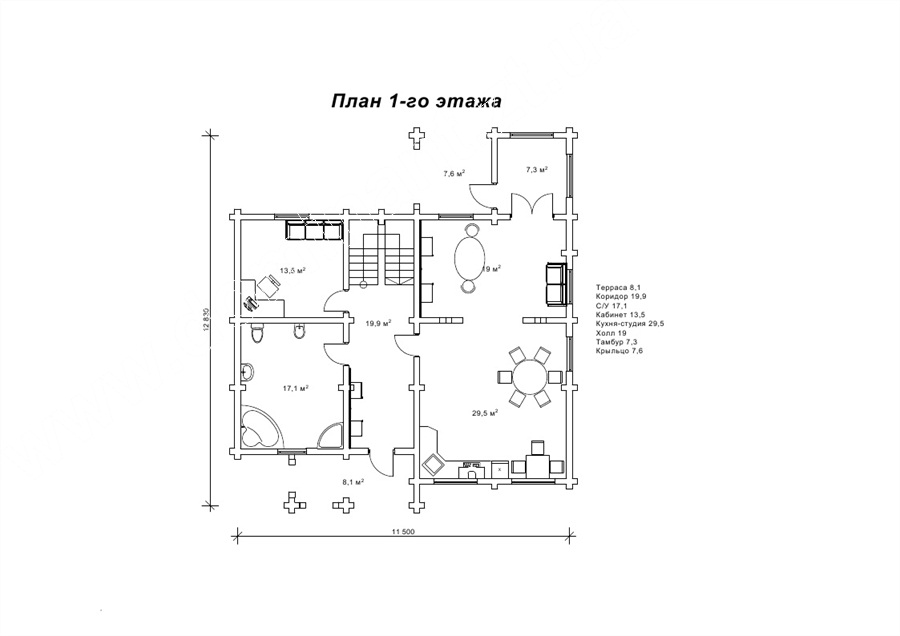
Перший поверх
| коридор (м²) | 19,9 |
| ганок (м²) | 7,6 |
| кухня (м²) | 29,5 |
| офісне приміщення (м²) | 13,5 |
| с/в (м²) | 17,1 |
| тамбур (м²) | 7,3 |
| тераса (м²) | 8,1 |
| хол (м²) | 19 |
Другий поверх
| друге світло (м²) | 29,5 |
| кімната (м²) | 13,5 |
| кімната (м²) | 17,1 |
| кімната (м²) | 19 |
| коридор (м²) | 14,5 |
| с/в (м²) | 5,4 |
Оциліндрований брус
Оциліндрований брус є найбільш оптимальним і поширеним матеріалом для будівництва дерев`яних будинків і бань, бесідок, альтанок, різноманітних садових меблів, дерев`яних конструкцій будь-яких видів. Дерев`яні будинки з оциліндрованого брусу відрізняються красою, всередині такого будинку завжди відчувається особлива затишна атмосфера.
Профільований брус
Найсучаснішим і високотехнологічним будівельним матеріалом в дерев`яному будівництві на сьогоднішній день є профільований брус. Для виробництва профільованого брусу, звичайному дерев`яному брусу на спеціальному деревообробному обладнанні надається певний профіль.
Подвійний брус з утепленням
Головна ідея застосування подвійного бруса полягала в досягненні енергоефективності житла. Над проектуванням енергозберігаючих будинків працюють провідні інженери та архітектори в різних країнах світу, запропонована фінами технологія подвійного бруса дає можливість звести до мінімуму тепловтрати будинку, а також об`єднує переваги будівництва дерев`яного будинку з економічністю споруди.
Клеєний брус
Клеєний брус принципово відрізняється від інших типів колод багатошаровістю. Така структура робить цей дерев’яний матеріал надміцним і витривалим.
Каркасні конструкції
Каркасні конструкції виготовляються на власних виробничих потужностях компанії «Домінант», з використанням сучасних деревообробних станків. Імпортне, високоточне обладнання дозволяє нам високоякісно виконувати свою роботу. Каркаси складаються зі струганих, ретельно висушених балок 150х50 мм (сосна першого сорту). Ці балки застосовуються для зовнішніх каркасів.













